LOGEMENT D'OUVRIERS DIT CASERNE PERREY
25 - Pont-de-Roide
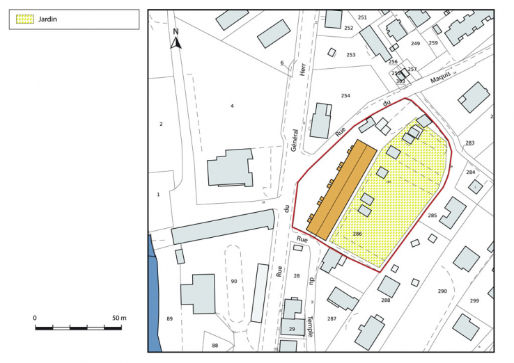
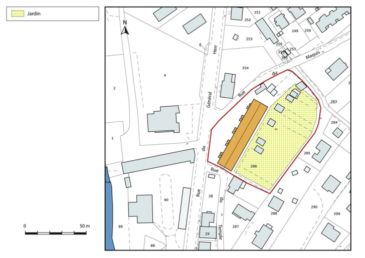
19A rue du général Herr
- Dossier IA25001057 réalisé en 2012 revu en 2013
- Auteur(s) : Raphaël Favereaux
Historique
Le logement d’ouvriers est construit en 1859-1860 par la société Peugeot Aînés et Jackson Frères, propriétaire de l’usine de Pont-de-Roide (IA25001049). Elle est connue sous le nom de caserne Perrey, du nom de Léon Perrey, fondé de pouvoir de la société.
- 3e quart 19e siècle
Description
Le logement se compose d’un long bâtiment construit en moellon de calcaire enduit, à un étage carré et un étage de comble, couvert d’un toit à longs pans en tuile mécanique. Il abritait 20 appartements, 10 entrées étant distribuées sur chacune des façades. Chaque appartement se composait d’une cave au sous-sol, d’une cuisine et d’une salle à manger au rez-de-chaussée, de deux chambres à l’étage, et d’une pièce mansardée à l’étage de comble.
- calcaire
- moellon
- enduit
- tuile mécanique
- 1 étage carré
- étage de comble
- sous-sol
Source(s) documentaire(s)
-
3 P 464/2-3 Matrice des propriétés foncières bâties et non bâties XIXe siècle
Matrice des propriétés foncières bâties et non bâties 19e siècleLieu de conservation : Archives départementales du Doubs, Besançon - Cote du document : 3 P 464/2-3
-
Pont-de-Roide - Vermondans d’hier et d’aujourd’hui / ASPIR, 2001.
Pont-de-Roide - Vermondans d’hier et d’aujourd’hui / ASPIR, 2001, 44 p.
À voir
Informations complémentaires
- patrimoine industriel du Doubs
- jardin
- © Région Bourgogne-Franche-Comté, Inventaire du patrimoine
