LIGNE DE FABRICATION DES TÊTES DE PIPES EN BRUYÈRE
25 - Baume-les-Dames
Gondé - Pipes - rue des Pipes
- Dossier IM25001119 réalisé en 2002
- Auteur(s) : Géraud Buffa
Historique
A l'origine absente de l'usine, la fabrication des pipes en racine de bruyère a peu à peu supplanté celles des pipes en merisier.
- 4e quart 19e siècle
- 20e siècle
Description
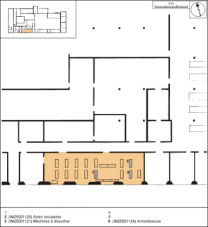
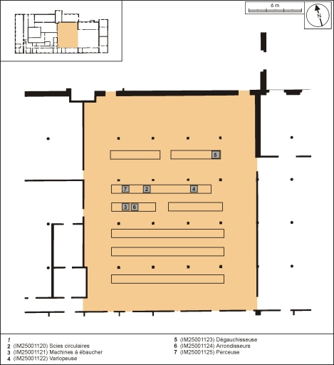
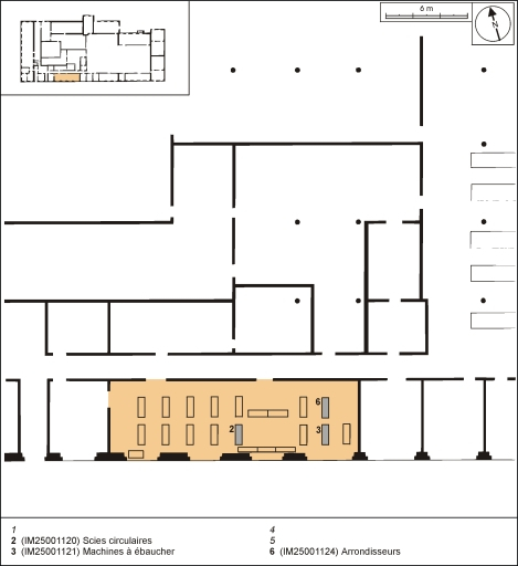
A la différence des têtes de pipe en merisier, celles en racine de bruyère sont ébauchées dans un seul bloc de matière. Après le tournage du fourneau, le foyer est creusé, puis la tige varlopée. Un fraisage vient ensuite enlever les irrégularités qui ne peuvent être réduites au varlopage et au tournage. A ces étapes de travail, essentiellement masculines, s'en ajoute une dernière, le perçage et le chanfreinage de la tige.
- matériau d'origine végétale solide, produit brut
À voir
Informations complémentaires
- patrimoine industriel du Doubs
- © Région Bourgogne-Franche-Comté, Inventaire du patrimoine
