LIGNE DE FABRICATION COMMUNE AUX PIPES EN BRUYÈRE ET AUX PIPES EN MERISIER
25 - Baume-les-Dames
Gondé - Pipes - rue des Pipes
- Dossier IM25001126 réalisé en 2002
- Auteur(s) : Géraud Buffa
Historique
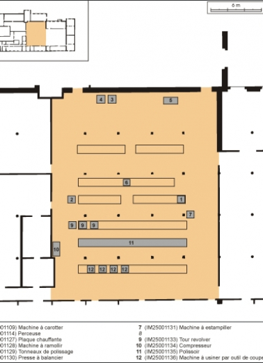
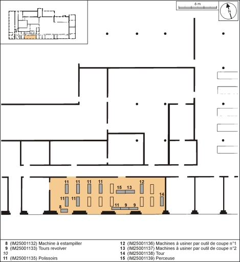
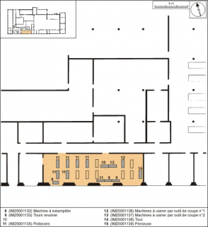
Cet ensemble comprend 39 machines du 20e siècle.
- 20e siècle
Description
- matériau d'origine végétale solide, produit brut
À voir
Informations complémentaires
- patrimoine industriel du Doubs
- © Région Bourgogne-Franche-Comté, Inventaire du patrimoine
