Plan masse et de situation. Extrait du plan cadastral, 1974, section AB.
25, Besançon Grande Rue 68, lieudit : îlot Terrier de Santans
-
Besançon : extrait du plan cadastral, 1974, section AB.
N° de l’illustration : 20072500099NUDA
Date : 2007
Auteur : André Céréza
Reproduction soumise à autorisation du titulaire des droits d'exploitation
- © Région Bourgogne-Franche-Comté, Inventaire du patrimoine
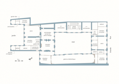
Plan de l'étage entre cour et jardin.
25, Besançon Grande Rue 68, lieudit : îlot Terrier de Santans
-
Dessin original non numérique sur transparent synthétique, par Sarfaty, Muriel ; Doutreuwe, Françoise
Lieu de conservation : Région Franche-Comté, Inventaire du Patrimoine, Besançon - Cote du document : 20012500195A2YY
N° de l’illustration : 20092500836NUDA
Date : 2009
Auteur : André Céréza
Reproduction soumise à autorisation du titulaire des droits d'exploitation
- © Région Bourgogne-Franche-Comté, Inventaire du patrimoine
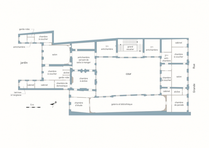
Restitution de la distribution du premier étage. D'après un plan des années 1770, par l'architecte Claude-Joseph-Alexandre Bertrand (coll. particulière).
25, Besançon Grande Rue 68, lieudit : îlot Terrier de Santans
N° de l’illustration : 20132500406NUDA
Date : 2013
Auteur : Mathias Papigny
Reproduction soumise à autorisation du titulaire des droits d'exploitation
- © Région Bourgogne-Franche-Comté, Inventaire du patrimoine
Vue d'ensemble de l'édifice de trois quarts gauche.
25, Besançon Grande Rue 68, lieudit : îlot Terrier de Santans
N° de l’illustration : 20082500614NUC2A
Date : 2008
Auteur : Yves Sancey
Reproduction soumise à autorisation du titulaire des droits d'exploitation
- © Région Bourgogne-Franche-Comté, Inventaire du patrimoine
Vue d'ensemble de la partie centrale de la façade sur rue, de face.
25, Besançon Grande Rue 68, lieudit : îlot Terrier de Santans
N° de l’illustration : 20082500615NUC2A
Date : 2008
Auteur : Yves Sancey
Reproduction soumise à autorisation du titulaire des droits d'exploitation
- © Région Bourgogne-Franche-Comté, Inventaire du patrimoine
Détail du portail d'entrée, de face.
25, Besançon Grande Rue 68, lieudit : îlot Terrier de Santans
N° de l’illustration : 20092500167NUC2A
Date : 2009
Auteur : Yves Sancey
Reproduction soumise à autorisation du titulaire des droits d'exploitation
- © Région Bourgogne-Franche-Comté, Inventaire du patrimoine
Vue d'ensemble du premier étage de la façade sur rue, de face.
25, Besançon Grande Rue 68, lieudit : îlot Terrier de Santans
N° de l’illustration : 20082500616NUC2A
Date : 2008
Auteur : Yves Sancey
Reproduction soumise à autorisation du titulaire des droits d'exploitation
- © Région Bourgogne-Franche-Comté, Inventaire du patrimoine
Détail du balcon en ferronnerie, au premier étage sur rue, comportant les armoiries des Terrier de Santans.
25, Besançon Grande Rue 68, lieudit : îlot Terrier de Santans
N° de l’illustration : 20082500618NUC2A
Date : 2008
Auteur : Yves Sancey
Reproduction soumise à autorisation du titulaire des droits d'exploitation
- © Région Bourgogne-Franche-Comté, Inventaire du patrimoine
Détail des armoiries bûchées situées dans le fronton couronnant la façade sur rue.
25, Besançon Grande Rue 68, lieudit : îlot Terrier de Santans
N° de l’illustration : 20082500617NUC2A
Date : 2008
Auteur : Yves Sancey
Reproduction soumise à autorisation du titulaire des droits d'exploitation
- © Région Bourgogne-Franche-Comté, Inventaire du patrimoine
Vue d'ensemble des bâtiments depuis le fond de la cour d'honneur.
25, Besançon Grande Rue 68, lieudit : îlot Terrier de Santans
N° de l’illustration : 20082500557NUC2A
Date : 2008
Auteur : Yves Sancey
Reproduction soumise à autorisation du titulaire des droits d'exploitation
- © Région Bourgogne-Franche-Comté, Inventaire du patrimoine
Vue d'ensemble des bâtiments autour de la cour d'honneur depuis l'entrée.
25, Besançon Grande Rue 68, lieudit : îlot Terrier de Santans
N° de l’illustration : 20082500554NUC2A
Date : 2008
Auteur : Yves Sancey
Reproduction soumise à autorisation du titulaire des droits d'exploitation
- © Région Bourgogne-Franche-Comté, Inventaire du patrimoine
Aile à droite de la cour d'honneur contenant l'escalier.
25, Besançon Grande Rue 68, lieudit : îlot Terrier de Santans
N° de l’illustration : 20082500555NUC2A
Date : 2008
Auteur : Yves Sancey
Reproduction soumise à autorisation du titulaire des droits d'exploitation
- © Région Bourgogne-Franche-Comté, Inventaire du patrimoine
Aile à gauche de la cour d'honneur contenant le passage donnant sur la cour des communs.
25, Besançon Grande Rue 68, lieudit : îlot Terrier de Santans
N° de l’illustration : 20082500556NUC2A
Date : 2008
Auteur : Yves Sancey
Reproduction soumise à autorisation du titulaire des droits d'exploitation
- © Région Bourgogne-Franche-Comté, Inventaire du patrimoine
Détail d'une guirlande de feuillage décorant les façades sur cour.
25, Besançon Grande Rue 68, lieudit : îlot Terrier de Santans
N° de l’illustration : 20082500558NUC2A
Date : 2008
Auteur : Yves Sancey
Reproduction soumise à autorisation du titulaire des droits d'exploitation
- © Région Bourgogne-Franche-Comté, Inventaire du patrimoine
Vue d'ensemble de la façade postérieure du logis principal depuis l'ancien jardin.
25, Besançon Grande Rue 68, lieudit : îlot Terrier de Santans
N° de l’illustration : 20082500560NUC2A
Date : 2008
Auteur : Yves Sancey
Reproduction soumise à autorisation du titulaire des droits d'exploitation
- © Région Bourgogne-Franche-Comté, Inventaire du patrimoine
Façade postérieure du logis principal : détail de la partie centrale.
25, Besançon Grande Rue 68, lieudit : îlot Terrier de Santans
N° de l’illustration : 20082500561NUC2A
Date : 2008
Auteur : Yves Sancey
Reproduction soumise à autorisation du titulaire des droits d'exploitation
- © Région Bourgogne-Franche-Comté, Inventaire du patrimoine
Vue d'ensemble de la cour de l'école, à l'emplacement de l'ancien jardin.
25, Besançon Grande Rue 68, lieudit : îlot Terrier de Santans
N° de l’illustration : 20082500553NUC2A
Date : 2008
Auteur : Yves Sancey
Reproduction soumise à autorisation du titulaire des droits d'exploitation
- © Région Bourgogne-Franche-Comté, Inventaire du patrimoine
Escalier d'honneur : vue de la porte gauche située au rez-de-chaussée.
25, Besançon Grande Rue 68, lieudit : îlot Terrier de Santans
N° de l’illustration : 20082500545NUC2A
Date : 2008
Auteur : Yves Sancey
Reproduction soumise à autorisation du titulaire des droits d'exploitation
- © Région Bourgogne-Franche-Comté, Inventaire du patrimoine
Escalier d'honneur, rez-de-chaussée : détail du dessus de porte gauche.
25, Besançon Grande Rue 68, lieudit : îlot Terrier de Santans
N° de l’illustration : 20082500552NUC2A
Date : 2008
Auteur : Yves Sancey
Reproduction soumise à autorisation du titulaire des droits d'exploitation
- © Région Bourgogne-Franche-Comté, Inventaire du patrimoine
Escalier d'honneur : vue de la porte droite située au rez-de-chaussée.
25, Besançon Grande Rue 68, lieudit : îlot Terrier de Santans
N° de l’illustration : 20082500544NUC2A
Date : 2008
Auteur : Yves Sancey
Reproduction soumise à autorisation du titulaire des droits d'exploitation
- © Région Bourgogne-Franche-Comté, Inventaire du patrimoine
Escalier d'honneur, rez-de-chaussée : détail du dessus de porte droit.
25, Besançon Grande Rue 68, lieudit : îlot Terrier de Santans
N° de l’illustration : 20082500551NUC2A
Date : 2008
Auteur : Yves Sancey
Reproduction soumise à autorisation du titulaire des droits d'exploitation
- © Région Bourgogne-Franche-Comté, Inventaire du patrimoine
Escalier d'honneur : vue d'ensemble de la rampe en ferronnerie.
25, Besançon Grande Rue 68, lieudit : îlot Terrier de Santans
N° de l’illustration : 20082500550NUC2A
Date : 2008
Auteur : Yves Sancey
Reproduction soumise à autorisation du titulaire des droits d'exploitation
- © Région Bourgogne-Franche-Comté, Inventaire du patrimoine
Escalier d'honneur : détail de la dernière volée et du palier.
25, Besançon Grande Rue 68, lieudit : îlot Terrier de Santans
N° de l’illustration : 20082500549NUC2A
Date : 2008
Auteur : Yves Sancey
Reproduction soumise à autorisation du titulaire des droits d'exploitation
- © Région Bourgogne-Franche-Comté, Inventaire du patrimoine
Escalier d'honneur : vue en contre-plongée.
25, Besançon Grande Rue 68, lieudit : îlot Terrier de Santans
N° de l’illustration : 20082500546NUC2A
Date : 2008
Auteur : Yves Sancey
Reproduction soumise à autorisation du titulaire des droits d'exploitation
- © Région Bourgogne-Franche-Comté, Inventaire du patrimoine
Escalier d'honneur : vue d' ensemble de la cage d'escalier depuis le haut de la dernière volée.
25, Besançon Grande Rue 68, lieudit : îlot Terrier de Santans
N° de l’illustration : 20082500547NUC2A
Date : 2008
Auteur : Yves Sancey
Reproduction soumise à autorisation du titulaire des droits d'exploitation
- © Région Bourgogne-Franche-Comté, Inventaire du patrimoine
Escalier d'honneur : détail d'une niche située dans la montée d'escalier.
25, Besançon Grande Rue 68, lieudit : îlot Terrier de Santans
N° de l’illustration : 20082500548NUC2A
Date : 2008
Auteur : Yves Sancey
Reproduction soumise à autorisation du titulaire des droits d'exploitation
- © Région Bourgogne-Franche-Comté, Inventaire du patrimoine
Vue d'ensemble des bâtiments situés dans la cour des communs.
25, Besançon Grande Rue 68, lieudit : îlot Terrier de Santans
N° de l’illustration : 20082500559NUC2A
Date : 2008
Auteur : Yves Sancey
Reproduction soumise à autorisation du titulaire des droits d'exploitation
- © Région Bourgogne-Franche-Comté, Inventaire du patrimoine