HÔTEL DE MUTIGNEY OU DE MESMAY
25 - Besançon
Îlot Saint-Pierre - Granges - 50 rue des Granges
- Dossier IA25000583 réalisé en 1996 revu en 2009
- Auteur(s) : Christiane Roussel
Historique
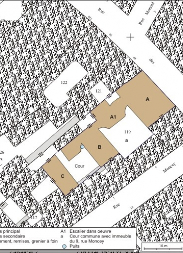
L'hôtel a été construit en 1743 pour le chanoine Mairot de Mutigney par l'architecte et sculpteur Claude-Damien Gardaire. Les clefs des baies de l'aile de l'escalier n'ont pas été sculptées et sont restées à l'état d'ébauche pour une raison indéterminée. Dans le courant du 18e siècle, la demeure passe entre les mains de la famille de Mesmay. En 1780, elle est vendue par un de Mesmay, président à mortier au parlement de Franche-Comté, à Charles-François Millot, baron de Montjustin qui meurt en 1842. Sa fille unique, mariée à Louis-Désiré-Simon de Vaulchier du Deschaux, hérite de l'hôtel. Lors de la création de la rue Moncey en 1836, le marquis de Vaulchier se porte acquéreur de deux parcelles le long de la nouvelle rue, jouxtant son hôtel. il revend celle située à l'angle de la rue des Granges et de la rue Moncey à l'architecte Alphonse Delacroix qui y bâtit sa maison (11 rue Moncey, étudiée), et fait construire à côté un immeuble par le même architecte (9 rue Moncey, étudié). Le grand passage cocher de cet immeuble donne accès à la cour de l'hôtel. L'ancien portail d'entrée, situé sur des Granges, est alors condamné (mais il en subsiste l'encadrement en pierre de taille) et le passage cocher transformé en boutique. Trois autres boutiques ont été aussi aménagées par la suite au rez-de-chaussée de ce logis sur rue.
- 2e quart 18e siècle
Claude-Damien Gardaire, architecte et sculpteur. Actif à Besançon entre 1740 et 1747.
Description
L'hôtel est composé de trois logis parallèles et de deux cours, accessibles depuis le passage cocher de l'immeuble, 9 rue Moncey. Le logis principal sur rue, bâti sur des caves voûtées d'arêtes et en berceau, est à deux étages carrés et un de comble. L'escalier d'honneur en maçonnerie avec rampe en ferronnerie, situé dans l'aile sur cour, distribue le logis principal et le premier logis secondaire. Au fond de la deuxième cour subsiste un bâtiment de communs avec des remises en rez-de-chaussée, un logement à l'étage et un ancien grenier à foin transformé en logement. A droite de cette cour, est situé un puits en pierre de taille. Les façades antérieures des deux premiers logis sont en pierre de taille et le reste en moellon enduit.
- calcaire
- pierre de taille
- moellon
- enduit
- tuile plate
- sous-sol
- 2 étages carrés
- étage de comble
- voûte d'arêtes
- voûte en berceau
- élévation à travées
- escalier dans-oeuvre, escalier tournant à retours avec jour, en maçonnerie
- hôtel sur rue
- sculpture
Une tête d'homme casquée encadrée de C feuillagés orne la clé de l'ancien portail d'entrée ; les lucarnes de l'étage de comble du deuxième logis sont ornées de frontons alternativement triangulaires et cintrés.
Source(s) documentaire(s)
-
Besançon : extrait du plan cadastral, 1974, section AC.
Besançon : extrait du plan cadastral, 1974, section AC.
À voir
Informations complémentaires
La partie la plus remarquable de cet hôtel, qui possède une organisation traditionnelle à trois logis parallèles, est constituée par la monumentale aile en pierre de taille de l'escalier d'honneur. L'hôtel a été protégé MH en même temps que l'immeuble situé 9 rue Moncey.
les façades et les toitures sur rue et sur cour : inscription par arrêté du 8 juin 1942
- demeures bisontines
- communs
- logement
- remise
- boutique
- puits
- cour
- © Région Bourgogne-Franche-Comté, Inventaire du patrimoine
