HÔPITAL LOCAL
58 - Lormes
9 rue du Panorama
- Dossier IA00002604 réalisé en 1986 revu en 2011
- Auteur(s) : Claudine Hugonnet-Berger, Virginie Inguenaud, Nicolas Potier
Historique
En 1811, il ne restait rien de l'ancienne maladrerie (ou léproserie) Saint Lazare, selon les archives de l'hospice qui attestent "il n'y a plus d'hospice dans cette ville puisqu'il n'y a plus de bâtiments, une partie est tombée de vétusté, sans que les revenus se soient trouvés suffisants pour les faire réparer, l'autre partie a été démolie. L'administration de la ville reconnaît que le vieil hôpital n'existe plus et que depuis longtemps les malades sont secourus à domicile par les dames de charité" (cité dans Madeleine Villarmé-Moriz. Quelques pharmacies hospitalières du Nivernais et du Berry. Toulouse, impr. Cléder, 1960, p. 93-94). En 1833, l'ancienne gendarmerie fut mise à la disposition des soeurs de la congrégation de Saint-Gildas pour éduquer les jeunes filles de la bourgeoisie ; en échange les soeurs s'engageaient à accueillir les nécessiteux du canton. L'établissement actuel, créé le 1er janvier 1834 grâce à un legs de l'abbé Méreau, curé de la paroisse, fait en 1832 (il existait auparavant, mais sans bâtiment puisqu'il s'agissait uniquement de secours à domicile), consiste en un bâtiment unique, très réduit puisque sa capacité d'accueil est limitée à deux lits. Il abrite de surcroît les soeurs de Nevers. Les locaux sont jugés inappropriés à leur destination (AD58 X 1095 : Rapport sur les hospices de la Nièvre de 1835). L'établissement est agrandi à partir de 1842 d'après le projet de l'architecte Mathieu. C'est l'entrepreneur Bailly qui se rend adjudicataire des travaux (E dépot 145, M 63). En 1852, la chapelle est construite. En 1926, les bâtiments sont rénovés, puis surélevés en 1953 et 1965-70.
- 2e quart 19e siècle
- milieu 19e siècle
Description
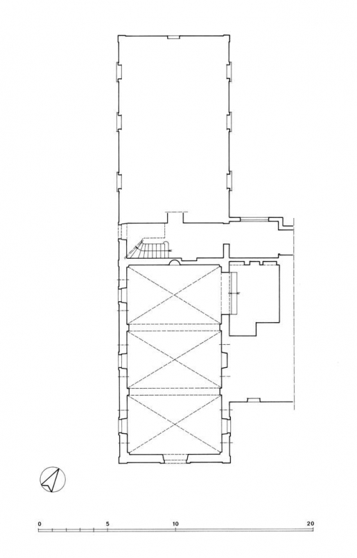
Edifice de plan en H irrégulier côté cour. La chapelle, située dans l'aile gauche sur rue, se compose de trois travées voûtées d'arêtes éclairées par des fenêtres en plein-cintre percées dans le mur gauche. Les ouvertures de l'aile droite sont également cintrées, celle du corps central sont rectangulaires. Le toit de ce corps est à deux versants de tuile plate et d'ardoise, les ailes sont couvertes de toits brisés à croupes en tuile plate.
- granite
- moellon
- enduit
- tuile plate
- ardoise
- 2 étages carrés
- 1 vaisseau
- voûte d'arêtes
- élévation à travées
- toit à longs pans
- croupe
- escalier intérieur, escalier tournant à retours avec jour, en charpente
- peinture
- remanié
Source(s) documentaire(s)
-
Archives départementales de la Nièvre. E dépôt 145.
Archives départementales de la Nièvre. E dépôt 145.Lieu de conservation : Archives départementales de la Nièvre, Nevers - Cote du document : E dépôt 145 -
Archives départementales de la Nièvre. X 1095. Rapport sur les hospices de la Nièvre (1835).
Archives départementales de la Nièvre. X 1095. Rapport sur les hospices de la Nièvre (1835).Lieu de conservation : Archives départementales de la Nièvre, Nevers - Cote du document : X 1095
-
Villarmé-Moriz, Madeleine. Quelques pharmacies hospitalières du Nivernais et du Berry. 1960.
Villarmé-Moriz, Madeleine. Quelques pharmacies hospitalières du Nivernais et du Berry. Toulouse : impr. Cléder, 1960.
Informations complémentaires
- patrimoine hospitalier
- chapelle
- © Région Bourgogne-Franche-Comté, Inventaire du patrimoine
