GARE DE FRAMBOUHANS PUIS USINE D'ÉLÉMENTS PRÉFABRIQUÉS PERSONENI
25 - Frambouhans
- Dossier IA25001175 réalisé en 2013
- Auteur(s) : Laurent Poupard
Historique
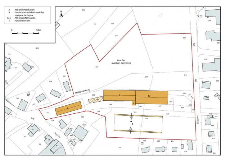
La gare de Frambouhans est bâtie en 1904-1905, dates de construction de la ligne à voie métrique reliant Morteau à Maîche. Validée par le conseil général du Doubs le 19 avril 1898 et déclarée d'utilité publique le 11 janvier 1901, celle-ci est l'oeuvre de la Compagnie des Chemins de Fer régionaux de Franche-Comté, créée le 26 décembre 1903 en remplacement de la Compagnie du Chemin de Fer de Morteau à Maîche (née l'année précédente). La ligne, prolongée jusqu'à Trévillers en 1907 et 1908 (elle compte alors 45 km), ferme le 1er avril 1952. La gare de Frambouhans est achetée par la famille Personeni. En 1965, les quatre frères Joseph, Louis, Jean-Paul et Alexandre Personeni fondent leur entreprise de maçonnerie et construisent deux bâtiments encadrant celui des voyageurs (2014 AC 183). Le bâtiment oriental est doublé en longueur vers l'est entre 1968 et 1975 et la gare démolie entre 1998 et 2001. L'affaire se spécialise dans la construction des maisons individuelles en panneaux de béton armé préfabriqués mais est aussi présente dans le génie civil et les travaux publics. Devenue Entreprise Personeni SA (au capital de 500 000 €) au début des années 1980, elle compte 83 personnes en 2013 et répartit ses activités entre trois lieux : la direction générale, le parc matériel et la charpente à Frambouhans ; l'atelier de préfabrication à Étupes (où il a été transféré en 2002, au 456 avenue du Breuil), le bureau commercial à Montbéliard (10 rue de l'Étuve).
Période(s)
Principale :
- 1er quart 20e siècle
- 3e quart 20e siècle
Date(s)
1904 :
daté par travaux historiques
1965 :
daté par source
1965 :
daté par tradition orale
Auteur(s) & personnalité(s)
Entreprise Personeni. Société de construction et travaux publics créée en 1965 à Frambouhans par quatre frères : Joseph, Louis, Jean-Paul et Alexandre.
Description
Les bâtiments ont des murs en pan de fer et parpaings de béton, avec enduit partiel ou essentage de tôle. La couverture des toits à longs pans et pignons couverts est réalisée en bac acier. Le bâtiment occidental est en rez-de-chaussée avec un étage en surcroît, les deux autres forment un vaisseau à charpente métallique apparente.
Murs :
- béton
- fer
- béton armé
- parpaing de béton
- pan de fer
- enduit partiel
- essentage de tôle
Toit :
- acier en couverture
Etages :
- en rez-de-chaussée
- étage en surcroît
Couvertures :
- toit à longs pans, pignon couvert
- noue
Escalier :
- escalier dans-oeuvre,
Energie utilisée :
- énergie électrique achetée
Source(s) documentaire(s)
-
Frambouhans (Doubs). - La Gare et l'Eglise, 1ère moitié 20e siècle.
Frambouhans (Doubs). - La Gare et l'Eglise, carte postale, s.n., s.d. [1ère moitié 20e siècle], Etablissements C. Lardier éd. à Besançon. Publiée (sous le n° 1826) dans : Boivin, Monique ; Boivin, Jean-Luc ; Edom, Jean. Petits trains à l'assaut du Jura. - 1991, p. 129.Lieu de conservation : Collection particulière : Christian Patois, Frambouhans -
[La gare de Frambouhans, avec train et personnages], entre 1905 et 1913.
[La gare de Frambouhans, avec train et personnages], carte photo, s.n., s.d. [entre 1905 et 1913]. Porte la date 31 octobre 1913 au verso (manuscrite et tampon).Lieu de conservation : Collection particulière : Christian Patois, Frambouhans -
Prises de vues aériennes de l'IGN (20e siècle).
Prises de vues aériennes de l'IGN (20e siècle). Consultables en ligne via le site du Géoportail (www.geoportail.gouv.fr).
-
Annuaire des Entreprises de France, le fichier national des chambres de commerce et d'industrie.
Annuaire des Entreprises de France, le fichier national des chambres de commerce et d'industrie. -
Chemins de Fer régionaux de Franche-Comté, 2014.
Chemins de Fer régionaux de Franche-Comté. Article publié sur Wikipédia (consultation mars 2014 : http://fr.wikipedia.org/wiki/Chemins_de_fer_R%C3%A9gionaux_de_Franche-Comt%C3%A9).
-
Boivin, Monique ; Boivin, Jean-Luc ; Edom, Jean. Petits trains à l'assaut du Jura, 1991.
Boivin, Monique ; Boivin, Jean-Luc ; Edom, Jean. Petits trains à l'assaut du Jura. - [Le Mans] : Cenomane ; [Paris] : la Vie du rail, 1991. 160 p. : ill. ; 31 cm. (Le siècle des petits trains).
À voir
Informations complémentaires
Thématiques :
- patrimoine industriel du Doubs
Aire d’étude et canton :
Pays horloger (le)
Dénomination :
gare, usine d'éléments préfabriqués
Parties constituantes non étudiées :
- aire des matières premières
- atelier de fabrication
- stationnement
- © Région Bourgogne-Franche-Comté, Inventaire du patrimoine
