FROMAGERIE DE PIERREFONTAINE-LES-VARANS
25 - Pierrefontaine-les-Varans
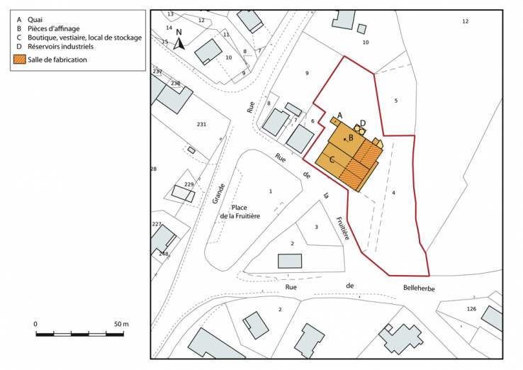
3 rue de la Fruitière
- Dossier IA25001251 réalisé en 2014
- Auteur(s) : Raphaël Favereaux
Historique
Attestées dans la commune en 1847, "trois fromageries de création récente" traitaient annuellement 18 000 litres de lait, pour une production de 15 tonnes de fromage. En 1873, la fruitière fabrique 5000 kg de "fromage de gruyère" et 700 kg de beurre. En 1882, la société de fromagerie de Malpierre fait construire un nouveau bâtiment au nord-est du village. La matrice cadastrale signale la construction d’une chambre froide en 1940. La fromagerie connaît une nouvelle extension en 1963 : la salle de fabrication est reconstruite contre le pignon ouest. Cet agrandissement correspond peut-être à l’équipement de 16 cuves de fabrication pour l’emmental. Un second logement de fromager et des chambres sont aménagées à l’étage. La coopérative fromagère d’Ouvans fusionne vers 1982 avec celle de Pierrefontaine-les-Varans. La fabrication d’emmental est abandonnée en 1994 pour celle du comté. En 1998 ( ?), de nouvelles caves de pré-affinage sont aménagées au nord du bâtiment, équipées d’un quai de chargement.
En 2013, la fruitière a transformé sept millions de litres de lait en comté, soit une production de 17 000 meules. La quantité de lait ramassée à la fromagerie était passée de deux millions de litres en 1929 à cinq millions en 1985. Les quatre cuves, de marque Chalon-Mégard, ont été installées en 1994. Elles ont été rehaussées en 2013 lors de l’automatisation de l’appareil de production, et ont une contenance de 5000 litres. A cette occasion, une palette de pressage de 72 places, un groupe de soutirage sous vide et un tunnel de lavage de marque Chalon-Mégard ont également été installés. Les caves de pré-affinage, où les meules sont gardées 4 à 5 semaines, ont une capacité de 2040 emplacements. Elles ont été équipées en 1998 d’un premier robot de retournement, complété en 2008 d’un robot plus perfectionné (frottage et salage). Le nombre de sociétaires est passé d’une centaine vers 1960, à 40 vers 1990 et 30 aujourd’hui. La fromagerie emploie cinq personnes, dont trois à la production.
- 4e quart 19e siècle
- 2e quart 20e siècle
- 3e quart 20e siècle
- 4e quart 20e siècle
Description
Vraisemblablement construit en moellon de calcaire enduit, le bâtiment primitif est pourvu d’un étage carré. Il est couvert, avec une partie du bâtiment de 1963, d’un toit à longs pans en tuile mécanique. Construit en parpaing de béton enduit et béton armé, ce dernier possède un étage de soubassement, où sont aménagés des garages, et est couvert du toit à deux pans inégaux. La cave de pré-affinage est couverte d’un toit en tôle. Le rez-de-chaussée de la fromagerie comprend, outre la cave de pré-affinage et la salle de fabrication, une entrée, un magasin de vente, un vestiaire, une beurrerie, une chambre froide et un local de stockage.
- calcaire
- béton
- béton
- moellon
- parpaing de béton
- béton armé
- enduit
- enduit
- tuile mécanique
- fer en couverture
- 1 étage carré
- étage de soubassement
- énergie électrique achetée
Source(s) documentaire(s)
-
Courtieu, Jean (dir.). Dictionnaire des communes du département du Doubs, 1982-1987.
Courtieu, Jean (dir.). Dictionnaire des communes du département du Doubs. - Besançon : Cêtre, 1982-1987. 6 t., 3566 p. : ill. ; 24 cm.
-
Girod Bernard, fromager, 2014
Girod Bernard, fromager, 27 mai 2014, Pierrefontaine-les-Varans.
À voir
Informations complémentaires
- patrimoine industriel du Doubs
- atelier de fabrication
- logement
- chaufferie
- pièce d'affinage
- garage
- boutique
- © Région Bourgogne-Franche-Comté, Inventaire du patrimoine
