FROMAGERIE DE LA SEIGNOTTE
25 - Damprichard
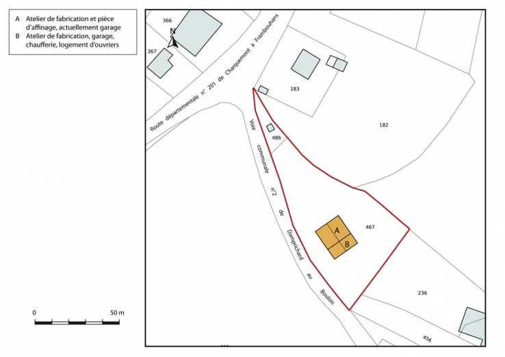
Le Bois en Barre
- Dossier IA25001142 réalisé en 2012 revu en 2013
- Auteur(s) : Laurent Poupard
Historique
Une fromagerie est attestée à la Seignotte en 1820. Les fruitières sont, sur le territoire communal, au nombre de quatre en 1856 (20 000 kg de fromage), de deux en 1875 (45 vaches, 4 500 kg de fromage et 1 300 kg de beurre). En 1919, Octave et François Burnequez s'associent avec Joseph Baume et Arsène Guigon pour créer à la Seignotte une société de fromagerie, qu'ils installent dans une maison en bordure de la route, au carrefour. Ils sont rejoints par d'autres paysans et la fabrication débute en 1922. L'établissement est équipé au milieu du 20e siècle de deux cuves à foyer roulant de la société Thiébaud, de Trévillers, et vend ses meules d'emmental en blanc (avec un affinage réduit à un mois). Le 28 avril 1966, Maurice Duquet, président d'une coopérative qui traite alors 900 000 kg de lait, demande l'autorisation de construire "un chalet fruitière et un logement pour le fromager" en remplacement du bâtiment existant, frappé d'alignement et en mauvais état. La nouvelle fromagerie ouvre en 1968, avec quatre cuves de 1 300 l et un générateur de vapeur. Toutefois, elle ne fonctionne que pendant dix ans et ferme en 1978 par manque de lait. Rattachée à la fromagerie de Charquemont, elle est modifiée en en 1985 et 1987 avec, à cette date, aménagement de caves d'affinage pour 400 meules d'emmental. Elle a depuis été transformée en habitation.
Période(s)
Principale :
- 3e quart 20e siècle
Date(s)
1968 :
daté par travaux historiques
Auteur(s) & personnalité(s)
Description
Le bâtiment, aux murs en parpaings de béton enduits, est coiffé d'un toit à longs pans couvert de tuiles mécaniques. Il est en rez-de-chaussée au nord mais compte, pour le logement du fromager, un étage carré et un comble à surcroît au sud, desservis par un escalier tournant dans-œuvre.
Murs :
- béton
- parpaing de béton
- enduit
Toit :
- tuile mécanique
Etages :
- 1 étage carré
- comble à surcroît
Elévation :
- élévation à travées
Couvertures :
- toit à longs pans, pignon couvert
Escalier :
- escalier dans-oeuvre, escalier tournant à retours,
État de conservation :
- établissement industriel désaffecté
Source(s) documentaire(s)
-
Archives départementales du Doubs : 312 W 6 Établissements classés (1966-1969).
Archives départementales du Doubs : 312 W 6 Établissements classés (1966-1969).Lieu de conservation : Archives départementales du Doubs, Besançon - Cote du document : 312 W 6
-
Section D parcelle 169. Plan de masse [de la fromagerie projetée], [1966].
Section D parcelle 169. Plan de masse [de la fromagerie projetée], dessin (tirage, crayon de couleur), s.n., s.d. [1966], 27 x 21 cm, 1/500.Lieu de conservation : Archives départementales du Doubs, Besançon - Cote du document : 312 W 6 -
Fromagerie de Damprichard « la Seignotte » [plans et élévations], [1966].
Fromagerie de Damprichard « la Seignotte » [plans et élévations], dessin (tirage bleu), s.n., s.d. [1966], 37 x 101 cm, sans échelle (coté).Lieu de conservation : Archives départementales du Doubs, Besançon - Cote du document : 312 W 6
-
Courtieu, Jean (dir.). Dictionnaire des communes du département du Doubs, 1982-1987.
Courtieu, Jean (dir.). Dictionnaire des communes du département du Doubs. - Besançon : Cêtre, 1982-1987. 6 t., 3566 p. : ill. ; 24 cm. -
Narbey, Bernard (dir.). À l'ombre du clocher de Damprichard : la mémoire des siècles passés, 2005.
Narbey, Bernard (dir.). À l'ombre du clocher de Damprichard : la mémoire des siècles passés / Groupes de travail du GHETE « Au Clos du Doubs » et des associations de Damprichard. - Besançon : Groupement d’Études Hommes et Terroirs du Clos du Doubs, 2005. Non paginé [170] p. : ill. ; 30 cm. (Cahier du Clos du Doubs ; n° 6).
À voir
Informations complémentaires
Thématiques :
- patrimoine industriel du Doubs
Aire d’étude et canton :
Pays horloger (le)
Dénomination :
fromagerie
Parties constituantes non étudiées :
- atelier de fabrication
- chaufferie
- logement d'ouvriers
- pièce d'affinage
- garage
- © Région Bourgogne-Franche-Comté, Inventaire du patrimoine
