FONDERIE WYSS ET CIE, ACTUELLEMENT MAGASIN DE COMMERCE
70 - Héricourt
19 rue Marcel Paul
- Dossier IA70000100 réalisé en 2005
- Auteur(s) : Raphaël Favereaux
Historique
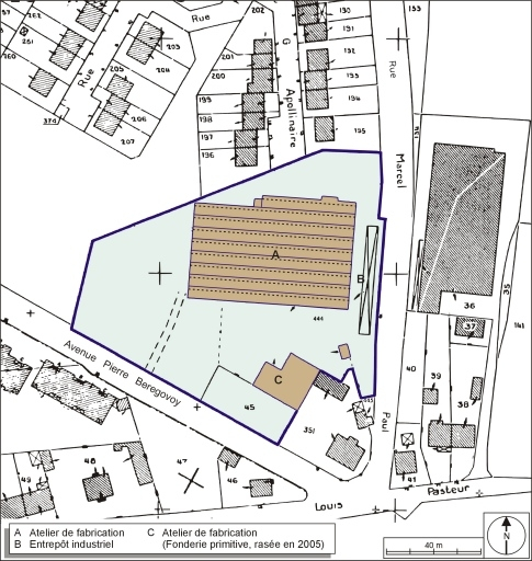
Cette fonderie de seconde fusion est vraisemblablement construite en 1886 par Victor-Gustave Cuvier. Elle est reprise vers 1908 par l'entreprise de fonderie et de construction mécanique Wyss, originaire de Seloncourt (25). L'usine est agrandie au cours de l'année 1920. Des ateliers en rez-de-chaussée couverts de sheds sont construits au nord de l'atelier primitif, qui est alors désaffecté. La fonderie est reprise après 1931 par la société Roth, qui cesse ses activités à la fin des années 1930 ou au début des années 1940. En 1948, les bâtiments sont occupés par la société des Cycles Peugeot (Valentigney, 25), qui installe une chaîne de montage de triporteurs motorisés. Cette production prend fin en 1956. L'établissement est aujourd'hui occupé par une casse automobile. L'atelier primitif de fonderie a été rasé pendant l'été 2005. Mise en place d'un second cubilot en 1920. 27 personnes employées en 1931.
- 4e quart 19e siècle
- 1er quart 20e siècle
Description
Site industriel desservi par embranchement ferroviaire. L'atelier de fabrication est construit en moellon de calcaire enduit, couvert de sheds en tuile mécanique. L'entrepôt industriel situé le long de la rue possède une charpente en bois et un essentage de planches, couvert d'un toit à longs pans.
- calcaire
- moellon
- enduit
- essentage de planches
- tuile mécanique
- verre en couverture
- en rez-de-chaussée
- charpente en bois apparente
- énergie électrique
- achetée
Source(s) documentaire(s)
-
Personnel de la société Cuvier (?).
Personnel de la société Cuvier (?). Photogr., s.d. [début 20e siècle].Lieu de conservation : Médiathèque, Héricourt -
Atelier de mécanique.
Atelier de mécanique. Photogr., s.d. [début 20e siècle].Lieu de conservation : Médiathèque, Héricourt
À voir
Informations complémentaires
- patrimoine industriel de la Haute-Saône
- atelier de fabrication
- entrepôt industriel
- transformateur
- © Région Bourgogne-Franche-Comté, Inventaire du patrimoine
