FONDERIE ET USINE DE PIÈCES DÉTACHÉES EN MATIÈRE PLASTIQUE DES SOCIÉTÉS FABI PUIS BOURBON
25 - Morteau
13 rue du Maréchal Leclerc, 8 rue du Docteur Sauze
- Dossier IA25001143 réalisé en 2012 revu en 2013
- Auteur(s) : Laurent Poupard
Historique
En février 1948, les frères Cairey-Remonnay, Pierre (1905-1984) et Michel (1907-1985), tailleurs au 4 rue Neuve, fondent la société Fabi : Fonderie d’Articles pour Besoins industriels. Ils orientent rapidement leur fonderie de zamak vers la fabrication de pièces pour l’automobile, plus particulièrement pour la société Peugeot : monogrammes, poignées de portes ou de toits ouvrants, éléments de rétroviseurs, etc.
Leur usine du chemin des Lilas s'avérant trop petite, ils en font construire une nouvelle de 1956 à 1958 au 13 rue du Maréchal Leclerc. Celle-ci, qui accueille une première chaîne automatique de chromage (galvanoplastie), doit être agrandie au cours des années 1960 (extension de l’atelier de montage-expédition vers 1963, etc.). La société, qui comptait 215 personnes à la mi 1957, en emploie 250 en 1971 ; c’est alors une SA au capital de 1 500 000 F, disposant d’un bureau à Paris au 10 rue Pergolèse, dans le 16e arrondissement. Elle construit pour son personnel, à la fin des années 1960 ou au tout début des années 1970, des logements rue du Tremplin (immeuble désaffecté), rue du Stand et au 28 rue du Maréchal Leclerc (détruit). En 1973, la crise pétrolière incitant les constructeurs automobiles à alléger les voitures et à privilégier le recours au plastique, la Fabi s’ouvre à la plasturgie : elle édifie un nouveau bâtiment pour abriter ses presses à injecter les matières plastiques (la première, de 300 t, a été acquise l’année précédente). Dix ans plus tard, en 1982, le chiffre d’affaires est partagé à moitié entre zamak et plastique. En 1989 a lieu une prise de participation croisée de Fabi SA dans Bourbon Automobile et de Bourbon Industrie dans Fabi Automobile. Issu d’une entreprise fondée en 1920 par Armand Bourbon à Saint-Lupicin (Jura), le groupe Bourbon s’est développé à partir de 1967 dans les produits en plastique pour le bureau et l’automobile (Renault essentiellement).
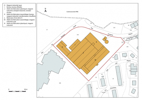
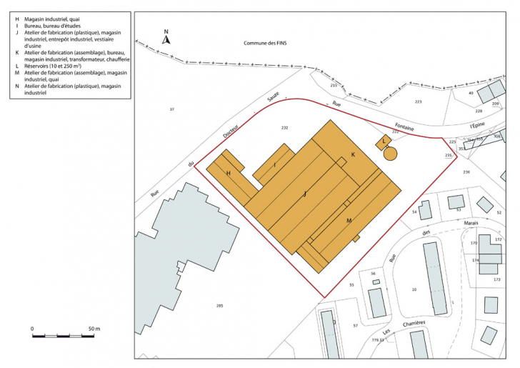
Après de nouvelles extensions au long des rues de la Louhière et du Tremplin, la société ouvre en 1990, au 8 rue du Docteur Sauze, une seconde unité dans laquelle elle transfère son activité plastique. Cette unité est agrandie à l'est en 1995 puis par un corps en retour au nord-ouest en 1999. La Fabi se développe par des prises de participation ou l'achat de sociétés : Unidécor à Saint-Marcellin (Isère) en 1996, à Northampton en Angleterre en 1997, au Portugal en 1999, à Cab en Slovaquie. Absorbée par Bourbon en 2002, elle poursuit sa fabrication de pièces pour l’automobile (commandes d’ouverture de portes, pommeaux de leviers de vitesse, charnières de lunettes ouvrantes, éléments de sièges, etc.), pour les sociétés PSA, BMW, Nissan, Toyota, etc. Elle réalise alors 70 % de son chiffre d’affaires à l’exportation et compte 385 personnes (ils seront en 2008 près de 500 sur les 2300 salariés du groupe). Le site de la rue Maréchal Leclerc est partiellement remanié : rénovation d'un bâtiment pour le laboratoire de métrologie en 2004, construction et rénovation des ateliers à l'est en 2005. En 2011, le groupe Bourbon est acquis par son concurrent Plastivaloire (créé en 1963 par Charles Findeling à Langeais, en Indre-et-Loire) qui, en 2008, avait déjà acheté la société Key Plastics Europe (devenue Automotive Plastics). Il prend le nom de Bourbon Automotive Plastics et, en 2013, emploie 410 personnes à Morteau. Il y dispose d’un parc machine de 22 presses à injection pour matières plastiques (de 50 à 800 t) sur le site Sauze, de 13 presses zamak de 20 à 200 t (4 sur le site Leclerc et 9 sur l'autre), de deux chaines de revêtement cuivre-nickel-chrome (sur le site de la rue Maréchal Leclerc) - installation réduite en 2014-2015 à une chaîne modernisée et plus performante -, de machines d’usinage, de marquage à chaud, etc.
- 3e quart 20e siècle
- 4e quart 20e siècle
- 1er quart 21e siècle
- 1er quart 21e siècle
Description
Suivant leur période de construction ou de rénovation, les bâtiments ont des murs en pan de béton armé avec remplissage de parpaings de béton, en béton coulé ou en pan de fer, protégés par un enduit ou un essentage de tôle. Ils sont coiffés d'une terrasse en béton ou d'un toit à longs pans, recouvert de plaques de ciment-amiante ondulées ou de shingle (rue du Maréchal Leclerc) ou encore de bacs en acier (rue du Docteur Sauze). Ils s'élèvent généralement sur deux niveaux (étage de soubassement et rez-de-chaussée surélevé rue du Docteur Sauze), voire trois (bureaux comptant deux étages carrés rue Leclerc).
- béton
- fer
- parpaing de béton
- béton armé
- pan de béton armé
- pan de fer
- enduit
- essentage de tôle
- matériau synthétique en couverture
- béton en couverture
- ciment amiante en couverture
- acier en couverture
- 2 étages carrés
- charpente métallique apparente
- élévation à travées
- toit à longs pans, pignon couvert
- pignon découvert
- appentis
- escalier dans-oeuvre, escalier tournant à retours avec jour, en maçonnerie
- ascenseur
- énergie électrique achetée
Source(s) documentaire(s)
-
Archives départementales du Doubs : 3 P 412 Cadastre de la commune de Morteau. 1816-1978.
Archives départementales du Doubs : 3 P 412 Cadastre de la commune de Morteau. 1816-1978. - 3 P 412 : Atlas parcellaire (11 feuilles), dessin (plume, lavis), par les géomètres du cadastre Girardier et Mestre, 1816-1817. - 3 P 412/1 : Registre des états de sections, 1818. - 3 P 412/4-5 : Matrice cadastrale des propriétés bâties et non bâties, 1823-1875. Le 1er volume manque. - 3 P 412/2-3 : Matrice cadastrale des propriétés bâties et non bâties, 1876-1914. - 3 P 412/6 : Matrice cadastrale des propriétés bâties, 1882-1910. - 3 P 412/7-9 : Matrice cadastrale des propriétés non bâties, 1911-1965. - 3 P 412/10-13 : Matrice cadastrale des propriétés bâties, 1911-1978.Lieu de conservation : Archives départementales du Doubs, Besançon - Cote du document : 3 P 412 -
Archives départementales du Doubs : 1132 W 389 Établissements classés (20e siècle).
Archives départementales du Doubs : 1132 W 389 Établissements classés (20e siècle).Lieu de conservation : Archives départementales du Doubs, Besançon - Cote du document : 1132 W 389
-
Prises de vues aériennes de l'IGN (20e siècle).
Prises de vues aériennes de l'IGN (20e siècle). Consultables en ligne via le site du Géoportail (www.geoportail.gouv.fr).
-
Guichard, Jean-Marie. Recherches généalogiques.
Guichard, Jean-Marie. Recherches généalogiques. Accessibles en ligne sur le site de Geneanet : http://gw.geneanet.org/
-
Chambre de Commerce de Besançon et du Doubs. L’évolution économique et sociale du Doubs au cours de l’année 1956, juillet-août 1957.
Chambre de Commerce de Besançon et du Doubs. L’évolution économique et sociale du Doubs au cours de l’année 1956. Économie et réalités franc-comtoises. Supplément, n° 6, juillet-août 1957, p. 10. -
Chevalier, Michel. Tableau industriel de la Franche-Comté (1960-1961). 1961.
Chevalier, Michel. Tableau industriel de la Franche-Comté (1960-1961). Paris : les Belles lettres, 1961. 101 p. : cartes ; 24 cm. (Annales littéraires de l’Université de Besançon. Cahiers de géographie de Besançon ; 9). -
Gallant, Nicolas. Avec le rachat de Bourbon, Plastivaloire double de taille, 28 décembre 2010.
Gallant, Nicolas. Avec le rachat de Bourbon, Plastivaloire double de taille. Capital, 28 décembre 2010. Article accessible en ligne (http://www.capital.fr/bourse/interviews/avec-le-rachat-de-bourbon-plastivaloire-double-de-taille-559508). -
Hauser, Jean-François. Fabi Automobile : l'histoire d'une saga familiale, 1er septembre 2008.
Hauser, Jean-François. Fabi Automobile : l'histoire d'une saga familiale. C'est-à-dire, le journal du Haut-Doubs, n° 135, 1er septembre 2008, p. 9-14 : ill. -
Leiser, Henri ; Jacquot, Didier. Morteau et environs d'hier à aujourd'hui, 2010.
Leiser, Henri ; Jacquot, Didier. Morteau et environs d'hier à aujourd'hui. - Pontarlier : Presses du Belvédère, 2010. 188 p. : ill. ; 24 cm. -
Mazeau, Céline. Morteau mise sur le chrome, 24 octobre 2014.
Mazeau, Céline. Morteau mise sur le chrome. L'Est républicain, édition du Doubs, vendredi 24 octobre 2014 : ill.
-
Marguier, Alain (témoignage oral)
Marguier, Alain. Responsable technique de la société Bourbon Automotive Plastics. Morteau, 2013.
À voir
Informations complémentaires
- patrimoine industriel du Doubs
- atelier de conditionnement
- atelier de fabrication
- atelier de réparation
- bureau
- bureau d'études
- cantine
- chaufferie
- entrepôt industriel
- laboratoire
- logement d'ouvriers
- magasin industriel
- stationnement
- vestiaire d'usine
- garage
- réservoir
- quai
- transformateur
- © Région Bourgogne-Franche-Comté, Inventaire du patrimoine
