FILATURE ET TISSAGE DE COTON DORGET (USINE DU BAS), ACTUELLEMENT USINE DE MEUBLES GAÏO ET TRÉFILERIE DE LA SOCIÉTÉ EUROPÉENNE DE CONSTRUCTION (SEC)
70 - La Longine
5 à 9 avenue Carlos Dorget
- Dossier IA70000117 réalisé en 2005
- Auteur(s) : Raphaël Favereaux
Historique
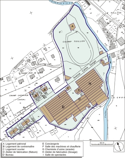
Fondée vers 1860, la société textile Dorget a créé un tissage mécanique de coton dans le haut du village (IA70000118). Elle entreprend vers 1926 la construction d'une filature de coton, le long de la route départementale n°106 (dite usine du Bas). Peut-être implantée dans les locaux ou à l'emplacement d'une ancienne menuiserie, cette nouvelle usine est alimentée par l'électricité produite au tissage du Haut (aménagement de chutes et mise en place de turbines). Des logements d'ouvriers et de contremaîtres, ainsi qu'une salle de spectacle, sont également édifiés à cette époque le long de la route départementale. L'établissement est agrandi d'un atelier de tissage, construit en 1934. Le matériel est modernisé en 1938 et après la Seconde Guerre mondiale, et la capacité de production de la filature passe de 12 000 à 22 000, puis 25 000 broches. A la même époque, des bureaux sont construits à la jonction des ateliers de filature et de tissage. La production annuelle de la filature est portée à près de 1400 tonnes dans les années 1960. L'usine a cessé toute activité en 1987. La partie occidentale de l'usine (filature) a été occupée de suite par la Société Européenne de Construction (étirage et tréfilage de tiges filetées) et la partie orientale (tissage), en 1992, par le fabricant de meubles de cuisine et de salle de bains Gaïo. Présence de 12 000 broches en 1929 (n° de chaîne et de trame de 14 à 37). Un moteur diesel de 250 ch est attesté en 1937. 243 personnes, y compris les employés du tissage du Haut, sont employées en 1931. L'usine compte 300 personnes dans les années 1960, réparties pour moitié dans le tissage et la filature, contre environ 200 personnes à la fermeture. En 2005, la société Gaïo emploie 28 personnes, et 47 à la Société Européenne de Construction.
- 2e quart 20e siècle
- 2e moitié 20e siècle
Description
Les ateliers de fabrication sont construits en moellon de grès enduit, en rez-de-chaussée couverts de sheds. Les pignons exposés à l'ouest sont protégés par un essentage métallique. La salle des machines, en moellon de grès enduit, est couverte de toits à longs pans en tuile mécanique. La cheminée, en brique, a été arasée. La conciergerie possède un étage en surcroît. Les deux maisons ouvrières situées aux n°11 à 15 et 17 à 25 abritaient chacune dix logements. Elles possèdent un étage carré et sont desservies par quatre entrées en façade et deux escaliers extérieurs sur les pignons. Deux autres maisons, situées aux n°8 à 10 et 12 à 14, abritaient chacune quatre logements d'employés et de contremaître. Les ateliers du tissage ont été agrandis par des bâtiments en parpaing de béton, couverts en ciment amiante.
- grès
- brique
- béton
- moellon
- parpaing de béton
- enduit
- essentage de tôle
- essentage de ciment amiante
- tuile mécanique
- ciment amiante en couverture
- verre en couverture
- 1 étage carré
- énergie hydraulique produite sur place turbine hydraulique
- énergie thermique produite sur place
- énergie électrique achetée
À voir
Informations complémentaires
- patrimoine industriel de la Haute-Saône
- atelier de fabrication
- salle des machines
- cheminée d'usine
- transformateur
- conciergerie
- bureau
- logement d'ouvriers
- logement de contremaître
- logement patronal
- salle de spectacle
- © Région Bourgogne-Franche-Comté, Inventaire du patrimoine
