FILATURE DE SOIE, PUIS DE LAINE, PUIS TISSAGE DE COTON (USINE DU RADDON), ACTUELLEMENT ATELIER ET CENTRALE HYDROÉLECTRIQUE
70 - Belonchamp
Le Raddon
- Dossier IA70000131 réalisé en 2005
- Auteur(s) : Raphaël Favereaux
Historique
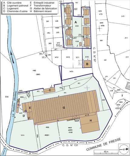
La filature de bourre de soie (ou chappe) est construite vers 1893 par la société anonyme "Filature de bourre de soie de Mélisey", administrée par le sieur Albin Kientzy. Elle est reprise en 1911 par la société anonyme de Peignages et Filature de bourre de soie, mais cesse ses activités vers 1914. Acquise en 1918 par un industriel du nord de la France, M. Doyen, l'usine est convertie en filature de laine. Cette dernière ne semble pas avoir fonctionné longtemps, puisqu'un tissage de coton est mentionné en 1931. Après sa fermeture en 1967, le site est successivement occupé par les sociétés Spéri-France (tissus industriels synthétiques ignifuges), Gauthier (peinture) et Madec (fonderie). Une partie des bâtiments abrite aujourd'hui un atelier de fonderie. Le bâtiment d'eau renferme une petite centrale hydroélectrique. Une cité ouvrière, composée de 8 maisons, a été édifiée à l'ouest de l'usine au début du 20e siècle.
Demande d'installation d'une chaudière à vapeur pour le vaporisage du fil de soie en 1893. Une chaudière à vapeur Sulzer (Winterthur, Suisse) est autorisée en 1938. Une turbine hydraulique est attestée en 1997.
Environ 90 ouvriers sont employés en 1918, contre 146 personnes en 1931.
Période(s)
Principale :
- 4e quart 19e siècle
- 1er quart 20e siècle
Description
Les ateliers de fabrication sont construits en rez-de-chaussée et couverts de toits à longs pans en tuile mécanique. Les maisons de la cité ouvrière sont en moellon de grès enduit, avec sous-sol, étage en surcroît, toit à longs pans, demi-croupe et tuile mécanique.
Murs :
- pierre
- brique
- moellon
- enduit
Toit :
- tuile mécanique
Etages :
- étage en surcroît
Energie utilisée :
- énergie hydraulique produite sur place
- énergie thermique produite sur place
- énergie électrique achetée
À voir
Informations complémentaires
Thématiques :
- patrimoine industriel de la Haute-Saône
Aire d’étude et canton :
Haute-Saône
Hydrographie :
dérivation du Raddon
Dénomination :
filature
Parties constituantes non étudiées :
- atelier de fabrication
- chaufferie
- cité ouvrière
- logement
- conduite forcée
- © Région Bourgogne-Franche-Comté, Inventaire du patrimoine
