Carte de localisation. Carte topographique au 1:25000, I.G.N., Jussey, 3320 O. SCAN 25 © IGN - 2008, Licence n°2008CISE29-68.
70, Demangevelle, 1 rue de la Gare, lieudit : Bois de la Fourmi
N° de l’illustration : 20087000399NUDA
Date : 2008
Auteur : André Céréza
Reproduction soumise à autorisation du titulaire des droits d'exploitation
- © Région Bourgogne-Franche-Comté, Inventaire du patrimoine
Plan de situation. Extrait du plan cadastral numérisé, 2008, section B, 1:1250 réduit à 1:4000. Source : Direction générale des Finances Publiques - Cadastre ; mise à jour : 2008.
70, Demangevelle, 1 rue de la Gare, lieudit : Bois de la Fourmi
N° de l’illustration : 20087001046NUDA
Date : 2008
Auteur : André Céréza
Reproduction soumise à autorisation du titulaire des droits d'exploitation
- © Région Bourgogne-Franche-Comté, Inventaire du patrimoine
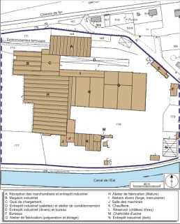
Plan-masse de l'usine. Extrait du plan cadastral numérisé, 2008, section B, 1:1250 réduit à 1:1500. Source : Direction générale des Finances Publiques - Cadastre ; mise à jour : 2008.
70, Demangevelle, 1 rue de la Gare, lieudit : Bois de la Fourmi
N° de l’illustration : 20087000476NUDA
Date : 2008
Auteur : André Céréza
Reproduction soumise à autorisation du titulaire des droits d'exploitation
- © Région Bourgogne-Franche-Comté, Inventaire du patrimoine
Demangevelle. - Vue de la filature en construction.
70, Demangevelle, 1 rue de la Gare, lieudit : Bois de la Fourmi
-
Carte postale, s.n., A. Milton éd., s.d. [1911]
- Cote du document : Archives privées N. Cousin
N° de l’illustration : 20077000684NUCA
Date : 2007
Auteur : Jérôme Mongreville (reproduction)
Reproduction soumise à autorisation du titulaire des droits d'exploitation
- © Région Bourgogne-Franche-Comté, Inventaire du patrimoine
Demangevelle (Hte-Saône) - Le canal.
70, Demangevelle, 1 rue de la Gare, lieudit : Bois de la Fourmi
-
Carte postale, s.n., Bauer-Marchet et Cie éd. (Dijon), s.d. [1911]
- Cote du document : Archives privées N. Cousin
N° de l’illustration : 20077000685NUCA
Date : 2007
Auteur : Jérôme Mongreville (reproduction)
Reproduction soumise à autorisation du titulaire des droits d'exploitation
- © Région Bourgogne-Franche-Comté, Inventaire du patrimoine
Vauvillers (Hte-Saône). - Les usines de Demangevelle.
70, Demangevelle, 1 rue de la Gare, lieudit : Bois de la Fourmi
-
Carte postale, s.n, s.d. [vers 1920]
Lieu de conservation : Archives départementales du Doubs, Besançon - Cote du document : 6 Fi70526 2
N° de l’illustration : 20067000197NUCA
Date : 2006
Auteur : Jérôme Mongreville (reproduction)
Reproduction soumise à autorisation du titulaire des droits d'exploitation
- © Région Bourgogne-Franche-Comté, Inventaire du patrimoine
Vue générale des usines de la société Filature de Demangevelle.
70, Demangevelle, 1 rue de la Gare, lieudit : Bois de la Fourmi
-
Photographie, cliché des Entreprises Photo-aériennes, s.d. [1929].
N° de l’illustration : 20077000699NUCA
Date : 2007
Auteur : Jérôme Mongreville (reproduction)
Reproduction soumise à autorisation du titulaire des droits d'exploitation
- © Région Bourgogne-Franche-Comté, Inventaire du patrimoine
[Vue aérienne des équipements sociaux et de la cité ouvrière].
70, Demangevelle, 1 rue de la Gare, lieudit : Bois de la Fourmi
-
Photographie, cliché des Entreprises Photo-aériennes, s.d. [1929].
N° de l’illustration : 20077000700NUCA
Date : 2007
Auteur : Jérôme Mongreville (reproduction)
Reproduction soumise à autorisation du titulaire des droits d'exploitation
- © Région Bourgogne-Franche-Comté, Inventaire du patrimoine
[Vues intérieures des ateliers].
70, Demangevelle, 1 rue de la Gare, lieudit : Bois de la Fourmi
-
Photographie, cliché des Entreprises Photo-aériennes, s.d. [1929].
N° de l’illustration : 20077000701NUCA
Date : 2007
Auteur : Jérôme Mongreville (reproduction)
Reproduction soumise à autorisation du titulaire des droits d'exploitation
- © Région Bourgogne-Franche-Comté, Inventaire du patrimoine
Vue d'ensemble depuis le sud du canal.
70, Demangevelle, 1 rue de la Gare, lieudit : Bois de la Fourmi
N° de l’illustration : 20077000562NUCA
Date : 2007
Auteur : Jérôme Mongreville
Reproduction soumise à autorisation du titulaire des droits d'exploitation
- © Région Bourgogne-Franche-Comté, Inventaire du patrimoine
L'usine et le canal.
N° de l’illustration : 20077000561NUCA
Date : 2007
Auteur : Jérôme Mongreville
Reproduction soumise à autorisation du titulaire des droits d'exploitation
- © Région Bourgogne-Franche-Comté, Inventaire du patrimoine
Atelier de filature et entrepôt industriel depuis le sud.
70, Demangevelle, 1 rue de la Gare, lieudit : Bois de la Fourmi
N° de l’illustration : 20097000744NUC2A
Date : 2009
Auteur : Jérôme Mongreville
Reproduction soumise à autorisation du titulaire des droits d'exploitation
- © Région Bourgogne-Franche-Comté, Inventaire du patrimoine
Atelier de filature vu de trois quarts gauche.
70, Demangevelle, 1 rue de la Gare, lieudit : Bois de la Fourmi
N° de l’illustration : 20097000722NUC2A
Date : 2009
Auteur : Jérôme Mongreville
Reproduction soumise à autorisation du titulaire des droits d'exploitation
- © Région Bourgogne-Franche-Comté, Inventaire du patrimoine
Vue plongeante sur l'atelier de filature.
70, Demangevelle, 1 rue de la Gare, lieudit : Bois de la Fourmi
N° de l’illustration : 20097000745NUC2A
Date : 2009
Auteur : Jérôme Mongreville
Reproduction soumise à autorisation du titulaire des droits d'exploitation
- © Région Bourgogne-Franche-Comté, Inventaire du patrimoine
Entrée de l'atelier de filature.
70, Demangevelle, 1 rue de la Gare, lieudit : Bois de la Fourmi
N° de l’illustration : 20097000721NUC2A
Date : 2009
Auteur : Jérôme Mongreville
Reproduction soumise à autorisation du titulaire des droits d'exploitation
- © Région Bourgogne-Franche-Comté, Inventaire du patrimoine
Atelier de filature. Pignons segmentaires de la façade sud.
70, Demangevelle, 1 rue de la Gare, lieudit : Bois de la Fourmi
N° de l’illustration : 20097000723NUC2A
Date : 2009
Auteur : Jérôme Mongreville
Reproduction soumise à autorisation du titulaire des droits d'exploitation
- © Région Bourgogne-Franche-Comté, Inventaire du patrimoine
Façade nord de l'atelier de filature.
70, Demangevelle, 1 rue de la Gare, lieudit : Bois de la Fourmi
N° de l’illustration : 20097000730NUC2A
Date : 2009
Auteur : Jérôme Mongreville
Reproduction soumise à autorisation du titulaire des droits d'exploitation
- © Région Bourgogne-Franche-Comté, Inventaire du patrimoine
Ateliers divers (forge, menuiserie).
70, Demangevelle, 1 rue de la Gare, lieudit : Bois de la Fourmi
N° de l’illustration : 20097000731NUC2A
Date : 2009
Auteur : Jérôme Mongreville
Reproduction soumise à autorisation du titulaire des droits d'exploitation
- © Région Bourgogne-Franche-Comté, Inventaire du patrimoine
Entrepôt industriel nord.
70, Demangevelle, 1 rue de la Gare, lieudit : Bois de la Fourmi
N° de l’illustration : 20097000732NUC2A
Date : 2009
Auteur : Jérôme Mongreville
Reproduction soumise à autorisation du titulaire des droits d'exploitation
- © Région Bourgogne-Franche-Comté, Inventaire du patrimoine
Fermes de la charpente de l'entrepôt industriel.
70, Demangevelle, 1 rue de la Gare, lieudit : Bois de la Fourmi
N° de l’illustration : 20097000733NUC2A
Date : 2009
Auteur : Jérôme Mongreville
Reproduction soumise à autorisation du titulaire des droits d'exploitation
- © Région Bourgogne-Franche-Comté, Inventaire du patrimoine
Entrepôt industriel vu de trois quarts.
70, Demangevelle, 1 rue de la Gare, lieudit : Bois de la Fourmi
N° de l’illustration : 20097000742NUC2A
Date : 2009
Auteur : Jérôme Mongreville
Reproduction soumise à autorisation du titulaire des droits d'exploitation
- © Région Bourgogne-Franche-Comté, Inventaire du patrimoine
Bâtiments techniques depuis le sud.
70, Demangevelle, 1 rue de la Gare, lieudit : Bois de la Fourmi
N° de l’illustration : 20077000560NUCA
Date : 2007
Auteur : Jérôme Mongreville
Reproduction soumise à autorisation du titulaire des droits d'exploitation
- © Région Bourgogne-Franche-Comté, Inventaire du patrimoine
Bâtiments techniques vus de trois quarts.
70, Demangevelle, 1 rue de la Gare, lieudit : Bois de la Fourmi
N° de l’illustration : 20077000563NUCA
Date : 2007
Auteur : Jérôme Mongreville
Reproduction soumise à autorisation du titulaire des droits d'exploitation
- © Région Bourgogne-Franche-Comté, Inventaire du patrimoine
Chaufferie, château d'eau et cheminée depuis le sud-est.
70, Demangevelle, 1 rue de la Gare, lieudit : Bois de la Fourmi
N° de l’illustration : 20077000559NUCA
Date : 2007
Auteur : Jérôme Mongreville
Reproduction soumise à autorisation du titulaire des droits d'exploitation
- © Région Bourgogne-Franche-Comté, Inventaire du patrimoine
Chaufferie, réservoirs industriels et cheminée vus de trois quarts droite.
70, Demangevelle, 1 rue de la Gare, lieudit : Bois de la Fourmi
N° de l’illustration : 20097000724NUC2A
Date : 2009
Auteur : Jérôme Mongreville
Reproduction soumise à autorisation du titulaire des droits d'exploitation
- © Région Bourgogne-Franche-Comté, Inventaire du patrimoine
Façades sud de la salle des machines et de la chaufferie.
70, Demangevelle, 1 rue de la Gare, lieudit : Bois de la Fourmi
N° de l’illustration : 20097000727NUC2A
Date : 2009
Auteur : Jérôme Mongreville
Reproduction soumise à autorisation du titulaire des droits d'exploitation
- © Région Bourgogne-Franche-Comté, Inventaire du patrimoine
Façade sud de la salle des machines à vapeur.
70, Demangevelle, 1 rue de la Gare, lieudit : Bois de la Fourmi
N° de l’illustration : 20097000729NUC2A
Date : 2009
Auteur : Jérôme Mongreville
Reproduction soumise à autorisation du titulaire des droits d'exploitation
- © Région Bourgogne-Franche-Comté, Inventaire du patrimoine
Pignons de la chaufferie.
70, Demangevelle, 1 rue de la Gare, lieudit : Bois de la Fourmi
N° de l’illustration : 20097000728NUC2A
Date : 2009
Auteur : Jérôme Mongreville
Reproduction soumise à autorisation du titulaire des droits d'exploitation
- © Région Bourgogne-Franche-Comté, Inventaire du patrimoine
Cheminée et château d'eau.
70, Demangevelle, 1 rue de la Gare, lieudit : Bois de la Fourmi
N° de l’illustration : 20097000726NUC2A
Date : 2009
Auteur : Jérôme Mongreville
Reproduction soumise à autorisation du titulaire des droits d'exploitation
- © Région Bourgogne-Franche-Comté, Inventaire du patrimoine
Partie supérieure de la cheminée et du château d'eau.
70, Demangevelle, 1 rue de la Gare, lieudit : Bois de la Fourmi
N° de l’illustration : 20097000725NUC2A
Date : 2009
Auteur : Jérôme Mongreville
Reproduction soumise à autorisation du titulaire des droits d'exploitation
- © Région Bourgogne-Franche-Comté, Inventaire du patrimoine
Atelier désaffecté de la filature.
70, Demangevelle, 1 rue de la Gare, lieudit : Bois de la Fourmi
N° de l’illustration : 20097000741NUC2A
Date : 2009
Auteur : Jérôme Mongreville
Reproduction soumise à autorisation du titulaire des droits d'exploitation
- © Région Bourgogne-Franche-Comté, Inventaire du patrimoine
Intérieur d'atelier. Pots de filature et continus à filer.
70, Demangevelle, 1 rue de la Gare, lieudit : Bois de la Fourmi
N° de l’illustration : 20097000739NUC2A
Date : 2009
Auteur : Jérôme Mongreville
Reproduction soumise à autorisation du titulaire des droits d'exploitation
- © Région Bourgogne-Franche-Comté, Inventaire du patrimoine
Atelier de filature. Parties supérieures des pots.
70, Demangevelle, 1 rue de la Gare, lieudit : Bois de la Fourmi
N° de l’illustration : 20097000740NUC2A
Date : 2009
Auteur : Jérôme Mongreville
Reproduction soumise à autorisation du titulaire des droits d'exploitation
- © Région Bourgogne-Franche-Comté, Inventaire du patrimoine
Continu à filer Schlafhorst, modèle Autocoro.
70, Demangevelle, 1 rue de la Gare, lieudit : Bois de la Fourmi
N° de l’illustration : 20097000735NUC2A
Date : 2009
Auteur : Jérôme Mongreville
Reproduction soumise à autorisation du titulaire des droits d'exploitation
- © Région Bourgogne-Franche-Comté, Inventaire du patrimoine
Deux lignes de continus à filer Schlafhorst, modèle Autocoro.
70, Demangevelle, 1 rue de la Gare, lieudit : Bois de la Fourmi
N° de l’illustration : 20097000738NUC2A
Date : 2009
Auteur : Jérôme Mongreville
Reproduction soumise à autorisation du titulaire des droits d'exploitation
- © Région Bourgogne-Franche-Comté, Inventaire du patrimoine
Têtes de lignes des continus à filer Autocoro.
70, Demangevelle, 1 rue de la Gare, lieudit : Bois de la Fourmi
N° de l’illustration : 20097000734NUC2A
Date : 2009
Auteur : Jérôme Mongreville
Reproduction soumise à autorisation du titulaire des droits d'exploitation
- © Région Bourgogne-Franche-Comté, Inventaire du patrimoine
Têtes de continu à filer Autocoro.
70, Demangevelle, 1 rue de la Gare, lieudit : Bois de la Fourmi
N° de l’illustration : 20097000737NUC2A
Date : 2009
Auteur : Jérôme Mongreville
Reproduction soumise à autorisation du titulaire des droits d'exploitation
- © Région Bourgogne-Franche-Comté, Inventaire du patrimoine
Détail d'une tête de continu à filer Autocoro.
70, Demangevelle, 1 rue de la Gare, lieudit : Bois de la Fourmi
N° de l’illustration : 20097000736NUC2A
Date : 2009
Auteur : Jérôme Mongreville
Reproduction soumise à autorisation du titulaire des droits d'exploitation
- © Région Bourgogne-Franche-Comté, Inventaire du patrimoine
Bureaux et logement. Vue de trois quarts droite.
70, Demangevelle, 1 rue de la Gare, lieudit : Bois de la Fourmi
N° de l’illustration : 20097000743NUC2A
Date : 2009
Auteur : Jérôme Mongreville
Reproduction soumise à autorisation du titulaire des droits d'exploitation
- © Région Bourgogne-Franche-Comté, Inventaire du patrimoine
Bureaux et logement. Vue de trois quarts gauche.
70, Demangevelle, 1 rue de la Gare, lieudit : Bois de la Fourmi
N° de l’illustration : 20097000746NUC2A
Date : 2009
Auteur : Jérôme Mongreville
Reproduction soumise à autorisation du titulaire des droits d'exploitation
- © Région Bourgogne-Franche-Comté, Inventaire du patrimoine
Cité ouvrière vue depuis le canal, à l'est.
70, Demangevelle, 1 rue de la Gare, lieudit : Bois de la Fourmi
N° de l’illustration : 20077000554NUCA
Date : 2007
Auteur : Jérôme Mongreville
Reproduction soumise à autorisation du titulaire des droits d'exploitation
- © Région Bourgogne-Franche-Comté, Inventaire du patrimoine
Cité ouvrière, depuis l'ouest.
70, Demangevelle, 1 rue de la Gare, lieudit : Bois de la Fourmi
N° de l’illustration : 20077000558NUCA
Date : 2007
Auteur : Jérôme Mongreville
Reproduction soumise à autorisation du titulaire des droits d'exploitation
- © Région Bourgogne-Franche-Comté, Inventaire du patrimoine
Maisons de la cité ouvrière, depuis le canal.
70, Demangevelle, 1 rue de la Gare, lieudit : Bois de la Fourmi
N° de l’illustration : 20077000551NUCA
Date : 2007
Auteur : Jérôme Mongreville
Reproduction soumise à autorisation du titulaire des droits d'exploitation
- © Région Bourgogne-Franche-Comté, Inventaire du patrimoine
Maison C de la cité ouvrière.
70, Demangevelle, 1 rue de la Gare, lieudit : Bois de la Fourmi
N° de l’illustration : 20077000555NUCA
Date : 2007
Auteur : Jérôme Mongreville
Reproduction soumise à autorisation du titulaire des droits d'exploitation
- © Région Bourgogne-Franche-Comté, Inventaire du patrimoine
Maison C de la cité ouvrière, vue depuis le sud-est.
70, Demangevelle, 1 rue de la Gare, lieudit : Bois de la Fourmi
N° de l’illustration : 20077000552NUCA
Date : 2007
Auteur : Jérôme Mongreville
Reproduction soumise à autorisation du titulaire des droits d'exploitation
- © Région Bourgogne-Franche-Comté, Inventaire du patrimoine
Maison I de la cité ouvrière.
70, Demangevelle, 1 rue de la Gare, lieudit : Bois de la Fourmi
N° de l’illustration : 20077000553NUCA
Date : 2007
Auteur : Jérôme Mongreville
Reproduction soumise à autorisation du titulaire des droits d'exploitation
- © Région Bourgogne-Franche-Comté, Inventaire du patrimoine
Maison B de la cité ouvrière.
70, Demangevelle, 1 rue de la Gare, lieudit : Bois de la Fourmi
N° de l’illustration : 20077000556NUCA
Date : 2007
Auteur : Jérôme Mongreville
Reproduction soumise à autorisation du titulaire des droits d'exploitation
- © Région Bourgogne-Franche-Comté, Inventaire du patrimoine
Maison G de la cité ouvrière.
70, Demangevelle, 1 rue de la Gare, lieudit : Bois de la Fourmi
N° de l’illustration : 20077000557NUCA
Date : 2007
Auteur : Jérôme Mongreville
Reproduction soumise à autorisation du titulaire des droits d'exploitation
- © Région Bourgogne-Franche-Comté, Inventaire du patrimoine
Maison ouvrière A de la cité ouvrière (rue du Coney).
70, Demangevelle, 1 rue de la Gare, lieudit : Bois de la Fourmi
N° de l’illustration : 20077000564NUCA
Date : 2007
Auteur : Jérôme Mongreville
Reproduction soumise à autorisation du titulaire des droits d'exploitation
- © Région Bourgogne-Franche-Comté, Inventaire du patrimoine
La garderie d'enfants, depuis l'est.
70, Demangevelle, 1 rue de la Gare, lieudit : Bois de la Fourmi
N° de l’illustration : 20077000550NUCA
Date : 2007
Auteur : Jérôme Mongreville
Reproduction soumise à autorisation du titulaire des droits d'exploitation
- © Région Bourgogne-Franche-Comté, Inventaire du patrimoine
Kiosque du parc.
70, Demangevelle, 1 rue de la Gare, lieudit : Bois de la Fourmi
N° de l’illustration : 20097000720NUC2A
Date : 2009
Auteur : Jérôme Mongreville
Reproduction soumise à autorisation du titulaire des droits d'exploitation
- © Région Bourgogne-Franche-Comté, Inventaire du patrimoine
Maisons ouvrières (centre village).
70, Demangevelle, 1 rue de la Gare, lieudit : Bois de la Fourmi
N° de l’illustration : 20077000548NUCA
Date : 2007
Auteur : Jérôme Mongreville
Reproduction soumise à autorisation du titulaire des droits d'exploitation
- © Région Bourgogne-Franche-Comté, Inventaire du patrimoine
Maison ouvrière N au centre du village (24 Grande Rue).
70, Demangevelle, 1 rue de la Gare, lieudit : Bois de la Fourmi
N° de l’illustration : 20077000546NUCA
Date : 2007
Auteur : Jérôme Mongreville
Reproduction soumise à autorisation du titulaire des droits d'exploitation
- © Région Bourgogne-Franche-Comté, Inventaire du patrimoine
Maison ouvrière L au centre du village (4 rue du Coney).
70, Demangevelle, 1 rue de la Gare, lieudit : Bois de la Fourmi
N° de l’illustration : 20077000549NUCA
Date : 2007
Auteur : Jérôme Mongreville
Reproduction soumise à autorisation du titulaire des droits d'exploitation
- © Région Bourgogne-Franche-Comté, Inventaire du patrimoine
Théâtre Jacqueline Bordot
70, Demangevelle, 1 rue de la Gare, lieudit : Bois de la Fourmi
N° de l’illustration : 20077000547NUCA
Date : 2007
Auteur : Jérôme Mongreville
Reproduction soumise à autorisation du titulaire des droits d'exploitation
- © Région Bourgogne-Franche-Comté, Inventaire du patrimoine