FERME
25 - Villers-sous-Chalamont
Montorge
- Dossier IA00014120 réalisé en 1975
- Auteur(s) : Liliane Hamelin, Bernard Lardière, Gilbert Poinsot
Historique
Ferme datée 1736 ; dépendance agricole 19e siècle (après 1816) ; monogramme AB
Période(s)
Principale :
- 2e quart 18e siècle
- 19e siècle
Date(s)
1736 :
porte la date
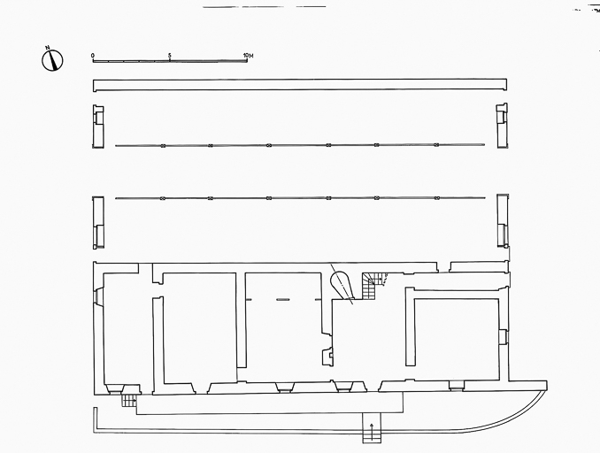
Description
Murs :
- calcaire
- moellon
- enduit
Toit :
- tuile mécanique
Etages :
- 1 étage carré
Escalier :
- escalier dans-oeuvre, escalier en équerre,
À voir
Informations complémentaires
Aire d’étude et canton :
Levier
Dénomination :
ferme
Parties constituantes non étudiées :
- étable
- © Région Bourgogne-Franche-Comté, Inventaire du patrimoine
