FERME
25 - Septfontaines
- Dossier IA00014091 réalisé en 1975
- Auteur(s) : Liliane Hamelin, Bernard Lardière, Gilbert Poinsot
Historique
Ferme construite au 17e ou 18e siècle ; quelques modifications après 1817 (porte datée 1898)
Période(s)
Principale :
- 4e quart 17e siècle
- 4e quart 19e siècle
Date(s)
1898 :
porte la date
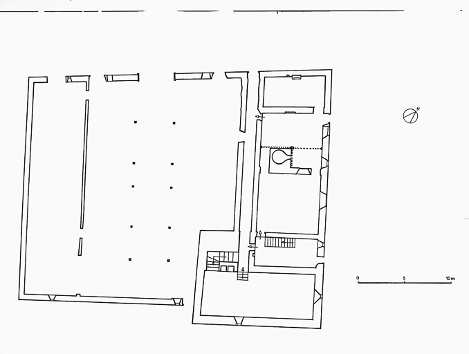
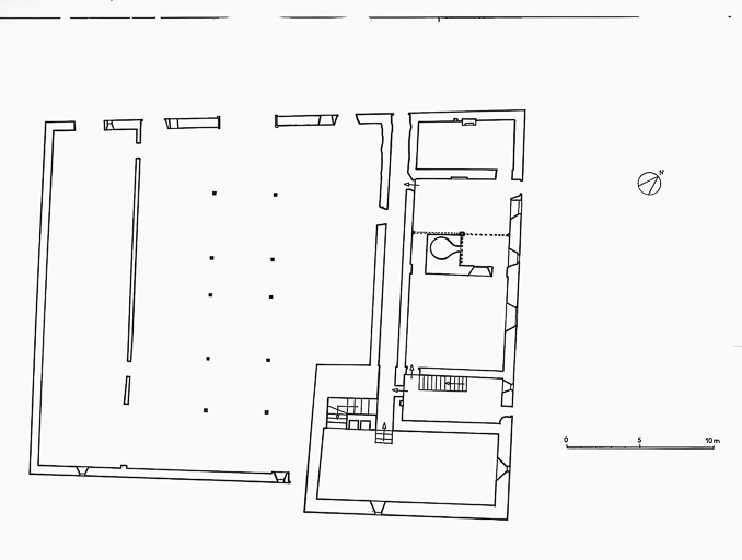
Description
Murs :
- calcaire
- moellon
- enduit
Toit :
- tuile mécanique
Etages :
- 1 étage carré
Couvrement :
- voûte en berceau
Escalier :
- escalier dans-oeuvre,
- escalier droit,
- escalier en équerre,
À voir
Informations complémentaires
Aire d’étude et canton :
Levier
Dénomination :
ferme
- © Région Bourgogne-Franche-Comté, Inventaire du patrimoine
