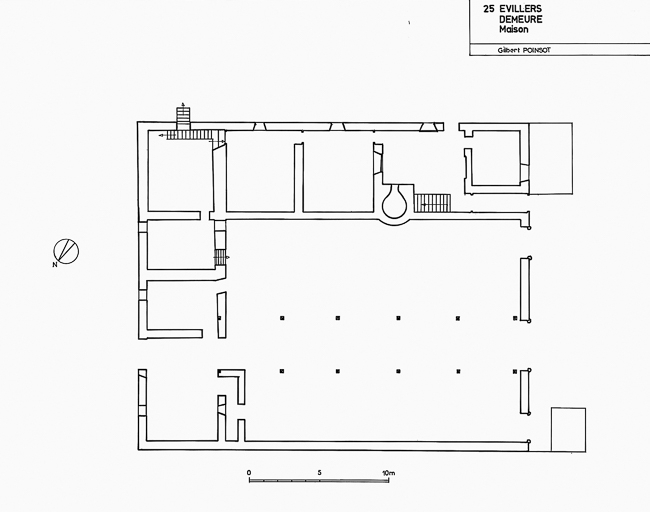
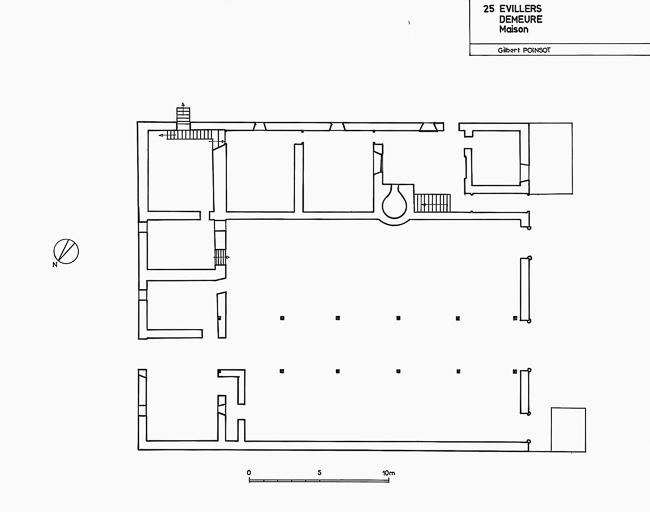
FERME
25 - Évillers
- Dossier IA00014052 réalisé en 1975
- Auteur(s) : Liliane Hamelin, Bernard Lardière, Gilbert Poinsot
Historique
Ferme datée 1762 ; monogramme c B
Période(s)
Principale :
- 3e quart 18e siècle
Date(s)
1762 :
porte la date
Description
Murs :
- calcaire
- moellon
- enduit
Toit :
- tuile mécanique
Etages :
- sous-sol
- 1 étage carré
Couvrement :
- voûte en berceau
Escalier :
- escalier dans-oeuvre,
À voir
Informations complémentaires
Aire d’étude et canton :
Levier
Dénomination :
ferme
- © Région Bourgogne-Franche-Comté, Inventaire du patrimoine
