FERME
25 - Grand'Combe-Châteleu
Les Cordiers - 2e ferme
- Dossier IA00013887 réalisé en 1974 revu en 1978
- Auteur(s) : Gilbert Poinsot
 
                                          Historique
Construction datée 1796 ; aile en équerre 1ère moitié 20e siècle
Période(s)
                                              
                          Principale :
                          
                                                                - 3e quart 18e siècle
- 1ère moitié 20e siècle
Date(s)
                                                                                                                                                                                      
                              
                                1796 :                              
                                                              porte la date
                                                          
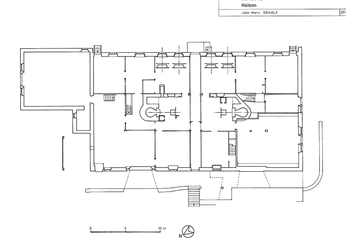
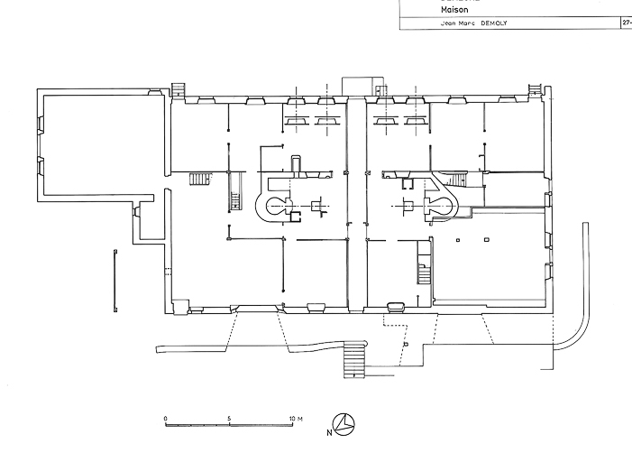
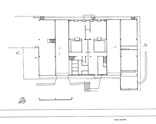
                                                                        Description
                          Murs :
                          
                      - bois
- calcaire
- moellon
- enduit partiel
                        Toit :
                        
                    - tuile mécanique
                        Etages :
                        
                    - sous-sol
- 1 étage carré
                        Couvertures :
                        
                    - toit à longs pans
- pignon couvert
                        Escalier :
                        
                    - escalier de distribution extérieur,
- escalier dans-oeuvre,
- escalier droit,
                        Typologie :
                        
                    - ferme à tué double
- grange haute
À voir
Informations complémentaires
Protection
                                                                                    
                                                  inscrit MH :
                                                                          1979/10/09
                                              
                                                          
                      Aire d’étude et canton :
                      Morteau
                    
                  
                      Dénomination :
                      ferme
                    
                  - © Région Bourgogne-Franche-Comté, Inventaire du patrimoine
 
                   
                   
                   
                   
                       
                       
                       
                       
                                                                 
                                                                 
                           
                           
                           
                           
                           
                           
                           
                           
                           
                           
                           
                           
                           
                           
                           
                           
                           
                           
                           
                           
                           
                           
                                                   
                                                   
                                                   
                                                   
                                                   
                                                   
                                                   
                                                   
                                                   
                                                   
                                                   
                                                   
                                                   
                                                   
                                                   
                                                   
                                                   
                                                   
                                                   
                                                   
                                                   
                                                  