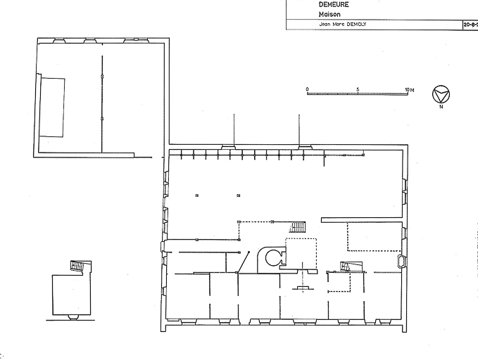
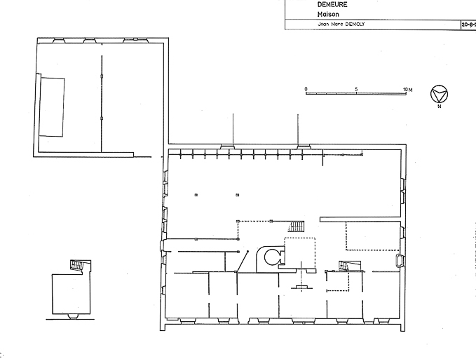
Plan au sol.
                        
                      
                                                                    
                          25, Grand'Combe-Châteleu, lieudit : Chauveresche
                        
                      
                                                                  
                                            
                                            
                                                                          N° de l’illustration : 19772500288V
                          
                                                                                                  Date : 1977
                        
                                                  Auteur : Yves Sancey
                                               
                                                                    Reproduction soumise à autorisation du titulaire des droits d'exploitation
                      
                                                                    
                          - © Région Bourgogne-Franche-Comté, Inventaire du patrimoine
 
                        
                      
                                                                 
                                                    
                                                                                                                                                              
                                                              
                                                                                                                                                                                                                                                                                                                                                                                                                                                                                                                            
                                                                                                                                                                                                                                                                                                                                                                                                                                                                                                                                              
                                                                                                                                                                 
                                                                                                                
                      
                                                                    
                          Vue d'ensemble, face nord.
                        
                      
                                                                    
                          25, Grand'Combe-Châteleu
                        
                      
                                                                  
                                            
                                            
                                                                          N° de l’illustration : 19762500553X
                          
                                                                                                  Date : 1976
                        
                                                  Auteur : Dominique Humbert
                                               
                                                                    Reproduction soumise à autorisation du titulaire des droits d'exploitation
                      
                                                                    
                          - © Région Bourgogne-Franche-Comté, Inventaire du patrimoine
 
                        
                      
                                                                 
                                                    
                                                                                                                                                              
                                                              
                                                                                                                                                                                                                                                                                                                                                                                                                                                                                                                            
                                                                                                                                                                                                                                                                                                                                                                                                                                                                                                                                              
                                                                                                                                                                 
                                                                                                                
                      
                                                                    
                          Extérieur : façades sud et est.
                        
                      
                                                                    
                          25, Grand'Combe-Châteleu, lieudit : Chauveresche
                        
                      
                                                                  
                                            
                                            
                                                                          N° de l’illustration : 19762500555X
                          
                                                                                                  Date : 1976
                        
                                                  Auteur : Dominique Humbert
                                               
                                                                    Reproduction soumise à autorisation du titulaire des droits d'exploitation
                      
                                                                    
                          - © Région Bourgogne-Franche-Comté, Inventaire du patrimoine
 
                        
                      
                                                                 
                                                    
                                                                                                                                                              
                                                              
                                                                                                                                                                                                                                                                                                                                                                                                                                                                                                                            
                                                                                                                                                                                                                                                                                                                                                                                                                                                                                                                                              
                                                                                                                                                                 
                                                                                                                
                      
                                                                    
                          Extérieur : façade antérieure, détail : surplomb de la lambrechure.
                        
                      
                                                                    
                          
                        
                      
                                                                  
                                            
                                            
                                                                          N° de l’illustration : 19762500554X
                          
                                                                                                  Date : 1976
                        
                                                  Auteur : Dominique Humbert
                                               
                                                                    Reproduction soumise à autorisation du titulaire des droits d'exploitation
                      
                                                                    
                          - © Région Bourgogne-Franche-Comté, Inventaire du patrimoine
 
                        
                      
                                                                 
                                                    
                                                                                                                                                              
                                                              
                                                                                                                                                                                                                                                                                                                                                                                                                                                                                                                            
                                                                                                                                                                                                                                                                                                                                                                                                                                                                                                                                              
                                                                                                                                                                 
                                                                                                                
                      
                                                                    
                          Extérieur : bâtiment annexe.
                        
                      
                                                                    
                          25, Grand'Combe-Châteleu, lieudit : Chauveresche
                        
                      
                                                                  
                                            
                                            
                                                                          N° de l’illustration : 19762500556X
                          
                                                                                                  Date : 1976
                        
                                                  Auteur : Dominique Humbert
                                               
                                                                    Reproduction soumise à autorisation du titulaire des droits d'exploitation
                      
                                                                    
                          - © Région Bourgogne-Franche-Comté, Inventaire du patrimoine
 
                        
                      
                                                                 
                                                    
                                                                                                                                                              
                                                              
                                                                                                                                                                                                                                                                                                                                                                                                                                                                                                                            
                                                                                                                                                                                                                                                                                                                                                                                                                                                                                                                                              
                                                                                                                                                                 
                                                                                                                
                      
                                                                    
                          Intérieur : pièce du tué.
                        
                      
                                                                    
                          
                        
                      
                                                                  
                                            
                                            
                                                                          N° de l’illustration : 19762500559X
                          
                                                                                                  Date : 1976
                        
                                                  Auteur : Dominique Humbert
                                               
                                                                    Reproduction soumise à autorisation du titulaire des droits d'exploitation
                      
                                                                    
                          - © Région Bourgogne-Franche-Comté, Inventaire du patrimoine
 
                        
                      
                                                                 
                                                    
                                                                                                                                                              
                                                              
                                                                                                                                                                                                                                                                                                                                                                                                                                                                                                                            
                                                                                                                                                                                                                                                                                                                                                                                                                                                                                                                                              
                                                                                                                                                                 
                                                                                                                
                      
                                                                    
                          Intérieur : hotte du tué.
                        
                      
                                                                    
                          25, Grand'Combe-Châteleu, lieudit : Chauveresche
                        
                      
                                                                  
                                            
                                            
                                                                          N° de l’illustration : 19762500558X
                          
                                                                                                  Date : 1976
                        
                                                  Auteur : Dominique Humbert
                                               
                                                                    Reproduction soumise à autorisation du titulaire des droits d'exploitation
                      
                                                                    
                          - © Région Bourgogne-Franche-Comté, Inventaire du patrimoine
 
                        
                      
                                                                 
                                                    
                                                                                                                                                              
                                                              
                                                                                                                                                                                                                                                                                                                                                                                                                                                                                                                            
                                                                                                                                                                                                                                                                                                                                                                                                                                                                                                                                              
                                                                                                                                                                 
                                                                                                                
                      
                                                                    
                          Intérieur : charpente du bâtiment annexe.
                        
                      
                                                                    
                          25, Grand'Combe-Châteleu, lieudit : Chauveresche
                        
                      
                                                                  
                                            
                                            
                                                                          N° de l’illustration : 19762500562X
                          
                                                                                                  Date : 1976
                        
                                                  Auteur : Dominique Humbert
                                               
                                                                    Reproduction soumise à autorisation du titulaire des droits d'exploitation
                      
                                                                    
                          - © Région Bourgogne-Franche-Comté, Inventaire du patrimoine