FERME ET ATELIER DE BOÎTES DE MONTRE BOUCHET, PUIS MENUISERIE PIERRE
25 - Charmauvillers
5 rue de l' Église
- Dossier IA25001149 réalisé en 2013
- Auteur(s) : Laurent Poupard
Historique
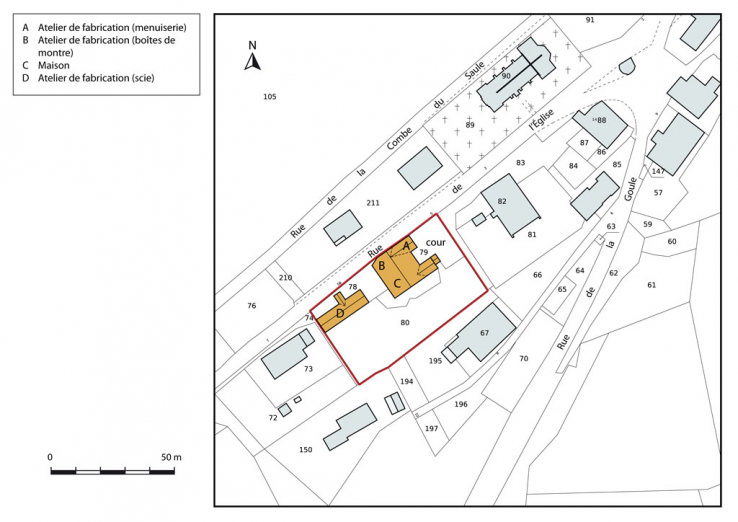
Dessinée en 1811 sur le plan cadastral napoléonien, la ferme semble dater de la fin du 18e siècle ou du tout début du 19e siècle. Elle porte sur un linteau les initiales JFB pour Jacques Félix Bouchet (jeune), attesté en 1812 sur le registre des états de section. Elle passe en 1907 à Octave Bouchet qui y aménage deux ans plus tard un atelier de boîtes de montre de gousset, exploité avec son frère Émile et quelques ouvriers. Cet atelier est transféré en 1925 au 17 Grande Rue et les bâtiments sont vendus en 1939 à Camille Pierre, qui y installe son atelier de menuiserie ainsi qu'une scie horizontale dans celui à l'ouest (en 1953). Ils servent actuellement d'habitation.
- limite 18e siècle 19e siècle
- 1er quart 20e siècle
- 3e quart 20e siècle
Description
La maison est constituée d'un corps de bâtiment orienté nord-sud, avec une entrée sur le pignon sud, et deux ailes en retour vers l'est : celle au sud abrite un logement avec entrée sur la cour, celle au nord correspond à la menuiserie. Elle compte un étage de soubassement, un rez-de-chaussée surélevé et un comble, le tout coiffé d'un toit à longs pans et pignons couverts, à couverture de tuiles mécaniques. Les murs sont en moellons calcaires enduits, présents seulement à l'étage de soubassement pour la menuiserie dont le rez-de-chaussée est en parpaings de béton. Aussi inscrit dans la pente, le bâtiment de la scie est posé sur des piliers en béton : il est réalisé en pan de bois essenté de planches, avec le même type de toit que la maison.
- calcaire
- béton
- bois
- moellon
- parpaing de béton
- pan de béton armé
- pan de bois
- enduit
- enduit
- essentage de planches
- tuile mécanique
- étage de soubassement
- en rez-de-chaussée surélevé
- étage de comble
- toit à longs pans, pignon couvert
- noue
- escalier dans-oeuvre,
- énergie électrique achetée
Source(s) documentaire(s)
-
Archives départementales du Doubs : 3 P 82/4 Matrice cadastrale des propriétés bâties et non bâties de la commune de Charmauvillers (après rattachement des Essarts-Cuenot et du Boulois), 1870-1914.
Archives départementales du Doubs : 3 P 82/4 Matrice cadastrale des propriétés bâties et non bâties de la commune de Charmauvillers (après rattachement des Essarts-Cuenot et du Boulois), 1870-1914.Lieu de conservation : Archives départementales du Doubs, Besançon - Cote du document : 3 P 82/4 -
Archives départementales du Doubs : 3 P 125 Matrices cadastrales de la commune de Charmauvillers, 1812-1970.
Archives départementales du Doubs : 3 P 125 Matrices cadastrales de la commune de Charmauvillers, 1812-1970. - 3 P 125/1 : Registre des états de section, 1812- 3 P 125/2 : Matrice cadastrale des propriétés bâties et non bâties, 1823-1870- 3 P 125/3 : Matrice cadastrale des propriétés bâties, 1882-1910- 3 P 125/5 : Matrice cadastrale des propriétés bâties, 1911-1970Lieu de conservation : Archives départementales du Doubs, Besançon - Cote du document : 3 P 125
-
Plan cadastral parcellaire de la commune de Charmauvillers, 1811.
Plan cadastral parcellaire de la Commune de Charmauvillers, canton de Maîche […], terminé sur le terrain le 25 juin 1811 […] par M Toubin géomètre du cadastre.Lieu de conservation : Archives départementales du Doubs, Besançon - Cote du document : 3 P 679
-
Bouchet, René (dir.). Charmauvillers : du comté et des boîtes. Du Seud au Bief d'Étoz, 2013.
Bouchet, René (dir.). Charmauvillers : du comté et des boîtes. Du Seud au Bief d'Étoz / GHETE « Au Clos du Doubs », commune de Charmauvillers. - [Charmauvillers] : Groupement d’Études Hommes et Terroirs du Clos du Doubs, 2013. 151 p. : ill. ; 30 cm. (Cahier du Clos du Doubs ; n° 7). -
Vuillet, Bernard. Entre Doubs et Dessoubre. Tome III. Autour de Charquemont et Damprichard, 1991.
Vuillet, Bernard. Entre Doubs et Dessoubre. Tome III. Autour de Charquemont et Damprichard, d'après la collection de cartes postales de Georges Caille. - Les Gras : B. Vuillet, Villers-le-Lac : G. Caille, 1991. 243 p. : cartes postales ; 31 cm.
À voir
Informations complémentaires
- patrimoine industriel du Doubs
- atelier de fabrication
- logement
- cour
- © Région Bourgogne-Franche-Comté, Inventaire du patrimoine
