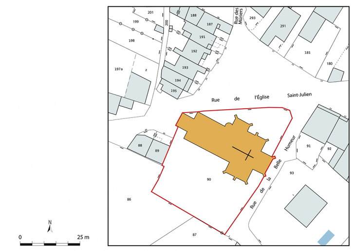
ÉGLISE SAINT-JULIEN
71 - Sennecey-le-Grand
rue de l' Église Saint-Julien
- Dossier IA71003777 réalisé en 2023 revu en 2024
- Auteur(s) : Fabien Dufoulon
Historique
La construction de l'église actuelle doit remonter à la fin du 11e ou au 12e siècle (nef). Le chœur primitif est transformé avec la construction d'une chapelle au nord (chapelle de Vellaufant, fin du 13e ou début du 14e siècle) et du chœur (14e siècle) d'après Didier (2021). Courtépée (1780) mentionne la chapelle située au nord de la nef : "chapelle de Broard, fondée par Jean Broard en 1489". Elle conserve encore aujourd'hui la dalle funéraire dont l'inscription est ainsi restituée par Martin (1905) : "Cy gisent honorable homme Jehan Broart de Senecey et Guillemette sa femme lesquels ont [faict faire] cette chapelle en l’an mil C[CCCC]." Courtépée (1780) indique la fondation de la chapelle au sud du chœur : "chapelle de Ruffey, fondée en 1427 par Claude de Lugni, chevalier, seigneur de Ruffey". Mais sa construction pourrait en réalité dater du début du 16e siècle : la date A° M V[c] IIII DIE XVII NOV (17 novembre 1504) accompagne en effet un texte relatif à deux fondations de messes par Jehan de Lugny et de son épouse Jehanne de Bauffremont (peint sur le mur, au-dessus de la porte). Les armes des Lugny sont sculptées sur l'écu d'une clef de voûte et sur l'encadrement d'une baie : d'azur à trois quintefeuilles d'or, posées 2 et 1, accompagnées de sept billettes de même trois rangées en chef, une en cœur et trois rangées en pointe. Des travaux ont dû avoir lieu à la fin du 18e siècle : la clef de l'arc de la baie située au-dessus de la porte nord porte l'inscription "R 1789 P". L'édifice n'est plus l'église paroissiale de Sennecey-le-Grand depuis la construction dans les années 1820-1830 de la nouvelle église Saint-Julien sur le site de l'ancien château.
- 11e siècle
- 12e siècle
- 13e siècle
- 14e siècle
- 4e quart 15e siècle
- 1er quart 16e siècle
- 4e quart 18e siècle
Description
Murs en moellon calcaire, couverture en calcaire. L'église comprend un porche, une nef à trois vaisseaux, un chœur précédé d'une travée barlongue surmontée d'une tour-clocher, une chapelle sur le flanc nord de la nef (chapelle de Broard), une chapelle sur le flanc nord du chœur (chapelle de Vellaufant) et une chapelle sur le flanc sud du chœur (chapelle de Lugny). Les vaisseaux de la nef sont couverts de voûtes en berceau plein-cintre. Le chœur et les chapelles sont couverts de croisées d'ogives.
- calcaire
- moellon
- calcaire en couverture
- plan en croix latine
- voûte en berceau plein-cintre
- voûte d'ogives
- toit à longs pans
- pignon couvert
- toit à plusieurs pans
- peinture
- sculpture
- inégal suivant les parties, restauré
Source(s) documentaire(s)
-
Courtépée, Claude. Description historique et topographique du Duché de Bourgogne. T. 5 comprenant les Bourgs & Villages du Chalonnois ; ceux de la Bresse Chalonoise ; l'Histoire de Semur & des Villes de l'Auxois, Flavigni, Montbard, Noyers & Viteaux ; le Baillage de Semur ; l'Histoire d'Avallon & de Montreal. 1780.
Courtépée, Claude. Description historique et topographique du Duché de Bourgogne. T. 5 comprenant les Bourgs & Villages du Chalonnois ; ceux de la Bresse Chalonoise ; l'Histoire de Semur & des Villes de l'Auxois, Flavigni, Montbard, Noyers & Viteaux ; le Baillage de Semur ; l'Histoire d'Avallon & de Montreal. Dijon : Causse, 1780. -
Martin, Jean. L’ancien archiprêtré de Tournus au diocèse de Chalon. Pierres tombales, inscriptions et documents archéologiques. 1905.
Martin, Jean. L’ancien archiprêtré de Tournus au diocèse de Chalon. Pierres tombales, inscriptions et documents archéologiques. Chalon-sur-Saône : E. Bertrand, 1905. -
Martin, Jean. Objets d’art religieux de l’ancien archidiaconé de Tournus. 1906.
Martin, Jean. Objets d’art religieux de l’ancien archidiaconé de Tournus. Paris : Plon, 1906. -
Didier, Frédéric. Un cycle marial de peintures murales autour de 1500 dans la chapelle des Lugny à Sennecey-le-Grand. 2021.
Didier, Frédéric. Un cycle marial de peintures murales autour de 1500 dans la chapelle des Lugny à Sennecey-le-Grand. Dans : Le patrimoine religieux en Bourgogne à l'époque moderne (XVIe-XVIIIe siècle). Dir. Olivier Bonfait et Michaël Vottero. Dijon : Société des Annales de Bourgogne, 2021.
À voir
Informations complémentaires
- © Région Bourgogne-Franche-Comté, Inventaire du patrimoine
