ÉGLISE PAROISSIALE SAINT-MARTIN
71 - Mont-lès-Seurre
- Dossier IA71000475 réalisé en 2001 revu en 2002
- Auteur(s) : Brigitte Fromaget
Historique
La nef date vraisemblablement du 16e siècle, le choeur et peut-être la façade ont été bâtis au milieu du 18e siècle, et la sacristie à la fin du 18e siècle ou au début du 19e siècle.
Période(s)
Principale :
- 16e siècle
- milieu 18e siècle
- limite 18e siècle 19e siècle
Auteur(s) & personnalité(s)
Description
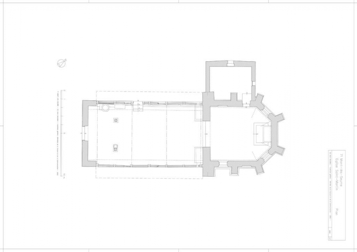
L'église, entourée du cimetière, se situe à l'extrémité sud du village sur un terrain en pente nord-sud. Les murs latéraux de la nef en pan de bois, hourdés de briques enduites, sont construits sur un bahut de maçonnerie en partie enterré côté nord ; les décharges en croix-de-Saint-André visibles à l'extérieur, sont recouvertes d'un enduit à l'intérieur, sauf dans la 1ère travée (ces deux murs se déversent vers le sud). La façade, avec sections de mur en retour sur la nef, est bâtie en brique enduite, de même que le choeur. La nef, à charpente lambrissée en berceau, comprend 3 travées délimitées par 4 fermes à entraits et poinçons apparents ; la porte nord de la 2e travée est précédée de quelques marches rattrapant la dénivellation du terrain. Le choeur et son abside polygonale sont couverts d'une fausse voûte déprimée terminée en cul-de-four. Le clocher carré, en charpente, est supporté par des poutres reposant sur le mur de la façade et, dans la 1ère travée de la nef, sur deux poteaux de bois octogonaux à congés pyramidaux et socle en pierre de taille. L'accès au clocher se fait par une échelle en bois située dans l'angle sud-ouest de l'espace formé par les murs en retour de la façade. Les encadrements des ouvertures de la façade, du choeur et de la sacristie sont en pierre de taille, celles de la nef en bois. Le portail de l'église est en anse-de-panier, à impostes et clef saillantes, les fenêtres de la nef sont rectangulaires à petits carreaux, celles du choeur en plein-cintre. Deux fenêtres du choeur sont murées : la 1ère à gauche, occultée par la construction de la sacristie, et la 2e à droite. La sacristie, à gauche du choeur, est desservie par une porte rectangulaire et éclairée par deux fenêtres également rectangulaires. Le toit de la nef, à longs pans de tuile plate, recouvre les rampants du mur de façade ; ses versants se prolongent en avant-toits sur aisseliers pour protéger les murs-gouttereaux en pans de bois. La toiture à deux pans et croupe polygonale du choeur et l'appentis de la sacristie sont en tuile mécanique, le clocher et sa flèche octogonale sont couverts d'ardoise.
Murs :
- brique
- pan de bois
- enduit
Toit :
- ardoise
- tuile plate
- tuile mécanique
Plan :
- plan allongé
Etages :
- 1 vaisseau
Couvrement :
- lambris de couvrement
- fausse voûte en cul-de-four
Escalier :
- échelle,
Typologie :
- église en pan de bois
À voir
Informations complémentaires
Aire d’étude et canton :
Verdun-sur-le-Doubs
Dénomination :
église paroissiale
- © Région Bourgogne-Franche-Comté, Inventaire du patrimoine
