ÉGLISE PAROISSIALE DU ROSAIRE
25 - Montlebon
Les Fontenottes - 4 rue des Ecoles
- Dossier IA00013855 réalisé en 1974 revu en 1978
- Auteur(s) : Gilbert Poinsot
Historique
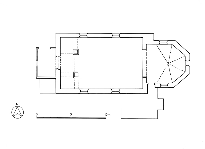
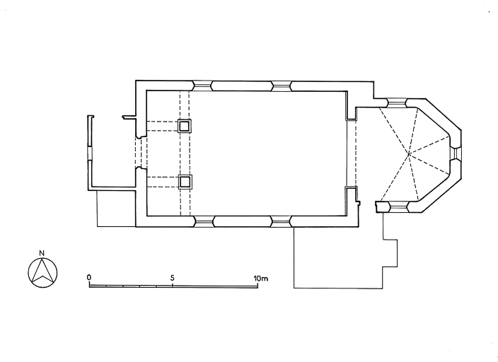
Voeu d'édification en 1639 par les frères Billod ; autorisation de construction en 1691 ; agrandissement vers 1780 ; reconstruction de 1846 à 1859 par le maçon François-Xavier Bourgeois ; bénédiction en 1846 ; porche par l'architecte Pompée
- 4e quart 17e siècle
- 4e quart 18e siècle
- milieu 19e siècle
Maçon. Il a participé à la reconstruction de l'église paroissiale du Rosaire de Montlebon (Doubs) de 1846 à 1859.
Pompée, architecte. Il a fait des modifications à l'église des Gras (Doubs) de 1836 à 1840 ; il a construit l'église du Saint-Esprit des Combes (Doubs) en 1832 et l'hôtel de ville de Pontarlier (1832-1835).
Description
- calcaire
- pierre de taille
- moellon
- enduit partiel
- tuile mécanique
- tuile plate
- métal en couverture
- plan allongé
- 1 vaisseau
- élévation ordonnancée sans travées
- toit à l'impériale
- toit à longs pans
- croupe
- pignon couvert
Source(s) documentaire(s)
-
Les sources documentaires sont consultables dans le dossier numérisé, accessible dans la rubrique "Informations complémentaires".
À voir
Informations complémentaires
- © Région Bourgogne-Franche-Comté, Inventaire du patrimoine
