DISTILLERIE SAGUIN, PUIS LES DISTILLATEURS RÉUNIS, ACTUELLEMENT CENTRE DE FORMATION
70 - Fougerolles
Blanzey
- Dossier IA70000227 réalisé en 2006
- Auteur(s) : Raphaël Favereaux
Historique
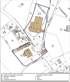
Cette distillerie aurait été fondée vers 1850 par Simon-Isidore Saguin. Ses fils Léon et Charles poursuivent l'affaire sous le nom de distillerie Léon Saguin, mais elle périclite après 1871. Elle est redressée puis administrée par Léon, fils de Charles, sous le nom de Léon Saguin jeune. Un atelier de distillation est construit de l'autre côté de la route à la charnière des 19e et 20e siècle. A la mort de Léon en 1940, la société est gérée par son neveu, M. Simonin, et ses enfants, jusqu'en 1955. A cette époque, elle reprend la marque Robert et s'associe avec Raspiller, toutes deux distilleries fougerollaises. En 1957, Georges Saguin, petit-neveu de Léon, reprend l'affaire, et fait édifier vers 1965 une distillerie moderne, agrandie vers 1980, de l'autre côté de la route départementale. Georges Saguin cède son affaire en 1978. Les sociétés Saguin, Simon, Raspiller et Albert Robert ont été regroupées dans la Société Anonyme des Distillateurs Réunis, jusqu'à leur rachat vers 1995 par la distillerie Peureux (étudiée IA70000229) et la fermeture du site vers 2000. Dans les années 1990, l'entreprise distille annuellement 600 tonnes de fruits. Les bâtiments de la distillerie primitive sont aujourd'hui occupés par le centre de formation de l'Institut rural d'Education et d'Orientation. La nouvelle distillerie est aujourd'hui désaffectée. Un générateur à vapeur Lenoir [?] (Dijon, 21) est autorisé en 1910 et un second l'est en 1934. Dans les années 1950, 9 alambics étaient en service. Les trois alambics de 900 litres utilisés dans la nouvelle distillerie, chauffés au gaz, ont été vendus à la société Laurent (Luxeuil-les-Bains, 70).
Période(s)
Principale :
- milieu 19e siècle
- 4e quart 19e siècle
- 2e moitié 20e siècle
Date(s)
1872 :
daté par travaux historiques
1872 :
porte la date
Description
Les bâtiments de la distillerie primitive sont en moellon de grès enduit, couverts de toit à longs pans. Le logement patronal, à un étage carré et un étage de comble, est couvert d'un toit à demi-croupes. La nouvelle distillerie est construite en parpaing de béton enduit, couverte de toits à longs pans en ciment amiante et en tôle. La fontaine en grès située devant le logement patronal porte la date 1872.
Murs :
- grès
- béton
- moellon
- parpaing de béton
- enduit
Toit :
- tuile mécanique
- ciment amiante en couverture
- fer en couverture
Etages :
- 1 étage carré
- étage de comble
Energie utilisée :
- énergie thermique produite sur place
- énergie électrique achetée
À voir
Informations complémentaires
Thématiques :
- patrimoine industriel de la Haute-Saône
Aire d’étude et canton :
Haute-Saône
Dénomination :
distillerie
Parties constituantes non étudiées :
- atelier de fabrication
- logement patronal
- logement
- bureau
- chai
- © Région Bourgogne-Franche-Comté, Inventaire du patrimoine
