Vue d'ensemble depuis le nord-ouest.
90, Beaucourt, 1 rue Pierre Sellier
N° de l’illustration : 20029000308XA
Date : 2002
Auteur : Yves Sancey
Reproduction soumise à autorisation du titulaire des droits d'exploitation
- © Région Bourgogne-Franche-Comté, Inventaire du patrimoine
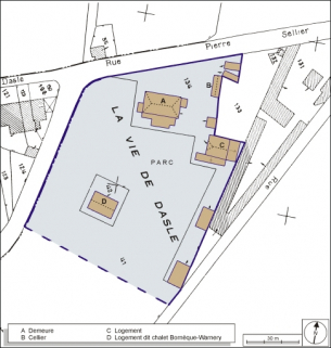
Plan-masse et de situation. Extrait du plan cadastral, 1979, section AM, 1:1000.
90, Beaucourt, 1 rue Pierre Sellier
N° de l’illustration : 20039000013NUDA
Date : 2003
Auteur : André Céréza
Reproduction soumise à autorisation du titulaire des droits d'exploitation
- © Région Bourgogne-Franche-Comté, Inventaire du patrimoine
Vue d'ensemble depuis l'ouest en 1981. SRI. Enquête régionale sur les bâtiments industriels (1979-1981).
90, Beaucourt, 1 rue Pierre Sellier
N° de l’illustration : 19819000010X
Date : 1981
Auteur : Yves Sancey
Reproduction soumise à autorisation du titulaire des droits d'exploitation
- © Région Bourgogne-Franche-Comté, Inventaire du patrimoine
Vue de trois quarts droite en 1981. SRI. Enquête régionale sur les bâtiments industriels (1979-1981).
90, Beaucourt, 1 rue Pierre Sellier
N° de l’illustration : 19819000011X
Date : 1981
Auteur : Yves Sancey
Reproduction soumise à autorisation du titulaire des droits d'exploitation
- © Région Bourgogne-Franche-Comté, Inventaire du patrimoine
Façade sud en 1981. SRI. Enquête régionale sur les bâtiments industriels (1979-1981).
90, Beaucourt, 1 rue Pierre Sellier
N° de l’illustration : 19819000012X
Date : 1981
Auteur : Yves Sancey
Reproduction soumise à autorisation du titulaire des droits d'exploitation
- © Région Bourgogne-Franche-Comté, Inventaire du patrimoine
Chalet. Vue de trois quarts en 1981. SRI. Enquête régionale sur les bâtiments industriels (1979-1981).
90, Beaucourt, 1 rue Pierre Sellier
N° de l’illustration : 19819000015X
Date : 1981
Auteur : Yves Sancey
Reproduction soumise à autorisation du titulaire des droits d'exploitation
- © Région Bourgogne-Franche-Comté, Inventaire du patrimoine
Chalet. Façade nord vue de trois quarts en 1981. SRI. Enquête régionale sur les bâtiments industriels (1979-1981).
90, Beaucourt, 1 rue Pierre Sellier
N° de l’illustration : 19819000016X
Date : 1981
Auteur : Yves Sancey
Reproduction soumise à autorisation du titulaire des droits d'exploitation
- © Région Bourgogne-Franche-Comté, Inventaire du patrimoine
Chalet. Façade nord en 1981. SRI. Enquête régionale sur les bâtiments industriels (1979-1981).
90, Beaucourt, 1 rue Pierre Sellier
N° de l’illustration : 19819000017X
Date : 1981
Auteur : Yves Sancey
Reproduction soumise à autorisation du titulaire des droits d'exploitation
- © Région Bourgogne-Franche-Comté, Inventaire du patrimoine
Logement et écurie en 1981. SRI. Enquête régionale sur les bâtiments industriels (1979-1981).
90, Beaucourt, 1 rue Pierre Sellier
N° de l’illustration : 19819000013X
Date : 1981
Auteur : Yves Sancey
Reproduction soumise à autorisation du titulaire des droits d'exploitation
- © Région Bourgogne-Franche-Comté, Inventaire du patrimoine
Cellier en 1981. SRI. Enquête régionale sur les bâtiments industriels (1979-1981).
90, Beaucourt, 1 rue Pierre Sellier
N° de l’illustration : 19819000014X
Date : 1981
Auteur : Yves Sancey
Reproduction soumise à autorisation du titulaire des droits d'exploitation
- © Région Bourgogne-Franche-Comté, Inventaire du patrimoine
Façade ouest.
90, Beaucourt, 1 rue Pierre Sellier
N° de l’illustration : 20029000306XA
Date : 2002
Auteur : Yves Sancey
Reproduction soumise à autorisation du titulaire des droits d'exploitation
- © Région Bourgogne-Franche-Comté, Inventaire du patrimoine
Façade postérieure.
90, Beaucourt, 1 rue Pierre Sellier
N° de l’illustration : 20029000310XA
Date : 2002
Auteur : Yves Sancey
Reproduction soumise à autorisation du titulaire des droits d'exploitation
- © Région Bourgogne-Franche-Comté, Inventaire du patrimoine
Chalet. Vue depuis la grille d'entrée.
90, Beaucourt, 1 rue Pierre Sellier
N° de l’illustration : 20029000294XA
Date : 2002
Auteur : Yves Sancey
Reproduction soumise à autorisation du titulaire des droits d'exploitation
- © Région Bourgogne-Franche-Comté, Inventaire du patrimoine
Chalet. Vue d'ensemble depuis le sud-ouest.
90, Beaucourt, 1 rue Pierre Sellier
N° de l’illustration : 20029000300XA
Date : 2002
Auteur : Yves Sancey
Reproduction soumise à autorisation du titulaire des droits d'exploitation
- © Région Bourgogne-Franche-Comté, Inventaire du patrimoine
Chalet. Vue d'ensemble depuis le nord-est.
90, Beaucourt, 1 rue Pierre Sellier
N° de l’illustration : 20029000296XA
Date : 2002
Auteur : Yves Sancey
Reproduction soumise à autorisation du titulaire des droits d'exploitation
- © Région Bourgogne-Franche-Comté, Inventaire du patrimoine
Chalet. Façade ouest.
90, Beaucourt, 1 rue Pierre Sellier
N° de l’illustration : 20029000304XA
Date : 2002
Auteur : Yves Sancey
Reproduction soumise à autorisation du titulaire des droits d'exploitation
- © Région Bourgogne-Franche-Comté, Inventaire du patrimoine
Chalet. Façade nord.
90, Beaucourt, 1 rue Pierre Sellier
N° de l’illustration : 20029000298XA
Date : 2002
Auteur : Yves Sancey
Reproduction soumise à autorisation du titulaire des droits d'exploitation
- © Région Bourgogne-Franche-Comté, Inventaire du patrimoine
Chalet. Façade sud.
90, Beaucourt, 1 rue Pierre Sellier
N° de l’illustration : 20029000302XA
Date : 2002
Auteur : Yves Sancey
Reproduction soumise à autorisation du titulaire des droits d'exploitation
- © Région Bourgogne-Franche-Comté, Inventaire du patrimoine