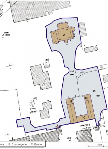
Plan-masse et de situation. Extrait du plan cadastral, 1984, section A, 1:1000.
90, Morvillars, 7 à 11, 15 rue du Stade Henri Monnier
N° de l’illustration : 20039000029NUDA
Date : 2003
Auteur : André Céréza
Reproduction soumise à autorisation du titulaire des droits d'exploitation
- © Région Bourgogne-Franche-Comté, Inventaire du patrimoine
Projet d'agrandissement du château. Monsieur Armand Viellard à Morvillars. Façade principale au nord-ouest.
90, Morvillars, 7 à 11, 15 rue du Stade Henri Monnier
-
Dessin, calque, plume, échelle 1:50, le 19 janvier 1899, par Fleury de la Hussinière (architecte)
Lieu de conservation : Archives départementales du Territoire de Belfort, Belfort - Cote du document : 30 J 33
N° de l’illustration : 20019000050V
Date : 2001
Auteur : Jérôme Mongreville
Reproduction soumise à autorisation du titulaire des droits d'exploitation
- © Région Bourgogne-Franche-Comté, Inventaire du patrimoine
Projet d'agrandissement du château. Monsieur Armand Viellard à Morvillars. Façade latérale du sud-est.
90, Morvillars, 7 à 11, 15 rue du Stade Henri Monnier
-
Dessin, calque, plume, échelle 1:50, le 19 janvier 1899, par Fleury de la Hussinière (architecte)
Lieu de conservation : Archives départementales du Territoire de Belfort, Belfort - Cote du document : 30 J 33
N° de l’illustration : 20019000049V
Date : 2001
Auteur : Jérôme Mongreville
Reproduction soumise à autorisation du titulaire des droits d'exploitation
- © Région Bourgogne-Franche-Comté, Inventaire du patrimoine
Vue d'ensemble depuis l'est.
90, Morvillars, 7 à 11, 15 rue du Stade Henri Monnier
N° de l’illustration : 20009000444ZA
Date : 2000
Auteur : Yves Sancey
Reproduction soumise à autorisation du titulaire des droits d'exploitation
- © Région Bourgogne-Franche-Comté, Inventaire du patrimoine
Vue d'ensemble depuis l'ouest.
90, Morvillars, 7 à 11, 15 rue du Stade Henri Monnier
N° de l’illustration : 20009000456ZA
Date : 2000
Auteur : Yves Sancey
Reproduction soumise à autorisation du titulaire des droits d'exploitation
- © Région Bourgogne-Franche-Comté, Inventaire du patrimoine
Façade depuis l'ouest.
90, Morvillars, 7 à 11, 15 rue du Stade Henri Monnier
N° de l’illustration : 20009000458ZA
Date : 2000
Auteur : Yves Sancey
Reproduction soumise à autorisation du titulaire des droits d'exploitation
- © Région Bourgogne-Franche-Comté, Inventaire du patrimoine
Façade postérieure vue de trois quarts gauche.
90, Morvillars, 7 à 11, 15 rue du Stade Henri Monnier
N° de l’illustration : 20009000446ZA
Date : 2000
Auteur : Yves Sancey
Reproduction soumise à autorisation du titulaire des droits d'exploitation
- © Région Bourgogne-Franche-Comté, Inventaire du patrimoine
Vue d'ensemble depuis le sud.
90, Morvillars, 7 à 11, 15 rue du Stade Henri Monnier
N° de l’illustration : 20009000442ZA
Date : 2000
Auteur : Yves Sancey
Reproduction soumise à autorisation du titulaire des droits d'exploitation
- © Région Bourgogne-Franche-Comté, Inventaire du patrimoine
Façade sud.
90, Morvillars, 7 à 11, 15 rue du Stade Henri Monnier
N° de l’illustration : 20009000440ZA
Date : 2000
Auteur : Yves Sancey
Reproduction soumise à autorisation du titulaire des droits d'exploitation
- © Région Bourgogne-Franche-Comté, Inventaire du patrimoine
Façade ouest.
90, Morvillars, 7 à 11, 15 rue du Stade Henri Monnier
N° de l’illustration : 20009000460ZA
Date : 2000
Auteur : Yves Sancey
Reproduction soumise à autorisation du titulaire des droits d'exploitation
- © Région Bourgogne-Franche-Comté, Inventaire du patrimoine
Façade ouest vue de trois quarts gauche.
90, Morvillars, 7 à 11, 15 rue du Stade Henri Monnier
N° de l’illustration : 20009000454ZA
Date : 2000
Auteur : Yves Sancey
Reproduction soumise à autorisation du titulaire des droits d'exploitation
- © Région Bourgogne-Franche-Comté, Inventaire du patrimoine
Escalier sur la façade postérieure.
90, Morvillars, 7 à 11, 15 rue du Stade Henri Monnier
N° de l’illustration : 20009000450ZA
Date : 2000
Auteur : Yves Sancey
Reproduction soumise à autorisation du titulaire des droits d'exploitation
- © Région Bourgogne-Franche-Comté, Inventaire du patrimoine
Détail de l'escalier de la façade postérieure.
90, Morvillars, 7 à 11, 15 rue du Stade Henri Monnier
N° de l’illustration : 20009000452ZA
Date : 2000
Auteur : Yves Sancey
Reproduction soumise à autorisation du titulaire des droits d'exploitation
- © Région Bourgogne-Franche-Comté, Inventaire du patrimoine
Détail de la façade est.
90, Morvillars, 7 à 11, 15 rue du Stade Henri Monnier
N° de l’illustration : 20009000448ZA
Date : 2000
Auteur : Yves Sancey
Reproduction soumise à autorisation du titulaire des droits d'exploitation
- © Région Bourgogne-Franche-Comté, Inventaire du patrimoine
Les écuries depuis le nord.
90, Morvillars, 7 à 11, 15 rue du Stade Henri Monnier
N° de l’illustration : 20009000462ZA
Date : 2000
Auteur : Yves Sancey
Reproduction soumise à autorisation du titulaire des droits d'exploitation
- © Région Bourgogne-Franche-Comté, Inventaire du patrimoine
Les écuries : façade du logement.
90, Morvillars, 7 à 11, 15 rue du Stade Henri Monnier
N° de l’illustration : 20009000471X
Date : 2000
Auteur : Yves Sancey
Reproduction soumise à autorisation du titulaire des droits d'exploitation
- © Région Bourgogne-Franche-Comté, Inventaire du patrimoine
Auvent de l'écurie.
90, Morvillars, 7 à 11, 15 rue du Stade Henri Monnier
N° de l’illustration : 20009000470ZA
Date : 2000
Auteur : Yves Sancey
Reproduction soumise à autorisation du titulaire des droits d'exploitation
- © Région Bourgogne-Franche-Comté, Inventaire du patrimoine
Les écuries : détail du pignon de l'auvent.
90, Morvillars, 7 à 11, 15 rue du Stade Henri Monnier
N° de l’illustration : 20009000473ZA
Date : 2000
Auteur : Yves Sancey
Reproduction soumise à autorisation du titulaire des droits d'exploitation
- © Région Bourgogne-Franche-Comté, Inventaire du patrimoine
Aile ouest des écuries.
90, Morvillars, 7 à 11, 15 rue du Stade Henri Monnier
N° de l’illustration : 20009000468ZA
Date : 2000
Auteur : Yves Sancey
Reproduction soumise à autorisation du titulaire des droits d'exploitation
- © Région Bourgogne-Franche-Comté, Inventaire du patrimoine
Façade est des écuries.
90, Morvillars, 7 à 11, 15 rue du Stade Henri Monnier
N° de l’illustration : 20009000475X
Date : 2000
Auteur : Yves Sancey
Reproduction soumise à autorisation du titulaire des droits d'exploitation
- © Région Bourgogne-Franche-Comté, Inventaire du patrimoine
Façade postérieure des écuries.
90, Morvillars, 7 à 11, 15 rue du Stade Henri Monnier
N° de l’illustration : 20009000474X
Date : 2000
Auteur : Yves Sancey
Reproduction soumise à autorisation du titulaire des droits d'exploitation
- © Région Bourgogne-Franche-Comté, Inventaire du patrimoine