CITÉ OUVRIÈRE PIERRE JAPY
90 - Beaucourt
Cité Pierre Japy
- Dossier IA90000087 réalisé en 2000
- Auteur(s) : Bernard Lardière, Raphaël Favereaux
Historique
Cette première cité ouvrière Japy a été édifiée au début de la seconde moitié du 19e siècle. Elle comprend un immeuble à logements donnant sur la rue des Bouleaux et 22 maisons individuelles donnant sur la rue des Mélèzes, la rue des Chênes et la rue des Bouleaux. Ces logements individuels préfigurent le modèle-type mis au point par l'entreprise Japy en 1867.
Période(s)
Principale :
- 2e moitié 19e siècle
Description
Les maisons sont en moellon de calcaire enduit, avec sous-sol, étage de comble et toit à longs pans couvert de tuile mécanique. L'immeuble, comprenant deux groupes de huit logements, est en moellon de calcaire enduit, avec étage de soubassement, rez-de-chaussée surélevé, un étage carré et un étage de comble.
Murs :
- pierre
- moellon
- enduit
Toit :
- tuile mécanique
Etages :
- étage de soubassement
- rez-de-chaussée surélevé
- 1 étage carré
- étage de comble
Source(s) documentaire(s)
-
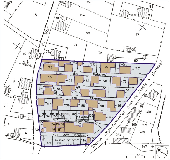
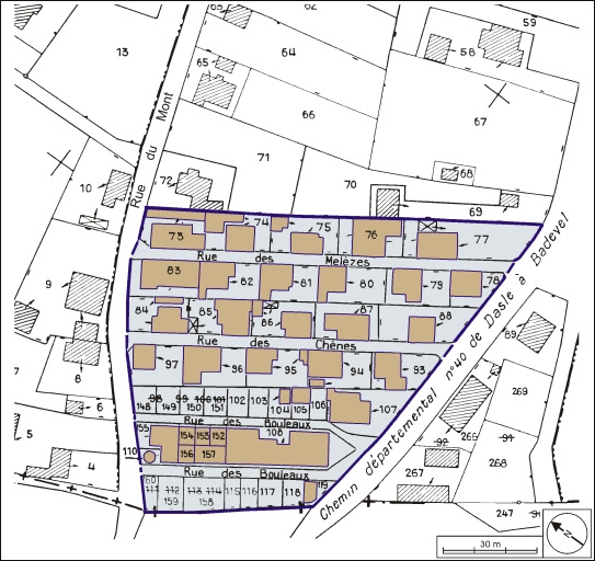
Plan parcellaire de la cité Pierre Japy.
Plan parcellaire de la cité Pierre Japy. Dessin, plume, lavis, échelle 1:250, s.d. [2e moitié 19e siècle].Lieu de conservation : Archives départementales du Territoire de Belfort, Belfort - Cote du document : 9 J 1 D 1 -
Plan de la cité combe Saivelin.
Plan de la cité combe Saivelin. Dessin, plume, lavis, échelle 1:1250, 24 août 1866.Lieu de conservation : Archives départementales du Territoire de Belfort, Belfort - Cote du document : 9 J 1 D 1 -
Plan de la cité Pierre Japy.
Plan de la cité Pierre Japy. Dessin, plume, lavis, échelle 1:1250, s.d. [2e moitié 19e siècle].Lieu de conservation : Archives départementales du Territoire de Belfort, Belfort - Cote du document : 9 J 1 D 1 -
Plan parcellaire de la cité Pierre Japy composée de 21 habitations indépendantes [...].
Plan parcellaire de la cité Pierre Japy composée de 21 habitations indépendantes [...]. Dessin, plume, lavis, échelle 1:500, s.d. [2e moitié 19e siècle].Lieu de conservation : Archives départementales du Territoire de Belfort, Belfort - Cote du document : 9 J 1 D 1
À voir
Informations complémentaires
Thématiques :
- patrimoine industriel du Territoire de Belfort
Aire d’étude et canton :
Territoire de Belfort
Dénomination :
cité ouvrière
- © Région Bourgogne-Franche-Comté, Inventaire du patrimoine
