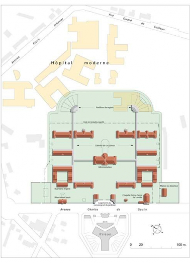
Plan-masse.
89, Auxerre, 2-4 avenue Charles-de-Gaulle
N° de l’illustration : 20128900232NUDA
Date : 2012
Auteur : Alain Morelière
Reproduction soumise à autorisation du titulaire des droits d'exploitation
- © Région Bourgogne-Franche-Comté, Inventaire du patrimoine
Vue d'ensemble avec les vignes.
89, Auxerre, 2-4 avenue Charles-de-Gaulle
N° de l’illustration : 20018900143ZA
Date : 2001
Auteur : Jean-Luc Duthu
Reproduction soumise à autorisation du titulaire des droits d'exploitation
- © Région Bourgogne-Franche-Comté, Inventaire du patrimoine
Vue d'ensemble avec les vignes.
89, Auxerre, 2-4 avenue Charles-de-Gaulle
N° de l’illustration : 20018900142ZA
Date : 2001
Auteur : Jean-Luc Duthu
Reproduction soumise à autorisation du titulaire des droits d'exploitation
- © Région Bourgogne-Franche-Comté, Inventaire du patrimoine
Vue d'ensemble avec les vignes.
89, Auxerre, 2-4 avenue Charles-de-Gaulle
N° de l’illustration : 20018900141ZA
Date : 2001
Auteur : Jean-Luc Duthu
Reproduction soumise à autorisation du titulaire des droits d'exploitation
- © Région Bourgogne-Franche-Comté, Inventaire du patrimoine
Vue d'ensemble depuis l'entrée.
89, Auxerre, 2-4 avenue Charles-de-Gaulle
N° de l’illustration : 20118900040NUC2A
Date : 2011
Auteur : Alain Morelière
Reproduction soumise à autorisation du titulaire des droits d'exploitation
- © Région Bourgogne-Franche-Comté, Inventaire du patrimoine
Portail d'entrée.
89, Auxerre, 2-4 avenue Charles-de-Gaulle
N° de l’illustration : 20018900121ZA
Date : 2001
Auteur : Jean-Luc Duthu
Reproduction soumise à autorisation du titulaire des droits d'exploitation
- © Région Bourgogne-Franche-Comté, Inventaire du patrimoine
Portail d'entrée.
89, Auxerre, 2-4 avenue Charles-de-Gaulle
N° de l’illustration : 20118900017NUC2A
Date : 2011
Auteur : Alain Morelière
Reproduction soumise à autorisation du titulaire des droits d'exploitation
- © Région Bourgogne-Franche-Comté, Inventaire du patrimoine
Revers du portail d'entrée et prison.
89, Auxerre, 2-4 avenue Charles-de-Gaulle
N° de l’illustration : 20118900034NUC2A
Date : 2011
Auteur : Alain Morelière
Reproduction soumise à autorisation du titulaire des droits d'exploitation
- © Région Bourgogne-Franche-Comté, Inventaire du patrimoine
Bâtiment central, façade postérieure.
89, Auxerre, 2-4 avenue Charles-de-Gaulle
N° de l’illustration : 20118900029NUC2A
Date : 2011
Auteur : Alain Morelière
Reproduction soumise à autorisation du titulaire des droits d'exploitation
- © Région Bourgogne-Franche-Comté, Inventaire du patrimoine
Bâtiment central.
89, Auxerre, 2-4 avenue Charles-de-Gaulle
N° de l’illustration : 20118900019NUC2A
Date : 2011
Auteur : Alain Morelière
Reproduction soumise à autorisation du titulaire des droits d'exploitation
- © Région Bourgogne-Franche-Comté, Inventaire du patrimoine
Façade postérieure du bâtiment central et ancien quartier des femmes.
89, Auxerre, 2-4 avenue Charles-de-Gaulle
N° de l’illustration : 20118900042NUC2A
Date : 2011
Auteur : Alain Morelière
Reproduction soumise à autorisation du titulaire des droits d'exploitation
- © Région Bourgogne-Franche-Comté, Inventaire du patrimoine
Bâtiment central, partie gauche de la façade.
89, Auxerre, 2-4 avenue Charles-de-Gaulle
N° de l’illustration : 20018900117ZA
Date : 2001
Auteur : Jean-Luc Duthu
Reproduction soumise à autorisation du titulaire des droits d'exploitation
- © Région Bourgogne-Franche-Comté, Inventaire du patrimoine
Bâtiment central, partie gauche de la façade en 2001.
89, Auxerre, 2-4 avenue Charles-de-Gaulle
N° de l’illustration : 20018900115XA
Date : 2001
Auteur : Jean-Luc Duthu
Reproduction soumise à autorisation du titulaire des droits d'exploitation
- © Région Bourgogne-Franche-Comté, Inventaire du patrimoine
Bâtiment central, administratif.
89, Auxerre, 2-4 avenue Charles-de-Gaulle
N° de l’illustration : 20018900112XA
Date : 2001
Auteur : Jean-Luc Duthu
Reproduction soumise à autorisation du titulaire des droits d'exploitation
- © Région Bourgogne-Franche-Comté, Inventaire du patrimoine
Bâtiment central, façade postérieure avec galerie en 2001.
89, Auxerre, 2-4 avenue Charles-de-Gaulle
N° de l’illustration : 20018900120ZA
Date : 2001
Auteur : Jean-Luc Duthu
Reproduction soumise à autorisation du titulaire des droits d'exploitation
- © Région Bourgogne-Franche-Comté, Inventaire du patrimoine
Bâtiment central, façade postérieure et cuisine construite en 1958.
89, Auxerre, 2-4 avenue Charles-de-Gaulle
N° de l’illustration : 20018900119ZA
Date : 2001
Auteur : Jean-Luc Duthu
Reproduction soumise à autorisation du titulaire des droits d'exploitation
- © Région Bourgogne-Franche-Comté, Inventaire du patrimoine
Bâtiment central, façade postérieure et cuisine construite en 1958 (1er plan).
89, Auxerre, 2-4 avenue Charles-de-Gaulle
N° de l’illustration : 20018900118ZA
Date : 2001
Auteur : Jean-Luc Duthu
Reproduction soumise à autorisation du titulaire des droits d'exploitation
- © Région Bourgogne-Franche-Comté, Inventaire du patrimoine
Bassin devant le bâtiment central.
89, Auxerre, 2-4 avenue Charles-de-Gaulle
N° de l’illustration : 20118900035NUC2A
Date : 2011
Auteur : Alain Morelière
Reproduction soumise à autorisation du titulaire des droits d'exploitation
- © Région Bourgogne-Franche-Comté, Inventaire du patrimoine
Façade est d'un des bâtiments postérieurs.
89, Auxerre, 2-4 avenue Charles-de-Gaulle
N° de l’illustration : 20118900027NUC2A
Date : 2011
Auteur : Alain Morelière
Reproduction soumise à autorisation du titulaire des droits d'exploitation
- © Région Bourgogne-Franche-Comté, Inventaire du patrimoine
Façade est d'un des bâtiments postérieurs.
89, Auxerre, 2-4 avenue Charles-de-Gaulle
N° de l’illustration : 20118900028NUC2A
Date : 2011
Auteur : Alain Morelière
Reproduction soumise à autorisation du titulaire des droits d'exploitation
- © Région Bourgogne-Franche-Comté, Inventaire du patrimoine
Quartier des femmes.
89, Auxerre, 2-4 avenue Charles-de-Gaulle
N° de l’illustration : 20018900122ZA
Date : 2001
Auteur : Jean-Luc Duthu
Reproduction soumise à autorisation du titulaire des droits d'exploitation
- © Région Bourgogne-Franche-Comté, Inventaire du patrimoine
Bâtiment de l'ancien quartier des femmes.
89, Auxerre, 2-4 avenue Charles-de-Gaulle
N° de l’illustration : 20118900033NUC2A
Date : 2011
Auteur : Alain Morelière
Reproduction soumise à autorisation du titulaire des droits d'exploitation
- © Région Bourgogne-Franche-Comté, Inventaire du patrimoine
Quartier des femmes, bâtiment postérieur nord, façade ouest.
89, Auxerre, 2-4 avenue Charles-de-Gaulle
N° de l’illustration : 20018900140ZA
Date : 2001
Auteur : Jean-Luc Duthu
Reproduction soumise à autorisation du titulaire des droits d'exploitation
- © Région Bourgogne-Franche-Comté, Inventaire du patrimoine
Quartier des femmes, bâtiments postérieurs, façades ouest.
89, Auxerre, 2-4 avenue Charles-de-Gaulle
N° de l’illustration : 20018900138ZA
Date : 2001
Auteur : Jean-Luc Duthu
Reproduction soumise à autorisation du titulaire des droits d'exploitation
- © Région Bourgogne-Franche-Comté, Inventaire du patrimoine
Quartier des femmes, un des bâtiments postérieurs, façade est.
89, Auxerre, 2-4 avenue Charles-de-Gaulle
N° de l’illustration : 20018900137ZA
Date : 2001
Auteur : Jean-Luc Duthu
Reproduction soumise à autorisation du titulaire des droits d'exploitation
- © Région Bourgogne-Franche-Comté, Inventaire du patrimoine
Quartier des femmes, bâtiment des pensionnaires.
89, Auxerre, 2-4 avenue Charles-de-Gaulle
N° de l’illustration : 20018900125ZA
Date : 2001
Auteur : Jean-Luc Duthu
Reproduction soumise à autorisation du titulaire des droits d'exploitation
- © Région Bourgogne-Franche-Comté, Inventaire du patrimoine
Quartier des femmes, bâtiment postérieur nord, façade ouest.
89, Auxerre, 2-4 avenue Charles-de-Gaulle
N° de l’illustration : 20018900139ZA
Date : 2001
Auteur : Jean-Luc Duthu
Reproduction soumise à autorisation du titulaire des droits d'exploitation
- © Région Bourgogne-Franche-Comté, Inventaire du patrimoine
Quartier des femmes, galeries de liaison.
89, Auxerre, 2-4 avenue Charles-de-Gaulle
N° de l’illustration : 20018900126ZA
Date : 2001
Auteur : Jean-Luc Duthu
Reproduction soumise à autorisation du titulaire des droits d'exploitation
- © Région Bourgogne-Franche-Comté, Inventaire du patrimoine
Bâtiment des "agités" de l'ancien quartier des femmes.
89, Auxerre, 2-4 avenue Charles-de-Gaulle
N° de l’illustration : 20118900030NUC2A
Date : 2011
Auteur : Alain Morelière
Reproduction soumise à autorisation du titulaire des droits d'exploitation
- © Région Bourgogne-Franche-Comté, Inventaire du patrimoine
Quartier des hommes.
89, Auxerre, 2-4 avenue Charles-de-Gaulle
N° de l’illustration : 20018900134ZA
Date : 2001
Auteur : Jean-Luc Duthu
Reproduction soumise à autorisation du titulaire des droits d'exploitation
- © Région Bourgogne-Franche-Comté, Inventaire du patrimoine
Premier bâtiment de l'ancien quartier des hommes.
89, Auxerre, 2-4 avenue Charles-de-Gaulle
N° de l’illustration : 20118900021NUC2A
Date : 2011
Auteur : Alain Morelière
Reproduction soumise à autorisation du titulaire des droits d'exploitation
- © Région Bourgogne-Franche-Comté, Inventaire du patrimoine
Ancien quartier des hommes, deuxième bâtiment, façade sur la troisième cour.
89, Auxerre, 2-4 avenue Charles-de-Gaulle
N° de l’illustration : 20118900026NUC2A
Date : 2011
Auteur : Alain Morelière
Reproduction soumise à autorisation du titulaire des droits d'exploitation
- © Région Bourgogne-Franche-Comté, Inventaire du patrimoine
Ancien quartier des hommes, bâtiment postérieur de la troisième cour.
89, Auxerre, 2-4 avenue Charles-de-Gaulle
N° de l’illustration : 20118900025NUC2A
Date : 2011
Auteur : Alain Morelière
Reproduction soumise à autorisation du titulaire des droits d'exploitation
- © Région Bourgogne-Franche-Comté, Inventaire du patrimoine
Bâtiment des "agités" de l'ancien quartier des hommes.
89, Auxerre, 2-4 avenue Charles-de-Gaulle
N° de l’illustration : 20118900031NUC2A
Date : 2011
Auteur : Alain Morelière
Reproduction soumise à autorisation du titulaire des droits d'exploitation
- © Région Bourgogne-Franche-Comté, Inventaire du patrimoine
Galerie pricipale de l'ancien quartier des hommes, vue intérieure.
89, Auxerre, 2-4 avenue Charles-de-Gaulle
N° de l’illustration : 20118900024NUC2A
Date : 2011
Auteur : Alain Morelière
Reproduction soumise à autorisation du titulaire des droits d'exploitation
- © Région Bourgogne-Franche-Comté, Inventaire du patrimoine
Chapelle et petite dépendance.
89, Auxerre, 2-4 avenue Charles-de-Gaulle
N° de l’illustration : 20118900020NUC2A
Date : 2011
Auteur : Alain Morelière
Reproduction soumise à autorisation du titulaire des droits d'exploitation
- © Région Bourgogne-Franche-Comté, Inventaire du patrimoine
Façade de la chapelle.
89, Auxerre, 2-4 avenue Charles-de-Gaulle
N° de l’illustration : 20018900131ZA
Date : 2001
Auteur : Jean-Luc Duthu
Reproduction soumise à autorisation du titulaire des droits d'exploitation
- © Région Bourgogne-Franche-Comté, Inventaire du patrimoine
Façade de la chapelle.
89, Auxerre, 2-4 avenue Charles-de-Gaulle
N° de l’illustration : 20018900130ZA
Date : 2001
Auteur : Jean-Luc Duthu
Reproduction soumise à autorisation du titulaire des droits d'exploitation
- © Région Bourgogne-Franche-Comté, Inventaire du patrimoine
Façade de la chapelle.
89, Auxerre, 2-4 avenue Charles-de-Gaulle
N° de l’illustration : 20118900018NUC2A
Date : 2011
Auteur : Alain Morelière
Reproduction soumise à autorisation du titulaire des droits d'exploitation
- © Région Bourgogne-Franche-Comté, Inventaire du patrimoine
Chapelle, vue de trois-quarts.
89, Auxerre, 2-4 avenue Charles-de-Gaulle
N° de l’illustration : 20018900132ZA
Date : 2001
Auteur : Jean-Luc Duthu
Reproduction soumise à autorisation du titulaire des droits d'exploitation
- © Région Bourgogne-Franche-Comté, Inventaire du patrimoine
Chapelle, vue de trois-quarts postérieur.
89, Auxerre, 2-4 avenue Charles-de-Gaulle
N° de l’illustration : 20018900133ZA
Date : 2001
Auteur : Jean-Luc Duthu
Reproduction soumise à autorisation du titulaire des droits d'exploitation
- © Région Bourgogne-Franche-Comté, Inventaire du patrimoine
Chevet de la chapelle et sacristie.
89, Auxerre, 2-4 avenue Charles-de-Gaulle
N° de l’illustration : 20118900022NUC2A
Date : 2011
Auteur : Alain Morelière
Reproduction soumise à autorisation du titulaire des droits d'exploitation
- © Région Bourgogne-Franche-Comté, Inventaire du patrimoine
Vue de la deuxième cour.
89, Auxerre, 2-4 avenue Charles-de-Gaulle
N° de l’illustration : 20118900041NUC2A
Date : 2011
Auteur : Alain Morelière
Reproduction soumise à autorisation du titulaire des droits d'exploitation
- © Région Bourgogne-Franche-Comté, Inventaire du patrimoine
Galerie de liaison, intérieur.
89, Auxerre, 2-4 avenue Charles-de-Gaulle
N° de l’illustration : 20018900128ZA
Date : 2001
Auteur : Jean-Luc Duthu
Reproduction soumise à autorisation du titulaire des droits d'exploitation
- © Région Bourgogne-Franche-Comté, Inventaire du patrimoine
Galeries de liaison.
89, Auxerre, 2-4 avenue Charles-de-Gaulle
N° de l’illustration : 20018900129ZA
Date : 2001
Auteur : Jean-Luc Duthu
Reproduction soumise à autorisation du titulaire des droits d'exploitation
- © Région Bourgogne-Franche-Comté, Inventaire du patrimoine
Galerie de liaison.
89, Auxerre, 2-4 avenue Charles-de-Gaulle
N° de l’illustration : 20118900032NUC2A
Date : 2011
Auteur : Alain Morelière
Reproduction soumise à autorisation du titulaire des droits d'exploitation
- © Région Bourgogne-Franche-Comté, Inventaire du patrimoine
Galeries de liaison.
89, Auxerre, 2-4 avenue Charles-de-Gaulle
N° de l’illustration : 20018900127ZA
Date : 2001
Auteur : Jean-Luc Duthu
Reproduction soumise à autorisation du titulaire des droits d'exploitation
- © Région Bourgogne-Franche-Comté, Inventaire du patrimoine
Le réservoir, façade sur rue.
89, Auxerre, 2-4 avenue Charles-de-Gaulle
N° de l’illustration : 20118900014NUC2A
Date : 2011
Auteur : Alain Morelière
Reproduction soumise à autorisation du titulaire des droits d'exploitation
- © Région Bourgogne-Franche-Comté, Inventaire du patrimoine
Le réservoir, façade sur rue.
89, Auxerre, 2-4 avenue Charles-de-Gaulle
N° de l’illustration : 20118900012NUC2A
Date : 2011
Auteur : Alain Morelière
Reproduction soumise à autorisation du titulaire des droits d'exploitation
- © Région Bourgogne-Franche-Comté, Inventaire du patrimoine
Le réservoir, façade sur cour.
89, Auxerre, 2-4 avenue Charles-de-Gaulle
N° de l’illustration : 20118900037NUC2A
Date : 2011
Auteur : Alain Morelière
Reproduction soumise à autorisation du titulaire des droits d'exploitation
- © Région Bourgogne-Franche-Comté, Inventaire du patrimoine
Le réservoir, détail de la façade sur rue.
89, Auxerre, 2-4 avenue Charles-de-Gaulle
N° de l’illustration : 20118900015NUC2A
Date : 2011
Auteur : Alain Morelière
Reproduction soumise à autorisation du titulaire des droits d'exploitation
- © Région Bourgogne-Franche-Comté, Inventaire du patrimoine
Ancienne buanderie.
89, Auxerre, 2-4 avenue Charles-de-Gaulle
N° de l’illustration : 20118900036NUC2A
Date : 2011
Auteur : Alain Morelière
Reproduction soumise à autorisation du titulaire des droits d'exploitation
- © Région Bourgogne-Franche-Comté, Inventaire du patrimoine
Ancienne buanderie.
89, Auxerre, 2-4 avenue Charles-de-Gaulle
N° de l’illustration : 20018900123ZA
Date : 2001
Auteur : Jean-Luc Duthu
Reproduction soumise à autorisation du titulaire des droits d'exploitation
- © Région Bourgogne-Franche-Comté, Inventaire du patrimoine
Infirmerie.
89, Auxerre, 2-4 avenue Charles-de-Gaulle
N° de l’illustration : 20018900136ZA
Date : 2001
Auteur : Jean-Luc Duthu
Reproduction soumise à autorisation du titulaire des droits d'exploitation
- © Région Bourgogne-Franche-Comté, Inventaire du patrimoine
Infirmerie.
89, Auxerre, 2-4 avenue Charles-de-Gaulle
N° de l’illustration : 20018900135ZA
Date : 2001
Auteur : Jean-Luc Duthu
Reproduction soumise à autorisation du titulaire des droits d'exploitation
- © Région Bourgogne-Franche-Comté, Inventaire du patrimoine
Ancienne maison du directeur.
89, Auxerre, 2-4 avenue Charles-de-Gaulle
N° de l’illustration : 20118900038NUC2A
Date : 2011
Auteur : Alain Morelière
Reproduction soumise à autorisation du titulaire des droits d'exploitation
- © Région Bourgogne-Franche-Comté, Inventaire du patrimoine
Institut de formation.
89, Auxerre, 2-4 avenue Charles-de-Gaulle
N° de l’illustration : 20018900124ZA
Date : 2001
Auteur : Jean-Luc Duthu
Reproduction soumise à autorisation du titulaire des droits d'exploitation
- © Région Bourgogne-Franche-Comté, Inventaire du patrimoine
Pavillon du concierge.
89, Auxerre, 2-4 avenue Charles-de-Gaulle
N° de l’illustration : 20118900016NUC2A
Date : 2011
Auteur : Alain Morelière
Reproduction soumise à autorisation du titulaire des droits d'exploitation
- © Région Bourgogne-Franche-Comté, Inventaire du patrimoine
Puits de la première cour à droite.
89, Auxerre, 2-4 avenue Charles-de-Gaulle
N° de l’illustration : 20118900023NUC2A
Date : 2011
Auteur : Alain Morelière
Reproduction soumise à autorisation du titulaire des droits d'exploitation
- © Région Bourgogne-Franche-Comté, Inventaire du patrimoine
Petite dépendance vue de la rue.
89, Auxerre, 2-4 avenue Charles-de-Gaulle
N° de l’illustration : 20118900039NUC2A
Date : 2011
Auteur : Alain Morelière
Reproduction soumise à autorisation du titulaire des droits d'exploitation
- © Région Bourgogne-Franche-Comté, Inventaire du patrimoine