ATELIERS DE LA SOCIÉTÉ ELECTRIQUE DE MONTJOIE
25 - Pont-de-Roide
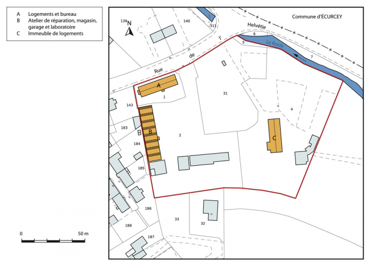
33 rue d' Helvétie
- Dossier IA25001055 réalisé en 2012 revu en 2013
- Auteur(s) : Raphaël Favereaux
Historique
En 1927-1928, la Société Electrique de Montjoie, également connue sous le nom de A. Mettetal et Cie, fait construire des bâtiments d’exploitation. Fondée en 1901 (ou 1902), elle exploite une centrale hydroélectrique située sur le Doubs, à Montjoie-le-Château, qui distribue l'énergie à 12 communes du Doubs. En 1914, l'usine est équipée d'une turbine Francis (190 kW) et de deux turbines Francis d'une puissance réunie de 120 kW, sous une chute de 4,30 m. En 1924, la chute et la centrale de Montjoie sont supprimées, au profit d’une nouvelle usine hydroélectrique construite en amont par la société de Saint-Hippolyte. La Société Electrique de Montjoie devient alors une simple société de distribution et fournit l’énergie produite par les sociétés de Saint-Hippolyte et des Forces Motrices du Refrain. Outre les bâtiments industriels (transformateur, magasins de stockage, laboratoire, atelier de réparation et garage), un corps de bâtiment abritant plusieurs logements et des bureaux est construit le long de la route départementale. Les plans sont signés de l’architecte belfortain Eugène Reess. Le bâtiment des logements devait être pourvu d’un étage carré, pour abriter « 5 logements de 5 pièces », mais il a finalement été construit en rez-de-chaussée, doté de 2 ou 3 logements. Après absorption de la Société Electrique de Montjoie, les bâtiments deviennent propriété de la Société des Forces Motrices du Refrain en 1928, avant d’être intégrés en 1934 dans la Société des Forces Motrices de l'Est. Ils sont nationalisés à la Libération, et ont continué d’être utilisés par Electricité de France. Un immeuble abritant trois ou quatre logements a été construit à l'est du site au milieu du 20e siècle, vraisemblablement par EDF.
- 2e quart 20e siècle
- milieu 20e siècle
Eugène Reess, architecte à Montbéliard (Doubs). Il a construit notamment des cités ouvrières dans le Pays de Montbéliard dans les années 1920-1930. Il a construit le foyer municipal d'Audincourt (Doubs) en 1934 et l'école rue du Docteur Duvernoy en 1928.
Description
Les ateliers sont bâtis en maçonnerie enduite, couverts de sheds. Construit en rez-de-chaussée, le bâtiment des logements possède une ossature en pan de fer, hourdé de brique. Il est couvert d’un toit à longs pans en tuile mécanique.
- brique
- fer
- maçonnerie
- pan de fer
- enduit
- tuile mécanique
- en rez-de-chaussée
- énergie électrique achetée
Source(s) documentaire(s)
-
3 P 464/6 Matrice des propriétés bâties (1911-1956)
Matrice des propriétés bâties (1911-1956)Lieu de conservation : Archives départementales du Doubs, Besançon - Cote du document : 3 P 464/6 -
38 J 610 Fonds de l'architecte Eugène Reess. Société hydraulique de Montjoie (1927-1928)
Archives départementales du Territoire de Belfort, Belfort, 38 J 610 Fonds de l'architecte Eugène Reess. Société hydraulique de Montjoie (1927-1928)Lieu de conservation : Archives départementales du Territoire de Belfort, Belfort - Cote du document : 38 J 610
-
Syndicat professionnel des Usines d'Electricité. Annuaire 1914 (dix-neuvième année), 1914
Syndicat professionnel des Usines d'Electricité. Annuaire 1914 (dix-neuvième année). - Lille : Impr. Lefebvre-Ducrocq, 1914. LII-710 p. : ill. ; 27 cm. -
Vuillermot, Catherine. L'électrification dans le département du Doubs (1894-1946), 1985
Vuillermot, Catherine. L'électrification dans le département du Doubs (1894-1946). - Besançon : Université de Franche-Comté, 1985. 182 f. : cartes. ; 30 cm. Mém. maîtrise : Hist. : Université de Franche-Comté : 1985
À voir
Informations complémentaires
- patrimoine industriel du Doubs
- logement
- atelier de réparation
- magasin industriel
- bureau
- laboratoire
- garage
- © Région Bourgogne-Franche-Comté, Inventaire du patrimoine
