ANCIEN HOSPICE SAINT-ANDRÉ, ACTUELLEMENT MAISON
89 - Noyers
- Dossier IA89000096 réalisé en 1970 revu en 2012
- Auteur(s) : Marie-Reine Charvolin, Marie-France Boyon, Claudine Hugonnet-Berger
Historique
En 1852, Elisabeth Boyer, veuve de Charles-André Poulin, légua à l'hospice trois maisons contiguës de la fin du 16e ou du début du 17e siècle (sa maison et les maisons Chaland et Langin), à condition que l'établissement y soit transféré et porte le nom d'hospice Saint-André (A. D. Yonne série O, 1854). Les anciennes maisons furent en partie détruites (certains vestiges comme la cave, les pilastres de la façade sont toujours visibles) puis reconstruites de 1854 à 1855 par Auguste Hardy d'après les devis de l'architecte Perruchon. L'établissement fut béni le 15 octobre 1855 et l'ancien hôtel-Dieu abandonné. L'hospice Saint-André comprenait alors une salle pour les hommes et une pour les femmes, trois chambres, une salle de réunion, quelques petites chambres pour hôtes payants, une cuisine, une petite salle à manger, une lingerie. Des remaniements eurent lieu ultérieurement. De 1889 à 1891 un pavillon annexe, situé à gauche de l'hospice, fut reconstruit par Victor Céleste, entrepreneur à Sennecey-sur-Yonne, sur les plans d'A. Charpentier, architecte de la ville de Tonnerre. En 1869 fut acquise la maison Bossuat, mitoyenne au sud, qui devait servir d'annexe : en 1877, il fut décidé de la réparer puis, finalement, de la reconstruire et pour ce faire, on commença par la démolir ainsi que la maison Langin. La reconstruction ne fut réalisée qu'au début du 20e siècle et, semble-t-il, achevée en 1908. L'établissement fonctionna jusqu'en 1984, date de son transfert dans la nouvelle maison de retraite Saint-André. La plaque de fondation de l'ancien hospice, situé rue Venoise, fut transférée dans l'hospice Saint-André, en ajoutant à l'inscription : "15 octobre 1855, en faisant transférer cette pierre de la maison bâtie par Mr de Selles dans la maison donnée par Mme Elisabeth Boyer Vve Poulin, l'administration de l'hospice au nom de la ville de Noyers reconnaissante du nouveau bienfait, a voulu que le souvenir de l'ancien fût conservé". L'hospice Saint-André fonctionnera dans ces bâtiments jusqu'en 1984. [historique détaillé : H. CORREZE et J. DREANO, publication les Amis du Vieux Noyers].
Période(s)
Principale :
- limite 16e siècle 17e siècle
- 2e moitié 19e siècle
Auteur(s) & personnalité(s)
Charpentier, A. Architecte voyer de la ville de Tonnerre en 1890.
Description
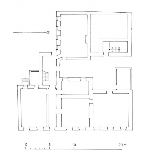
Le bâtiment actuel, en grande partie reconstruit au 19e siècle, comprend un rez-de-chaussée sur cave, un étage carré et un étage de comble. Il présente une façade sur rue à 8 travées dont les ouvertures rectangulaires ont un linteau en arc segmentaire. La 3ème travée est percée d'une porte rectangulaire avec piédroits supportant un entablement et un fronton en arc surbaissé, avec une inscription gravée postérieurement : HOSPICE St. ANDRE. L'angle gauche de la façade est décoré au rez-de-chaussée d'un pilastre à base moulurée et d'un chapiteau sculpté de fleurs et d'oves et à l'étage, d'un pilastre cannelé à chapiteaux à volutes. L'escalier d'accès au premier étage est en bois, à deux volées droites ; un pommeau en cuivre décore le départ de la rampe d'appui. La cave de la partie gauche est couverte de voûtes d'arêtes reposant sur un pilier central. Le toit, à longs pans, est couvert de tuiles plates.
Murs :
- calcaire
- moellon
- enduit
Toit :
- tuile plate
Etages :
- sous-sol
- rez-de-chaussée
- 1 étage carré
- étage de comble
Couvrement :
- voûte d'arêtes
Elévation :
- élévation à travées
Escalier :
- escalier de distribution, escalier tournant à retours, en charpente
Décors :
- sculpture
Volute, fleurs : chapiteaux des pilastres de la façade.
Informations complémentaires
Thématiques :
- patrimoine hospitalier
Aire d’étude et canton :
Bourgogne
Dénomination :
hospice
- © Région Bourgogne-Franche-Comté, Inventaire du patrimoine
