Carte de localisation. Carte topographique au 1:25000, I.G.N., Jussey, 3320 O. SCAN 25 © IGN - 2008, Licence n°2008CISE29-68.
                        
                      
                                                                    
                          70, Passavant-la-Rochère, lieudit : la Rochère
                        
                      
                                                                  
                                            
                                            
                                                                          N° de l’illustration : 20087000402NUDA
                          
                                                                                                  Date : 2008
                        
                                                  Auteur : André Céréza
                                               
                                                                    Reproduction soumise à autorisation du titulaire des droits d'exploitation
                      
                                                                    
                          - © Région Bourgogne-Franche-Comté, Inventaire du patrimoine
 
                                                    
                                                                                                                                                              
                                                              
                                                                                                                                                                                                                                                                                                                                                                                                                                                                                                                            
                                                                                                                                                                                                                                                                                                                                                                                                                                                                                                                                              
                                                                                                                                                                 
                                                                                                                
                      
                                                                    
                          Plan de situation. Extrait du plan cadastral numérisé, 2008, section B, 1:2500. Source : Direction générale des Finances Publiques - Cadastre ; mise à jour : 2008.
                        
                      
                                                                    
                          70, Passavant-la-Rochère, lieudit : la Rochère
                        
                      
                                                                  
                                            
                                            
                                                                          N° de l’illustration : 20087000479NUDA
                          
                                                                                                  Date : 2008
                        
                                                  Auteur : André Céréza
                                               
                                                                    Reproduction soumise à autorisation du titulaire des droits d'exploitation
                      
                                                                    
                          - © Région Bourgogne-Franche-Comté, Inventaire du patrimoine
 
                                                    
                                                                                                                                                              
                                                              
                                                                                                                                                                                                                                                                                                                                                                                                                                                                                                                            
                                                                                                                                                                                                                                                                                                                                                                                                                                                                                                                                              
                                                                                                                                                                 
                                                                                                                
                      
                                                                    
                          Plan-masse de l'usine. Extrait du plan cadastral numérisé, 2008, section B, 1:2500 agrandi à 1:2000. Source : Direction générale des Finances Publiques - Cadastre ; mise à jour : 2008.
                        
                      
                                                                    
                          70, Passavant-la-Rochère, lieudit : la Rochère
                        
                      
                                                                  
                                            
                                            
                                                                          N° de l’illustration : 20087001047NUDA
                          
                                                                                                  Date : 2008
                        
                                                  Auteur : André Céréza
                                               
                                                                    Reproduction soumise à autorisation du titulaire des droits d'exploitation
                      
                                                                    
                          - © Région Bourgogne-Franche-Comté, Inventaire du patrimoine
 
                                                    
                                                                                                                                                              
                                                              
                                                                                                                                                                                                                                                                                                                                                                                                                                                                                                                            
                                                                                                                                                                                                                                                                                                                                                                                                                                                                                                                                              
                                                                                                                                                                 
                                                                                                                
                      
                                                                    
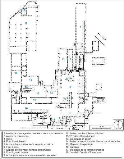
                          Plan-masse de la verrerie en 1991. D'après un plan conservé dans les archives de l'entreprise, 1991, 1:725.
                        
                      
                                                                    
                          70, Passavant-la-Rochère, lieudit : la Rochère
                        
                      
                                                                  
                                                                    
                          
                            
                              
                                                              
                                  
                                    
                                      - 
                                        Plan-masse de la verrerie en 1991. D'après un plan interne, mis au net par A. Céréza, 1991, 1:725.
                                        Lieu de conservation : Verrerie de la Rochère, Passavant-la-Rochère                                      
 
                                 
                                                           
                           
                         
                      
                                            
                                                                          N° de l’illustration : 20087001048NUDA
                          
                                                                                                  Date : 2008
                        
                                                  Auteur : André Céréza
                                               
                                                                    Reproduction soumise à autorisation du titulaire des droits d'exploitation
                      
                                                                    
                          - © Région Bourgogne-Franche-Comté, Inventaire du patrimoine
 
                                                    
                                                                                                                                                              
                                                              
                                                                                                                                                                                                                                                                                                                                                                                                                                                                                                                            
                                                                                                                                                                                                                                                                                                                                                                                                                                                                                                                                              
                                                                                                                                                                 
                                                                                                                
                      
                                                                    
                          Verrerie de la Rochère. Plan des lieux environnant le local de la machine à vapeur [Vue d'ensemble].
                        
                      
                                                                    
                          70, Passavant-la-Rochère, lieudit : la Rochère
                        
                      
                                                                  
                                                                    
                          
                            
                              
                                                              
                                  
                                    
                                      - 
                                        Calque, plume, lavis, s.n, s.d. [1859], échelle 1:1000.  Lieu de conservation : Archives départementales de la Haute-Saône, Vesoul. Cote : 303 S 11
                                        Lieu de conservation : Archives départementales de la Haute-Saône, Vesoul - Cote du document : 303 S 11                                      
 
                                 
                                                           
                           
                         
                      
                                            
                                                                          N° de l’illustration : 20097000049NUC2A
                          
                                                                                                  Date : 2009
                        
                                                  Auteur : Jérôme Mongreville
                                               
                                                                    Reproduction soumise à autorisation du titulaire des droits d'exploitation
                      
                                                                    
                          - © Région Bourgogne-Franche-Comté, Inventaire du patrimoine
 
                                                    
                                                                                                                                                              
                                                              
                                                                                                                                                                                                                                                                                                                                                                                                                                                                                                                            
                                                                                                                                                                                                                                                                                                                                                                                                                                                                                                                                              
                                                                                                                                                                 
                                                                                                                
                      
                                                                    
                          Verrerie de la Rochère. Plan des lieux environnant le local de la machine à vapeur.
                        
                      
                                                                    
                          70, Passavant-la-Rochère, lieudit : la Rochère
                        
                      
                                                                  
                                                                    
                          
                            
                              
                                                              
                                  
                                    
                                      - 
                                        Calque, plume, lavis, s.n, s.d. [1859], échelle 1:1000
                                        Lieu de conservation : Archives départementales de la Haute-Saône, Vesoul - Cote du document : 303 S 11                                      
 
                                 
                                                           
                           
                         
                      
                                            
                                                                          N° de l’illustration : 20097000050NUC2A
                          
                                                                                                  Date : 2009
                        
                                                  Auteur : Jérôme Mongreville
                                               
                                                                    Reproduction soumise à autorisation du titulaire des droits d'exploitation
                      
                                                                    
                          - © Région Bourgogne-Franche-Comté, Inventaire du patrimoine
 
                                                    
                                                                                                                                                              
                                                              
                                                                                                                                                                                                                                                                                                                                                                                                                                                                                                                            
                                                                                                                                                                                                                                                                                                                                                                                                                                                                                                                                              
                                                                                                                                                                 
                                                                                                                
                      
                                                                    
                          Vue cavalière.
                        
                      
                                                                    
                          70, Passavant-la-Rochère, lieudit : la Rochère
                        
                      
                                                                  
                                                                    
                          
                            
                              
                                                              
                                  
                                    
                                      - 
                                        Gravure, s.n., s.d. [1894]. Dans : " Sicard (Jules). Franche-Comté. Industrie. Commerce ", p.141.
                                                                              
 
                                 
                                                           
                           
                         
                      
                                            
                                                                          N° de l’illustration : 19937000004X
                          
                                                                                                  Date : 1993
                        
                                                  Auteur : Jérôme Mongreville
                                               
                                                                    Reproduction soumise à autorisation du titulaire des droits d'exploitation
                      
                                                                    
                          - © Région Bourgogne-Franche-Comté, Inventaire du patrimoine
 
                                                    
                                                                                                                                                              
                                                              
                                                                                                                                                                                                                                                                                                                                                                                                                                                                                                                            
                                                                                                                                                                                                                                                                                                                                                                                                                                                                                                                                              
                                                                                                                                                                 
                                                                                                                
                      
                                                                    
                          La Haute-Saône illustrée. La Rochère, près de Passavant (Haute-Saône). La cour de la Verrerie. La taillerie.
                        
                      
                                                                    
                          
                        
                      
                                                                  
                                                                    
                          
                            
                              
                                                              
                                  
                                    
                                      - 
                                        Carte postale, s.n., CLB éd., s.d. [fin 19e ou début 20e siècle] Lieu de conservation : collection particulière
                                         - Cote du document : Collection particulière                                      
 
                                 
                                                           
                           
                         
                      
                                            
                                                                          N° de l’illustration : 20077000683NUCA
                          
                                                                                                  Date : 2007
                        
                                                  Auteur : Jérôme Mongreville
                                               
                                                                    Reproduction soumise à autorisation du titulaire des droits d'exploitation
                      
                                                                    
                          - © Région Bourgogne-Franche-Comté, Inventaire du patrimoine
 
                                                    
                                                                                                                                                              
                                                              
                                                                                                                                                                                                                                                                                                                                                                                                                                                                                                                            
                                                                                                                                                                                                                                                                                                                                                                                                                                                                                                                                                                                                                                                          
                                                                                                                                                                 
                                                                                                                
                      
                                                                    
                          Verrerie de la Rochère.
                        
                      
                                                                    
                          70, Passavant-la-Rochère, lieudit : la Rochère
                        
                      
                                                                  
                                                                    
                          
                            
                              
                                                              
                                  
                                    
                                      - 
                                        Photographie , s.d. [1949], par Larcher (photographe). Dans : " L'Opinion économique et financière : Franche-Comté ", p. 83.
                                                                              
 
                                 
                                                           
                           
                         
                      
                                            
                                                                          N° de l’illustration : 20077000688NUCA
                          
                                                                                                  Date : 2007
                        
                                                  Auteur : Jérôme  Mongreville (reproduction)
                                               
                                                                    Reproduction soumise à autorisation du titulaire des droits d'exploitation
                      
                                                                    
                          - © Région Bourgogne-Franche-Comté, Inventaire du patrimoine
 
                                                    
                                                                                                                                                              
                                                              
                                                                                                                                                                                                                                                                                                                                                                                                                                                                                                                            
                                                                                                                                                                                                                                                                                                                                                                                                                                                                                                                                              
                                                                                                                                                                 
                                                                                                                
                      
                                                                    
                          Vue d'ensemble depuis l'ouest.
                        
                      
                                                                    
                          70, Passavant-la-Rochère, lieudit : la Rochère
                        
                      
                                                                  
                                            
                                            
                                                                          N° de l’illustration : 20097000794NUC2A
                          
                                                                                                  Date : 2009
                        
                                                  Auteur : Jérôme Mongreville
                                               
                                                                    Reproduction soumise à autorisation du titulaire des droits d'exploitation
                      
                                                                    
                          - © Région Bourgogne-Franche-Comté, Inventaire du patrimoine
 
                                                    
                                                                                                                                                              
                                                              
                                                                                                                                                                                                                                                                                                                                                                                                                                                                                                                            
                                                                                                                                                                                                                                                                                                                                                                                                                                                                                                                                              
                                                                                                                                                                 
                                                                                                                
                      
                                                                    
                          Vue d'ensemble depuis le nord-est
                        
                      
                                                                    
                          70, Passavant-la-Rochère, lieudit : la Rochère
                        
                      
                                                                  
                                            
                                            
                                                                          N° de l’illustration : 20097000789NUC2A
                          
                                                                                                  Date : 2009
                        
                                                  Auteur : Jérôme Mongreville
                                               
                                                                    Reproduction soumise à autorisation du titulaire des droits d'exploitation
                      
                                                                    
                          - © Région Bourgogne-Franche-Comté, Inventaire du patrimoine
 
                                                    
                                                                                                                                                              
                                                              
                                                                                                                                                                                                                                                                                                                                                                                                                                                                                                                            
                                                                                                                                                                                                                                                                                                                                                                                                                                                                                                                                              
                                                                                                                                                                 
                                                                                                                
                      
                                                                    
                          Bassin de retenue et ateliers depuis le nord-est.
                        
                      
                                                                    
                          
                        
                      
                                                                  
                                            
                                            
                                                                          N° de l’illustration : 20097000773NUC2A
                          
                                                                                                  Date : 2009
                        
                                                  Auteur : Jérôme Mongreville
                                               
                                                                    Reproduction soumise à autorisation du titulaire des droits d'exploitation
                      
                                                                    
                          - © Région Bourgogne-Franche-Comté, Inventaire du patrimoine
 
                                                    
                                                                                                                                                              
                                                              
                                                                                                                                                                                                                                                                                                                                                                                                                                                                                                                            
                                                                                                                                                                                                                                                                                                                                                                                                                                                                                                                                              
                                                                                                                                                                 
                                                                                                                
                      
                                                                    
                          Bassin de retenue et façades est des ateliers de fabrication.
                        
                      
                                                                    
                          70, Passavant-la-Rochère, lieudit : la Rochère
                        
                      
                                                                  
                                            
                                            
                                                                          N° de l’illustration : 20097000559NUC2A
                          
                                                                                                  Date : 2009
                        
                                                  Auteur : Jérôme Mongreville
                                               
                                                                    Reproduction soumise à autorisation du titulaire des droits d'exploitation
                      
                                                                    
                          - © Région Bourgogne-Franche-Comté, Inventaire du patrimoine
 
                                                    
                                                                                                                                                              
                                                              
                                                                                                                                                                                                                                                                                                                                                                                                                                                                                                                            
                                                                                                                                                                                                                                                                                                                                                                                                                                                                                                                                              
                                                                                                                                                                 
                                                                                                                
                      
                                                                    
                          Anciens atelier de taillerie et séchoir à bois depuis le nord-ouest.
                        
                      
                                                                    
                          70, Passavant-la-Rochère, lieudit : la Rochère
                        
                      
                                                                  
                                            
                                            
                                                                          N° de l’illustration : 20097000573NUC2A
                          
                                                                                                  Date : 2009
                        
                                                  Auteur : Jérôme Mongreville
                                               
                                                                    Reproduction soumise à autorisation du titulaire des droits d'exploitation
                      
                                                                    
                          - © Région Bourgogne-Franche-Comté, Inventaire du patrimoine
 
                                                    
                                                                                                                                                              
                                                              
                                                                                                                                                                                                                                                                                                                                                                                                                                                                                                                            
                                                                                                                                                                                                                                                                                                                                                                                                                                                                                                                                              
                                                                                                                                                                 
                                                                                                                
                      
                                                                    
                          Façades est des ateliers de fabrication.
                        
                      
                                                                    
                          
                        
                      
                                                                  
                                            
                                            
                                                                          N° de l’illustration : 20097000772NUC2A
                          
                                                                                                  Date : 2009
                        
                                                  Auteur : Jérôme Mongreville
                                               
                                                                    Reproduction soumise à autorisation du titulaire des droits d'exploitation
                      
                                                                    
                          - © Région Bourgogne-Franche-Comté, Inventaire du patrimoine
 
                                                    
                                                                                                                                                              
                                                              
                                                                                                                                                                                                                                                                                                                                                                                                                                                                                                                            
                                                                                                                                                                                                                                                                                                                                                                                                                                                                                                                                              
                                                                                                                                                                 
                                                                                                                
                      
                                                                    
                          Atelier des fours et ancien atelier de taillerie vus de trois quarts.
                        
                      
                                                                    
                          70, Passavant-la-Rochère, lieudit : la Rochère
                        
                      
                                                                  
                                            
                                            
                                                                          N° de l’illustration : 20097000561NUC2A
                          
                                                                                                  Date : 2009
                        
                                                  Auteur : Jérôme Mongreville
                                               
                                                                    Reproduction soumise à autorisation du titulaire des droits d'exploitation
                      
                                                                    
                          - © Région Bourgogne-Franche-Comté, Inventaire du patrimoine
 
                                                    
                                                                                                                                                              
                                                              
                                                                                                                                                                                                                                                                                                                                                                                                                                                                                                                            
                                                                                                                                                                                                                                                                                                                                                                                                                                                                                                                                              
                                                                                                                                                                 
                                                                                                                
                      
                                                                    
                          Façades ouest vues de trois quarts droite.
                        
                      
                                                                    
                          70, Passavant-la-Rochère, lieudit : la Rochère
                        
                      
                                                                  
                                            
                                            
                                                                          N° de l’illustration : 20097000795NUC2A
                          
                                                                                                  Date : 2009
                        
                                                  Auteur : Jérôme Mongreville
                                               
                                                                    Reproduction soumise à autorisation du titulaire des droits d'exploitation
                      
                                                                    
                          - © Région Bourgogne-Franche-Comté, Inventaire du patrimoine
 
                                                    
                                                                                                                                                              
                                                              
                                                                                                                                                                                                                                                                                                                                                                                                                                                                                                                            
                                                                                                                                                                                                                                                                                                                                                                                                                                                                                                                                              
                                                                                                                                                                 
                                                                                                                
                      
                                                                    
                          Magasins industriels à l'entrée du site.
                        
                      
                                                                    
                          70, Passavant-la-Rochère, lieudit : la Rochère
                        
                      
                                                                  
                                            
                                            
                                                                          N° de l’illustration : 20097000787NUC2A
                          
                                                                                                  Date : 2009
                        
                                                  Auteur : Jérôme Mongreville
                                               
                                                                    Reproduction soumise à autorisation du titulaire des droits d'exploitation
                      
                                                                    
                          - © Région Bourgogne-Franche-Comté, Inventaire du patrimoine
 
                                                    
                                                                                                                                                              
                                                              
                                                                                                                                                                                                                                                                                                                                                                                                                                                                                                                            
                                                                                                                                                                                                                                                                                                                                                                                                                                                                                                                                              
                                                                                                                                                                 
                                                                                                                
                      
                                                                    
                          Vue depuis l'entrée.
                        
                      
                                                                    
                          70, Passavant-la-Rochère, lieudit : la Rochère
                        
                      
                                                                  
                                            
                                            
                                                                          N° de l’illustration : 20097000786NUC2A
                          
                                                                                                  Date : 2009
                        
                                                  Auteur : Jérôme Mongreville
                                               
                                                                    Reproduction soumise à autorisation du titulaire des droits d'exploitation
                      
                                                                    
                          - © Région Bourgogne-Franche-Comté, Inventaire du patrimoine
 
                                                    
                                                                                                                                                              
                                                              
                                                                                                                                                                                                                                                                                                                                                                                                                                                                                                                            
                                                                                                                                                                                                                                                                                                                                                                                                                                                                                                                                              
                                                                                                                                                                 
                                                                                                                
                      
                                                                    
                          Vue des bâtiments depuis le nord-est de la cour.
                        
                      
                                                                    
                          70, Passavant-la-Rochère, lieudit : la Rochère
                        
                      
                                                                  
                                            
                                            
                                                                          N° de l’illustration : 20097000777NUC2A
                          
                                                                                                  Date : 2009
                        
                                                  Auteur : Jérôme Mongreville
                                               
                                                                    Reproduction soumise à autorisation du titulaire des droits d'exploitation
                      
                                                                    
                          - © Région Bourgogne-Franche-Comté, Inventaire du patrimoine
 
                                                    
                                                                                                                                                              
                                                              
                                                                                                                                                                                                                                                                                                                                                                                                                                                                                                                            
                                                                                                                                                                                                                                                                                                                                                                                                                                                                                                                                              
                                                                                                                                                                 
                                                                                                                
                      
                                                                    
                          Atelier, bureaux et magasins depuis le nord-est de la cour.
                        
                      
                                                                    
                          70, Passavant-la-Rochère, lieudit : la Rochère
                        
                      
                                                                  
                                            
                                            
                                                                          N° de l’illustration : 20097000778NUC2A
                          
                                                                                                  Date : 2009
                        
                                                  Auteur : Jérôme Mongreville
                                               
                                                                    Reproduction soumise à autorisation du titulaire des droits d'exploitation
                      
                                                                    
                          - © Région Bourgogne-Franche-Comté, Inventaire du patrimoine
 
                                                    
                                                                                                                                                              
                                                              
                                                                                                                                                                                                                                                                                                                                                                                                                                                                                                                            
                                                                                                                                                                                                                                                                                                                                                                                                                                                                                                                                              
                                                                                                                                                                 
                                                                                                                
                      
                                                                    
                          Magasin de stockage et d'expédition.
                        
                      
                                                                    
                          70, Passavant-la-Rochère, lieudit : la Rochère
                        
                      
                                                                  
                                            
                                            
                                                                          N° de l’illustration : 20097000775NUC2A
                          
                                                                                                  Date : 2009
                        
                                                  Auteur : Jérôme Mongreville
                                               
                                                                    Reproduction soumise à autorisation du titulaire des droits d'exploitation
                      
                                                                    
                          - © Région Bourgogne-Franche-Comté, Inventaire du patrimoine
 
                                                    
                                                                                                                                                              
                                                              
                                                                                                                                                                                                                                                                                                                                                                                                                                                                                                                            
                                                                                                                                                                                                                                                                                                                                                                                                                                                                                                                                              
                                                                                                                                                                 
                                                                                                                
                      
                                                                    
                          Les bureaux.
                        
                      
                                                                    
                          70, Passavant-la-Rochère, lieudit : la Rochère
                        
                      
                                                                  
                                            
                                            
                                                                          N° de l’illustration : 20097000776NUC2A
                          
                                                                                                  Date : 2009
                        
                                                  Auteur : Jérôme Mongreville
                                               
                                                                    Reproduction soumise à autorisation du titulaire des droits d'exploitation
                      
                                                                    
                          - © Région Bourgogne-Franche-Comté, Inventaire du patrimoine
 
                                                    
                                                                                                                                                              
                                                              
                                                                                                                                                                                                                                                                                                                                                                                                                                                                                                                            
                                                                                                                                                                                                                                                                                                                                                                                                                                                                                                                                              
                                                                                                                                                                 
                                                                                                                
                      
                                                                    
                          Atelier de réparation et atelier des fours depuis le nord.
                        
                      
                                                                    
                          70, Passavant-la-Rochère, lieudit : la Rochère
                        
                      
                                                                  
                                            
                                            
                                                                          N° de l’illustration : 20097000566NUC2A
                          
                                                                                                  Date : 2009
                        
                                                  Auteur : Jérôme Mongreville
                                               
                                                                    Reproduction soumise à autorisation du titulaire des droits d'exploitation
                      
                                                                    
                          - © Région Bourgogne-Franche-Comté, Inventaire du patrimoine
 
                                                    
                                                                                                                                                              
                                                              
                                                                                                                                                                                                                                                                                                                                                                                                                                                                                                                            
                                                                                                                                                                                                                                                                                                                                                                                                                                                                                                                                              
                                                                                                                                                                 
                                                                                                                
                      
                                                                    
                          Atelier et cheminée.
                        
                      
                                                                    
                          70, Passavant-la-Rochère, lieudit : la Rochère
                        
                      
                                                                  
                                            
                                            
                                                                          N° de l’illustration : 20097000565NUC2A
                          
                                                                                                  Date : 2009
                        
                                                  Auteur : Jérôme Mongreville
                                               
                                                                    Reproduction soumise à autorisation du titulaire des droits d'exploitation
                      
                                                                    
                          - © Région Bourgogne-Franche-Comté, Inventaire du patrimoine
 
                                                    
                                                                                                                                                              
                                                              
                                                                                                                                                                                                                                                                                                                                                                                                                                                                                                                            
                                                                                                                                                                                                                                                                                                                                                                                                                                                                                                                                              
                                                                                                                                                                 
                                                                                                                
                      
                                                                    
                          Atelier des fours vu de trois quarts.
                        
                      
                                                                    
                          
                        
                      
                                                                  
                                            
                                            
                                                                          N° de l’illustration : 20097000564NUC2A
                          
                                                                                                  Date : 2009
                        
                                                  Auteur : Jérôme Mongreville
                                               
                                                                    Reproduction soumise à autorisation du titulaire des droits d'exploitation
                      
                                                                    
                          - © Région Bourgogne-Franche-Comté, Inventaire du patrimoine
 
                                                    
                                                                                                                                                              
                                                              
                                                                                                                                                                                                                                                                                                                                                                                                                                                                                                                            
                                                                                                                                                                                                                                                                                                                                                                                                                                                                                                                                              
                                                                                                                                                                 
                                                                                                                
                      
                                                                    
                          Façade postérieure de l'atelier des fours.
                        
                      
                                                                    
                          70, Passavant-la-Rochère, lieudit : la Rochère
                        
                      
                                                                  
                                            
                                            
                                                                          N° de l’illustration : 20097000563NUC2A
                          
                                                                                                  Date : 2009
                        
                                                  Auteur : Jérôme Mongreville
                                               
                                                                    Reproduction soumise à autorisation du titulaire des droits d'exploitation
                      
                                                                    
                          - © Région Bourgogne-Franche-Comté, Inventaire du patrimoine
 
                                                    
                                                                                                                                                              
                                                              
                                                                                                                                                                                                                                                                                                                                                                                                                                                                                                                            
                                                                                                                                                                                                                                                                                                                                                                                                                                                                                                                                              
                                                                                                                                                                 
                                                                                                                
                      
                                                                    
                          Atelier des fours. Vue du comble depuis la croupe nord.
                        
                      
                                                                    
                          70, Passavant-la-Rochère, lieudit : la Rochère
                        
                      
                                                                  
                                            
                                            
                                                                          N° de l’illustration : 20077000932NUCA
                          
                                                                                                  Date : 2007
                        
                                                  Auteur : Jérôme Mongreville
                                               
                                                                    Reproduction soumise à autorisation du titulaire des droits d'exploitation
                      
                                                                    
                          - © Région Bourgogne-Franche-Comté, Inventaire du patrimoine
 
                                                    
                                                                                                                                                              
                                                              
                                                                                                                                                                                                                                                                                                                                                                                                                                                                                                                            
                                                                                                                                                                                                                                                                                                                                                                                                                                                                                                                                              
                                                                                                                                                                 
                                                                                                                
                      
                                                                    
                          Charpente de l'atelier des fours. Détail des fermes.
                        
                      
                                                                    
                          70, Passavant-la-Rochère, lieudit : la Rochère
                        
                      
                                                                  
                                            
                                            
                                                                          N° de l’illustration : 20077000931NUCA
                          
                                                                                                  Date : 2007
                        
                                                  Auteur : Jérôme Mongreville
                                               
                                                                    Reproduction soumise à autorisation du titulaire des droits d'exploitation
                      
                                                                    
                          - © Région Bourgogne-Franche-Comté, Inventaire du patrimoine
 
                                                    
                                                                                                                                                              
                                                              
                                                                                                                                                                                                                                                                                                                                                                                                                                                                                                                            
                                                                                                                                                                                                                                                                                                                                                                                                                                                                                                                                              
                                                                                                                                                                 
                                                                                                                
                      
                                                                    
                          Charpente de l'atelier des fours. Détail des assemblages par étriers.
                        
                      
                                                                    
                          70, Passavant-la-Rochère, lieudit : la Rochère
                        
                      
                                                                  
                                            
                                            
                                                                          N° de l’illustration : 20077000933NUCA
                          
                                                                                                  Date : 2007
                        
                                                  Auteur : Jérôme Mongreville
                                               
                                                                    Reproduction soumise à autorisation du titulaire des droits d'exploitation
                      
                                                                    
                          - © Région Bourgogne-Franche-Comté, Inventaire du patrimoine
 
                                                    
                                                                                                                                                              
                                                              
                                                                                                                                                                                                                                                                                                                                                                                                                                                                                                                            
                                                                                                                                                                                                                                                                                                                                                                                                                                                                                                                                              
                                                                                                                                                                 
                                                                                                                
                      
                                                                    
                          Niche de la statue de Saint-Laurent (patron des verriers) placée à l'entrée de l'atelier des fours.
                        
                      
                                                                    
                          70, Passavant-la-Rochère, lieudit : la Rochère
                        
                      
                                                                  
                                            
                                            
                                                                          N° de l’illustration : 20097000790NUC2A
                          
                                                                                                  Date : 2009
                        
                                                  Auteur : Jérôme Mongreville
                                               
                                                                    Reproduction soumise à autorisation du titulaire des droits d'exploitation
                      
                                                                    
                          - © Région Bourgogne-Franche-Comté, Inventaire du patrimoine
 
                                                    
                                                                                                                                                              
                                                              
                                                                                                                                                                                                                                                                                                                                                                                                                                                                                                                            
                                                                                                                                                                                                                                                                                                                                                                                                                                                                                                                                              
                                                                                                                                                                 
                                                                                                                
                      
                                                                    
                          Socle sculpté de la niche de la statue de Saint-Laurent (patron des verriers).
                        
                      
                                                                    
                          70, Passavant-la-Rochère, lieudit : la Rochère
                        
                      
                                                                  
                                            
                                            
                                                                          N° de l’illustration : 20097000788NUC2A
                          
                                                                                                  Date : 2009
                        
                                                  Auteur : Jérôme Mongreville
                                               
                                                                    Reproduction soumise à autorisation du titulaire des droits d'exploitation
                      
                                                                    
                          - © Région Bourgogne-Franche-Comté, Inventaire du patrimoine
 
                                                    
                                                                                                                                                              
                                                              
                                                                                                                                                                                                                                                                                                                                                                                                                                                                                                                            
                                                                                                                                                                                                                                                                                                                                                                                                                                                                                                                                              
                                                                                                                                                                 
                                                                                                                
                      
                                                                    
                          Statue de Saint-Laurent déposée à l'extérieur de la boutique.
                        
                      
                                                                    
                          70, Passavant-la-Rochère, lieudit : la Rochère
                        
                      
                                                                  
                                            
                                            
                                                                          N° de l’illustration : 20077000956NUCA
                          
                                                                                                  Date : 2007
                        
                                                  Auteur : Jérôme Mongreville
                                               
                                                                    Reproduction soumise à autorisation du titulaire des droits d'exploitation
                      
                                                                    
                          - © Région Bourgogne-Franche-Comté, Inventaire du patrimoine
 
                                                    
                                                                                                                                                              
                                                              
                                                                                                                                                                                                                                                                                                                                                                                                                                                                                                                            
                                                                                                                                                                                                                                                                                                                                                                                                                                                                                                                                              
                                                                                                                                                                 
                                                                                                                
                      
                                                                    
                          Meule et lion sculpté, déposés à l'extérieur de la boutique.
                        
                      
                                                                    
                          70, Passavant-la-Rochère, lieudit : la Rochère
                        
                      
                                                                  
                                            
                                            
                                                                          N° de l’illustration : 20097000780NUC2A
                          
                                                                                                  Date : 2009
                        
                                                  Auteur : Jérôme Mongreville
                                               
                                                                    Reproduction soumise à autorisation du titulaire des droits d'exploitation
                      
                                                                    
                          - © Région Bourgogne-Franche-Comté, Inventaire du patrimoine
 
                                                    
                                                                                                                                                              
                                                              
                                                                                                                                                                                                                                                                                                                                                                                                                                                                                                                            
                                                                                                                                                                                                                                                                                                                                                                                                                                                                                                                                              
                                                                                                                                                                 
                                                                                                                
                      
                                                                    
                          Ancien séchoir à bois (boutique).
                        
                      
                                                                    
                          70, Passavant-la-Rochère, lieudit : la Rochère
                        
                      
                                                                  
                                            
                                            
                                                                          N° de l’illustration : 20097000779NUC2A
                          
                                                                                                  Date : 2009
                        
                                                  Auteur : Jérôme Mongreville
                                               
                                                                    Reproduction soumise à autorisation du titulaire des droits d'exploitation
                      
                                                                    
                          - © Région Bourgogne-Franche-Comté, Inventaire du patrimoine
 
                                                    
                                                                                                                                                              
                                                              
                                                                                                                                                                                                                                                                                                                                                                                                                                                                                                                            
                                                                                                                                                                                                                                                                                                                                                                                                                                                                                                                                              
                                                                                                                                                                 
                                                                                                                
                      
                                                                    
                          Ancien séchoir à bois depuis le nord-est.
                        
                      
                                                                    
                          70, Passavant-la-Rochère, lieudit : la Rochère
                        
                      
                                                                  
                                            
                                            
                                                                          N° de l’illustration : 20097000774NUC2A
                          
                                                                                                  Date : 2009
                        
                                                  Auteur : Jérôme Mongreville
                                               
                                                                    Reproduction soumise à autorisation du titulaire des droits d'exploitation
                      
                                                                    
                          - © Région Bourgogne-Franche-Comté, Inventaire du patrimoine
 
                                                    
                                                                                                                                                              
                                                              
                                                                                                                                                                                                                                                                                                                                                                                                                                                                                                                            
                                                                                                                                                                                                                                                                                                                                                                                                                                                                                                                                              
                                                                                                                                                                 
                                                                                                                
                      
                                                                    
                          Ancien séchoir à bois. Vue d'ensemble de la partie est.
                        
                      
                                                                    
                          70, Passavant-la-Rochère, lieudit : la Rochère
                        
                      
                                                                  
                                            
                                            
                                                                          N° de l’illustration : 20097000782NUC2A
                          
                                                                                                  Date : 2009
                        
                                                  Auteur : Jérôme Mongreville
                                               
                                                                    Reproduction soumise à autorisation du titulaire des droits d'exploitation
                      
                                                                    
                          - © Région Bourgogne-Franche-Comté, Inventaire du patrimoine
 
                                                    
                                                                                                                                                              
                                                              
                                                                                                                                                                                                                                                                                                                                                                                                                                                                                                                            
                                                                                                                                                                                                                                                                                                                                                                                                                                                                                                                                              
                                                                                                                                                                 
                                                                                                                
                      
                                                                    
                          Ancien séchoir à bois. Charpente de la partie est.
                        
                      
                                                                    
                          70, Passavant-la-Rochère, lieudit : la Rochère
                        
                      
                                                                  
                                            
                                            
                                                                          N° de l’illustration : 20097000784NUC2A
                          
                                                                                                  Date : 2009
                        
                                                  Auteur : Jérôme Mongreville
                                               
                                                                    Reproduction soumise à autorisation du titulaire des droits d'exploitation
                      
                                                                    
                          - © Région Bourgogne-Franche-Comté, Inventaire du patrimoine
 
                                                    
                                                                                                                                                              
                                                              
                                                                                                                                                                                                                                                                                                                                                                                                                                                                                                                            
                                                                                                                                                                                                                                                                                                                                                                                                                                                                                                                                              
                                                                                                                                                                 
                                                                                                                
                      
                                                                    
                          Ancien séchoir à bois. Vue d'ensemble de la partie ouest.
                        
                      
                                                                    
                          
                        
                      
                                                                  
                                            
                                            
                                                                          N° de l’illustration : 20097000781NUC2A
                          
                                                                                                  Date : 2009
                        
                                                  Auteur : Jérôme Mongreville
                                               
                                                                    Reproduction soumise à autorisation du titulaire des droits d'exploitation
                      
                                                                    
                          - © Région Bourgogne-Franche-Comté, Inventaire du patrimoine
 
                                                    
                                                                                                                                                              
                                                              
                                                                                                                                                                                                                                                                                                                                                                                                                                                                                                                            
                                                                                                                                                                                                                                                                                                                                                                                                                                                                                                                                              
                                                                                                                                                                 
                                                                                                                
                      
                                                                    
                          Ancien séchoir à bois. Détail de l'aménagement de la boutique.
                        
                      
                                                                    
                          70, Passavant-la-Rochère, lieudit : la Rochère
                        
                      
                                                                  
                                            
                                            
                                                                          N° de l’illustration : 20097000785NUC2A
                          
                                                                                                  Date : 2009
                        
                                                  Auteur : Jérôme Mongreville
                                               
                                                                    Reproduction soumise à autorisation du titulaire des droits d'exploitation
                      
                                                                    
                          - © Région Bourgogne-Franche-Comté, Inventaire du patrimoine
 
                                                    
                                                                                                                                                              
                                                              
                                                                                                                                                                                                                                                                                                                                                                                                                                                                                                                            
                                                                                                                                                                                                                                                                                                                                                                                                                                                                                                                                              
                                                                                                                                                                 
                                                                                                                
                      
                                                                    
                          Ancien séchoir à bois. Détail de la charpente.
                        
                      
                                                                    
                          70, Passavant-la-Rochère, lieudit : la Rochère
                        
                      
                                                                  
                                            
                                            
                                                                          N° de l’illustration : 20097000783NUC2A
                          
                                                                                                  Date : 2009
                        
                                                  Auteur : Jérôme Mongreville
                                               
                                                                    Reproduction soumise à autorisation du titulaire des droits d'exploitation
                      
                                                                    
                          - © Région Bourgogne-Franche-Comté, Inventaire du patrimoine
 
                                                    
                                                                                                                                                              
                                                              
                                                                                                                                                                                                                                                                                                                                                                                                                                                                                                                            
                                                                                                                                                                                                                                                                                                                                                                                                                                                                                                                                              
                                                                                                                                                                 
                                                                                                                
                      
                                                                    
                          Façade est de l'ancien atelier de taillerie.
                        
                      
                                                                    
                          70, Passavant-la-Rochère, lieudit : la Rochère
                        
                      
                                                                  
                                            
                                            
                                                                          N° de l’illustration : 20097000560NUC2A
                          
                                                                                                  Date : 2009
                        
                                                  Auteur : Jérôme Mongreville
                                               
                                                                    Reproduction soumise à autorisation du titulaire des droits d'exploitation
                      
                                                                    
                          - © Région Bourgogne-Franche-Comté, Inventaire du patrimoine
 
                                                    
                                                                                                                                                              
                                                              
                                                                                                                                                                                                                                                                                                                                                                                                                                                                                                                            
                                                                                                                                                                                                                                                                                                                                                                                                                                                                                                                                              
                                                                                                                                                                 
                                                                                                                
                      
                                                                    
                          Ancien atelier de taillerie. Elévation de la façade est.
                        
                      
                                                                    
                          70, Passavant-la-Rochère, lieudit : la Rochère
                        
                      
                                                                  
                                            
                                            
                                                                          N° de l’illustration : 20097000562NUC2A
                          
                                                                                                  Date : 2009
                        
                                                  Auteur : Jérôme Mongreville
                                               
                                                                    Reproduction soumise à autorisation du titulaire des droits d'exploitation
                      
                                                                    
                          - © Région Bourgogne-Franche-Comté, Inventaire du patrimoine
 
                                                    
                                                                                                                                                              
                                                              
                                                                                                                                                                                                                                                                                                                                                                                                                                                                                                                            
                                                                                                                                                                                                                                                                                                                                                                                                                                                                                                                                              
                                                                                                                                                                 
                                                                                                                
                      
                                                                    
                          Etage de soubassement de la taillerie. Vue depuis le nord.
                        
                      
                                                                    
                          70, Passavant-la-Rochère, lieudit : la Rochère
                        
                      
                                                                  
                                            
                                            
                                                                          N° de l’illustration : 20077000957NUCA
                          
                                                                                                  Date : 2007
                        
                                                  Auteur : Jérôme Mongreville
                                               
                                                                    Reproduction soumise à autorisation du titulaire des droits d'exploitation
                      
                                                                    
                          - © Région Bourgogne-Franche-Comté, Inventaire du patrimoine
 
                                                    
                                                                                                                                                              
                                                              
                                                                                                                                                                                                                                                                                                                                                                                                                                                                                                                            
                                                                                                                                                                                                                                                                                                                                                                                                                                                                                                                                              
                                                                                                                                                                 
                                                                                                                
                      
                                                                    
                          Etage de soubassement de la taillerie. Vue depuis le sud.
                        
                      
                                                                    
                          70, Passavant-la-Rochère, lieudit : la Rochère
                        
                      
                                                                  
                                            
                                            
                                                                          N° de l’illustration : 20077000958NUCA
                          
                                                                                                  Date : 2007
                        
                                                  Auteur : Jérôme Mongreville
                                               
                                                                    Reproduction soumise à autorisation du titulaire des droits d'exploitation
                      
                                                                    
                          - © Région Bourgogne-Franche-Comté, Inventaire du patrimoine
 
                                                    
                                                                                                                                                              
                                                              
                                                                                                                                                                                                                                                                                                                                                                                                                                                                                                                            
                                                                                                                                                                                                                                                                                                                                                                                                                                                                                                                                              
                                                                                                                                                                 
                                                                                                                
                      
                                                                    
                          Magasin industriel. Vue intérieure.
                        
                      
                                                                    
                          70, Passavant-la-Rochère, lieudit : la Rochère
                        
                      
                                                                  
                                            
                                            
                                                                          N° de l’illustration : 20097000793NUC2A
                          
                                                                                                  Date : 2009
                        
                                                  Auteur : Jérôme Mongreville
                                               
                                                                    Reproduction soumise à autorisation du titulaire des droits d'exploitation
                      
                                                                    
                          - © Région Bourgogne-Franche-Comté, Inventaire du patrimoine
 
                                                    
                                                                                                                                                              
                                                              
                                                                                                                                                                                                                                                                                                                                                                                                                                                                                                                            
                                                                                                                                                                                                                                                                                                                                                                                                                                                                                                                                              
                                                                                                                                                                 
                                                                                                                
                      
                                                                    
                          Magasin industriel. Détail de la charpente.
                        
                      
                                                                    
                          70, Passavant-la-Rochère, lieudit : la Rochère
                        
                      
                                                                  
                                            
                                            
                                                                          N° de l’illustration : 20097000792NUC2A
                          
                                                                                                  Date : 2009
                        
                                                  Auteur : Jérôme Mongreville
                                               
                                                                    Reproduction soumise à autorisation du titulaire des droits d'exploitation
                      
                                                                    
                          - © Région Bourgogne-Franche-Comté, Inventaire du patrimoine
 
                                                    
                                                                                                                                                              
                                                              
                                                                                                                                                                                                                                                                                                                                                                                                                                                                                                                            
                                                                                                                                                                                                                                                                                                                                                                                                                                                                                                                                              
                                                                                                                                                                 
                                                                                                                
                      
                                                                    
                          Meules de broyage de la terre (atelier dit pilerie).
                        
                      
                                                                    
                          70, Passavant-la-Rochère, lieudit : la Rochère
                        
                      
                                                                  
                                            
                                            
                                                                          N° de l’illustration : 20077000953NUCA
                          
                                                                                                  Date : 2007
                        
                                                  Auteur : Jérôme Mongreville
                                               
                                                                    Reproduction soumise à autorisation du titulaire des droits d'exploitation
                      
                                                                    
                          - © Région Bourgogne-Franche-Comté, Inventaire du patrimoine
 
                                                    
                                                                                                                                                              
                                                              
                                                                                                                                                                                                                                                                                                                                                                                                                                                                                                                            
                                                                                                                                                                                                                                                                                                                                                                                                                                                                                                                                              
                                                                                                                                                                 
                                                                                                                
                      
                                                                    
                          Meules de broyage de la terre (atelier dit pilerie). Détail de la transmission.
                        
                      
                                                                    
                          70, Passavant-la-Rochère, lieudit : la Rochère
                        
                      
                                                                  
                                            
                                            
                                                                          N° de l’illustration : 20077000954NUCA
                          
                                                                                                  Date : 2007
                        
                                                  Auteur : Jérôme Mongreville
                                               
                                                                    Reproduction soumise à autorisation du titulaire des droits d'exploitation
                      
                                                                    
                          - © Région Bourgogne-Franche-Comté, Inventaire du patrimoine
 
                                                    
                                                                                                                                                              
                                                              
                                                                                                                                                                                                                                                                                                                                                                                                                                                                                                                            
                                                                                                                                                                                                                                                                                                                                                                                                                                                                                                                                              
                                                                                                                                                                 
                                                                                                                
                      
                                                                    
                          Atelier des fours. Cloison en pavés de verre.
                        
                      
                                                                    
                          
                        
                      
                                                                  
                                            
                                            
                                                                          N° de l’illustration : 20097000791NUC2A
                          
                                                                                                  Date : 2009
                        
                                                  Auteur : Jérôme Mongreville
                                               
                                                                    Reproduction soumise à autorisation du titulaire des droits d'exploitation
                      
                                                                    
                          - © Région Bourgogne-Franche-Comté, Inventaire du patrimoine
 
                                                    
                                                                                                                                                              
                                                              
                                                                                                                                                                                                                                                                                                                                                                                                                                                                                                                            
                                                                                                                                                                                                                                                                                                                                                                                                                                                                                                                                              
                                                                                                                                                                 
                                                                                                                
                      
                                                                    
                          Atelier verrerie main. Vue d'ensemble depuis le nord.
                        
                      
                                                                    
                          70, Passavant-la-Rochère, lieudit : la Rochère
                        
                      
                                                                  
                                            
                                            
                                                                          N° de l’illustration : 20077000920NUCA
                          
                                                                                                  Date : 2007
                        
                                                  Auteur : Jérôme Mongreville
                                               
                                                                    Reproduction soumise à autorisation du titulaire des droits d'exploitation
                      
                                                                    
                          - © Région Bourgogne-Franche-Comté, Inventaire du patrimoine
 
                                                    
                                                                                                                                                              
                                                              
                                                                                                                                                                                                                                                                                                                                                                                                                                                                                                                            
                                                                                                                                                                                                                                                                                                                                                                                                                                                                                                                                              
                                                                                                                                                                 
                                                                                                                
                      
                                                                    
                          Atelier verrerie main. Vue d'ensemble depuis l'ouest.
                        
                      
                                                                    
                          70, Passavant-la-Rochère, lieudit : la Rochère
                        
                      
                                                                  
                                            
                                            
                                                                          N° de l’illustration : 20077000929NUCA
                          
                                                                                                  Date : 2007
                        
                                                  Auteur : Jérôme Mongreville
                                               
                                                                    Reproduction soumise à autorisation du titulaire des droits d'exploitation
                      
                                                                    
                          - © Région Bourgogne-Franche-Comté, Inventaire du patrimoine
 
                                                    
                                                                                                                                                              
                                                              
                                                                                                                                                                                                                                                                                                                                                                                                                                                                                                                            
                                                                                                                                                                                                                                                                                                                                                                                                                                                                                                                                              
                                                                                                                                                                 
                                                                                                                
                      
                                                                    
                          Atelier verrerie main. Mouleur et cueilleur marbreur.
                        
                      
                                                                    
                          70, Passavant-la-Rochère, lieudit : la Rochère
                        
                      
                                                                  
                                            
                                            
                                                                          N° de l’illustration : 20077000921NUCA
                          
                                                                                                  Date : 2007
                        
                                                  Auteur : Jérôme Mongreville
                                               
                                                                    Reproduction soumise à autorisation du titulaire des droits d'exploitation
                      
                                                                    
                          - © Région Bourgogne-Franche-Comté, Inventaire du patrimoine
 
                                                    
                                                                                                                                                              
                                                              
                                                                                                                                                                                                                                                                                                                                                                                                                                                                                                                            
                                                                                                                                                                                                                                                                                                                                                                                                                                                                                                                                              
                                                                                                                                                                 
                                                                                                                
                      
                                                                    
                          Atelier verrerie main. Four à pots.
                        
                      
                                                                    
                          
                        
                      
                                                                  
                                            
                                            
                                                                          N° de l’illustration : 20077000925NUCA
                          
                                                                                                  Date : 2007
                        
                                                  Auteur : Jérôme Mongreville
                                               
                                                                    Reproduction soumise à autorisation du titulaire des droits d'exploitation
                      
                                                                    
                          - © Région Bourgogne-Franche-Comté, Inventaire du patrimoine
 
                                                    
                                                                                                                                                              
                                                              
                                                                                                                                                                                                                                                                                                                                                                                                                                                                                                                            
                                                                                                                                                                                                                                                                                                                                                                                                                                                                                                                                              
                                                                                                                                                                 
                                                                                                                
                      
                                                                    
                          Four à pots. Cannes et ouverture.
                        
                      
                                                                    
                          70, Passavant-la-Rochère, lieudit : la Rochère
                        
                      
                                                                  
                                            
                                            
                                                                          N° de l’illustration : 20077000924NUCA
                          
                                                                                                  Date : 2007
                        
                                                  Auteur : Jérôme Mongreville
                                               
                                                                    Reproduction soumise à autorisation du titulaire des droits d'exploitation
                      
                                                                    
                          - © Région Bourgogne-Franche-Comté, Inventaire du patrimoine
 
                                                    
                                                                                                                                                              
                                                              
                                                                                                                                                                                                                                                                                                                                                                                                                                                                                                                            
                                                                                                                                                                                                                                                                                                                                                                                                                                                                                                                                              
                                                                                                                                                                 
                                                                                                                
                      
                                                                    
                          Four à pots. Ouverture.
                        
                      
                                                                    
                          
                        
                      
                                                                  
                                            
                                            
                                                                          N° de l’illustration : 20077000928NUCA
                          
                                                                                                  Date : 2007
                        
                                                  Auteur : Jérôme Mongreville
                                               
                                                                    Reproduction soumise à autorisation du titulaire des droits d'exploitation
                      
                                                                    
                          - © Région Bourgogne-Franche-Comté, Inventaire du patrimoine
 
                                                    
                                                                                                                                                              
                                                              
                                                                                                                                                                                                                                                                                                                                                                                                                                                                                                                            
                                                                                                                                                                                                                                                                                                                                                                                                                                                                                                                                              
                                                                                                                                                                 
                                                                                                                
                      
                                                                    
                          Prélèvement du verre en fusion (ou cueillage) par le cueilleur marbreur.
                        
                      
                                                                    
                          70, Passavant-la-Rochère, lieudit : la Rochère
                        
                      
                                                                  
                                            
                                            
                                                                          N° de l’illustration : 20077000926NUCA
                          
                                                                                                  Date : 2007
                        
                                                  Auteur : Jérôme Mongreville
                                               
                                                                    Reproduction soumise à autorisation du titulaire des droits d'exploitation
                      
                                                                    
                          - © Région Bourgogne-Franche-Comté, Inventaire du patrimoine
 
                                                    
                                                                                                                                                              
                                                              
                                                                                                                                                                                                                                                                                                                                                                                                                                                                                                                            
                                                                                                                                                                                                                                                                                                                                                                                                                                                                                                                                              
                                                                                                                                                                 
                                                                                                                
                      
                                                                    
                          Préparation de la paraison pour le maillochage.
                        
                      
                                                                    
                          70, Passavant-la-Rochère, lieudit : la Rochère
                        
                      
                                                                  
                                            
                                            
                                                                          N° de l’illustration : 20077000927NUCA
                          
                                                                                                  Date : 2007
                        
                                                  Auteur : Jérôme Mongreville
                                               
                                                                    Reproduction soumise à autorisation du titulaire des droits d'exploitation
                      
                                                                    
                          - © Région Bourgogne-Franche-Comté, Inventaire du patrimoine
 
                                                    
                                                                                                                                                              
                                                              
                                                                                                                                                                                                                                                                                                                                                                                                                                                                                                                            
                                                                                                                                                                                                                                                                                                                                                                                                                                                                                                                                              
                                                                                                                                                                 
                                                                                                                
                      
                                                                    
                          Maillochage (préformation de la paraison).
                        
                      
                                                                    
                          70, Passavant-la-Rochère, lieudit : la Rochère
                        
                      
                                                                  
                                            
                                            
                                                                          N° de l’illustration : 20077000917NUCA
                          
                                                                                                  Date : 2007
                        
                                                  Auteur : Jérôme Mongreville
                                               
                                                                    Reproduction soumise à autorisation du titulaire des droits d'exploitation
                      
                                                                    
                          - © Région Bourgogne-Franche-Comté, Inventaire du patrimoine
 
                                                    
                                                                                                                                                              
                                                              
                                                                                                                                                                                                                                                                                                                                                                                                                                                                                                                            
                                                                                                                                                                                                                                                                                                                                                                                                                                                                                                                                              
                                                                                                                                                                 
                                                                                                                
                      
                                                                    
                          Soufflage de la pièce maillochée.
                        
                      
                                                                    
                          
                        
                      
                                                                  
                                            
                                            
                                                                          N° de l’illustration : 20077000919NUCA
                          
                                                                                                  Date : 2007
                        
                                                  Auteur : Jérôme Mongreville
                                               
                                                                    Reproduction soumise à autorisation du titulaire des droits d'exploitation
                      
                                                                    
                          - © Région Bourgogne-Franche-Comté, Inventaire du patrimoine
 
                                                    
                                                                                                                                                              
                                                              
                                                                                                                                                                                                                                                                                                                                                                                                                                                                                                                            
                                                                                                                                                                                                                                                                                                                                                                                                                                                                                                                                              
                                                                                                                                                                 
                                                                                                                
                      
                                                                    
                          Soufflage dans le moule, dit "gamin mécanique".
                        
                      
                                                                    
                          70, Passavant-la-Rochère, lieudit : la Rochère
                        
                      
                                                                  
                                            
                                            
                                                                          N° de l’illustration : 20077000918NUCA
                          
                                                                                                  Date : 2007
                        
                                                  Auteur : Jérôme Mongreville
                                               
                                                                    Reproduction soumise à autorisation du titulaire des droits d'exploitation
                      
                                                                    
                          - © Région Bourgogne-Franche-Comté, Inventaire du patrimoine
 
                                                    
                                                                                                                                                              
                                                              
                                                                                                                                                                                                                                                                                                                                                                                                                                                                                                                            
                                                                                                                                                                                                                                                                                                                                                                                                                                                                                                                                              
                                                                                                                                                                 
                                                                                                                
                      
                                                                    
                          Réception du verre par le poseur de jambe.
                        
                      
                                                                    
                          70, Passavant-la-Rochère, lieudit : la Rochère
                        
                      
                                                                  
                                            
                                            
                                                                          N° de l’illustration : 20077000916NUCA
                          
                                                                                                  Date : 2007
                        
                                                  Auteur : Jérôme Mongreville
                                               
                                                                    Reproduction soumise à autorisation du titulaire des droits d'exploitation
                      
                                                                    
                          - © Région Bourgogne-Franche-Comté, Inventaire du patrimoine
 
                                                    
                                                                                                                                                              
                                                              
                                                                                                                                                                                                                                                                                                                                                                                                                                                                                                                            
                                                                                                                                                                                                                                                                                                                                                                                                                                                                                                                                              
                                                                                                                                                                 
                                                                                                                
                      
                                                                    
                          Réception du verre pour la formation de la jambe.
                        
                      
                                                                    
                          70, Passavant-la-Rochère, lieudit : la Rochère
                        
                      
                                                                  
                                            
                                            
                                                                          N° de l’illustration : 20077000915NUCA
                          
                                                                                                  Date : 2007
                        
                                                  Auteur : Jérôme Mongreville
                                               
                                                                    Reproduction soumise à autorisation du titulaire des droits d'exploitation
                      
                                                                    
                          - © Région Bourgogne-Franche-Comté, Inventaire du patrimoine
 
                                                    
                                                                                                                                                              
                                                              
                                                                                                                                                                                                                                                                                                                                                                                                                                                                                                                            
                                                                                                                                                                                                                                                                                                                                                                                                                                                                                                                                              
                                                                                                                                                                 
                                                                                                                
                      
                                                                    
                          Formation de la jambe du verre à l'aide de fers.
                        
                      
                                                                    
                          70, Passavant-la-Rochère, lieudit : la Rochère
                        
                      
                                                                  
                                            
                                            
                                                                          N° de l’illustration : 20077000896NUCA
                          
                                                                                                  Date : 2007
                        
                                                  Auteur : Jérôme Mongreville
                                               
                                                                    Reproduction soumise à autorisation du titulaire des droits d'exploitation
                      
                                                                    
                          - © Région Bourgogne-Franche-Comté, Inventaire du patrimoine
 
                                                    
                                                                                                                                                              
                                                              
                                                                                                                                                                                                                                                                                                                                                                                                                                                                                                                            
                                                                                                                                                                                                                                                                                                                                                                                                                                                                                                                                              
                                                                                                                                                                 
                                                                                                                
                      
                                                                    
                          Réception du verre pour la formation du pied.
                        
                      
                                                                    
                          70, Passavant-la-Rochère, lieudit : la Rochère
                        
                      
                                                                  
                                            
                                            
                                                                          N° de l’illustration : 20077000913NUCA
                          
                                                                                                  Date : 2007
                        
                                                  Auteur : Jérôme Mongreville
                                               
                                                                    Reproduction soumise à autorisation du titulaire des droits d'exploitation
                      
                                                                    
                          - © Région Bourgogne-Franche-Comté, Inventaire du patrimoine
 
                                                    
                                                                                                                                                              
                                                              
                                                                                                                                                                                                                                                                                                                                                                                                                                                                                                                            
                                                                                                                                                                                                                                                                                                                                                                                                                                                                                                                                              
                                                                                                                                                                 
                                                                                                                
                      
                                                                    
                          Formation du pied du verre.
                        
                      
                                                                    
                          70, Passavant-la-Rochère, lieudit : la Rochère
                        
                      
                                                                  
                                            
                                            
                                                                          N° de l’illustration : 20077000912NUCA
                          
                                                                                                  Date : 2007
                        
                                                  Auteur : Jérôme Mongreville
                                               
                                                                    Reproduction soumise à autorisation du titulaire des droits d'exploitation
                      
                                                                    
                          - © Région Bourgogne-Franche-Comté, Inventaire du patrimoine
 
                                                    
                                                                                                                                                              
                                                              
                                                                                                                                                                                                                                                                                                                                                                                                                                                                                                                            
                                                                                                                                                                                                                                                                                                                                                                                                                                                                                                                                              
                                                                                                                                                                 
                                                                                                                
                      
                                                                    
                          Formation du pied du verre. Vue rapprochée.
                        
                      
                                                                    
                          70, Passavant-la-Rochère, lieudit : la Rochère
                        
                      
                                                                  
                                            
                                            
                                                                          N° de l’illustration : 20077000914NUCA
                          
                                                                                                  Date : 2007
                        
                                                  Auteur : Jérôme Mongreville
                                               
                                                                    Reproduction soumise à autorisation du titulaire des droits d'exploitation
                      
                                                                    
                          - © Région Bourgogne-Franche-Comté, Inventaire du patrimoine
 
                                                    
                                                                                                                                                              
                                                              
                                                                                                                                                                                                                                                                                                                                                                                                                                                                                                                            
                                                                                                                                                                                                                                                                                                                                                                                                                                                                                                                                              
                                                                                                                                                                 
                                                                                                                
                      
                                                                    
                          Cueillage de la paraison.
                        
                      
                                                                    
                          70, Passavant-la-Rochère, lieudit : la Rochère
                        
                      
                                                                  
                                            
                                            
                                                                          N° de l’illustration : 20077000900NUCA
                          
                                                                                                  Date : 2007
                        
                                                  Auteur : Jérôme Mongreville
                                               
                                                                    Reproduction soumise à autorisation du titulaire des droits d'exploitation
                      
                                                                    
                          - © Région Bourgogne-Franche-Comté, Inventaire du patrimoine
 
                                                    
                                                                                                                                                              
                                                              
                                                                                                                                                                                                                                                                                                                                                                                                                                                                                                                            
                                                                                                                                                                                                                                                                                                                                                                                                                                                                                                                                              
                                                                                                                                                                 
                                                                                                                
                      
                                                                    
                          Poste de moulage (ou "gamin mécanique").
                        
                      
                                                                    
                          70, Passavant-la-Rochère, lieudit : la Rochère
                        
                      
                                                                  
                                            
                                            
                                                                          N° de l’illustration : 20077000922NUCA
                          
                                                                                                  Date : 2007
                        
                                                  Auteur : Jérôme Mongreville
                                               
                                                                    Reproduction soumise à autorisation du titulaire des droits d'exploitation
                      
                                                                    
                          - © Région Bourgogne-Franche-Comté, Inventaire du patrimoine
 
                                                    
                                                                                                                                                              
                                                              
                                                                                                                                                                                                                                                                                                                                                                                                                                                                                                                            
                                                                                                                                                                                                                                                                                                                                                                                                                                                                                                                                              
                                                                                                                                                                 
                                                                                                                
                      
                                                                    
                          Maillochage d'un pied de lampe.
                        
                      
                                                                    
                          70, Passavant-la-Rochère, lieudit : la Rochère
                        
                      
                                                                  
                                            
                                            
                                                                          N° de l’illustration : 20077000901NUCA
                          
                                                                                                  Date : 2007
                        
                                                  Auteur : Jérôme Mongreville
                                               
                                                                    Reproduction soumise à autorisation du titulaire des droits d'exploitation
                      
                                                                    
                          - © Région Bourgogne-Franche-Comté, Inventaire du patrimoine
 
                                                    
                                                                                                                                                              
                                                              
                                                                                                                                                                                                                                                                                                                                                                                                                                                                                                                            
                                                                                                                                                                                                                                                                                                                                                                                                                                                                                                                                              
                                                                                                                                                                 
                                                                                                                
                      
                                                                    
                          Façonnage d'un pied de lampe.
                        
                      
                                                                    
                          70, Passavant-la-Rochère, lieudit : la Rochère
                        
                      
                                                                  
                                            
                                            
                                                                          N° de l’illustration : 20077000902NUCA
                          
                                                                                                  Date : 2007
                        
                                                  Auteur : Jérôme Mongreville
                                               
                                                                    Reproduction soumise à autorisation du titulaire des droits d'exploitation
                      
                                                                    
                          - © Région Bourgogne-Franche-Comté, Inventaire du patrimoine
 
                                                    
                                                                                                                                                              
                                                              
                                                                                                                                                                                                                                                                                                                                                                                                                                                                                                                            
                                                                                                                                                                                                                                                                                                                                                                                                                                                                                                                                              
                                                                                                                                                                 
                                                                                                                
                      
                                                                    
                          Soufflage d'un pied de lampe.
                        
                      
                                                                    
                          70, Passavant-la-Rochère, lieudit : la Rochère
                        
                      
                                                                  
                                            
                                            
                                                                          N° de l’illustration : 20077000904NUCA
                          
                                                                                                  Date : 2007
                        
                                                  Auteur : Jérôme Mongreville
                                               
                                                                    Reproduction soumise à autorisation du titulaire des droits d'exploitation
                      
                                                                    
                          - © Région Bourgogne-Franche-Comté, Inventaire du patrimoine
 
                                                    
                                                                                                                                                              
                                                              
                                                                                                                                                                                                                                                                                                                                                                                                                                                                                                                            
                                                                                                                                                                                                                                                                                                                                                                                                                                                                                                                                              
                                                                                                                                                                 
                                                                                                                
                      
                                                                    
                          Etirage d'un pied de lampe.
                        
                      
                                                                    
                          70, Passavant-la-Rochère, lieudit : la Rochère
                        
                      
                                                                  
                                            
                                            
                                                                          N° de l’illustration : 20077000905NUCA
                          
                                                                                                  Date : 2007
                        
                                                  Auteur : Jérôme Mongreville
                                               
                                                                    Reproduction soumise à autorisation du titulaire des droits d'exploitation
                      
                                                                    
                          - © Région Bourgogne-Franche-Comté, Inventaire du patrimoine
 
                                                    
                                                                                                                                                              
                                                              
                                                                                                                                                                                                                                                                                                                                                                                                                                                                                                                            
                                                                                                                                                                                                                                                                                                                                                                                                                                                                                                                                              
                                                                                                                                                                 
                                                                                                                
                      
                                                                    
                          Façonnage du pied de la lampe (1).
                        
                      
                                                                    
                          70, Passavant-la-Rochère, lieudit : la Rochère
                        
                      
                                                                  
                                            
                                            
                                                                          N° de l’illustration : 20077000908NUCA
                          
                                                                                                  Date : 2007
                        
                                                  Auteur : Jérôme Mongreville
                                               
                                                                    Reproduction soumise à autorisation du titulaire des droits d'exploitation
                      
                                                                    
                          - © Région Bourgogne-Franche-Comté, Inventaire du patrimoine
 
                                                    
                                                                                                                                                              
                                                              
                                                                                                                                                                                                                                                                                                                                                                                                                                                                                                                            
                                                                                                                                                                                                                                                                                                                                                                                                                                                                                                                                              
                                                                                                                                                                 
                                                                                                                
                      
                                                                    
                          Façonnage du pied de la lampe (2).
                        
                      
                                                                    
                          70, Passavant-la-Rochère, lieudit : la Rochère
                        
                      
                                                                  
                                            
                                            
                                                                          N° de l’illustration : 20077000909NUCA
                          
                                                                                                  Date : 2007
                        
                                                  Auteur : Jérôme Mongreville
                                               
                                                                    Reproduction soumise à autorisation du titulaire des droits d'exploitation
                      
                                                                    
                          - © Région Bourgogne-Franche-Comté, Inventaire du patrimoine
 
                                                    
                                                                                                                                                              
                                                              
                                                                                                                                                                                                                                                                                                                                                                                                                                                                                                                            
                                                                                                                                                                                                                                                                                                                                                                                                                                                                                                                                              
                                                                                                                                                                 
                                                                                                                
                      
                                                                    
                          La paraison est enduite d'émail de cristal.
                        
                      
                                                                    
                          70, Passavant-la-Rochère, lieudit : la Rochère
                        
                      
                                                                  
                                            
                                            
                                                                          N° de l’illustration : 20077000907NUCA
                          
                                                                                                  Date : 2007
                        
                                                  Auteur : Jérôme Mongreville
                                               
                                                                    Reproduction soumise à autorisation du titulaire des droits d'exploitation
                      
                                                                    
                          - © Région Bourgogne-Franche-Comté, Inventaire du patrimoine
 
                                                    
                                                                                                                                                              
                                                              
                                                                                                                                                                                                                                                                                                                                                                                                                                                                                                                            
                                                                                                                                                                                                                                                                                                                                                                                                                                                                                                                                              
                                                                                                                                                                 
                                                                                                                
                      
                                                                    
                          Enduction d'émail de cristal. Détail.
                        
                      
                                                                    
                          70, Passavant-la-Rochère, lieudit : la Rochère
                        
                      
                                                                  
                                            
                                            
                                                                          N° de l’illustration : 20077000906NUCA
                          
                                                                                                  Date : 2007
                        
                                                  Auteur : Jérôme Mongreville
                                               
                                                                    Reproduction soumise à autorisation du titulaire des droits d'exploitation
                      
                                                                    
                          - © Région Bourgogne-Franche-Comté, Inventaire du patrimoine
 
                                                    
                                                                                                                                                              
                                                              
                                                                                                                                                                                                                                                                                                                                                                                                                                                                                                                            
                                                                                                                                                                                                                                                                                                                                                                                                                                                                                                                                              
                                                                                                                                                                 
                                                                                                                
                      
                                                                    
                          Soufflage de la paraison.
                        
                      
                                                                    
                          70, Passavant-la-Rochère, lieudit : la Rochère
                        
                      
                                                                  
                                            
                                            
                                                                          N° de l’illustration : 20077000910NUCA
                          
                                                                                                  Date : 2007
                        
                                                  Auteur : Jérôme Mongreville
                                               
                                                                    Reproduction soumise à autorisation du titulaire des droits d'exploitation
                      
                                                                    
                          - © Région Bourgogne-Franche-Comté, Inventaire du patrimoine
 
                                                    
                                                                                                                                                              
                                                              
                                                                                                                                                                                                                                                                                                                                                                                                                                                                                                                            
                                                                                                                                                                                                                                                                                                                                                                                                                                                                                                                                              
                                                                                                                                                                 
                                                                                                                
                      
                                                                    
                          Façonnage d'un pied de lampe.
                        
                      
                                                                    
                          70, Passavant-la-Rochère, lieudit : la Rochère
                        
                      
                                                                  
                                            
                                            
                                                                          N° de l’illustration : 20077000911NUCA
                          
                                                                                                  Date : 2007
                        
                                                  Auteur : Jérôme Mongreville
                                               
                                                                    Reproduction soumise à autorisation du titulaire des droits d'exploitation
                      
                                                                    
                          - © Région Bourgogne-Franche-Comté, Inventaire du patrimoine
 
                                                    
                                                                                                                                                              
                                                              
                                                                                                                                                                                                                                                                                                                                                                                                                                                                                                                            
                                                                                                                                                                                                                                                                                                                                                                                                                                                                                                                                              
                                                                                                                                                                 
                                                                                                                
                      
                                                                    
                          Soufflage d'un pied de lampe.
                        
                      
                                                                    
                          70, Passavant-la-Rochère, lieudit : la Rochère
                        
                      
                                                                  
                                            
                                            
                                                                          N° de l’illustration : 20077000903NUCA
                          
                                                                                                  Date : 2007
                        
                                                  Auteur : Jérôme Mongreville
                                               
                                                                    Reproduction soumise à autorisation du titulaire des droits d'exploitation
                      
                                                                    
                          - © Région Bourgogne-Franche-Comté, Inventaire du patrimoine
 
                                                    
                                                                                                                                                              
                                                              
                                                                                                                                                                                                                                                                                                                                                                                                                                                                                                                            
                                                                                                                                                                                                                                                                                                                                                                                                                                                                                                                                              
                                                                                                                                                                 
                                                                                                                
                      
                                                                    
                          Soufflage. Détail du poste de moulage (ou "gamin mécanique").
                        
                      
                                                                    
                          70, Passavant-la-Rochère, lieudit : la Rochère
                        
                      
                                                                  
                                            
                                            
                                                                          N° de l’illustration : 20077000897NUCA
                          
                                                                                                  Date : 2007
                        
                                                  Auteur : Jérôme Mongreville
                                               
                                                                    Reproduction soumise à autorisation du titulaire des droits d'exploitation
                      
                                                                    
                          - © Région Bourgogne-Franche-Comté, Inventaire du patrimoine
 
                                                    
                                                                                                                                                              
                                                              
                                                                                                                                                                                                                                                                                                                                                                                                                                                                                                                            
                                                                                                                                                                                                                                                                                                                                                                                                                                                                                                                                              
                                                                                                                                                                 
                                                                                                                
                      
                                                                    
                          Four à réchauffer.
                        
                      
                                                                    
                          
                        
                      
                                                                  
                                            
                                            
                                                                          N° de l’illustration : 20077000898NUCA
                          
                                                                                                  Date : 2007
                        
                                                  Auteur : Jérôme Mongreville
                                               
                                                                    Reproduction soumise à autorisation du titulaire des droits d'exploitation
                      
                                                                    
                          - © Région Bourgogne-Franche-Comté, Inventaire du patrimoine
 
                                                    
                                                                                                                                                              
                                                              
                                                                                                                                                                                                                                                                                                                                                                                                                                                                                                                            
                                                                                                                                                                                                                                                                                                                                                                                                                                                                                                                                              
                                                                                                                                                                 
                                                                                                                
                      
                                                                    
                          Façonnage du pied de la lampe.
                        
                      
                                                                    
                          
                        
                      
                                                                  
                                            
                                            
                                                                          N° de l’illustration : 20077000899NUCA
                          
                                                                                                  Date : 2007
                        
                                                  Auteur : Jérôme Mongreville
                                               
                                                                    Reproduction soumise à autorisation du titulaire des droits d'exploitation
                      
                                                                    
                          - © Région Bourgogne-Franche-Comté, Inventaire du patrimoine
 
                                                    
                                                                                                                                                              
                                                              
                                                                                                                                                                                                                                                                                                                                                                                                                                                                                                                            
                                                                                                                                                                                                                                                                                                                                                                                                                                                                                                                                              
                                                                                                                                                                 
                                                                                                                
                      
                                                                    
                          Magasin à moules en fonte.
                        
                      
                                                                    
                          70, Passavant-la-Rochère, lieudit : la Rochère
                        
                      
                                                                  
                                            
                                            
                                                                          N° de l’illustration : 20077000930NUCA
                          
                                                                                                  Date : 2007
                        
                                                  Auteur : Jérôme Mongreville
                                               
                                                                    Reproduction soumise à autorisation du titulaire des droits d'exploitation
                      
                                                                    
                          - © Région Bourgogne-Franche-Comté, Inventaire du patrimoine
 
                                                    
                                                                                                                                                              
                                                              
                                                                                                                                                                                                                                                                                                                                                                                                                                                                                                                            
                                                                                                                                                                                                                                                                                                                                                                                                                                                                                                                                              
                                                                                                                                                                 
                                                                                                                
                      
                                                                    
                          Four à recuire (arche).
                        
                      
                                                                    
                          70, Passavant-la-Rochère, lieudit : la Rochère
                        
                      
                                                                  
                                            
                                            
                                                                          N° de l’illustration : 20077000923NUCA
                          
                                                                                                  Date : 2007
                        
                                                  Auteur : Jérôme Mongreville
                                               
                                                                    Reproduction soumise à autorisation du titulaire des droits d'exploitation
                      
                                                                    
                          - © Région Bourgogne-Franche-Comté, Inventaire du patrimoine
 
                                                    
                                                                                                                                                              
                                                              
                                                                                                                                                                                                                                                                                                                                                                                                                                                                                                                            
                                                                                                                                                                                                                                                                                                                                                                                                                                                                                                                                              
                                                                                                                                                                 
                                                                                                                
                      
                                                                    
                          Sortie du four à recuire (arche).
                        
                      
                                                                    
                          70, Passavant-la-Rochère, lieudit : la Rochère
                        
                      
                                                                  
                                            
                                            
                                                                          N° de l’illustration : 20077000935NUCA
                          
                                                                                                  Date : 2007
                        
                                                  Auteur : Jérôme Mongreville
                                               
                                                                    Reproduction soumise à autorisation du titulaire des droits d'exploitation
                      
                                                                    
                          - © Région Bourgogne-Franche-Comté, Inventaire du patrimoine
 
                                                    
                                                                                                                                                              
                                                              
                                                                                                                                                                                                                                                                                                                                                                                                                                                                                                                            
                                                                                                                                                                                                                                                                                                                                                                                                                                                                                                                                              
                                                                                                                                                                 
                                                                                                                
                      
                                                                    
                          Intérieur du four à recuire (arche).
                        
                      
                                                                    
                          70, Passavant-la-Rochère, lieudit : la Rochère
                        
                      
                                                                  
                                            
                                            
                                                                          N° de l’illustration : 20077000934NUCA
                          
                                                                                                  Date : 2007
                        
                                                  Auteur : Jérôme Mongreville
                                               
                                                                    Reproduction soumise à autorisation du titulaire des droits d'exploitation
                      
                                                                    
                          - © Région Bourgogne-Franche-Comté, Inventaire du patrimoine
 
                                                    
                                                                                                                                                              
                                                              
                                                                                                                                                                                                                                                                                                                                                                                                                                                                                                                            
                                                                                                                                                                                                                                                                                                                                                                                                                                                                                                                                              
                                                                                                                                                                 
                                                                                                                
                      
                                                                    
                          Four à recuire (atelier Articles de table).
                        
                      
                                                                    
                          70, Passavant-la-Rochère, lieudit : la Rochère
                        
                      
                                                                  
                                            
                                            
                                                                          N° de l’illustration : 20077000938NUCA
                          
                                                                                                  Date : 2007
                        
                                                  Auteur : Jérôme Mongreville
                                               
                                                                    Reproduction soumise à autorisation du titulaire des droits d'exploitation
                      
                                                                    
                          - © Région Bourgogne-Franche-Comté, Inventaire du patrimoine
 
                                                    
                                                                                                                                                              
                                                              
                                                                                                                                                                                                                                                                                                                                                                                                                                                                                                                            
                                                                                                                                                                                                                                                                                                                                                                                                                                                                                                                                              
                                                                                                                                                                 
                                                                                                                
                      
                                                                    
                          Coupeuse-fletteuse (carrousel Combi 12).
                        
                      
                                                                    
                          70, Passavant-la-Rochère, lieudit : la Rochère
                        
                      
                                                                  
                                            
                                            
                                                                          N° de l’illustration : 20077000941NUCA
                          
                                                                                                  Date : 2007
                        
                                                  Auteur : Jérôme Mongreville
                                               
                                                                    Reproduction soumise à autorisation du titulaire des droits d'exploitation
                      
                                                                    
                          - © Région Bourgogne-Franche-Comté, Inventaire du patrimoine
 
                                                    
                                                                                                                                                              
                                                              
                                                                                                                                                                                                                                                                                                                                                                                                                                                                                                                            
                                                                                                                                                                                                                                                                                                                                                                                                                                                                                                                                              
                                                                                                                                                                 
                                                                                                                
                      
                                                                    
                          Opératrice sur la machine coupeuse-fletteuse.
                        
                      
                                                                    
                          70, Passavant-la-Rochère, lieudit : la Rochère
                        
                      
                                                                  
                                            
                                            
                                                                          N° de l’illustration : 20077000939NUCA
                          
                                                                                                  Date : 2007
                        
                                                  Auteur : Jérôme Mongreville
                                               
                                                                    Reproduction soumise à autorisation du titulaire des droits d'exploitation
                      
                                                                    
                          - © Région Bourgogne-Franche-Comté, Inventaire du patrimoine
 
                                                    
                                                                                                                                                              
                                                              
                                                                                                                                                                                                                                                                                                                                                                                                                                                                                                                            
                                                                                                                                                                                                                                                                                                                                                                                                                                                                                                                                              
                                                                                                                                                                 
                                                                                                                
                      
                                                                    
                          Flettage (ou rebrûlage) des bords d'un verre.
                        
                      
                                                                    
                          
                        
                      
                                                                  
                                            
                                            
                                                                          N° de l’illustration : 20077000940NUCA
                          
                                                                                                  Date : 2007
                        
                                                  Auteur : Jérôme Mongreville
                                               
                                                                    Reproduction soumise à autorisation du titulaire des droits d'exploitation
                      
                                                                    
                          - © Région Bourgogne-Franche-Comté, Inventaire du patrimoine
 
                                                    
                                                                                                                                                              
                                                              
                                                                                                                                                                                                                                                                                                                                                                                                                                                                                                                            
                                                                                                                                                                                                                                                                                                                                                                                                                                                                                                                                              
                                                                                                                                                                 
                                                                                                                
                      
                                                                    
                          Flettage de carafes (atelier Articles de table).
                        
                      
                                                                    
                          
                        
                      
                                                                  
                                            
                                            
                                                                          N° de l’illustration : 20077000943NUCA
                          
                                                                                                  Date : 2007
                        
                                                  Auteur : Jérôme Mongreville
                                               
                                                                    Reproduction soumise à autorisation du titulaire des droits d'exploitation
                      
                                                                    
                          - © Région Bourgogne-Franche-Comté, Inventaire du patrimoine
 
                                                    
                                                                                                                                                              
                                                              
                                                                                                                                                                                                                                                                                                                                                                                                                                                                                                                            
                                                                                                                                                                                                                                                                                                                                                                                                                                                                                                                                              
                                                                                                                                                                 
                                                                                                                
                      
                                                                    
                          Flettage de verres (atelier Articles de table).
                        
                      
                                                                    
                          70, Passavant-la-Rochère, lieudit : la Rochère
                        
                      
                                                                  
                                            
                                            
                                                                          N° de l’illustration : 20077000937NUCA
                          
                                                                                                  Date : 2007
                        
                                                  Auteur : Jérôme Mongreville
                                               
                                                                    Reproduction soumise à autorisation du titulaire des droits d'exploitation
                      
                                                                    
                          - © Région Bourgogne-Franche-Comté, Inventaire du patrimoine
 
                                                    
                                                                                                                                                              
                                                              
                                                                                                                                                                                                                                                                                                                                                                                                                                                                                                                            
                                                                                                                                                                                                                                                                                                                                                                                                                                                                                                                                              
                                                                                                                                                                 
                                                                                                                
                      
                                                                    
                          Mouleuse de tuile de verre. Chute de matière avant moulage.
                        
                      
                                                                    
                          70, Passavant-la-Rochère, lieudit : la Rochère
                        
                      
                                                                  
                                            
                                            
                                                                          N° de l’illustration : 20077000936NUCA
                          
                                                                                                  Date : 2007
                        
                                                  Auteur : Jérôme Mongreville
                                               
                                                                    Reproduction soumise à autorisation du titulaire des droits d'exploitation
                      
                                                                    
                          - © Région Bourgogne-Franche-Comté, Inventaire du patrimoine
 
                                                    
                                                                                                                                                              
                                                              
                                                                                                                                                                                                                                                                                                                                                                                                                                                                                                                            
                                                                                                                                                                                                                                                                                                                                                                                                                                                                                                                                              
                                                                                                                                                                 
                                                                                                                
                      
                                                                    
                          Four à recuire. Pavés de verre en fin de cuisson.
                        
                      
                                                                    
                          70, Passavant-la-Rochère, lieudit : la Rochère
                        
                      
                                                                  
                                            
                                            
                                                                          N° de l’illustration : 20077000944NUCA
                          
                                                                                                  Date : 2007
                        
                                                  Auteur : Jérôme Mongreville
                                               
                                                                    Reproduction soumise à autorisation du titulaire des droits d'exploitation
                      
                                                                    
                          - © Région Bourgogne-Franche-Comté, Inventaire du patrimoine
 
                                                    
                                                                                                                                                              
                                                              
                                                                                                                                                                                                                                                                                                                                                                                                                                                                                                                            
                                                                                                                                                                                                                                                                                                                                                                                                                                                                                                                                              
                                                                                                                                                                 
                                                                                                                
                      
                                                                    
                          Atelier de moulage mécanique. Base de la cheminée.
                        
                      
                                                                    
                          70, Passavant-la-Rochère, lieudit : la Rochère
                        
                      
                                                                  
                                            
                                            
                                                                          N° de l’illustration : 20077000942NUCA
                          
                                                                                                  Date : 2007
                        
                                                  Auteur : Jérôme Mongreville
                                               
                                                                    Reproduction soumise à autorisation du titulaire des droits d'exploitation
                      
                                                                    
                          - © Région Bourgogne-Franche-Comté, Inventaire du patrimoine
 
                                                    
                                                                                                                                                              
                                                              
                                                                                                                                                                                                                                                                                                                                                                                                                                                                                                                            
                                                                                                                                                                                                                                                                                                                                                                                                                                                                                                                                              
                                                                                                                                                                 
                                                                                                                
                      
                                                                    
                          Atelier de finition ou parachèvement. Taille de verre (1).
                        
                      
                                                                    
                          70, Passavant-la-Rochère, lieudit : la Rochère
                        
                      
                                                                  
                                            
                                            
                                                                          N° de l’illustration : 20077000948NUCA
                          
                                                                                                  Date : 2007
                        
                                                  Auteur : Jérôme Mongreville
                                               
                                                                    Reproduction soumise à autorisation du titulaire des droits d'exploitation
                      
                                                                    
                          - © Région Bourgogne-Franche-Comté, Inventaire du patrimoine
 
                                                    
                                                                                                                                                              
                                                              
                                                                                                                                                                                                                                                                                                                                                                                                                                                                                                                            
                                                                                                                                                                                                                                                                                                                                                                                                                                                                                                                                              
                                                                                                                                                                 
                                                                                                                
                      
                                                                    
                          Atelier de finition ou parachèvement. Taille de verre (2).
                        
                      
                                                                    
                          70, Passavant-la-Rochère, lieudit : la Rochère
                        
                      
                                                                  
                                            
                                            
                                                                          N° de l’illustration : 20077000945NUCA
                          
                                                                                                  Date : 2007
                        
                                                  Auteur : Jérôme Mongreville
                                               
                                                                    Reproduction soumise à autorisation du titulaire des droits d'exploitation
                      
                                                                    
                          - © Région Bourgogne-Franche-Comté, Inventaire du patrimoine
 
                                                    
                                                                                                                                                              
                                                              
                                                                                                                                                                                                                                                                                                                                                                                                                                                                                                                            
                                                                                                                                                                                                                                                                                                                                                                                                                                                                                                                                              
                                                                                                                                                                 
                                                                                                                
                      
                                                                    
                          Atelier de finition ou parachèvement. Taille de verre (3).
                        
                      
                                                                    
                          
                        
                      
                                                                  
                                            
                                            
                                                                          N° de l’illustration : 20077000946NUCA
                          
                                                                                                  Date : 2007
                        
                                                  Auteur : Jérôme Mongreville
                                               
                                                                    Reproduction soumise à autorisation du titulaire des droits d'exploitation
                      
                                                                    
                          - © Région Bourgogne-Franche-Comté, Inventaire du patrimoine
 
                                                    
                                                                                                                                                              
                                                              
                                                                                                                                                                                                                                                                                                                                                                                                                                                                                                                            
                                                                                                                                                                                                                                                                                                                                                                                                                                                                                                                                              
                                                                                                                                                                 
                                                                                                                
                      
                                                                    
                          Atelier de finition ou parachèvement. Taille de verre (4).
                        
                      
                                                                    
                          70, Passavant-la-Rochère, lieudit : la Rochère
                        
                      
                                                                  
                                            
                                            
                                                                          N° de l’illustration : 20077000947NUCA
                          
                                                                                                  Date : 2007
                        
                                                  Auteur : Jérôme Mongreville
                                               
                                                                    Reproduction soumise à autorisation du titulaire des droits d'exploitation
                      
                                                                    
                          - © Région Bourgogne-Franche-Comté, Inventaire du patrimoine
 
                                                    
                                                                                                                                                              
                                                              
                                                                                                                                                                                                                                                                                                                                                                                                                                                                                                                            
                                                                                                                                                                                                                                                                                                                                                                                                                                                                                                                                              
                                                                                                                                                                 
                                                                                                                
                      
                                                                    
                          Atelier de finition ou parachèvement. Poste de décoration.
                        
                      
                                                                    
                          70, Passavant-la-Rochère, lieudit : la Rochère
                        
                      
                                                                  
                                            
                                            
                                                                          N° de l’illustration : 20077000950NUCA
                          
                                                                                                  Date : 2007
                        
                                                  Auteur : Jérôme Mongreville
                                               
                                                                    Reproduction soumise à autorisation du titulaire des droits d'exploitation
                      
                                                                    
                          - © Région Bourgogne-Franche-Comté, Inventaire du patrimoine
 
                                                    
                                                                                                                                                              
                                                              
                                                                                                                                                                                                                                                                                                                                                                                                                                                                                                                            
                                                                                                                                                                                                                                                                                                                                                                                                                                                                                                                                              
                                                                                                                                                                 
                                                                                                                
                      
                                                                    
                          Atelier de conditionnement.
                        
                      
                                                                    
                          70, Passavant-la-Rochère, lieudit : la Rochère
                        
                      
                                                                  
                                            
                                            
                                                                          N° de l’illustration : 20077000949NUCA
                          
                                                                                                  Date : 2007
                        
                                                  Auteur : Jérôme Mongreville
                                               
                                                                    Reproduction soumise à autorisation du titulaire des droits d'exploitation
                      
                                                                    
                          - © Région Bourgogne-Franche-Comté, Inventaire du patrimoine
 
                                                    
                                                                                                                                                              
                                                              
                                                                                                                                                                                                                                                                                                                                                                                                                                                                                                                            
                                                                                                                                                                                                                                                                                                                                                                                                                                                                                                                                              
                                                                                                                                                                 
                                                                                                                
                      
                                                                    
                          Pièces achevées.
                        
                      
                                                                    
                          70, Passavant-la-Rochère, lieudit : la Rochère
                        
                      
                                                                  
                                            
                                            
                                                                          N° de l’illustration : 20077000951NUCA
                          
                                                                                                  Date : 2007
                        
                                                  Auteur : Jérôme Mongreville
                                               
                                                                    Reproduction soumise à autorisation du titulaire des droits d'exploitation
                      
                                                                    
                          - © Région Bourgogne-Franche-Comté, Inventaire du patrimoine
 
                                                    
                                                                                                                                                              
                                                              
                                                                                                                                                                                                                                                                                                                                                                                                                                                                                                                            
                                                                                                                                                                                                                                                                                                                                                                                                                                                                                                                                              
                                                                                                                                                                 
                                                                                                                
                      
                                                                    
                          Pieds de lampe Art nouveau.
                        
                      
                                                                    
                          
                        
                      
                                                                  
                                            
                                            
                                                                          N° de l’illustration : 20077000952NUCA
                          
                                                                                                  Date : 2007
                        
                                                  Auteur : Jérôme Mongreville
                                               
                                                                    Reproduction soumise à autorisation du titulaire des droits d'exploitation
                      
                                                                    
                          - © Région Bourgogne-Franche-Comté, Inventaire du patrimoine
 
                                                    
                                                                                                                                                              
                                                              
                                                                                                                                                                                                                                                                                                                                                                                                                                                                                                                            
                                                                                                                                                                                                                                                                                                                                                                                                                                                                                                                                              
                                                                                                                                                                 
                                                                                                                
                      
                                                                    
                          Matière première.
                        
                      
                                                                    
                          70, Passavant-la-Rochère, lieudit : la Rochère
                        
                      
                                                                  
                                            
                                            
                                                                          N° de l’illustration : 20077000955NUCA
                          
                                                                                                  Date : 2007
                        
                                                  Auteur : Jérôme Mongreville
                                               
                                                                    Reproduction soumise à autorisation du titulaire des droits d'exploitation
                      
                                                                    
                          - © Région Bourgogne-Franche-Comté, Inventaire du patrimoine
 
                                                    
                                                                                                                                                              
                                                              
                                                                                                                                                                                                                                                                                                                                                                                                                                                                                                                            
                                                                                                                                                                                                                                                                                                                                                                                                                                                                                                                                              
                                                                                                                                                                 
                                                                                                                
                      
                                                                    
                          La cité ouvrière depuis le sud.
                        
                      
                                                                    
                          70, Passavant-la-Rochère, lieudit : la Rochère
                        
                      
                                                                  
                                            
                                            
                                                                          N° de l’illustration : 20097000576NUC2A
                          
                                                                                                  Date : 2009
                        
                                                  Auteur : Jérôme Mongreville
                                               
                                                                    Reproduction soumise à autorisation du titulaire des droits d'exploitation
                      
                                                                    
                          - © Région Bourgogne-Franche-Comté, Inventaire du patrimoine
 
                                                    
                                                                                                                                                              
                                                              
                                                                                                                                                                                                                                                                                                                                                                                                                                                                                                                            
                                                                                                                                                                                                                                                                                                                                                                                                                                                                                                                                              
                                                                                                                                                                 
                                                                                                                
                      
                                                                    
                          Logements doubles de la cité ouvrière.
                        
                      
                                                                    
                          70, Passavant-la-Rochère, lieudit : la Rochère
                        
                      
                                                                  
                                            
                                            
                                                                          N° de l’illustration : 20097000575NUC2A
                          
                                                                                                  Date : 2009
                        
                                                  Auteur : Jérôme Mongreville
                                               
                                                                    Reproduction soumise à autorisation du titulaire des droits d'exploitation
                      
                                                                    
                          - © Région Bourgogne-Franche-Comté, Inventaire du patrimoine
 
                                                    
                                                                                                                                                              
                                                              
                                                                                                                                                                                                                                                                                                                                                                                                                                                                                                                            
                                                                                                                                                                                                                                                                                                                                                                                                                                                                                                                                              
                                                                                                                                                                 
                                                                                                                
                      
                                                                    
                          Maisons ouvrières le long de la rue de la Verrerie.
                        
                      
                                                                    
                          70, Passavant-la-Rochère, lieudit : la Rochère
                        
                      
                                                                  
                                            
                                            
                                                                          N° de l’illustration : 20097000570NUC2A
                          
                                                                                                  Date : 2009
                        
                                                  Auteur : Jérôme Mongreville
                                               
                                                                    Reproduction soumise à autorisation du titulaire des droits d'exploitation
                      
                                                                    
                          - © Région Bourgogne-Franche-Comté, Inventaire du patrimoine
 
                                                    
                                                                                                                                                              
                                                              
                                                                                                                                                                                                                                                                                                                                                                                                                                                                                                                            
                                                                                                                                                                                                                                                                                                                                                                                                                                                                                                                                              
                                                                                                                                                                 
                                                                                                                
                      
                                                                    
                          Logements doubles vus de trois quarts.
                        
                      
                                                                    
                          70, Passavant-la-Rochère, lieudit : la Rochère
                        
                      
                                                                  
                                            
                                            
                                                                          N° de l’illustration : 20097000571NUC2A
                          
                                                                                                  Date : 2009
                        
                                                  Auteur : Jérôme Mongreville
                                               
                                                                    Reproduction soumise à autorisation du titulaire des droits d'exploitation
                      
                                                                    
                          - © Région Bourgogne-Franche-Comté, Inventaire du patrimoine
 
                                                    
                                                                                                                                                              
                                                              
                                                                                                                                                                                                                                                                                                                                                                                                                                                                                                                            
                                                                                                                                                                                                                                                                                                                                                                                                                                                                                                                                              
                                                                                                                                                                 
                                                                                                                
                      
                                                                    
                          Logement double (rue des Ronds Champs).
                        
                      
                                                                    
                          70, Passavant-la-Rochère, lieudit : la Rochère
                        
                      
                                                                  
                                            
                                            
                                                                          N° de l’illustration : 20097000572NUC2A
                          
                                                                                                  Date : 2009
                        
                                                  Auteur : Jérôme Mongreville
                                               
                                                                    Reproduction soumise à autorisation du titulaire des droits d'exploitation
                      
                                                                    
                          - © Région Bourgogne-Franche-Comté, Inventaire du patrimoine
 
                                                    
                                                                                                                                                              
                                                              
                                                                                                                                                                                                                                                                                                                                                                                                                                                                                                                            
                                                                                                                                                                                                                                                                                                                                                                                                                                                                                                                                              
                                                                                                                                                                 
                                                                                                                
                      
                                                                    
                          Maison ouvrière (25 rue de la Verrerie).
                        
                      
                                                                    
                          70, Passavant-la-Rochère, lieudit : la Rochère
                        
                      
                                                                  
                                            
                                            
                                                                          N° de l’illustration : 20097000567NUC2A
                          
                                                                                                  Date : 2009
                        
                                                  Auteur : Jérôme Mongreville
                                               
                                                                    Reproduction soumise à autorisation du titulaire des droits d'exploitation
                      
                                                                    
                          - © Région Bourgogne-Franche-Comté, Inventaire du patrimoine
 
                                                    
                                                                                                                                                              
                                                              
                                                                                                                                                                                                                                                                                                                                                                                                                                                                                                                            
                                                                                                                                                                                                                                                                                                                                                                                                                                                                                                                                              
                                                                                                                                                                 
                                                                                                                
                      
                                                                    
                          Alignement de logements ouvriers à l'entrée du hameau.
                        
                      
                                                                    
                          70, Passavant-la-Rochère, lieudit : la Rochère
                        
                      
                                                                  
                                            
                                            
                                                                          N° de l’illustration : 20097000574NUC2A
                          
                                                                                                  Date : 2009
                        
                                                  Auteur : Jérôme Mongreville
                                               
                                                                    Reproduction soumise à autorisation du titulaire des droits d'exploitation
                      
                                                                    
                          - © Région Bourgogne-Franche-Comté, Inventaire du patrimoine
 
                                                    
                                                                                                                                                              
                                                              
                                                                                                                                                                                                                                                                                                                                                                                                                                                                                                                            
                                                                                                                                                                                                                                                                                                                                                                                                                                                                                                                                              
                                                                                                                                                                 
                                                                                                                
                      
                                                                    
                          Logements ouvriers à l'entrée du hameau. Vue depuis le nord-est.
                        
                      
                                                                    
                          70, Passavant-la-Rochère, lieudit : la Rochère
                        
                      
                                                                  
                                            
                                            
                                                                          N° de l’illustration : 20097000577NUC2A
                          
                                                                                                  Date : 2009
                        
                                                  Auteur : Jérôme Mongreville
                                               
                                                                    Reproduction soumise à autorisation du titulaire des droits d'exploitation
                      
                                                                    
                          - © Région Bourgogne-Franche-Comté, Inventaire du patrimoine
 
                                                    
                                                                                                                                                              
                                                              
                                                                                                                                                                                                                                                                                                                                                                                                                                                                                                                            
                                                                                                                                                                                                                                                                                                                                                                                                                                                                                                                                              
                                                                                                                                                                 
                                                                                                                
                      
                                                                    
                          Logement ouvrier collectif (6 et 8 impasse des Ronds Champs).
                        
                      
                                                                    
                          70, Passavant-la-Rochère, lieudit : la Rochère
                        
                      
                                                                  
                                            
                                            
                                                                          N° de l’illustration : 20097000569NUC2A
                          
                                                                                                  Date : 2009
                        
                                                  Auteur : Jérôme Mongreville
                                               
                                                                    Reproduction soumise à autorisation du titulaire des droits d'exploitation
                      
                                                                    
                          - © Région Bourgogne-Franche-Comté, Inventaire du patrimoine
 
                                                    
                                                                                                                                                              
                                                              
                                                                                                                                                                                                                                                                                                                                                                                                                                                                                                                            
                                                                                                                                                                                                                                                                                                                                                                                                                                                                                                                                              
                                                                                                                                                                 
                                                                                                                
                      
                                                                    
                          Pignon du logement ouvrier collectif (6 et 8 impasse des Ronds Champs).
                        
                      
                                                                    
                          70, Passavant-la-Rochère, lieudit : la Rochère
                        
                      
                                                                  
                                            
                                            
                                                                          N° de l’illustration : 20097000568NUC2A
                          
                                                                                                  Date : 2009
                        
                                                  Auteur : Jérôme Mongreville
                                               
                                                                    Reproduction soumise à autorisation du titulaire des droits d'exploitation
                      
                                                                    
                          - © Région Bourgogne-Franche-Comté, Inventaire du patrimoine