USINE DE QUINCAILLERIE ET DE BIMBELOTERIE, PUIS TISSAGE, ACTUELLEMENT MAGASIN DE COMMERCE
90 - Méziré
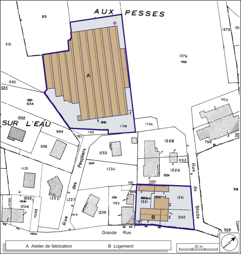
rue des Peupliers
- Dossier IA90000137 réalisé en 2000
- Auteur(s) : Raphaël Favereaux
Historique
La société des Nouvelles Usines de Méziré, société anonyme fondée le 3 août 1920, fait construire une usine de quincaillerie par l'entrepreneur belfortain Tournesac vers 1921-1922. L'ingénieur civil Ed. Griffon est mentionné sur des plans datés de 1921 pour la mise en oeuvre du procédé Hennebique. Le transformateur et le réfectoire sont l'oeuvre de l'architecte Heissler et de l'ingénieur strasbourgeois Raymond Borach. Une maison à usage de logements et de conciergerie (?) est également construite. Qualifiée de manufacture de vis à bois et articles en bois, l'usine est alimentée en électricité par la société des Forces motrices du Refrain, et produit, entre autres, de la visserie, des boîtes de pendules et des moulins à café. Elle est acquise en 1924 par les sociétés Viellard-Migeon et Cie (qui reprend l'atelier de visserie) et Japy Frères et Cie (qui hérite de la fabrique d'articles en bois). A partir de 1928, c'est la société des Forces motrices, Forges et Visseries de Saint-Hippolyte (25), propriété de Viellard-Migeon et Cie, qui fournit l'électricité de la visserie. En 1934 ou 1935, suite à la fermeture de l'usine de la Société des Filatures et Tissages de Danjoutin (90), dépendant de Viellard-Migeon et Cie, la visserie accueille des métiers à tisser d'un type nouveau, sans navette. Malgré le rachat de la raison sociale Société Française pour l'Industrie Textile en 1938, l'usine vivote et ferme ses portes en 1953. Les bâtiments sont loués dans les années 1970 aux sociétés Peugeot et Egebo. Depuis 1982, ils sont occupés par une grande surface du meuble.
7 personnes en 1950. Existence d'un fonds d'archives privées.
- 1er quart 20e siècle
Heissler, architecte. XXe siècle.
Raymond Borach, ingénieur strasbourgeois (Bas-Rhin). XXe siècle.
Ed. Griffon, ingénieur civil. XIXe-XXe siècles.
Tournesac, entrepreneur belfortain (Territoire de Belfort). XXe siècle.
Description
L'usine est en rez-de-chaussée, couverte de sheds en tuile mécanique.
- pierre
- moellon
- enduit
- tuile mécanique
- verre en couverture
- en rez-de-chaussée
- énergie électrique
- produite à distance
Informations complémentaires
- atelier de fabrication
- logement
- © Région Bourgogne-Franche-Comté, Inventaire du patrimoine
