USINE DE FEUTRE DOLLFUS-NOACK, ACTUELLEMENT CENTRE COMMERCIAL
90 - Valdoie
avenue du Général de Gaulle
- Dossier IA90000108 réalisé en 2000
- Auteur(s) : Raphaël Favereaux
Historique
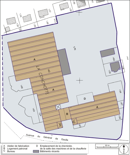
Fondés à Mulhouse (68) en 1811 par Jean David Detwiller, les Etablissements Dollfus-Noack implantent à Valdoie en 1898-1899 une usine de "draps, tissus, feutres en tous genres et en toutes matières pour l'habillage des machines et pour tous usages industriels et techniques". C'est l'annexion de l'Alsace par l'Allemagne qui pousse la société à établir cette usine en territoire français, non loin de la maison-mère. L'architecte belfortain Fleury de la Hussinière, auteur des plans du logement patronal, est vraisemblablement aussi celui des plans de l'usine. Trois logements d'ouvriers sont également édifiés aux n°1, 3, 7 et 9 rue Georges Dollfus. L'usine connaît de nombreuses extensions dans la 1ère moitié du 20e siècle. La production englobe en 1958 les tissus techniques des machines textiles (métiers à filer, encolleuses de tissage, machines d'apprêt et d'impression de tissus, machines à imprimer les papiers peints), mais aussi ceux utilisés dans les tanneries, blanchisseries, papeteries, imprimeries typo-lithographiques, entreprises de filtration et usines de polissage de glace. Ces feutres sont en laine, en coton, en lin ou en fibres synthétiques. En 1964 est mise au point une nouvelle technique de fabrication qui permet de supprimer presque entièrement le tissage, par le procédé dit d'aiguilletage, donnant au feutre une plus grande durée de vie. L'usine ferme ses portes en 1988, suite au regroupement des activités à Sausheim (banlieue de Mulhouse, 68) dans le cadre d'un programme d'automatisation de la production. La salle des machines, la cheminée et la conciergerie ont été détruites, mais les autres bâtiments ont été réinvestis par de nombreux commerces ainsi que par quelques entreprises artisanales. Présence d'une machine à vapeur locomobile en 1899 et d'un moteur de 100 ch installé en 1943. 250 personnes en 1958, 320 en 1969 et 45 en 1988.
- 4e quart 19e siècle
- 1ère moitié 20e siècle
Anthime Fleury de la Hussinière, architecte belfortain (Territoire de Belfort). XIXe-XXe siècle.
Description
Les ateliers de fabrication, en rez-de-chaussée, couverts de sheds et de toits à longs pans, sont construits en moellon enduit. Le logement patronal est en moellon de grès enduit, et possède un étage carré et un étage de comble. Les bureaux ont un étage carré, couverts d'un toit à longs pans et croupe. Les logements ouvriers sont construits en moellon enduit : deux sont à un étage carré et un étage en surcroît couverts d'un toit à longs pans, un troisième possède un étage carré couvert d'un toit à demi-croupe.
- pierre
- grès
- moellon
- enduit
- tuile mécanique
- fer en couverture
- verre en couverture
- 1 étage carré
- étage de comble
- énergie thermique produite sur place
- énergie électrique achetée
Source(s) documentaire(s)
-
Salle des machines et sa cheminée.
Salle des machines et sa cheminée. Photographie, s.d. [1983].Lieu de conservation : Archives départementales du Territoire de Belfort, Belfort - Cote du document : 9 Fi -
[Façade antérieure de la maison d'habitation de l'usine].
[Façade antérieure de la maison d'habitation de l'usine]. Dessin, crayon, calque, s.d. [1898], par Fleury de la Hussinière (architecte)Lieu de conservation : Archives départementales du Territoire de Belfort, Belfort - Cote du document : 30 J 34 -
Façade antérieure de l'ancien logement patronal.
Façade antérieure de l'ancien logement patronal. Photographie, s.d. [1983].Lieu de conservation : Archives départementales du Territoire de Belfort, Belfort - Cote du document : 9 Fi -
Ateliers sud-est.
Ateliers sud-est. Photographie, s.d. [1983].Lieu de conservation : Archives départementales du Territoire de Belfort, Belfort - Cote du document : 9 Fi
À voir
Informations complémentaires
- patrimoine industriel du Territoire de Belfort
- atelier de fabrication
- bureau
- logement patronal
- logement d'ouvriers
- © Région Bourgogne-Franche-Comté, Inventaire du patrimoine
