FERME
25 - Jougne
17 rue du Faubourg
- Dossier IA00014174 réalisé en 1986 revu en 2008
- Auteur(s) : Liliane Hamelin, Carole Josso, Gilbert Poinsot
Historique
La maison visible sur le cadastre napoléonien de 1839 est une maison de bonne qualité (classe 3 sur une échelle de 10), appartenant à cinq propriétaires différents : la veuve de Pierre Joseph Poix-Daude pour 16/64e, Séraphin Poix-Daude pour 15/64e, Maurice Poix-Daude pour 15/64e, Monique Poix-Daude pour 9/64e et les héritiers de Marie Poix-Daude pour 9/64e. Construite en 1809 (date gravée sur la clé de la porte de grange), la ferme appartenait à Maurice Jeunet en 1903. Elle est restée en activité jusqu'en 1988 puis après la cessation d'activité agricole, une partie a été mise en location saisonnière. Un magasin de location de matériel de ski a également été aménagé dans une remise. La maison n'a pas subi de transformation hormis l'ouverture d'une baie au-dessus de la porte de l'étable à vaches et les deux portes de garage sur l'élévation postérieure. La charpente, la toiture et les parties d'élévation en planches ont été reprises il y a environ 20 ans. Cette ferme était la dernière construction du faubourg. Elle reste l'unique maison à n'avoir pas brûlée lors de l'incendie de Jougne en 1870 : la tradition veut que l'incendie se soit arrêté sur le grand frêne planté devant elle pour la protéger de la foudre. Elle sera prochainement vendue à un promoteur et profondément modifiée afin d'être aménagée en plusieurs appartements.
- 1er quart 19e siècle
Description
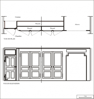
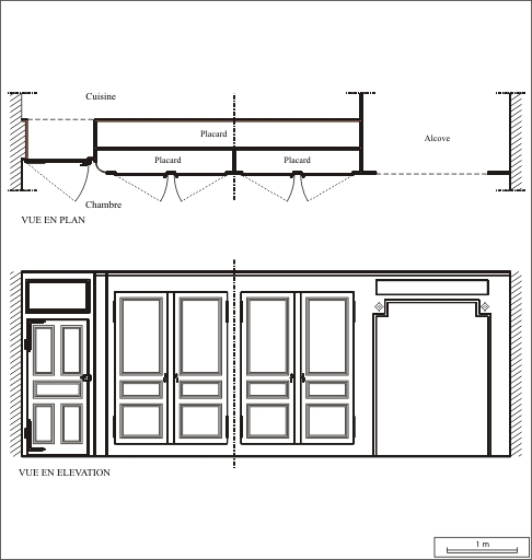
La ferme est composée d'une partie habitation et d'une partie agricole. La partie habitation forme un volume construit en pierre, sur un plan en L, à l'intérieur du volume général. Elle comprend deux appartements identiques et indépendants, l'un au 1er étage et le deuxième au 2nd étage. Les appartements sont composés d'une cuisine équipée d'une cheminée et d'un four à pain, d'une grande chambre au revers de la cheminée et de deux chambres plus petites avec alcôve. Les cheminées ont conservé leur plaque, dont l'une est datée de 1764, et leur cendrier. Les fours à pain ont conservé leur porte, dont l'une est datée de 1811 et porte les initiales PJP. Le four de l'appartement du 2nd étage a été aménagé en fumoir. Les chambres sont équipées de boiserie avec un aménagement spécifique dans la grande chambre pour y intégrer une horloge (cadran, balancier et poids). Les plafonds ont conservé leur moulure centrale. L'appartement du 2nd étage comporte une chambre supplémentaire, qui correspond à l'étage inférieur à une salle voûtée en berceau continu parallèle à la rue et désignée comme cave. Sa voûte est appareillée en moellons partiellement enduits ; le sol est en terre battue. Elle est éclairée par une petite baie oblongue et comprend l'escalier dans-oeuvre. Commune aux deux appartements, elle est l'unique lien entre eux. La partie agricole se compose d'une remise, d'une grange au volume très important et d'une étable à vaches au 2nd étage (la déclivité du terrain fait correspondre ce 2nd étage au rez-de-chaussée sur rue). L'étable a conservé ses crèches et pouvait accueillir une quinzaine de bêtes. Les portes de la remise et de la grange sont en plein cintre et équipées de chasse-roue. Leur vantail est constitué de planches maintenues par des clous forgés à la main, caractéristiques de la production artisanale d'Entre-les-Fourgs. Ils sont gravés : IEANNOT BURNIER, n 8310267, MKON et A sur le vantail de la porte de la remise, et S BRAILLARD et A sur le vantail de la porte de grange. Au 1er étage, ouvert sur la façade postérieure, se trouve une grande remise sous le sol de laquelle est creusée une pièce borgne dont les murs ont conservés des traces d'incendie. Le rez-de-chaussée comprend un garage et une remise éclairée par une petite baie oblongue sur la façade postérieure. Les parties habitation et agricole sont protégées l'une de l'autre contre les risques de propagation d'incendie : les appartements sont aménagés dans un bloc en pierre et ne communiquent avec les remises que par l'intermédiaire de deux portes métalliques. La porte coupe-feu de l'appartement du 2nd étage porte à l'endroit, dans un écusson à l'envers, la date 1689 et les initiales LL. Le bâtiment est élevé en moellons calcaires enduits. Les élévations des murs gouttereaux se prolongent en planches. La pierre de taille est réservée aux encadrements des ouvertures. Les tuiles ont remplacé les bardeaux encore visibles lors de la reprise de la couverture il y a une vingtaine d'années. Un avant-toit protège la façade sur la rue. L'extrémité des arbalétriers est mise en valeur par un corps de moulure. On retrouve ce même souci esthétique dans la partie supérieure du mur pare-vent. A l'extérieur, une citerne semi-enterrée recueillait les eaux pluviales depuis la toiture par l'intermédiaire de gouttières, aujourd'hui disparues.
- calcaire
- bois
- moellon
- enduit
- essentage de planches
- tuile mécanique
- 2 étages carrés
- escalier dans-oeuvre, escalier droit, en maçonnerie
À voir
Informations complémentaires
- petites cités comtoises de caractère
- citerne
- © Région Bourgogne-Franche-Comté, Inventaire du patrimoine
