FERME ET ATELIER D'OUTILLAGE DE BENOÎT MOYSE, PUIS FERME VERMOT-DESROCHES
25 - Les Gras
Les Epaisses - Grande Raie - 1 chemin de la Grande Raie
- Dossier IA00013895 réalisé en 1974 revu en 2017
- Auteur(s) : Gilbert Poinsot, Laurent Poupard
Historique
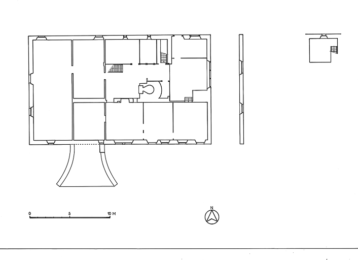
La ferme est bâtie en 1791 (date portée signalée mais non vue). Dessinée sur le plan cadastral de 1816 (C 68), elle appartient à la veuve (Marie Dorothée Moyse) et aux héritiers de Georges Alexandre Vaugne (vers 1740-1816), puis vers 1850 à Benoît Moyse (1796-1870), fabricant de "fraises en acier forgé" et de "tournevis forgés". Elle passe vers 1876 à Sylvain André (1840-1910), horloger à Morteau, qui l'agrandit d'une travée à l'est vers 1891, puis de 1904 à 1913 environ à son gendre le Mortuacien Henri Charpier (1862-1916). Elle est acquise en 1913 par la famille Vermot-Desroches : François Séraphin (1843-1914), auparavant cultivateur aux Seignes, auquel succèdent ses fils Louis (1899-1979) et Henri (1901-1969), beaux-frères des fabricants d'outillage Charles Grandvoynet et Charles Dupommier. En 1930, la faîtière est décalée vers la droite (est), ce qui permet la construction d'une nouvelle travée de ce côté-là (remise puis garage). L'activité agricole cesse au milieu des années 1970 et la conversion ultérieure du bâtiment en habitation s'accompagne de nombreuses modifications avec, notamment, la suppression de la levée de grange (rampe d'accès) en façade et des créations ou reprises de baies.
Description
La ferme a des murs en moellons calcaires partiellement enduits, protégés au-dessus du premier niveau par un essentage de planches ; le pignon nord est en pan de bois. En rez-de-chaussée, elle comporte un sous-sol partiel, un étage en surcroît et un comble, desservis par un escalier dans-oeuvre droit en bois. Les baies du rez-de-chaussée en façade sud sont à linteau délardé en arc segmentaire ; des fenêtres horlogères sont visibles sur cette façade (au rez-de-chaussée et à l'étage en surcroît, cette dernière signalant l'emplacement de l'atelier) et sur la façade nord (récente et avec encadrement en bois). Le toit est à longs pans, pignons couverts et tuiles mécaniques ; la souche du tué (grande cheminée) est encore en place sur son versant occidental.
- calcaire
- bois
- moellon
- pan de bois
- enduit partiel
- essentage de planches
- tuile mécanique
- sous-sol
- en rez-de-chaussée
- étage en surcroît
- étage de comble
- élévation à travées
- toit à longs pans, pignon couvert
- escalier dans-oeuvre, escalier droit, en charpente
- ferme à tué simple
- grange haute
- baie horlogère
Source(s) documentaire(s)
-
Archives départementales du Doubs : 3 P 298 Cadastre de la commune des Gras, 1814-1967.
Archives départementales du Doubs : 3 P 298 Cadastre de la commune des Gras, 1814-1967. - 3 P 298 : Atlas parcellaire (11 feuilles), dessin (plume, lavis), par les géomètres du cadastre Vergne et Garcin, 1816. - 3 P 298/1 : Registre des états de sections (1816-1818). - 3 P 298/2, 5 : Matrice cadastrale des propriétés bâties et non bâties, 1822-1875. - 3 P 298/3-4 : Matrice cadastrale des propriétés bâties et non bâties, 1876-1914. - 3 P 298/6 : Matrice cadastrale des propriétés bâties, 1882-1910. - 3 P 298/7 : Matrice cadastrale des propriétés non bâties, 1914-1967. - 3 P 298/8 : Matrice cadastrale des propriétés bâties, 1911-1967.Lieu de conservation : Archives départementales du Doubs, Besançon - Cote du document : 3 P 298 -
Artisans des Gras. Fabricants d’outils d’horlogerie. 1855-1862, 20e siècle.
Artisans des Gras. Fabricants d’outils d’horlogerie. 1855-1862. - S.d. [20e siècle]. 6 f. Liste manuscrite établie "d'après un livre de compte semblant appartenir à Cressier Philippe, fondeur au Dessus de la Fin" et complétée par les noms d'artisans et négociants de Grand'Combe-Châteleu et de la Suisse proche.Lieu de conservation : Collection particulière : Elisabeth Bonnet, Les Gras
-
25 Les Gras, lieu-dit la Grand Raie. Demeure : ferme. Rez-de-chaussée [et] Cave, 23 août 1976.
25 Les Gras, lieu-dit la Grand Raie. Demeure : ferme. Rez-de-chaussée [et] Cave, dessin sur calque, par Jean-Marc Demoly, 23 août 1976, 1/100, 55,5 x 77,5 cm.Lieu de conservation : Région Bourgogne-Franche-Comté, Inventaire et Patrimoine, Besançon
-
Guichard, Jean-Marie. Recherches généalogiques.
Guichard, Jean-Marie. Recherches généalogiques. Accessibles en ligne sur le site de Geneanet : http://gw.geneanet.org/
-
Guyonneau, Arlette (témoignage oral)
Guyonneau, Arlette. Petite-fille de Charles Grandvoynnet. Pontarlier. -
Guyonneau, Jean-Louis (témoignage oral)
Guyonneau, Jean-Louis. Epoux d'Arlette Guyot, petite-fille de Charles Grandvoynnet, à Pontarlier. -
Tisserand, Roger (témoignage oral)
Tisserand, Roger. Fils d'Arsène Tisserand, ancien agriculteur. Les Gras.
À voir
Informations complémentaires
- patrimoine industriel du Doubs
- atelier de fabrication
- logement
- étable à vaches
- bergerie
- grange
- remise
- bûcher
- jardin potager
- © Région Bourgogne-Franche-Comté, Inventaire du patrimoine
