CITÉ OUVRIÈRE BELLEVUE
90 - Grandvillars
Cité Bellevue
- Dossier IA90000069 réalisé en 2000
- Auteur(s) : Raphaël Favereaux
Historique
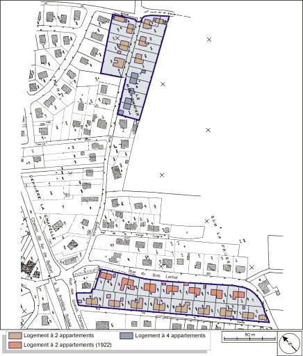
Cette cité a été construite par la société Viellard-Migeon et Cie après la Première Guerre mondiale, dans le prolongement ouest de la cité Alsacienne. Elle compte 23 maisons ouvrières et s'étend rue des Combes, rue du Bois Lachat et rue Bellevue. Ces habitations abritent deux ou quatre logements : sept sont datées 1922. Existence d'un fonds d'archives privées.
Période(s)
Principale :
- 2e quart 20e siècle
Date(s)
1922 :
porte la date
1922 :
daté par travaux historiques
Description
Les maisons à quatre logements présentent deux accès distincts en façade, un plan rectangulaire, à cinq travées, avec un étage de soubassement, un rez-de-chaussée surélevé et un étage carré. Les baies sont à arc segmentaire avec alternance de brique et pierre calcaire, ainsi que pour les chaînes d'angle. Les habitations à deux logements sont soit en brique et enduit, avec un étage de soubassement, un rez-de-chaussée surélevé et un étage de comble, soit en moellon de calcaire enduit, avec un étage de soubassement, un rez-de-chaussée surélevé et un étage en surcroît. On retrouve pour ces logements le jeu de bichromie brique/pierre, que ce soit pour les baies de façade ou pour les chaînes d'angle.
Murs :
- calcaire
- brique
- calcaire
- pierre de taille
- moellon
- enduit
Toit :
- tuile mécanique
Etages :
- étage de soubassement
- rez-de-chaussée surélevé
- 1 étage carré
À voir
Informations complémentaires
Thématiques :
- patrimoine industriel du Territoire de Belfort
Aire d’étude et canton :
Territoire de Belfort
Dénomination :
cité ouvrière
- © Région Bourgogne-Franche-Comté, Inventaire du patrimoine
