BASTION SAINTE-ANNE
21 - Beaune
boulevard Jules Ferry, rempart Saint-Jean
- Dossier IA21005897 réalisé en 2023 revu en 2024
- Auteur(s) : Guillaume Gézolme
Historique
Appelé également "Sainte-Agathe", en référence au jour où le château a été repris aux mains des ligueurs, ce bastion est édifié en 1636 dans le contexte du conflit de la guerre des Dix ans et d'une menace de siège par l'Empire. Les échevins beaunois obtiennent l'autorisation d'ériger de nouvelles fortifications auprès d'Henri II, prince de Condé et gouverneur de la Bourgogne. Un marché d'un montant de 6 000 livres est passé avec Urbain Pascault, entrepreneur pour la construction de ce bastion, en décembre 1636, semblable à celui qu'il bâtit au rempart de la Comédie. L'ouvrage est achevé l'année suivante comme le laisse supposer la date gravée au-dessous de l'échauguette. Il renforce le front entre le château et la Grosse Tour, et contrôle la porte de ville Madeleine. Le 8 novembre 1789, le bastion est concédé par la mairie au sieur Rousset pour neuf années moyennant une rente annuelle de 240 livres, puis il est vendu à la Révolution. Propriété privée, son terre-plein a été aménagé en jardin, tandis que le fossé a laissé place à un stationnement municipal.
- 2e quart 17e siècle
Pascault, Urbain. Entrepreneur à Beaune en 1636.
Description
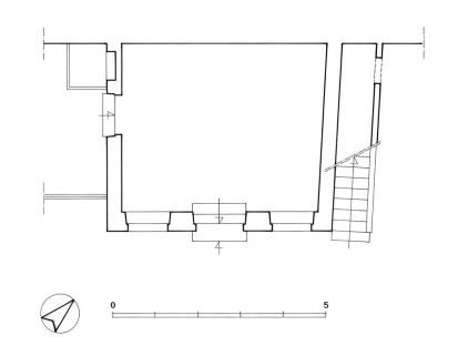
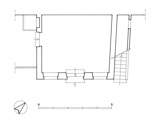
Prenant appui sur le rempart Madeleine, le bastion, en forme de pentagone, a des murs en moellon calcaire et présente à sa pointe une échauguette, en pierre de taille avec lave en couverture. La terrasse du terre-plein est arborée.
- calcaire
- moellon
- système bastionné
Source(s) documentaire(s)
-
Archives municipales, Beaune : carton 31, cote 59. Cahier contenant la copie des délibérations de la mairie et du conseil de la ville de Beaune, depuis le 4 août 1636 au 3 mars 1637, concernant les préparatifs de défense de la ville, contre les troupes impériales commandées par Galas et le duc de Lorraine (1636-1637).
Archives municipales, Beaune : carton 31, cote 59. Cahier contenant la copie des délibérations de la mairie et du conseil de la ville de Beaune, depuis le 4 août 1636 au 3 mars 1637, concernant les préparatifs de défense de la ville, contre les troupes impériales commandées par Galas et le duc de Lorraine. 1636-1637.Lieu de conservation : Archives municipales, Beaune - Cote du document : carton 31, cote 59 -
Archives municipales, Beaune : carton 31, n° 75. Procès verbal dressé par le sieur Bretagne lieutenant civil au bailliage de Beaune, portant reconnaissance des ouvrages exécutés pour la Ville par le sieur Pascaut entrepreneur aux bastions Notre-Dame et de la Madeleine (23 juillet 1637).
Archives municipales, Beaune : carton 31, n° 75. Procès verbal dressé par le sieur Bretagne lieutenant civil au bailliage de Beaune, portant reconnaissance des ouvrages exécutés pour la Ville par le sieur Pascaut entrepreneur aux bastions Notre-Dame et de la Madeleine. 23 juillet 1637.Lieu de conservation : Archives municipales, Beaune - Cote du document : carton 31, n° 75 -
Archives municipales, Beaune : carton 31, cote 86. Procès-verbal de l’adjudication du bastion Ste Agathe faite par la mairie au sieur Rousset pour le terme de 9 ans moyennant la somme de 240 livres par an (8 novembre 1789).
Archives municipales, Beaune : carton 31, cote 86. Procès-verbal de l’adjudication du bastion Ste Agathe faite par la mairie au sieur Rousset pour le terme de 9 ans moyennant la somme de 240 livres par an. 8 novembre 1789.Lieu de conservation : Archives municipales, Beaune - Cote du document : carton 31, cote 86
-
Plan et vue de l’enceinte des murailles et fortifications de la ville de Beaune (17e siècle).
Plan et vue de l’enceinte des murailles et fortifications de la ville de Beaune. Dessin, s.n. S.d [17e siècle]. Rouleau de papier de 6 mètres de long sur 46 centimètres de hauteur.Lieu de conservation : Archives municipales, Beaune - Cote du document : carton 31, cote 64 -
Plan du bastion de la Madeleine. S.d.
Plan du bastion de la Madeleine. Dessin (plume, lavis), par Denis Quinard, s.d.Lieu de conservation : Archives municipales, Beaune - Cote du document : carton 31, cote 89 -
Plan en feuilles de la ville de Beaune (atlas). 1783.
Plan en feuilles de la ville de Beaune. Atlas dessiné, par Denis Quinard II. 1783.Lieu de conservation : Archives municipales, Beaune - Cote du document : carton 88, cote 37 -
Plan de l'enceinte de Beaune levé en 1785 par François Pourcher [détail : le bastion Madeleine, ou Sainte-Anne].
Plan de l'enceinte de Beaune levé en 1785 par François Pourcher [détail : le bastion Madeleine, ou Sainte-Anne]. Dessin (plume, lavis), par François Pourcher. 1785.Lieu de conservation : Archives municipales, Beaune - Cote du document : carton 31, cote 100
-
Delissey, J. Le vieux Beaune. 1941.
Delissey, J. Le vieux Beaune. Beaune, 1941 (réimpr. 1981).
À voir
Informations complémentaires
rempart du Château comprenant le chemin de ronde, le saillant avec échauguette, la tour demi-ronde et le fossé jusqu'à la grille le long du boulevard : inscription par arrêté du 10 septembre 1937
- fortifications royales et nationales en Bourgogne-Franche-Comté
- © Région Bourgogne-Franche-Comté, Inventaire du patrimoine
