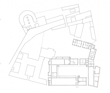
plan-masse
21, Beaune Hôtel-Dieu
N° de l’illustration : 20102100821NUDA
Date : 2010
Auteur : Alain Morelière
Reproduction soumise à autorisation du titulaire des droits d'exploitation
- © Région Bourgogne-Franche-Comté, Inventaire du patrimoine
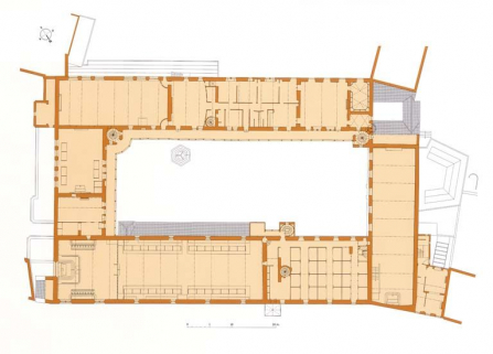
Plan du rez-de-chaussée.
21, Beaune Hôtel-Dieu
N° de l’illustration : 20042101133NUDA
Date : 2004
Auteur : Alain Morelière
Reproduction soumise à autorisation du titulaire des droits d'exploitation
- © Région Bourgogne-Franche-Comté, Inventaire du patrimoine
plan régulier du rez-de-chaussée
21, Beaune Hôtel-Dieu
N° de l’illustration : 20102101078NUDA
Date : 2010
Auteur : Alain Morelière
Reproduction soumise à autorisation du titulaire des droits d'exploitation
- © Région Bourgogne-Franche-Comté, Inventaire du patrimoine
plan régulier du rez-de-chaussée
21, Beaune Hôtel-Dieu
N° de l’illustration : 20102100854NUDYY
Date : 2010
Auteur : Alain Morelière
Reproduction soumise à autorisation du titulaire des droits d'exploitation
- © Région Bourgogne-Franche-Comté, Inventaire du patrimoine
plan schématique du premier niveau ou rez-de-chaussée
21, Beaune Hôtel-Dieu
N° de l’illustration : 20122100081A1YY
Date : 2012
Auteur : Claudine Hugonnet-Berger
Reproduction soumise à autorisation du titulaire des droits d'exploitation
- © Région Bourgogne-Franche-Comté, Inventaire du patrimoine
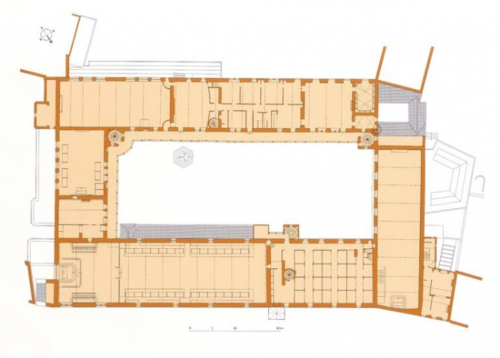
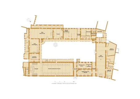
plan du rez-de-chaussée et de l'étage avec légendage des pièces
21, Beaune Hôtel-Dieu
N° de l’illustration : 20102100822NUDA
Date : 2010
Auteur : Alain Morelière
Reproduction soumise à autorisation du titulaire des droits d'exploitation
- © Région Bourgogne-Franche-Comté, Inventaire du patrimoine
Plan du 1er étage.
21, Beaune Hôtel-Dieu
N° de l’illustration : 20042101134NUDA
Date : 2004
Auteur : Alain Morelière
Reproduction soumise à autorisation du titulaire des droits d'exploitation
- © Région Bourgogne-Franche-Comté, Inventaire du patrimoine
plan régulier de l'étage
21, Beaune Hôtel-Dieu
N° de l’illustration : 20102100855NUDYY
Date : 2010
Auteur : Alain Morelière
Reproduction soumise à autorisation du titulaire des droits d'exploitation
- © Région Bourgogne-Franche-Comté, Inventaire du patrimoine
plan régulier de l'étage
21, Beaune Hôtel-Dieu
N° de l’illustration : 20102101079NUDA
Date : 2010
Auteur : Alain Morelière
Reproduction soumise à autorisation du titulaire des droits d'exploitation
- © Région Bourgogne-Franche-Comté, Inventaire du patrimoine
plan schématique du deuxième niveau
21, Beaune Hôtel-Dieu
N° de l’illustration : 20122100082A1YY
Date : 2012
Auteur : Claudine Hugonnet-Berger
Reproduction soumise à autorisation du titulaire des droits d'exploitation
- © Région Bourgogne-Franche-Comté, Inventaire du patrimoine
Plan schématique du troisième niveau.
21, Beaune Hôtel-Dieu
N° de l’illustration : 20122100083A1YY
Date : 2012
Auteur : Claudine Hugonnet-Berger
Reproduction soumise à autorisation du titulaire des droits d'exploitation
- © Région Bourgogne-Franche-Comté, Inventaire du patrimoine
Plan schématique du quatrième niveau
21, Beaune Hôtel-Dieu
N° de l’illustration : 20122100084A1YY
Date : 2012
Auteur : Claudine Hugonnet-Berger
Reproduction soumise à autorisation du titulaire des droits d'exploitation
- © Région Bourgogne-Franche-Comté, Inventaire du patrimoine
élévation ouest de la cour d'honneur
21, Beaune Hôtel-Dieu
N° de l’illustration : 20122100080A1YY
Date : 2012
Auteur : Claudine Hugonnet-Berger
Reproduction soumise à autorisation du titulaire des droits d'exploitation
- © Région Bourgogne-Franche-Comté, Inventaire du patrimoine
Vue d'ensemble depuis le clocher de la collégiale Notre-Dame.
21, Beaune Hôtel-Dieu
N° de l’illustration : 19882102362ZA
Date : 1988
Auteur : Michel Thierry
Reproduction soumise à autorisation du titulaire des droits d'exploitation
- © Région Bourgogne-Franche-Comté, Inventaire du patrimoine
Façade sur rue.
21, Beaune Hôtel-Dieu
N° de l’illustration : 20102100971NUC2A
Date : 2010
Auteur : Thierry Kuntz
Reproduction soumise à autorisation du titulaire des droits d'exploitation
- © Région Bourgogne-Franche-Comté, Inventaire du patrimoine
Elévation sur rue.
21, Beaune Hôtel-Dieu
N° de l’illustration : 20042100895VA
Date : 2004
Auteur : Michel Rosso
Reproduction soumise à autorisation du titulaire des droits d'exploitation
- © Région Bourgogne-Franche-Comté, Inventaire du patrimoine
Passage couvert entre la rue et la cour (vu depuis la cour).
21, Beaune Hôtel-Dieu
N° de l’illustration : 20042100961XA
Date : 2004
Auteur : Jean-Luc Duthu
Reproduction soumise à autorisation du titulaire des droits d'exploitation
- © Région Bourgogne-Franche-Comté, Inventaire du patrimoine
Façade sur rue.
21, Beaune Hôtel-Dieu
N° de l’illustration : 20102100973NUC2A
Date : 2010
Auteur : Thierry Kuntz
Reproduction soumise à autorisation du titulaire des droits d'exploitation
- © Région Bourgogne-Franche-Comté, Inventaire du patrimoine
Elévation sur rue : détail, fenêtre de la chapelle.
21, Beaune Hôtel-Dieu
N° de l’illustration : 20042100896XA
Date : 2004
Auteur : Michel Rosso
Reproduction soumise à autorisation du titulaire des droits d'exploitation
- © Région Bourgogne-Franche-Comté, Inventaire du patrimoine
Elévation sur rue : fenêtre de la sacristie
21, Beaune Hôtel-Dieu
N° de l’illustration : 20042100905XA
Date : 2004
Auteur : Michel Rosso
Reproduction soumise à autorisation du titulaire des droits d'exploitation
- © Région Bourgogne-Franche-Comté, Inventaire du patrimoine
Elévation sur rue : détail, grille d'une fenêtre du cellier dit cave du réfectoire (au centre, fente du "tronc pour les malades de l'hôtel-Dieu").
21, Beaune Hôtel-Dieu
N° de l’illustration : 20042100903XA
Date : 2004
Auteur : Michel Rosso
Reproduction soumise à autorisation du titulaire des droits d'exploitation
- © Région Bourgogne-Franche-Comté, Inventaire du patrimoine
Elévation sur rue, détail : nom de la rue sculpté à la Révolution "RUE DE LUMMANITE".
21, Beaune Hôtel-Dieu
N° de l’illustration : 20042100906XA
Date : 2004
Auteur : Michel Rosso
Reproduction soumise à autorisation du titulaire des droits d'exploitation
- © Région Bourgogne-Franche-Comté, Inventaire du patrimoine
Porte d'entrée.
21, Beaune Hôtel-Dieu
N° de l’illustration : 20102100974NUC2A
Date : 2010
Auteur : Thierry Kuntz
Reproduction soumise à autorisation du titulaire des droits d'exploitation
- © Région Bourgogne-Franche-Comté, Inventaire du patrimoine
Porte d'entrée.
21, Beaune Hôtel-Dieu
N° de l’illustration : 20102100975NUC2A
Date : 2010
Auteur : Thierry Kuntz
Reproduction soumise à autorisation du titulaire des droits d'exploitation
- © Région Bourgogne-Franche-Comté, Inventaire du patrimoine
Elévation sur rue : flèche et auvent à double bâtière de la porte d'entrée.
21, Beaune Hôtel-Dieu
N° de l’illustration : 20042100904XA
Date : 2004
Auteur : Michel Rosso
Reproduction soumise à autorisation du titulaire des droits d'exploitation
- © Région Bourgogne-Franche-Comté, Inventaire du patrimoine
Porte d'entrée.
21, Beaune Hôtel-Dieu
N° de l’illustration : 20042100900XA
Date : 2004
Auteur : Michel Rosso
Reproduction soumise à autorisation du titulaire des droits d'exploitation
- © Région Bourgogne-Franche-Comté, Inventaire du patrimoine
Porte d'entrée : détail, heurtoir.
21, Beaune Hôtel-Dieu
N° de l’illustration : 20042100901XA
Date : 2004
Auteur : Michel Rosso
Reproduction soumise à autorisation du titulaire des droits d'exploitation
- © Région Bourgogne-Franche-Comté, Inventaire du patrimoine
Auvent en double, bâtière de la porte d'entrée.
21, Beaune Hôtel-Dieu
N° de l’illustration : 20042100899XA
Date : 2004
Auteur : Michel Rosso
Reproduction soumise à autorisation du titulaire des droits d'exploitation
- © Région Bourgogne-Franche-Comté, Inventaire du patrimoine
Auvent de la porte d'entrée, détail.
21, Beaune Hôtel-Dieu
N° de l’illustration : 20102101025NUC2A
Date : 2010
Auteur : Thierry Kuntz
Reproduction soumise à autorisation du titulaire des droits d'exploitation
- © Région Bourgogne-Franche-Comté, Inventaire du patrimoine
Auvent de la porte d'entrée, détail.
21, Beaune Hôtel-Dieu
N° de l’illustration : 20102101023NUC2A
Date : 2010
Auteur : Thierry Kuntz
Reproduction soumise à autorisation du titulaire des droits d'exploitation
- © Région Bourgogne-Franche-Comté, Inventaire du patrimoine
Auvent de la porte d'entrée, détail.
21, Beaune Hôtel-Dieu
N° de l’illustration : 20102101026NUC2A
Date : 2010
Auteur : Thierry Kuntz
Reproduction soumise à autorisation du titulaire des droits d'exploitation
- © Région Bourgogne-Franche-Comté, Inventaire du patrimoine
Toit du grand bâtiment sur rue et clocher.
21, Beaune Hôtel-Dieu
N° de l’illustration : 20102101011NUC4A
Date : 2010
Auteur : Thierry Kuntz
Reproduction soumise à autorisation du titulaire des droits d'exploitation
- © Région Bourgogne-Franche-Comté, Inventaire du patrimoine
Grand corps de bâtiment : base de la flèche.
21, Beaune Hôtel-Dieu
N° de l’illustration : 20042100874XA
Date : 2004
Auteur : Michel Rosso
Reproduction soumise à autorisation du titulaire des droits d'exploitation
- © Région Bourgogne-Franche-Comté, Inventaire du patrimoine
Détail du clocher.
21, Beaune Hôtel-Dieu
N° de l’illustration : 20102101009NUC2A
Date : 2010
Auteur : Thierry Kuntz
Reproduction soumise à autorisation du titulaire des droits d'exploitation
- © Région Bourgogne-Franche-Comté, Inventaire du patrimoine
Cadran de l'horloge du clocher.
21, Beaune Hôtel-Dieu
N° de l’illustration : 20102101012NUC2A
Date : 2010
Auteur : Thierry Kuntz
Reproduction soumise à autorisation du titulaire des droits d'exploitation
- © Région Bourgogne-Franche-Comté, Inventaire du patrimoine
Toit du grand bâtiment sur rue, détail : pinacle de lucarne et base du clocher.
21, Beaune Hôtel-Dieu
N° de l’illustration : 20102100992NUC2A
Date : 2010
Auteur : Thierry Kuntz
Reproduction soumise à autorisation du titulaire des droits d'exploitation
- © Région Bourgogne-Franche-Comté, Inventaire du patrimoine
Toit du grand bâtiment sur rue, détail : lucarne et base du clocher.
21, Beaune Hôtel-Dieu
N° de l’illustration : 20102101013NUC2A
Date : 2010
Auteur : Thierry Kuntz
Reproduction soumise à autorisation du titulaire des droits d'exploitation
- © Région Bourgogne-Franche-Comté, Inventaire du patrimoine
Toit du grand bâtiment sur rue : lucarne.
21, Beaune Hôtel-Dieu
N° de l’illustration : 20102101018NUC2A
Date : 2010
Auteur : Thierry Kuntz
Reproduction soumise à autorisation du titulaire des droits d'exploitation
- © Région Bourgogne-Franche-Comté, Inventaire du patrimoine
Toit du grand bâtiment sur rue : lucarne.
21, Beaune Hôtel-Dieu
N° de l’illustration : 20102101014NUC2A
Date : 2010
Auteur : Thierry Kuntz
Reproduction soumise à autorisation du titulaire des droits d'exploitation
- © Région Bourgogne-Franche-Comté, Inventaire du patrimoine
Toit du grand bâtiment sur rue, détail : ornements et statue de la Vierge.
21, Beaune Hôtel-Dieu
N° de l’illustration : 20102101005NUC2A
Date : 2010
Auteur : Thierry Kuntz
Reproduction soumise à autorisation du titulaire des droits d'exploitation
- © Région Bourgogne-Franche-Comté, Inventaire du patrimoine
Toit du grand bâtiment sur rue, détail.
21, Beaune Hôtel-Dieu
N° de l’illustration : 20102100987NUC2A
Date : 2010
Auteur : Thierry Kuntz
Reproduction soumise à autorisation du titulaire des droits d'exploitation
- © Région Bourgogne-Franche-Comté, Inventaire du patrimoine
Toit du grand bâtiment sur rue, détail.
21, Beaune Hôtel-Dieu
N° de l’illustration : 20102100989NUC2A
Date : 2010
Auteur : Thierry Kuntz
Reproduction soumise à autorisation du titulaire des droits d'exploitation
- © Région Bourgogne-Franche-Comté, Inventaire du patrimoine
Toit du grand bâtiment sur rue, détail des ornements et statue du Christ.
21, Beaune Hôtel-Dieu
N° de l’illustration : 20102100986NUC2A
Date : 2010
Auteur : Thierry Kuntz
Reproduction soumise à autorisation du titulaire des droits d'exploitation
- © Région Bourgogne-Franche-Comté, Inventaire du patrimoine
Toit du grand bâtiment sur rue, détail.
21, Beaune Hôtel-Dieu
N° de l’illustration : 20102100981NUC2A
Date : 2010
Auteur : Thierry Kuntz
Reproduction soumise à autorisation du titulaire des droits d'exploitation
- © Région Bourgogne-Franche-Comté, Inventaire du patrimoine
Toit du grand bâtiment sur rue, lucarne et ornements.
21, Beaune Hôtel-Dieu
N° de l’illustration : 20102100997NUC2A
Date : 2010
Auteur : Thierry Kuntz
Reproduction soumise à autorisation du titulaire des droits d'exploitation
- © Région Bourgogne-Franche-Comté, Inventaire du patrimoine
Toit du grand bâtiment sur rue, détail des ornements.
21, Beaune Hôtel-Dieu
N° de l’illustration : 20102100994NUC2A
Date : 2010
Auteur : Thierry Kuntz
Reproduction soumise à autorisation du titulaire des droits d'exploitation
- © Région Bourgogne-Franche-Comté, Inventaire du patrimoine
Toit du grand bâtiment sur rue, détail : pinacle de lucarne.
21, Beaune Hôtel-Dieu
N° de l’illustration : 20102100983NUC2A
Date : 2010
Auteur : Thierry Kuntz
Reproduction soumise à autorisation du titulaire des droits d'exploitation
- © Région Bourgogne-Franche-Comté, Inventaire du patrimoine
Toit du grand bâtiment sur rue, détail.
21, Beaune Hôtel-Dieu
N° de l’illustration : 20102100991NUC2A
Date : 2010
Auteur : Thierry Kuntz
Reproduction soumise à autorisation du titulaire des droits d'exploitation
- © Région Bourgogne-Franche-Comté, Inventaire du patrimoine
Toit du grand bâtiment sur rue, détail des ornements.
21, Beaune Hôtel-Dieu
N° de l’illustration : 20102100993NUC2A
Date : 2010
Auteur : Thierry Kuntz
Reproduction soumise à autorisation du titulaire des droits d'exploitation
- © Région Bourgogne-Franche-Comté, Inventaire du patrimoine
Toit du grand bâtiment sur rue, détail.
21, Beaune Hôtel-Dieu
N° de l’illustration : 20102101003NUC2A
Date : 2010
Auteur : Thierry Kuntz
Reproduction soumise à autorisation du titulaire des droits d'exploitation
- © Région Bourgogne-Franche-Comté, Inventaire du patrimoine
Toit du grand bâtiment sur rue, détail des ornements.
21, Beaune Hôtel-Dieu
N° de l’illustration : 20102100996NUC2A
Date : 2010
Auteur : Thierry Kuntz
Reproduction soumise à autorisation du titulaire des droits d'exploitation
- © Région Bourgogne-Franche-Comté, Inventaire du patrimoine
Toit du grand bâtiment sur rue, détail des ornements.
21, Beaune Hôtel-Dieu
N° de l’illustration : 20102100995NUC2A
Date : 2010
Auteur : Thierry Kuntz
Reproduction soumise à autorisation du titulaire des droits d'exploitation
- © Région Bourgogne-Franche-Comté, Inventaire du patrimoine
Toit du grand bâtiment sur rue : lucarnes.
21, Beaune Hôtel-Dieu
N° de l’illustration : 20102101015NUC2A
Date : 2010
Auteur : Thierry Kuntz
Reproduction soumise à autorisation du titulaire des droits d'exploitation
- © Région Bourgogne-Franche-Comté, Inventaire du patrimoine
Toit du grand bâtiment sur rue, détail : ornements et statue de la Vierge.
21, Beaune Hôtel-Dieu
N° de l’illustration : 20102101004NUC2A
Date : 2010
Auteur : Thierry Kuntz
Reproduction soumise à autorisation du titulaire des droits d'exploitation
- © Région Bourgogne-Franche-Comté, Inventaire du patrimoine
Toit du grand bâtiment sur rue, détail : statue de la Vierge.
21, Beaune Hôtel-Dieu
N° de l’illustration : 20102101000NUC2A
Date : 2010
Auteur : Thierry Kuntz
Reproduction soumise à autorisation du titulaire des droits d'exploitation
- © Région Bourgogne-Franche-Comté, Inventaire du patrimoine
Toit du grand bâtiment sur rue, détail : revers de la statue de la Vierge.
21, Beaune Hôtel-Dieu
N° de l’illustration : 20102100999NUC2A
Date : 2010
Auteur : Thierry Kuntz
Reproduction soumise à autorisation du titulaire des droits d'exploitation
- © Région Bourgogne-Franche-Comté, Inventaire du patrimoine
Vue d'ensemble de la cour d'honneur.
21, Beaune Hôtel-Dieu
N° de l’illustration : 20032100585NUC2A
Date : 2003
Auteur : Michel Thierry
Reproduction soumise à autorisation du titulaire des droits d'exploitation
- © Région Bourgogne-Franche-Comté, Inventaire du patrimoine
Vue d'ensemble de la cour d'honneur.
21, Beaune Hôtel-Dieu
N° de l’illustration : 20032100586NUC2A
Date : 2003
Auteur : Michel Thierry
Reproduction soumise à autorisation du titulaire des droits d'exploitation
- © Région Bourgogne-Franche-Comté, Inventaire du patrimoine
Vue d'ensemble de la cour d'honneur.
21, Beaune Hôtel-Dieu
N° de l’illustration : 20032100584NUC2A
Date : 2003
Auteur : Michel Thierry
Reproduction soumise à autorisation du titulaire des droits d'exploitation
- © Région Bourgogne-Franche-Comté, Inventaire du patrimoine
Grand bâtiment sur rue, depuis la galerie haute de la grande aile sur cour.
21, Beaune Hôtel-Dieu
N° de l’illustration : 20102100978NUC4A
Date : 2010
Auteur : Thierry Kuntz
Reproduction soumise à autorisation du titulaire des droits d'exploitation
- © Région Bourgogne-Franche-Comté, Inventaire du patrimoine
Grand corps de bâtiment (élévation sur cour) : vue partielle excluant la moitié postérieure de la grande chambre des Pauvres.
21, Beaune Hôtel-Dieu
N° de l’illustration : 20042100877VA
Date : 2004
Auteur : Michel Rosso
Reproduction soumise à autorisation du titulaire des droits d'exploitation
- © Région Bourgogne-Franche-Comté, Inventaire du patrimoine
Grand corps de bâtiment (élévation sur cour) : salles de la communauté des soeurs.
21, Beaune Hôtel-Dieu
N° de l’illustration : 19932103180X
Date : 1993
Auteur : Michel Rosso
Reproduction soumise à autorisation du titulaire des droits d'exploitation
- © Région Bourgogne-Franche-Comté, Inventaire du patrimoine
Angle de la salle Saint-Louis et du grand corps de bâtiment.
21, Beaune Hôtel-Dieu
N° de l’illustration : 20042100924XA
Date : 2004
Auteur : Michel Rosso
Reproduction soumise à autorisation du titulaire des droits d'exploitation
- © Région Bourgogne-Franche-Comté, Inventaire du patrimoine
Grand corps de bâtiment (élévation sur cour) : partie du bâtiment abritant la grande chambre des Pauvres.
21, Beaune Hôtel-Dieu
N° de l’illustration : 20042100878VA
Date : 2004
Auteur : Michel Rosso
Reproduction soumise à autorisation du titulaire des droits d'exploitation
- © Région Bourgogne-Franche-Comté, Inventaire du patrimoine
Grand corps de bâtiment (élévation sur cour) : détail, tourelles de part et d'autre de la porte du vestibule d'entrée.
21, Beaune Hôtel-Dieu
N° de l’illustration : 20042100894XA
Date : 2004
Auteur : Jean-Luc Duthu
Reproduction soumise à autorisation du titulaire des droits d'exploitation
- © Région Bourgogne-Franche-Comté, Inventaire du patrimoine
Grand corps de bâtiment (élévation sur cour) : détail des tourelles de part et d'autre du vestibule d'entrée.
21, Beaune Hôtel-Dieu
N° de l’illustration : 20042100880XA
Date : 2004
Auteur : Michel Rosso
Reproduction soumise à autorisation du titulaire des droits d'exploitation
- © Région Bourgogne-Franche-Comté, Inventaire du patrimoine
Vestibule d'entrée, vue depuis la cour.
21, Beaune Hôtel-Dieu
N° de l’illustration : 20042100954XA
Date : 2004
Auteur : Michel Rosso
Reproduction soumise à autorisation du titulaire des droits d'exploitation
- © Région Bourgogne-Franche-Comté, Inventaire du patrimoine
Vestibule d'entrée : détail, porte à deux vantaux (sur cour).
21, Beaune Hôtel-Dieu
N° de l’illustration : 20042100955XA
Date : 2004
Auteur : Jean-Luc Duthu
Reproduction soumise à autorisation du titulaire des droits d'exploitation
- © Région Bourgogne-Franche-Comté, Inventaire du patrimoine
Grand corps de bâtiment (élévation sur cour) : détail, galerie de bois reliant les tourelles situées de part et d'autre du vestibule d'entrée.
21, Beaune Hôtel-Dieu
N° de l’illustration : 20042100881XA
Date : 2004
Auteur : Jean-Luc Duthu
Reproduction soumise à autorisation du titulaire des droits d'exploitation
- © Région Bourgogne-Franche-Comté, Inventaire du patrimoine
Grand bâtiment sur rue, parties hautes côté cour.
21, Beaune Hôtel-Dieu
N° de l’illustration : 20102101035NUC4A
Date : 2010
Auteur : Thierry Kuntz
Reproduction soumise à autorisation du titulaire des droits d'exploitation
- © Région Bourgogne-Franche-Comté, Inventaire du patrimoine
Grand corps de bâtiment (élévation sur cour) : détail du toit.
21, Beaune Hôtel-Dieu
N° de l’illustration : 20042100879XA
Date : 2004
Auteur : Michel Rosso
Reproduction soumise à autorisation du titulaire des droits d'exploitation
- © Région Bourgogne-Franche-Comté, Inventaire du patrimoine
Grand corps de bâtiment : vue partielle du toit, depuis la cour ; statue de saint Jean-Baptiste, par Etienne de Saptes (XIXe siècle).
21, Beaune Hôtel-Dieu
N° de l’illustration : 20042100876XA
Date : 2004
Auteur : Michel Rosso
Reproduction soumise à autorisation du titulaire des droits d'exploitation
- © Région Bourgogne-Franche-Comté, Inventaire du patrimoine
Angle du grand corps de bâtiment et de la petite aile sur cour.
21, Beaune Hôtel-Dieu
N° de l’illustration : 19932103181X
Date : 1993
Auteur : Michel Rosso
Reproduction soumise à autorisation du titulaire des droits d'exploitation
- © Région Bourgogne-Franche-Comté, Inventaire du patrimoine
Ailes sur la cour d'honneur, vue d'ensemble.
21, Beaune Hôtel-Dieu
N° de l’illustration : 19932103194V
Date : 1993
Auteur : Michel Rosso
Reproduction soumise à autorisation du titulaire des droits d'exploitation
- © Région Bourgogne-Franche-Comté, Inventaire du patrimoine
Grande aile sur cour et salle Saint-Louis.
21, Beaune Hôtel-Dieu
N° de l’illustration : 19932103195V
Date : 1993
Auteur : Michel Rosso
Reproduction soumise à autorisation du titulaire des droits d'exploitation
- © Région Bourgogne-Franche-Comté, Inventaire du patrimoine
Ailes sur cour : vue d'ensemble.
21, Beaune Hôtel-Dieu
N° de l’illustration : 20042100944VA
Date : 2004
Auteur : Michel Rosso
Reproduction soumise à autorisation du titulaire des droits d'exploitation
- © Région Bourgogne-Franche-Comté, Inventaire du patrimoine
Ailes sur cour, vue d'ensemble.
21, Beaune Hôtel-Dieu
N° de l’illustration : 20042100945VA
Date : 2004
Auteur : Michel Rosso
Reproduction soumise à autorisation du titulaire des droits d'exploitation
- © Région Bourgogne-Franche-Comté, Inventaire du patrimoine
Grande aile sur cour, vue d'ensemble de trois quarts gauche.
21, Beaune Hôtel-Dieu
N° de l’illustration : 20042100940VA
Date : 2004
Auteur : Michel Rosso
Reproduction soumise à autorisation du titulaire des droits d'exploitation
- © Région Bourgogne-Franche-Comté, Inventaire du patrimoine
Grande aile sur cour, vue d'ensemble de trois quarts droit.
21, Beaune Hôtel-Dieu
N° de l’illustration : 20042100939VA
Date : 2004
Auteur : Michel Rosso
Reproduction soumise à autorisation du titulaire des droits d'exploitation
- © Région Bourgogne-Franche-Comté, Inventaire du patrimoine
Ailes sur cour.
21, Beaune Hôtel-Dieu
N° de l’illustration : 20042100946VA
Date : 2004
Auteur : Michel Rosso
Reproduction soumise à autorisation du titulaire des droits d'exploitation
- © Région Bourgogne-Franche-Comté, Inventaire du patrimoine
Angle des deux ailes sur cour.
21, Beaune Hôtel-Dieu
N° de l’illustration : 20042100937VA
Date : 2004
Auteur : Michel Rosso
Reproduction soumise à autorisation du titulaire des droits d'exploitation
- © Région Bourgogne-Franche-Comté, Inventaire du patrimoine
Grande aile sur cour, partie droite.
21, Beaune Hôtel-Dieu
N° de l’illustration : 20042100942VA
Date : 2004
Auteur : Michel Rosso
Reproduction soumise à autorisation du titulaire des droits d'exploitation
- © Région Bourgogne-Franche-Comté, Inventaire du patrimoine
Grande aile sur cour : vue partielle (côté chambre du Roi).
21, Beaune Hôtel-Dieu
N° de l’illustration : 20042100943VA
Date : 2004
Auteur : Michel Rosso
Reproduction soumise à autorisation du titulaire des droits d'exploitation
- © Région Bourgogne-Franche-Comté, Inventaire du patrimoine
Grande aile sur cour, partie gauche.
21, Beaune Hôtel-Dieu
N° de l’illustration : 19932103191X
Date : 1993
Auteur : Michel Rosso
Reproduction soumise à autorisation du titulaire des droits d'exploitation
- © Région Bourgogne-Franche-Comté, Inventaire du patrimoine
Grande aile sur cour et salle Saint-Louis.
21, Beaune Hôtel-Dieu
N° de l’illustration : 20042100941VA
Date : 2004
Auteur : Michel Rosso
Reproduction soumise à autorisation du titulaire des droits d'exploitation
- © Région Bourgogne-Franche-Comté, Inventaire du patrimoine
Grande aile sur cour, vue de trois quarts gauche.
21, Beaune Hôtel-Dieu
N° de l’illustration : 20032100589NUC2A
Date : 2003
Auteur : Michel Thierry
Reproduction soumise à autorisation du titulaire des droits d'exploitation
- © Région Bourgogne-Franche-Comté, Inventaire du patrimoine
Grande aile sur cour (vue depuis la chambre-Dieu).
21, Beaune Hôtel-Dieu
N° de l’illustration : 20032100590NUC2A
Date : 2003
Auteur : Michel Thierry
Reproduction soumise à autorisation du titulaire des droits d'exploitation
- © Région Bourgogne-Franche-Comté, Inventaire du patrimoine
Angle des deux ailes sur cour et puits.
21, Beaune Hôtel-Dieu
N° de l’illustration : 20042100859XA
Date : 2004
Auteur : Michel Rosso
Reproduction soumise à autorisation du titulaire des droits d'exploitation
- © Région Bourgogne-Franche-Comté, Inventaire du patrimoine
Puits.
21, Beaune Hôtel-Dieu
N° de l’illustration : 20102100977NUC4A
Date : 2010
Auteur : Thierry Kuntz
Reproduction soumise à autorisation du titulaire des droits d'exploitation
- © Région Bourgogne-Franche-Comté, Inventaire du patrimoine
Grande aile sur cour : détail, galerie basse (côté pharmacie).
21, Beaune Hôtel-Dieu
N° de l’illustration : 19932103185X
Date : 1993
Auteur : Michel Rosso
Reproduction soumise à autorisation du titulaire des droits d'exploitation
- © Région Bourgogne-Franche-Comté, Inventaire du patrimoine
Gargouille.
21, Beaune Hôtel-Dieu
N° de l’illustration : 20102101032NUC4A
Date : 2010
Auteur : Thierry Kuntz
Reproduction soumise à autorisation du titulaire des droits d'exploitation
- © Région Bourgogne-Franche-Comté, Inventaire du patrimoine
Grande aile sur cour, détail : gargouille
21, Beaune Hôtel-Dieu
N° de l’illustration : 20032100593NUC2A
Date : 2003
Auteur : Michel Thierry
Reproduction soumise à autorisation du titulaire des droits d'exploitation
- © Région Bourgogne-Franche-Comté, Inventaire du patrimoine
Grande aile sur cour : gargouille conçue par le sculpteur Adolphe Gleisse (début XXe siècle).
21, Beaune Hôtel-Dieu
N° de l’illustration : 20042100933XA
Date : 2004
Auteur : Michel Rosso
Reproduction soumise à autorisation du titulaire des droits d'exploitation
- © Région Bourgogne-Franche-Comté, Inventaire du patrimoine
Grande aile sur cour, détail : gargouille conçue par le sculpteur Adolphe Gleisse (début XXe siècle).
21, Beaune Hôtel-Dieu
N° de l’illustration : 20032100592NUC2A
Date : 2003
Auteur : Michel Thierry
Reproduction soumise à autorisation du titulaire des droits d'exploitation
- © Région Bourgogne-Franche-Comté, Inventaire du patrimoine
Grande aile sur cour : détail des lucarnes.
21, Beaune Hôtel-Dieu
N° de l’illustration : 20032100591NUC2A
Date : 2003
Auteur : Michel Thierry
Reproduction soumise à autorisation du titulaire des droits d'exploitation
- © Région Bourgogne-Franche-Comté, Inventaire du patrimoine
Grande aile sur cour : louvre de la chambre du Roi (ange sculpté par Adolphe Gleisse au début du XXe siècle).
21, Beaune Hôtel-Dieu
N° de l’illustration : 20042100935XA
Date : 2004
Auteur : Jean-Luc Duthu
Reproduction soumise à autorisation du titulaire des droits d'exploitation
- © Région Bourgogne-Franche-Comté, Inventaire du patrimoine
Grande aile sur cour : louvre de l'ancienne chambre Sainte-Catherine (ange sculpté par Adolphe Gleisse au début du XXe siècle).
21, Beaune Hôtel-Dieu
N° de l’illustration : 20042100934XA
Date : 2004
Auteur : Jean-Luc Duthu
Reproduction soumise à autorisation du titulaire des droits d'exploitation
- © Région Bourgogne-Franche-Comté, Inventaire du patrimoine
Extrémité du vestibule d'entrée, côté cour.
21, Beaune Hôtel-Dieu
N° de l’illustration : 20042100963XA
Date : 2004
Auteur : Jean-Luc Duthu
Reproduction soumise à autorisation du titulaire des droits d'exploitation
- © Région Bourgogne-Franche-Comté, Inventaire du patrimoine
Vue de la cour depuis une galerie.
21, Beaune Hôtel-Dieu
N° de l’illustration : 20042100938VA
Date : 2004
Auteur : Michel Rosso
Reproduction soumise à autorisation du titulaire des droits d'exploitation
- © Région Bourgogne-Franche-Comté, Inventaire du patrimoine
Angle des ailes sur cour : galerie basse.
21, Beaune Hôtel-Dieu
N° de l’illustration : 20042100929XA
Date : 2004
Auteur : Jean-Luc Duthu
Reproduction soumise à autorisation du titulaire des droits d'exploitation
- © Région Bourgogne-Franche-Comté, Inventaire du patrimoine
Grande aile sur cour : galerie basse.
21, Beaune Hôtel-Dieu
N° de l’illustration : 20042100928XA
Date : 2004
Auteur : Jean-Luc Duthu
Reproduction soumise à autorisation du titulaire des droits d'exploitation
- © Région Bourgogne-Franche-Comté, Inventaire du patrimoine
Grande aile sur cour : galerie basse.
21, Beaune Hôtel-Dieu
N° de l’illustration : 20042100927VA
Date : 2004
Auteur : Michel Rosso
Reproduction soumise à autorisation du titulaire des droits d'exploitation
- © Région Bourgogne-Franche-Comté, Inventaire du patrimoine
Galerie haute de la grande aile sur cour.
21, Beaune Hôtel-Dieu
N° de l’illustration : 20042100931XA
Date : 2004
Auteur : Michel Rosso
Reproduction soumise à autorisation du titulaire des droits d'exploitation
- © Région Bourgogne-Franche-Comté, Inventaire du patrimoine
Galerie haute de la grande aile sur cour.
21, Beaune Hôtel-Dieu
N° de l’illustration : 20102100976NUC4AQ
Date : 2010
Auteur : Thierry Kuntz
Reproduction soumise à autorisation du titulaire des droits d'exploitation
- © Région Bourgogne-Franche-Comté, Inventaire du patrimoine
Grande aile sur cour : galerie haute (vue depuis la tourelle d'escalier carrée).
21, Beaune Hôtel-Dieu
N° de l’illustration : 20032100595NUC2A
Date : 2003
Auteur : Michel Thierry
Reproduction soumise à autorisation du titulaire des droits d'exploitation
- © Région Bourgogne-Franche-Comté, Inventaire du patrimoine
Grande aile : élévation sur la deuxième cour (du côté de la chambre du Roi).
21, Beaune Hôtel-Dieu
N° de l’illustration : 19932103196V
Date : 1993
Auteur : Michel Rosso
Reproduction soumise à autorisation du titulaire des droits d'exploitation
- © Région Bourgogne-Franche-Comté, Inventaire du patrimoine
Grande aile, élévation sur les jardins.
21, Beaune Hôtel-Dieu
N° de l’illustration : 20042100907VA
Date : 2004
Auteur : Michel Rosso
Reproduction soumise à autorisation du titulaire des droits d'exploitation
- © Région Bourgogne-Franche-Comté, Inventaire du patrimoine
Grande aile : élévation sur le jardin (du côté de la salle Saint-Nicolas).
21, Beaune Hôtel-Dieu
N° de l’illustration : 19932103197V
Date : 1993
Auteur : Michel Rosso
Reproduction soumise à autorisation du titulaire des droits d'exploitation
- © Région Bourgogne-Franche-Comté, Inventaire du patrimoine
Grande aile, élévation sur les jardins.
21, Beaune Hôtel-Dieu
N° de l’illustration : 20042100908VA
Date : 2004
Auteur : Michel Rosso
Reproduction soumise à autorisation du titulaire des droits d'exploitation
- © Région Bourgogne-Franche-Comté, Inventaire du patrimoine
Salle Saint-Louis, détail : toiture et lucarnes.
21, Beaune Hôtel-Dieu
N° de l’illustration : 20032100594NUC2A
Date : 2003
Auteur : Michel Thierry
Reproduction soumise à autorisation du titulaire des droits d'exploitation
- © Région Bourgogne-Franche-Comté, Inventaire du patrimoine
Salle Saint-Louis : détail, couverture et lucarne.
21, Beaune Hôtel-Dieu
N° de l’illustration : 20042100926XA
Date : 2004
Auteur : Michel Rosso
Reproduction soumise à autorisation du titulaire des droits d'exploitation
- © Région Bourgogne-Franche-Comté, Inventaire du patrimoine
Salle Saint-Louis : détail du toit et épi de faîtage.
21, Beaune Hôtel-Dieu
N° de l’illustration : 20042100925XA
Date : 2004
Auteur : Michel Rosso
Reproduction soumise à autorisation du titulaire des droits d'exploitation
- © Région Bourgogne-Franche-Comté, Inventaire du patrimoine
Elévation sur la cour de l'ancien couvent des cordeliers : vue d'ensemble.
21, Beaune Hôtel-Dieu
N° de l’illustration : 20042100847XA
Date : 2004
Auteur : Jean-Luc Duthu
Reproduction soumise à autorisation du titulaire des droits d'exploitation
- © Région Bourgogne-Franche-Comté, Inventaire du patrimoine
Chevet, vue de trois-quarts
21, Beaune Hôtel-Dieu
N° de l’illustration : 19892102501X
Date : 1989
Auteur : Michel Thierry
Reproduction soumise à autorisation du titulaire des droits d'exploitation
- © Région Bourgogne-Franche-Comté, Inventaire du patrimoine
Vestibule d'entrée : porte d'entrée de la grande salle des pauvres.
21, Beaune Hôtel-Dieu
N° de l’illustration : 19932103186X
Date : 1993
Auteur : Michel Rosso
Reproduction soumise à autorisation du titulaire des droits d'exploitation
- © Région Bourgogne-Franche-Comté, Inventaire du patrimoine
Grand corps de bâtiment : ancienne cave du réfectoire, ouverture sur la rue.
21, Beaune Hôtel-Dieu
N° de l’illustration : 19932103193X
Date : 1993
Auteur : Michel Rosso
Reproduction soumise à autorisation du titulaire des droits d'exploitation
- © Région Bourgogne-Franche-Comté, Inventaire du patrimoine
Grand corps de bâtiment : ancienne cave du réfectoire.
21, Beaune Hôtel-Dieu
N° de l’illustration : 19932103192X
Date : 1993
Auteur : Michel Rosso
Reproduction soumise à autorisation du titulaire des droits d'exploitation
- © Région Bourgogne-Franche-Comté, Inventaire du patrimoine
Vestibule d'entrée vu depuis la rue.
21, Beaune Hôtel-Dieu
N° de l’illustration : 20042100962XA
Date : 2004
Auteur : Jean-Luc Duthu
Reproduction soumise à autorisation du titulaire des droits d'exploitation
- © Région Bourgogne-Franche-Comté, Inventaire du patrimoine
Vestibule d'entrée : porte d'entrée de la grande chambre des Pauvres.
21, Beaune Hôtel-Dieu
N° de l’illustration : 20042100956XA
Date : 2004
Auteur : Jean-Luc Duthu
Reproduction soumise à autorisation du titulaire des droits d'exploitation
- © Région Bourgogne-Franche-Comté, Inventaire du patrimoine
Vue d'ensemble de la grande salle des pauvres.
21, Beaune Hôtel-Dieu
N° de l’illustration : 20032100588NUC2A
Date : 2003
Auteur : Michel Thierry
Reproduction soumise à autorisation du titulaire des droits d'exploitation
- © Région Bourgogne-Franche-Comté, Inventaire du patrimoine
Vue d'ensemble de la grande salle des pauvres.
21, Beaune Hôtel-Dieu
N° de l’illustration : 20032100587NUC2A
Date : 2003
Auteur : Michel Thierry
Reproduction soumise à autorisation du titulaire des droits d'exploitation
- © Région Bourgogne-Franche-Comté, Inventaire du patrimoine
Grande chambre des Pauvres : vue axiale depuis l'entrée.
21, Beaune Hôtel-Dieu
N° de l’illustration : 20042100830VA
Date : 2004
Auteur : Michel Rosso
Reproduction soumise à autorisation du titulaire des droits d'exploitation
- © Région Bourgogne-Franche-Comté, Inventaire du patrimoine
Grande chambre des Pauvres (vue depuis la chapelle).
21, Beaune Hôtel-Dieu
N° de l’illustration : 20042100832VA
Date : 2004
Auteur : Michel Rosso
Reproduction soumise à autorisation du titulaire des droits d'exploitation
- © Région Bourgogne-Franche-Comté, Inventaire du patrimoine
Grande chambre des Pauvres : vue de 3/4 depuis l'angle antérieur gauche.
21, Beaune Hôtel-Dieu
N° de l’illustration : 20042100831VA
Date : 2004
Auteur : Michel Rosso
Reproduction soumise à autorisation du titulaire des droits d'exploitation
- © Région Bourgogne-Franche-Comté, Inventaire du patrimoine
Grande chambre des Pauvres : chapelle (murs postérieur et droit).
21, Beaune Hôtel-Dieu
N° de l’illustration : 20042100824VA
Date : 2004
Auteur : Michel Rosso
Reproduction soumise à autorisation du titulaire des droits d'exploitation
- © Région Bourgogne-Franche-Comté, Inventaire du patrimoine
Grande chambre des Pauvres : chapelle.
21, Beaune Hôtel-Dieu
N° de l’illustration : 20042100822VA
Date : 2004
Auteur : Michel Rosso
Reproduction soumise à autorisation du titulaire des droits d'exploitation
- © Région Bourgogne-Franche-Comté, Inventaire du patrimoine
Grande chambre des Pauvres : chapelle (vue depuis la sacristie).
21, Beaune Hôtel-Dieu
N° de l’illustration : 20042100833VA
Date : 2004
Auteur : Michel Rosso
Reproduction soumise à autorisation du titulaire des droits d'exploitation
- © Région Bourgogne-Franche-Comté, Inventaire du patrimoine
Grande chambre des Pauvres, chapelle : lavabo (mur droit).
21, Beaune Hôtel-Dieu
N° de l’illustration : 20042100828XA
Date : 2004
Auteur : Michel Rosso
Reproduction soumise à autorisation du titulaire des droits d'exploitation
- © Région Bourgogne-Franche-Comté, Inventaire du patrimoine
Grande chambre des Pauvres, chapelle : niche (mur postérieur).
21, Beaune Hôtel-Dieu
N° de l’illustration : 20042100827XA
Date : 2004
Auteur : Michel Rosso
Reproduction soumise à autorisation du titulaire des droits d'exploitation
- © Région Bourgogne-Franche-Comté, Inventaire du patrimoine
Grande chambre des Pauvres, chapelle : détail, hagioscope de la chambre-Dieu.
21, Beaune Hôtel-Dieu
N° de l’illustration : 20042100825XA
Date : 2004
Auteur : Michel Rosso
Reproduction soumise à autorisation du titulaire des droits d'exploitation
- © Région Bourgogne-Franche-Comté, Inventaire du patrimoine
Grande salle des pauvres, mur antérieur avec échauguette d'angle.
21, Beaune Hôtel-Dieu
N° de l’illustration : 19932103187X
Date : 1993
Auteur : Michel Rosso
Reproduction soumise à autorisation du titulaire des droits d'exploitation
- © Région Bourgogne-Franche-Comté, Inventaire du patrimoine
Grande chambre des Pauvres : charpente à berceau lambrissé brisé (vue d'ensemble depuis le dortoir des soeurs).
21, Beaune Hôtel-Dieu
N° de l’illustration : 20042100834XA
Date : 2004
Auteur : Jean-Luc Duthu
Reproduction soumise à autorisation du titulaire des droits d'exploitation
- © Région Bourgogne-Franche-Comté, Inventaire du patrimoine
Grand corps de bâtiment : vue partielle de la charpente de la grande chambre des Pauvres.
21, Beaune Hôtel-Dieu
N° de l’illustration : 20042100959XA
Date : 2004
Auteur : Michel Rosso
Reproduction soumise à autorisation du titulaire des droits d'exploitation
- © Région Bourgogne-Franche-Comté, Inventaire du patrimoine
Grande chambre des Pauvres : détail, blochets saillants figurés (1ère travée, côté gauche).
21, Beaune Hôtel-Dieu
N° de l’illustration : 20042100798XA
Date : 2004
Auteur : Michel Rosso
Reproduction soumise à autorisation du titulaire des droits d'exploitation
- © Région Bourgogne-Franche-Comté, Inventaire du patrimoine
Grande chambre des Pauvres : détail, blochets saillants figurés (1ère travée, côté droit).
21, Beaune Hôtel-Dieu
N° de l’illustration : 20042100810XA
Date : 2004
Auteur : Michel Rosso
Reproduction soumise à autorisation du titulaire des droits d'exploitation
- © Région Bourgogne-Franche-Comté, Inventaire du patrimoine
Grande chambre des Pauvres : détail, blochets saillants figurés (2e travée, côté gauche).
21, Beaune Hôtel-Dieu
N° de l’illustration : 20042100799XA
Date : 2004
Auteur : Michel Rosso
Reproduction soumise à autorisation du titulaire des droits d'exploitation
- © Région Bourgogne-Franche-Comté, Inventaire du patrimoine
Grande chambre des Pauvres : détail, blochets saillants figurés (2e travée, côté droit).
21, Beaune Hôtel-Dieu
N° de l’illustration : 20042100811XA
Date : 2004
Auteur : Michel Rosso
Reproduction soumise à autorisation du titulaire des droits d'exploitation
- © Région Bourgogne-Franche-Comté, Inventaire du patrimoine
Grande chambre des Pauvres : détail, blochets saillants figurés (3e travée, côté droit).
21, Beaune Hôtel-Dieu
N° de l’illustration : 20042100812XA
Date : 2004
Auteur : Michel Rosso
Reproduction soumise à autorisation du titulaire des droits d'exploitation
- © Région Bourgogne-Franche-Comté, Inventaire du patrimoine
Grande chambre des Pauvres : détail, blochets saillants figurés (3e travée, côté gauche).
21, Beaune Hôtel-Dieu
N° de l’illustration : 20042100800XA
Date : 2004
Auteur : Michel Rosso
Reproduction soumise à autorisation du titulaire des droits d'exploitation
- © Région Bourgogne-Franche-Comté, Inventaire du patrimoine
Grande chambre des Pauvres : détail, blochets saillants figurés (4e travée, côté gauche).
21, Beaune Hôtel-Dieu
N° de l’illustration : 20042100801XA
Date : 2004
Auteur : Michel Rosso
Reproduction soumise à autorisation du titulaire des droits d'exploitation
- © Région Bourgogne-Franche-Comté, Inventaire du patrimoine
Grande chambre des Pauvres : détail, blochets saillants figurés (4e travée, côté droit).
21, Beaune Hôtel-Dieu
N° de l’illustration : 20042100813XA
Date : 2004
Auteur : Michel Rosso
Reproduction soumise à autorisation du titulaire des droits d'exploitation
- © Région Bourgogne-Franche-Comté, Inventaire du patrimoine
Grande chambre des Pauvres : détail, blochets saillants figurés (5e travée, côté gauche).
21, Beaune Hôtel-Dieu
N° de l’illustration : 20042100802XA
Date : 2004
Auteur : Michel Rosso
Reproduction soumise à autorisation du titulaire des droits d'exploitation
- © Région Bourgogne-Franche-Comté, Inventaire du patrimoine
Grande chambre des Pauvres : détail, blochets saillants figurés (5e travée, côté droit).
21, Beaune Hôtel-Dieu
N° de l’illustration : 20042100814XA
Date : 2004
Auteur : Michel Rosso
Reproduction soumise à autorisation du titulaire des droits d'exploitation
- © Région Bourgogne-Franche-Comté, Inventaire du patrimoine
Grande chambre des Pauvres : détail, blochets saillants figurés (6e travée, côté droit).
21, Beaune Hôtel-Dieu
N° de l’illustration : 20042100815XA
Date : 2004
Auteur : Michel Rosso
Reproduction soumise à autorisation du titulaire des droits d'exploitation
- © Région Bourgogne-Franche-Comté, Inventaire du patrimoine
Grande chambre des Pauvres : détail, blochets saillants figurés (6e travée, côté gauche).
21, Beaune Hôtel-Dieu
N° de l’illustration : 20042100803XA
Date : 2004
Auteur : Michel Rosso
Reproduction soumise à autorisation du titulaire des droits d'exploitation
- © Région Bourgogne-Franche-Comté, Inventaire du patrimoine
Grande chambre des Pauvres : détail, blochets saillants figurés (7e travée, côté gauche).
21, Beaune Hôtel-Dieu
N° de l’illustration : 20042100804XA
Date : 2004
Auteur : Michel Rosso
Reproduction soumise à autorisation du titulaire des droits d'exploitation
- © Région Bourgogne-Franche-Comté, Inventaire du patrimoine
Grande chambre des Pauvres : détail, blochets saillants figurés (7e travée, côté droit).
21, Beaune Hôtel-Dieu
N° de l’illustration : 20042100816XA
Date : 2004
Auteur : Michel Rosso
Reproduction soumise à autorisation du titulaire des droits d'exploitation
- © Région Bourgogne-Franche-Comté, Inventaire du patrimoine
Grande chambre des Pauvres : détail, blochets saillants figurés (8e travée, côté gauche).
21, Beaune Hôtel-Dieu
N° de l’illustration : 20042100805XA
Date : 2004
Auteur : Michel Rosso
Reproduction soumise à autorisation du titulaire des droits d'exploitation
- © Région Bourgogne-Franche-Comté, Inventaire du patrimoine
Grande chambre des Pauvres : détail, blochets saillants figurés (8e travée, côté droit).
21, Beaune Hôtel-Dieu
N° de l’illustration : 20042100817XA
Date : 2004
Auteur : Michel Rosso
Reproduction soumise à autorisation du titulaire des droits d'exploitation
- © Région Bourgogne-Franche-Comté, Inventaire du patrimoine
Grande chambre des Pauvres : détail, blochets saillants figurés (9e travée, côté gauche).
21, Beaune Hôtel-Dieu
N° de l’illustration : 20042100806XA
Date : 2004
Auteur : Michel Rosso
Reproduction soumise à autorisation du titulaire des droits d'exploitation
- © Région Bourgogne-Franche-Comté, Inventaire du patrimoine
Grande chambre des Pauvres : détail, blochets saillants figurés (9e travée, côté droit).
21, Beaune Hôtel-Dieu
N° de l’illustration : 20042100818XA
Date : 2004
Auteur : Michel Rosso
Reproduction soumise à autorisation du titulaire des droits d'exploitation
- © Région Bourgogne-Franche-Comté, Inventaire du patrimoine
Grande chambre des Pauvres : détail, blochets saillants figurés (10e travée, côté gauche).
21, Beaune Hôtel-Dieu
N° de l’illustration : 20042100807XA
Date : 2004
Auteur : Michel Rosso
Reproduction soumise à autorisation du titulaire des droits d'exploitation
- © Région Bourgogne-Franche-Comté, Inventaire du patrimoine
Grande chambre des Pauvres : détail, blochets saillants figurés (10e travée, côté droit).
21, Beaune Hôtel-Dieu
N° de l’illustration : 20042100819XA
Date : 2004
Auteur : Michel Rosso
Reproduction soumise à autorisation du titulaire des droits d'exploitation
- © Région Bourgogne-Franche-Comté, Inventaire du patrimoine
Grande chambre des Pauvres : détail, blochets saillants figurés (11e travée, côté gauche).
21, Beaune Hôtel-Dieu
N° de l’illustration : 20042100808XA
Date : 2004
Auteur : Michel Rosso
Reproduction soumise à autorisation du titulaire des droits d'exploitation
- © Région Bourgogne-Franche-Comté, Inventaire du patrimoine
Grande chambre des Pauvres : détail, blochets saillants figurés (11e travée, côté droit).
21, Beaune Hôtel-Dieu
N° de l’illustration : 20042100820XA
Date : 2004
Auteur : Michel Rosso
Reproduction soumise à autorisation du titulaire des droits d'exploitation
- © Région Bourgogne-Franche-Comté, Inventaire du patrimoine
Grande chambre des Pauvres : détail, blochets saillants figurés (12e travée, côté gauche).
21, Beaune Hôtel-Dieu
N° de l’illustration : 20042100809XA
Date : 2004
Auteur : Michel Rosso
Reproduction soumise à autorisation du titulaire des droits d'exploitation
- © Région Bourgogne-Franche-Comté, Inventaire du patrimoine
Grand corps de bâtiment : réfectoire des soeurs.
21, Beaune Hôtel-Dieu
N° de l’illustration : 20042100974XA
Date : 2004
Auteur : Michel Rosso
Reproduction soumise à autorisation du titulaire des droits d'exploitation
- © Région Bourgogne-Franche-Comté, Inventaire du patrimoine
Réfectoire des soeurs.
21, Beaune Hôtel-Dieu
N° de l’illustration : 20042100864XA
Date : 2004
Auteur : Michel Rosso
Reproduction soumise à autorisation du titulaire des droits d'exploitation
- © Région Bourgogne-Franche-Comté, Inventaire du patrimoine
Réfectoire des soeurs.
21, Beaune Hôtel-Dieu
N° de l’illustration : 20042100866XA
Date : 2004
Auteur : Michel Rosso
Reproduction soumise à autorisation du titulaire des droits d'exploitation
- © Région Bourgogne-Franche-Comté, Inventaire du patrimoine
Réfectoire des soeurs.
21, Beaune Hôtel-Dieu
N° de l’illustration : 20042100863XA
Date : 2004
Auteur : Michel Rosso
Reproduction soumise à autorisation du titulaire des droits d'exploitation
- © Région Bourgogne-Franche-Comté, Inventaire du patrimoine
Grand corps de bâtiment : réfectoire des soeurs.
21, Beaune Hôtel-Dieu
N° de l’illustration : 20042100867XA
Date : 2004
Auteur : Michel Rosso
Reproduction soumise à autorisation du titulaire des droits d'exploitation
- © Région Bourgogne-Franche-Comté, Inventaire du patrimoine
Grand corps de bâtiment : réfectoire des soeurs.
21, Beaune Hôtel-Dieu
N° de l’illustration : 20042100869XA
Date : 2004
Auteur : Michel Rosso
Reproduction soumise à autorisation du titulaire des droits d'exploitation
- © Région Bourgogne-Franche-Comté, Inventaire du patrimoine
Réfectoire des soeurs.
21, Beaune Hôtel-Dieu
N° de l’illustration : 20042100865XA
Date : 2004
Auteur : Michel Rosso
Reproduction soumise à autorisation du titulaire des droits d'exploitation
- © Région Bourgogne-Franche-Comté, Inventaire du patrimoine
Réfectoire des soeurs : détail, fontaine.
21, Beaune Hôtel-Dieu
N° de l’illustration : 20042100868XA
Date : 2004
Auteur : Jean-Luc Duthu
Reproduction soumise à autorisation du titulaire des droits d'exploitation
- © Région Bourgogne-Franche-Comté, Inventaire du patrimoine
Grand corps de bâtiment : chambre de la maîtresse des soeurs.
21, Beaune Hôtel-Dieu
N° de l’illustration : 20042100870XA
Date : 2004
Auteur : Michel Rosso
Reproduction soumise à autorisation du titulaire des droits d'exploitation
- © Région Bourgogne-Franche-Comté, Inventaire du patrimoine
Grand corps de bâtiment : chambre de la maîtresse des soeurs.
21, Beaune Hôtel-Dieu
N° de l’illustration : 20042100871XA
Date : 2004
Auteur : Jean-Luc Duthu
Reproduction soumise à autorisation du titulaire des droits d'exploitation
- © Région Bourgogne-Franche-Comté, Inventaire du patrimoine
Grand corps de bâtiment : cellier dit cave du réfectoire (actuellement billetterie), vue d'ensemble depuis le vestibule d'entrée.
21, Beaune Hôtel-Dieu
N° de l’illustration : 20042100862XA
Date : 2004
Auteur : Jean-Luc Duthu
Reproduction soumise à autorisation du titulaire des droits d'exploitation
- © Région Bourgogne-Franche-Comté, Inventaire du patrimoine
Cellier dit cave du réfectoire : fenêtre.
21, Beaune Hôtel-Dieu
N° de l’illustration : 20042100861XA
Date : 2004
Auteur : Jean-Luc Duthu
Reproduction soumise à autorisation du titulaire des droits d'exploitation
- © Région Bourgogne-Franche-Comté, Inventaire du patrimoine
Grand corps de bâtiment : dortoir des soeurs, essai de reconstitution d'une alcôve.
21, Beaune Hôtel-Dieu
N° de l’illustration : 20042100852XA
Date : 2004
Auteur : Jean-Luc Duthu
Reproduction soumise à autorisation du titulaire des droits d'exploitation
- © Région Bourgogne-Franche-Comté, Inventaire du patrimoine
Dortoir des soeurs : oratoire aménagé au XIXe siècle dans la tourelle d'angle qui surplombe la grande chambre des Pauvres et servait de poste de surveillance.
21, Beaune Hôtel-Dieu
N° de l’illustration : 20042100854XA
Date : 2004
Auteur : Jean-Luc Duthu
Reproduction soumise à autorisation du titulaire des droits d'exploitation
- © Région Bourgogne-Franche-Comté, Inventaire du patrimoine
Grand corps de bâtiment : comble (au-dessus du dortoir des soeurs).
21, Beaune Hôtel-Dieu
N° de l’illustration : 20042100970XA
Date : 2004
Auteur : Jean-Luc Duthu
Reproduction soumise à autorisation du titulaire des droits d'exploitation
- © Région Bourgogne-Franche-Comté, Inventaire du patrimoine
Grand corps de bâtiment : charpente du comble (au-dessus du dortoir des soeurs).
21, Beaune Hôtel-Dieu
N° de l’illustration : 20042100969XA
Date : 2004
Auteur : Michel Rosso
Reproduction soumise à autorisation du titulaire des droits d'exploitation
- © Région Bourgogne-Franche-Comté, Inventaire du patrimoine
Grand corps de bâtiment : charpente et comble (au dessus du dortoir des soeurs).
21, Beaune Hôtel-Dieu
N° de l’illustration : 20042100967XA
Date : 2004
Auteur : Jean-Luc Duthu
Reproduction soumise à autorisation du titulaire des droits d'exploitation
- © Région Bourgogne-Franche-Comté, Inventaire du patrimoine
Grand corps de bâtiment : charpente du comble (au-dessus du dortoir des soeurs).
21, Beaune Hôtel-Dieu
N° de l’illustration : 20042100968XA
Date : 2004
Auteur : Michel Rosso
Reproduction soumise à autorisation du titulaire des droits d'exploitation
- © Région Bourgogne-Franche-Comté, Inventaire du patrimoine
Ancienne "chambrette" de desserte de la "grande chambre basse dessus la rivière", devenue laboratoire de l'apothicairerie : vue d'ensemble depuis la porte de la pharmacie.
21, Beaune Hôtel-Dieu
N° de l’illustration : 19892100940VA
Date : 1989
Auteur : Michel Rosso
Reproduction soumise à autorisation du titulaire des droits d'exploitation
- © Région Bourgogne-Franche-Comté, Inventaire du patrimoine
Ancienne "chambrette" de desserte de la "grande chambre basse dessus la rivière", devenue laboratoire de l'apothicairerie : vue d'ensemble (porte vitrée donnant accès à la pharmacie, et porte de l'ancienne apothicairerie).
21, Beaune Hôtel-Dieu
N° de l’illustration : 19892100936V
Date : 1989
Auteur : Michel Rosso
Reproduction soumise à autorisation du titulaire des droits d'exploitation
- © Région Bourgogne-Franche-Comté, Inventaire du patrimoine
Ancienne "chambrette" de desserte de la "grande chambre basse dessus la rivière", devenue laboratoire de l'apothicairerie : vue d'ensemble (fenêtre sur le jardin et porte du second laboratoire).
21, Beaune Hôtel-Dieu
N° de l’illustration : 19892100935V
Date : 1989
Auteur : Michel Rosso
Reproduction soumise à autorisation du titulaire des droits d'exploitation
- © Région Bourgogne-Franche-Comté, Inventaire du patrimoine
Ancienne "chambrette" de desserte de la "grande chambre basse dessus la rivière", devenue laboratoire de l'apothicairerie : voûtes d'ogives.
21, Beaune Hôtel-Dieu
N° de l’illustration : 19892100937V
Date : 1989
Auteur : Michel Rosso
Reproduction soumise à autorisation du titulaire des droits d'exploitation
- © Région Bourgogne-Franche-Comté, Inventaire du patrimoine
Extension du laboratoire (1820) : vue d'ensemble.
21, Beaune Hôtel-Dieu
N° de l’illustration : 19892100933V
Date : 1989
Auteur : Michel Rosso
Reproduction soumise à autorisation du titulaire des droits d'exploitation
- © Région Bourgogne-Franche-Comté, Inventaire du patrimoine
Extension du laboratoire (1820) : vue d'ensemble.
21, Beaune Hôtel-Dieu
N° de l’illustration : 19892100932V
Date : 1989
Auteur : Michel Rosso
Reproduction soumise à autorisation du titulaire des droits d'exploitation
- © Région Bourgogne-Franche-Comté, Inventaire du patrimoine
Extension du laboratoire (1820) : vue d'ensemble.
21, Beaune Hôtel-Dieu
N° de l’illustration : 19892100930VA
Date : 1989
Auteur : Michel Rosso
Reproduction soumise à autorisation du titulaire des droits d'exploitation
- © Région Bourgogne-Franche-Comté, Inventaire du patrimoine
Extension du laboratoire (1820) : détail, cheminée.
21, Beaune Hôtel-Dieu
N° de l’illustration : 19892100902ZA
Date : 1989
Auteur : Michel Rosso
Reproduction soumise à autorisation du titulaire des droits d'exploitation
- © Région Bourgogne-Franche-Comté, Inventaire du patrimoine
Pharmacie : vue d'ensemble.
21, Beaune Hôtel-Dieu
N° de l’illustration : 19892100296V
Date : 1989
Auteur : Michel Thierry
Reproduction soumise à autorisation du titulaire des droits d'exploitation
- © Région Bourgogne-Franche-Comté, Inventaire du patrimoine
Pharmacie : vue d'ensemble.
21, Beaune Hôtel-Dieu
N° de l’illustration : 19892100294V
Date : 1989
Auteur : Michel Rosso
Reproduction soumise à autorisation du titulaire des droits d'exploitation
- © Région Bourgogne-Franche-Comté, Inventaire du patrimoine
Pharmacie : vue d'ensemble.
21, Beaune Hôtel-Dieu
N° de l’illustration : 19892100292V
Date : 1989
Auteur : Michel Rosso
Reproduction soumise à autorisation du titulaire des droits d'exploitation
- © Région Bourgogne-Franche-Comté, Inventaire du patrimoine
Pharmacie : vue d'ensemble.
21, Beaune Hôtel-Dieu
N° de l’illustration : 19892100290VA
Date : 1989
Auteur : Michel Rosso
Reproduction soumise à autorisation du titulaire des droits d'exploitation
- © Région Bourgogne-Franche-Comté, Inventaire du patrimoine
Pharmacie, vue d'ensemble.
21, Beaune Hôtel-Dieu
N° de l’illustration : 20042100890XA
Date : 2004
Auteur : Jean-Luc Duthu
Reproduction soumise à autorisation du titulaire des droits d'exploitation
- © Région Bourgogne-Franche-Comté, Inventaire du patrimoine
Pharmacie : vue d'ensemble.
21, Beaune Hôtel-Dieu
N° de l’illustration : 19892100291ZA
Date : 1989
Auteur : Michel Rosso
Reproduction soumise à autorisation du titulaire des droits d'exploitation
- © Région Bourgogne-Franche-Comté, Inventaire du patrimoine
Pharmacie, vue partielle.
21, Beaune Hôtel-Dieu
N° de l’illustration : 20042100891XA
Date : 2004
Auteur : Jean-Luc Duthu
Reproduction soumise à autorisation du titulaire des droits d'exploitation
- © Région Bourgogne-Franche-Comté, Inventaire du patrimoine
Pharmacie, vue partielle.
21, Beaune Hôtel-Dieu
N° de l’illustration : 20042100892XA
Date : 2004
Auteur : Michel Rosso
Reproduction soumise à autorisation du titulaire des droits d'exploitation
- © Région Bourgogne-Franche-Comté, Inventaire du patrimoine
Pharmacie : fontaine.
21, Beaune Hôtel-Dieu
N° de l’illustration : 20042100893XA
Date : 2004
Auteur : Jean-Luc Duthu
Reproduction soumise à autorisation du titulaire des droits d'exploitation
- © Région Bourgogne-Franche-Comté, Inventaire du patrimoine
Pharmacie : détail, fontaine et boiserie entre les fenêtres.
21, Beaune Hôtel-Dieu
N° de l’illustration : 19892100305X
Date : 1989
Auteur : Jean-Luc Duthu
Reproduction soumise à autorisation du titulaire des droits d'exploitation
- © Région Bourgogne-Franche-Comté, Inventaire du patrimoine
Pharmacie : détail, boiserie (corniche et pilastre cannelé).
21, Beaune Hôtel-Dieu
N° de l’illustration : 19892100307X
Date : 1989
Auteur : Jean-Luc Duthu
Reproduction soumise à autorisation du titulaire des droits d'exploitation
- © Région Bourgogne-Franche-Comté, Inventaire du patrimoine
Pharmacie : détail, boiserie (corniche et pilastre cannelé).
21, Beaune Hôtel-Dieu
N° de l’illustration : 19892100306X
Date : 1989
Auteur : Jean-Luc Duthu
Reproduction soumise à autorisation du titulaire des droits d'exploitation
- © Région Bourgogne-Franche-Comté, Inventaire du patrimoine
Pharmacie, annexe : chambre de la soeur pharmacienne (vue d'ensemble depuis la porte de la pharmacie).
21, Beaune Hôtel-Dieu
N° de l’illustration : 19892100531VA
Date : 1989
Auteur : Michel Rosso
Reproduction soumise à autorisation du titulaire des droits d'exploitation
- © Région Bourgogne-Franche-Comté, Inventaire du patrimoine
Pharmacie, annexe : chambre de la soeur pharmacienne (vue d'ensemble depuis la cheminée).
21, Beaune Hôtel-Dieu
N° de l’illustration : 19892100532V
Date : 1989
Auteur : Michel Rosso
Reproduction soumise à autorisation du titulaire des droits d'exploitation
- © Région Bourgogne-Franche-Comté, Inventaire du patrimoine
Pharmacie, annexe : chambre de la soeur pharmacienne (vue d'ensemble depuis les fenêtres).
21, Beaune Hôtel-Dieu
N° de l’illustration : 19892100948ZA
Date : 1989
Auteur : Michel Rosso
Reproduction soumise à autorisation du titulaire des droits d'exploitation
- © Région Bourgogne-Franche-Comté, Inventaire du patrimoine
Pharmacie, annexe : chambre de la soeur pharmacienne (vue d'ensemble depuis les fenêtres).
21, Beaune Hôtel-Dieu
N° de l’illustration : 19892100533V
Date : 1989
Auteur : Michel Rosso
Reproduction soumise à autorisation du titulaire des droits d'exploitation
- © Région Bourgogne-Franche-Comté, Inventaire du patrimoine
Pharmacie, annexe : chambre de la soeur pharmacienne, cheminée.
21, Beaune Hôtel-Dieu
N° de l’illustration : 19892100535ZA
Date : 1989
Auteur : Michel Rosso
Reproduction soumise à autorisation du titulaire des droits d'exploitation
- © Région Bourgogne-Franche-Comté, Inventaire du patrimoine
Salle de réunion du conseil d'administration.
21, Beaune Hôtel-Dieu
N° de l’illustration : 20042100851VA
Date : 2004
Auteur : Michel Rosso
Reproduction soumise à autorisation du titulaire des droits d'exploitation
- © Région Bourgogne-Franche-Comté, Inventaire du patrimoine
Salle de réunion du conseil d'administration : vue d'ensemble.
21, Beaune Hôtel-Dieu
N° de l’illustration : 20042100850VA
Date : 2004
Auteur : Michel Rosso
Reproduction soumise à autorisation du titulaire des droits d'exploitation
- © Région Bourgogne-Franche-Comté, Inventaire du patrimoine
Salle de réunion du conseil d'administration : détail, cheminée.
21, Beaune Hôtel-Dieu
N° de l’illustration : 19902101387X
Date : 1990
Auteur : Michel Rosso
Reproduction soumise à autorisation du titulaire des droits d'exploitation
- © Région Bourgogne-Franche-Comté, Inventaire du patrimoine
Cuisine : vue d'ensemble.
21, Beaune Hôtel-Dieu
N° de l’illustration : 19892100004ZA
Date : 1989
Auteur : Jean-Luc Duthu
Reproduction soumise à autorisation du titulaire des droits d'exploitation
- © Région Bourgogne-Franche-Comté, Inventaire du patrimoine
Cuisine : vue d'ensemble depuis l'évier.
21, Beaune Hôtel-Dieu
N° de l’illustration : 19892100011VA
Date : 1989
Auteur : Jean-Luc Duthu
Reproduction soumise à autorisation du titulaire des droits d'exploitation
- © Région Bourgogne-Franche-Comté, Inventaire du patrimoine
Cuisine : vue d'ensemble.
21, Beaune Hôtel-Dieu
N° de l’illustration : 19892100003VA
Date : 1989
Auteur : Jean-Luc Duthu
Reproduction soumise à autorisation du titulaire des droits d'exploitation
- © Région Bourgogne-Franche-Comté, Inventaire du patrimoine
Cuisine.
21, Beaune Hôtel-Dieu
N° de l’illustration : 20102100979NUC4A
Date : 2010
Auteur : Thierry Kuntz
Reproduction soumise à autorisation du titulaire des droits d'exploitation
- © Région Bourgogne-Franche-Comté, Inventaire du patrimoine
Cuisine : vue d'ensemble.
21, Beaune Hôtel-Dieu
N° de l’illustration : 20042100855XA
Date : 2004
Auteur : Michel Rosso
Reproduction soumise à autorisation du titulaire des droits d'exploitation
- © Région Bourgogne-Franche-Comté, Inventaire du patrimoine
Cuisine : vue d'ensemble depuis la porte d'entrée principale.
21, Beaune Hôtel-Dieu
N° de l’illustration : 19892100008V
Date : 1989
Auteur : Jean-Luc Duthu
Reproduction soumise à autorisation du titulaire des droits d'exploitation
- © Région Bourgogne-Franche-Comté, Inventaire du patrimoine
Cuisine : vue d'ensemble (fenêtres et porte d'accès à la galerie basse).
21, Beaune Hôtel-Dieu
N° de l’illustration : 19892100092V
Date : 1989
Auteur : Jean-Luc Duthu
Reproduction soumise à autorisation du titulaire des droits d'exploitation
- © Région Bourgogne-Franche-Comté, Inventaire du patrimoine
Cuisine : vue d'ensemble (cheminée et porte d'accès à la salle Saint-Nicolas).
21, Beaune Hôtel-Dieu
N° de l’illustration : 19892100006V
Date : 1989
Auteur : Jean-Luc Duthu
Reproduction soumise à autorisation du titulaire des droits d'exploitation
- © Région Bourgogne-Franche-Comté, Inventaire du patrimoine
Cuisine : vue partielle.
21, Beaune Hôtel-Dieu
N° de l’illustration : 20042100857XA
Date : 2004
Auteur : Michel Rosso
Reproduction soumise à autorisation du titulaire des droits d'exploitation
- © Région Bourgogne-Franche-Comté, Inventaire du patrimoine
Cuisine : vue partielle
21, Beaune Hôtel-Dieu
N° de l’illustration : 19892100068V
Date : 1989
Auteur : Jean-Luc Duthu
Reproduction soumise à autorisation du titulaire des droits d'exploitation
- © Région Bourgogne-Franche-Comté, Inventaire du patrimoine
Cuisine : évier (reconstitution).
21, Beaune Hôtel-Dieu
N° de l’illustration : 20042100858XA
Date : 2004
Auteur : Michel Rosso
Reproduction soumise à autorisation du titulaire des droits d'exploitation
- © Région Bourgogne-Franche-Comté, Inventaire du patrimoine
Cuisine : détail, cheminée.
21, Beaune Hôtel-Dieu
N° de l’illustration : 19892100007V
Date : 1989
Auteur : Jean-Luc Duthu
Reproduction soumise à autorisation du titulaire des droits d'exploitation
- © Région Bourgogne-Franche-Comté, Inventaire du patrimoine
Cuisine : détail, cheminée et tourne-broche.
21, Beaune Hôtel-Dieu
N° de l’illustration : 19892100065VA
Date : 1989
Auteur : Jean-Luc Duthu
Reproduction soumise à autorisation du titulaire des droits d'exploitation
- © Région Bourgogne-Franche-Comté, Inventaire du patrimoine
Cuisine : vue partielle (évier : reconstitution récente).
21, Beaune Hôtel-Dieu
N° de l’illustration : 19892100037V
Date : 1989
Auteur : Jean-Luc Duthu
Reproduction soumise à autorisation du titulaire des droits d'exploitation
- © Région Bourgogne-Franche-Comté, Inventaire du patrimoine
Cuisine : détail, angle de la cheminée.
21, Beaune Hôtel-Dieu
N° de l’illustration : 19892100067X
Date : 1989
Auteur : Michel Rosso
Reproduction soumise à autorisation du titulaire des droits d'exploitation
- © Région Bourgogne-Franche-Comté, Inventaire du patrimoine
Cuisine : détail, base de la colonne proche de la cheminée.
21, Beaune Hôtel-Dieu
N° de l’illustration : 19892100071X
Date : 1989
Auteur : Michel Rosso
Reproduction soumise à autorisation du titulaire des droits d'exploitation
- © Région Bourgogne-Franche-Comté, Inventaire du patrimoine
Cuisine : détail, base de la colonne située entre les deux tourelles.
21, Beaune Hôtel-Dieu
N° de l’illustration : 19892100070X
Date : 1989
Auteur : Michel Rosso
Reproduction soumise à autorisation du titulaire des droits d'exploitation
- © Région Bourgogne-Franche-Comté, Inventaire du patrimoine
Cuisine : détail, chapiteau de la colonne située entre les deux tourelles.
21, Beaune Hôtel-Dieu
N° de l’illustration : 19892100069X
Date : 1989
Auteur : Michel Rosso
Reproduction soumise à autorisation du titulaire des droits d'exploitation
- © Région Bourgogne-Franche-Comté, Inventaire du patrimoine
Cuisine : plafond à solives apparentes.
21, Beaune Hôtel-Dieu
N° de l’illustration : 19892100072V
Date : 1989
Auteur : Jean-Luc Duthu
Reproduction soumise à autorisation du titulaire des droits d'exploitation
- © Région Bourgogne-Franche-Comté, Inventaire du patrimoine
Cabinets de desserte de la cuisine.
21, Beaune Hôtel-Dieu
N° de l’illustration : 19892100090V
Date : 1989
Auteur : Jean-Luc Duthu
Reproduction soumise à autorisation du titulaire des droits d'exploitation
- © Région Bourgogne-Franche-Comté, Inventaire du patrimoine
Cabinets de desserte de la cuisine.
21, Beaune Hôtel-Dieu
N° de l’illustration : 19892100091V
Date : 1989
Auteur : Jean-Luc Duthu
Reproduction soumise à autorisation du titulaire des droits d'exploitation
- © Région Bourgogne-Franche-Comté, Inventaire du patrimoine
Ancienne porte de l'escalier de l'infirmerie des soeurs (à droite de la porte de cuisine, sous la galerie) : signe lapidaire.
21, Beaune Hôtel-Dieu
N° de l’illustration : 19902100991X
Date : 1990
Auteur : Michel Rosso
Reproduction soumise à autorisation du titulaire des droits d'exploitation
- © Région Bourgogne-Franche-Comté, Inventaire du patrimoine
Salle Saint-Nicolas, vue d'ensemble.
21, Beaune Hôtel-Dieu
N° de l’illustration : 19932103189X
Date : 1993
Auteur : Michel Rosso
Reproduction soumise à autorisation du titulaire des droits d'exploitation
- © Région Bourgogne-Franche-Comté, Inventaire du patrimoine
Salle Saint-Nicolas : "cabinet en trompe" servant de poste de surveillance, en surplomb au dessus de l'infirmerie des femmes.
21, Beaune Hôtel-Dieu
N° de l’illustration : 20042100841VA
Date : 2004
Auteur : Michel Rosso
Reproduction soumise à autorisation du titulaire des droits d'exploitation
- © Région Bourgogne-Franche-Comté, Inventaire du patrimoine
Salle Saint-Nicolas : vue partielle avec ouvertures sur la cour.
21, Beaune Hôtel-Dieu
N° de l’illustration : 19932103190X
Date : 1993
Auteur : Michel Rosso
Reproduction soumise à autorisation du titulaire des droits d'exploitation
- © Région Bourgogne-Franche-Comté, Inventaire du patrimoine
Salle Saint-Nicolas : tambour de l'ancienne infirmerie des femmes.
21, Beaune Hôtel-Dieu
N° de l’illustration : 20042100840VA
Date : 2004
Auteur : Michel Rosso
Reproduction soumise à autorisation du titulaire des droits d'exploitation
- © Région Bourgogne-Franche-Comté, Inventaire du patrimoine
Salle Saint-Hugues : vue d'ensemble (autel et fenêtres sur le couvent des cordeliers).
21, Beaune Hôtel-Dieu
N° de l’illustration : 20042100835VA
Date : 2004
Auteur : Michel Rosso
Reproduction soumise à autorisation du titulaire des droits d'exploitation
- © Région Bourgogne-Franche-Comté, Inventaire du patrimoine
Salle Saint-Hugues : vue d'ensemble (cheminée et fenêtres sur le couvent des cordeliers).
21, Beaune Hôtel-Dieu
N° de l’illustration : 20042100838VA
Date : 2004
Auteur : Michel Rosso
Reproduction soumise à autorisation du titulaire des droits d'exploitation
- © Région Bourgogne-Franche-Comté, Inventaire du patrimoine
Salle Saint-Hugues : vue d'ensemble (fenêtres sur le couvent des cordeliers).
21, Beaune Hôtel-Dieu
N° de l’illustration : 20042100836VA
Date : 2004
Auteur : Michel Rosso
Reproduction soumise à autorisation du titulaire des droits d'exploitation
- © Région Bourgogne-Franche-Comté, Inventaire du patrimoine
Salle Saint-Hugues : vue d'ensemble (autel et fenêtres sur la galerie haute).
21, Beaune Hôtel-Dieu
N° de l’illustration : 20042100837VA
Date : 2004
Auteur : Michel Rosso
Reproduction soumise à autorisation du titulaire des droits d'exploitation
- © Région Bourgogne-Franche-Comté, Inventaire du patrimoine
Ancienne chambre Sainte-Anne : vue d'ensemble.
21, Beaune Hôtel-Dieu
N° de l’illustration : 19892100213VA
Date : 1989
Auteur : Jean-Luc Duthu
Reproduction soumise à autorisation du titulaire des droits d'exploitation
- © Région Bourgogne-Franche-Comté, Inventaire du patrimoine
Ancienne chambre Sainte-Anne : vue d'ensemble (fenêtres et porte d'entrée).
21, Beaune Hôtel-Dieu
N° de l’illustration : 19892100214V
Date : 1989
Auteur : Jean-Luc Duthu
Reproduction soumise à autorisation du titulaire des droits d'exploitation
- © Région Bourgogne-Franche-Comté, Inventaire du patrimoine
Ancienne chambre Sainte-Anne : vue d'ensemble.
21, Beaune Hôtel-Dieu
N° de l’illustration : 19892100210V
Date : 1989
Auteur : Jean-Luc Duthu
Reproduction soumise à autorisation du titulaire des droits d'exploitation
- © Région Bourgogne-Franche-Comté, Inventaire du patrimoine
Ancienne chambre Sainte-Anne : détail, cheminée.
21, Beaune Hôtel-Dieu
N° de l’illustration : 19892100216V
Date : 1989
Auteur : Jean-Luc Duthu
Reproduction soumise à autorisation du titulaire des droits d'exploitation
- © Région Bourgogne-Franche-Comté, Inventaire du patrimoine
Ancienne chambre Sainte-Anne : plafond à solives apparentes.
21, Beaune Hôtel-Dieu
N° de l’illustration : 19892100215V
Date : 1989
Auteur : Jean-Luc Duthu
Reproduction soumise à autorisation du titulaire des droits d'exploitation
- © Région Bourgogne-Franche-Comté, Inventaire du patrimoine
Ancienne chambre Sainte-Anne : couloir aménagé entre la cour de l'hôtel-Dieu et celle de l'ancien couvent des cordeliers (vu depuis la cour de l'ancien couvent).
21, Beaune Hôtel-Dieu
N° de l’illustration : 19892100287V
Date : 1989
Auteur : Jean-Luc Duthu
Reproduction soumise à autorisation du titulaire des droits d'exploitation
- © Région Bourgogne-Franche-Comté, Inventaire du patrimoine
Ancienne chambre Sainte-Anne : couloir aménagé entre la cour de l'hôtel-Dieu et celle de l'ancien couvent des cordeliers (vu depuis la galerie basse).
21, Beaune Hôtel-Dieu
N° de l’illustration : 19892100286V
Date : 1989
Auteur : Jean-Luc Duthu
Reproduction soumise à autorisation du titulaire des droits d'exploitation
- © Région Bourgogne-Franche-Comté, Inventaire du patrimoine
Tourelle d'escalier carrée : détail, porte côté cour.
21, Beaune Hôtel-Dieu
N° de l’illustration : 20042100921XA
Date : 2004
Auteur : Jean-Luc Duthu
Reproduction soumise à autorisation du titulaire des droits d'exploitation
- © Région Bourgogne-Franche-Comté, Inventaire du patrimoine
Tourelle d'escalier carrée : porte ouvrant sur la cour.
21, Beaune Hôtel-Dieu
N° de l’illustration : 19932103184X
Date : 1993
Auteur : Michel Rosso
Reproduction soumise à autorisation du titulaire des droits d'exploitation
- © Région Bourgogne-Franche-Comté, Inventaire du patrimoine
Escalier de la tourelle carrée, partie supérieure.
21, Beaune Hôtel-Dieu
N° de l’illustration : 19932103176X
Date : 1993
Auteur : Michel Rosso
Reproduction soumise à autorisation du titulaire des droits d'exploitation
- © Région Bourgogne-Franche-Comté, Inventaire du patrimoine
Tourelle d'escalier carrée : palier du premier étage (porte d'accès à la galerie haute et aux anciens "retraits" de la chambre du Roi).
21, Beaune Hôtel-Dieu
N° de l’illustration : 19932103183X
Date : 1993
Auteur : Michel Rosso
Reproduction soumise à autorisation du titulaire des droits d'exploitation
- © Région Bourgogne-Franche-Comté, Inventaire du patrimoine
Tourelle d'escalier carrée : voûte d'ogives.
21, Beaune Hôtel-Dieu
N° de l’illustration : 19932103182X
Date : 1993
Auteur : Michel Rosso
Reproduction soumise à autorisation du titulaire des droits d'exploitation
- © Région Bourgogne-Franche-Comté, Inventaire du patrimoine
Tourelle d'escalier carrée : détail d'un corbeau.
21, Beaune Hôtel-Dieu
N° de l’illustration : 20042100922XA
Date : 2004
Auteur : Michel Rosso
Reproduction soumise à autorisation du titulaire des droits d'exploitation
- © Région Bourgogne-Franche-Comté, Inventaire du patrimoine
Tourelle d'escalier octogonale : rez-de-chaussée (porte d'entrée de l'ancienne "enfermerie des griefs malades" et escalier en vis).
21, Beaune Hôtel-Dieu
N° de l’illustration : 19932103188X
Date : 1993
Auteur : Michel Rosso
Reproduction soumise à autorisation du titulaire des droits d'exploitation
- © Région Bourgogne-Franche-Comté, Inventaire du patrimoine
Tourelle d'escalier octogonale : détail, fenêtre sur la galerie haute.
21, Beaune Hôtel-Dieu
N° de l’illustration : 20042100936XA
Date : 2004
Auteur : Jean-Luc Duthu
Reproduction soumise à autorisation du titulaire des droits d'exploitation
- © Région Bourgogne-Franche-Comté, Inventaire du patrimoine
Salle des archives : détail, meuble.
21, Beaune Hôtel-Dieu
N° de l’illustration : 20042100953XA
Date : 2004
Auteur : Michel Rosso
Reproduction soumise à autorisation du titulaire des droits d'exploitation
- © Région Bourgogne-Franche-Comté, Inventaire du patrimoine
Chambre du Roi (travaux de 1995).
21, Beaune Hôtel-Dieu
N° de l’illustration : 19952100642X
Date : 1995
Auteur : Michel Rosso
Reproduction soumise à autorisation du titulaire des droits d'exploitation
- © Région Bourgogne-Franche-Comté, Inventaire du patrimoine
Chambre du Roi (travaux de 1995).
21, Beaune Hôtel-Dieu
N° de l’illustration : 19952100643X
Date : 1995
Auteur : Michel Rosso
Reproduction soumise à autorisation du titulaire des droits d'exploitation
- © Région Bourgogne-Franche-Comté, Inventaire du patrimoine
Chambre du Roi : embrasure de fenêtre (travaux de 1995).
21, Beaune Hôtel-Dieu
N° de l’illustration : 19952100651X
Date : 1995
Auteur : Michel Rosso
Reproduction soumise à autorisation du titulaire des droits d'exploitation
- © Région Bourgogne-Franche-Comté, Inventaire du patrimoine
Chambre du Roi : détail du plancher (travaux de 1995).
21, Beaune Hôtel-Dieu
N° de l’illustration : 19952100645X
Date : 1995
Auteur : Michel Rosso
Reproduction soumise à autorisation du titulaire des droits d'exploitation
- © Région Bourgogne-Franche-Comté, Inventaire du patrimoine
Chambre du Roi : plancher (travaux de 1995).
21, Beaune Hôtel-Dieu
N° de l’illustration : 19952100644X
Date : 1995
Auteur : Michel Rosso
Reproduction soumise à autorisation du titulaire des droits d'exploitation
- © Région Bourgogne-Franche-Comté, Inventaire du patrimoine
Chambre du Roi : détail du plancher (travaux de 1995).
21, Beaune Hôtel-Dieu
N° de l’illustration : 19952100646X
Date : 1995
Auteur : Michel Rosso
Reproduction soumise à autorisation du titulaire des droits d'exploitation
- © Région Bourgogne-Franche-Comté, Inventaire du patrimoine
Chambre du Roi : détail du plancher (travaux de 1995).
21, Beaune Hôtel-Dieu
N° de l’illustration : 19952100647X
Date : 1995
Auteur : Michel Rosso
Reproduction soumise à autorisation du titulaire des droits d'exploitation
- © Région Bourgogne-Franche-Comté, Inventaire du patrimoine
Chambre du Roi : plafond (travaux de 1995).
21, Beaune Hôtel-Dieu
N° de l’illustration : 19952100648X
Date : 1995
Auteur : Michel Rosso
Reproduction soumise à autorisation du titulaire des droits d'exploitation
- © Région Bourgogne-Franche-Comté, Inventaire du patrimoine
Chambre du Roi : détail du plafond (travaux de 1995).
21, Beaune Hôtel-Dieu
N° de l’illustration : 19952100650X
Date : 1995
Auteur : Michel Rosso
Reproduction soumise à autorisation du titulaire des droits d'exploitation
- © Région Bourgogne-Franche-Comté, Inventaire du patrimoine
Chambre du Roi : détail du plafond.
21, Beaune Hôtel-Dieu
N° de l’illustration : 19952100649X
Date : 1995
Auteur : Michel Rosso
Reproduction soumise à autorisation du titulaire des droits d'exploitation
- © Région Bourgogne-Franche-Comté, Inventaire du patrimoine
Chambre du Roi : vue d'ensemble (fenêtres ouvrant sur la galerie haute).
21, Beaune Hôtel-Dieu
N° de l’illustration : 20042100950XA
Date : 2004
Auteur : Michel Rosso
Reproduction soumise à autorisation du titulaire des droits d'exploitation
- © Région Bourgogne-Franche-Comté, Inventaire du patrimoine
Chambre du Roi : mur est (face à la cheminée).
21, Beaune Hôtel-Dieu
N° de l’illustration : 20042100948XA
Date : 2004
Auteur : Michel Rosso
Reproduction soumise à autorisation du titulaire des droits d'exploitation
- © Région Bourgogne-Franche-Comté, Inventaire du patrimoine
Chambre du Roi : vue d'ensemble (cheminée et porte de la salle des archives).
21, Beaune Hôtel-Dieu
N° de l’illustration : 20042100947XA
Date : 2004
Auteur : Michel Rosso
Reproduction soumise à autorisation du titulaire des droits d'exploitation
- © Région Bourgogne-Franche-Comté, Inventaire du patrimoine
Chambre du Roi : détail, cheminée.
21, Beaune Hôtel-Dieu
N° de l’illustration : 20042100949XA
Date : 2004
Auteur : Michel Rosso
Reproduction soumise à autorisation du titulaire des droits d'exploitation
- © Région Bourgogne-Franche-Comté, Inventaire du patrimoine
Chambre du Roi : détail, ancien papier peint.
21, Beaune Hôtel-Dieu
N° de l’illustration : 19992100326ZA
Date : 1999
Auteur : Michel Thierry
Reproduction soumise à autorisation du titulaire des droits d'exploitation
- © Région Bourgogne-Franche-Comté, Inventaire du patrimoine
Chambre du Roi : détail, ancien papier peint.
21, Beaune Hôtel-Dieu
N° de l’illustration : 19992100325X
Date : 1999
Auteur : Michel Thierry
Reproduction soumise à autorisation du titulaire des droits d'exploitation
- © Région Bourgogne-Franche-Comté, Inventaire du patrimoine
Plaque de cheminée de la chambre du roi
21, Beaune Hôtel-Dieu
N° de l’illustration : 19922103511X
Date : 1992
Auteur : Michel Rosso
Reproduction soumise à autorisation du titulaire des droits d'exploitation
- © Région Bourgogne-Franche-Comté, Inventaire du patrimoine
Grande aile sur cour, 1er étage : ancienne chambre du prédicateur.
21, Beaune Hôtel-Dieu
N° de l’illustration : 19952100017X
Date : 1995
Auteur : Michel Rosso
Reproduction soumise à autorisation du titulaire des droits d'exploitation
- © Région Bourgogne-Franche-Comté, Inventaire du patrimoine
Grande aile sur cour, 1er étage : anciennes salles Notre-Dame et Sainte-Catherine.
21, Beaune Hôtel-Dieu
N° de l’illustration : 19952100016X
Date : 1995
Auteur : Michel Rosso
Reproduction soumise à autorisation du titulaire des droits d'exploitation
- © Région Bourgogne-Franche-Comté, Inventaire du patrimoine
Grande aile sur cour, 1er étage : anciennes salles Notre-Dame et Sainte-Catherine.
21, Beaune Hôtel-Dieu
N° de l’illustration : 19952100015X
Date : 1995
Auteur : Michel Rosso
Reproduction soumise à autorisation du titulaire des droits d'exploitation
- © Région Bourgogne-Franche-Comté, Inventaire du patrimoine
Ancienne salle Notre-Dame : signe lapidaire.
21, Beaune Hôtel-Dieu
N° de l’illustration : 19902100879X
Date : 1990
Auteur : Michel Rosso
Reproduction soumise à autorisation du titulaire des droits d'exploitation
- © Région Bourgogne-Franche-Comté, Inventaire du patrimoine
Ancienne salle Notre-Dame : signe lapidaire.
21, Beaune Hôtel-Dieu
N° de l’illustration : 19902100882X
Date : 1990
Auteur : Michel Rosso
Reproduction soumise à autorisation du titulaire des droits d'exploitation
- © Région Bourgogne-Franche-Comté, Inventaire du patrimoine
Ancienne salle Notre-Dame : signe lapidaire.
21, Beaune Hôtel-Dieu
N° de l’illustration : 19902100885X
Date : 1990
Auteur : Michel Rosso
Reproduction soumise à autorisation du titulaire des droits d'exploitation
- © Région Bourgogne-Franche-Comté, Inventaire du patrimoine
Ancienne salle Notre-Dame : signe lapidaire (encadrement de fenêtre, extérieur, à droite sous la galerie).
21, Beaune Hôtel-Dieu
N° de l’illustration : 19902100990X
Date : 1990
Auteur : Michel Rosso
Reproduction soumise à autorisation du titulaire des droits d'exploitation
- © Région Bourgogne-Franche-Comté, Inventaire du patrimoine
Ancienne salle Notre-Dame : signe lapidaire (encadrement de fenêtre, intérieur).
21, Beaune Hôtel-Dieu
N° de l’illustration : 19902100989X
Date : 1990
Auteur : Michel Rosso
Reproduction soumise à autorisation du titulaire des droits d'exploitation
- © Région Bourgogne-Franche-Comté, Inventaire du patrimoine
Ancienne salle Notre-Dame : signe lapidaire (encadrement de fenêtre, intérieur).
21, Beaune Hôtel-Dieu
N° de l’illustration : 19902100988X
Date : 1990
Auteur : Michel Rosso
Reproduction soumise à autorisation du titulaire des droits d'exploitation
- © Région Bourgogne-Franche-Comté, Inventaire du patrimoine
Ancienne salle Notre-Dame : signe lapidaire.
21, Beaune Hôtel-Dieu
N° de l’illustration : 19902100884X
Date : 1990
Auteur : Michel Rosso
Reproduction soumise à autorisation du titulaire des droits d'exploitation
- © Région Bourgogne-Franche-Comté, Inventaire du patrimoine
Ancienne salle Notre-Dame : signe lapidaire.
21, Beaune Hôtel-Dieu
N° de l’illustration : 19902100881X
Date : 1990
Auteur : Michel Rosso
Reproduction soumise à autorisation du titulaire des droits d'exploitation
- © Région Bourgogne-Franche-Comté, Inventaire du patrimoine
Ancienne salle Notre-Dame : signe lapidaire.
21, Beaune Hôtel-Dieu
N° de l’illustration : 19902100883X
Date : 1990
Auteur : Michel Rosso
Reproduction soumise à autorisation du titulaire des droits d'exploitation
- © Région Bourgogne-Franche-Comté, Inventaire du patrimoine
Ancienne salle Notre-Dame : signe lapidaire (encadrement de fenêtre, intérieur).
21, Beaune Hôtel-Dieu
N° de l’illustration : 19902100987X
Date : 1990
Auteur : Michel Rosso
Reproduction soumise à autorisation du titulaire des droits d'exploitation
- © Région Bourgogne-Franche-Comté, Inventaire du patrimoine
Ancienne salle Notre-Dame : signe lapidaire.
21, Beaune Hôtel-Dieu
N° de l’illustration : 19902100880X
Date : 1990
Auteur : Michel Rosso
Reproduction soumise à autorisation du titulaire des droits d'exploitation
- © Région Bourgogne-Franche-Comté, Inventaire du patrimoine
Ancienne salle Notre-Dame : signe lapidaire (encadrement de fenêtre, intérieur).
21, Beaune Hôtel-Dieu
N° de l’illustration : 19902100986X
Date : 1990
Auteur : Michel Rosso
Reproduction soumise à autorisation du titulaire des droits d'exploitation
- © Région Bourgogne-Franche-Comté, Inventaire du patrimoine
Grande aile sur cour, 1er étage : salle au-dessus de la cuisine.
21, Beaune Hôtel-Dieu
N° de l’illustration : 19952100009X
Date : 1995
Auteur : Michel Rosso
Reproduction soumise à autorisation du titulaire des droits d'exploitation
- © Région Bourgogne-Franche-Comté, Inventaire du patrimoine
Grande aile sur cour, 1er étage : salle au-dessus de la cuisine.
21, Beaune Hôtel-Dieu
N° de l’illustration : 19952100011X
Date : 1995
Auteur : Michel Rosso
Reproduction soumise à autorisation du titulaire des droits d'exploitation
- © Région Bourgogne-Franche-Comté, Inventaire du patrimoine
Grande aile sur cour, 1er étage : salle au-dessus de la cuisine.
21, Beaune Hôtel-Dieu
N° de l’illustration : 19952100010X
Date : 1995
Auteur : Michel Rosso
Reproduction soumise à autorisation du titulaire des droits d'exploitation
- © Région Bourgogne-Franche-Comté, Inventaire du patrimoine
Grande aile sur cour, 1er étage : salle au-dessus de la cuisine, détail du plancher.
21, Beaune Hôtel-Dieu
N° de l’illustration : 19952100012X
Date : 1995
Auteur : Michel Rosso
Reproduction soumise à autorisation du titulaire des droits d'exploitation
- © Région Bourgogne-Franche-Comté, Inventaire du patrimoine
Grande aile sur cour, 1er étage : salle au-dessus de la cuisine, détail du plancher.
21, Beaune Hôtel-Dieu
N° de l’illustration : 19952100013X
Date : 1995
Auteur : Michel Rosso
Reproduction soumise à autorisation du titulaire des droits d'exploitation
- © Région Bourgogne-Franche-Comté, Inventaire du patrimoine
Grande aile sur cour, 1er étage : salle au-dessus de la cuisine, détail du plancher.
21, Beaune Hôtel-Dieu
N° de l’illustration : 19952100014X
Date : 1995
Auteur : Michel Rosso
Reproduction soumise à autorisation du titulaire des droits d'exploitation
- © Région Bourgogne-Franche-Comté, Inventaire du patrimoine
Grande aile sur cour : comble (partie droite).
21, Beaune Hôtel-Dieu
N° de l’illustration : 19892103823X
Date : 1989
Auteur : Michel Rosso
Reproduction soumise à autorisation du titulaire des droits d'exploitation
- © Région Bourgogne-Franche-Comté, Inventaire du patrimoine
Grande aile sur cour : vue d'ensemble du comble Saint-Nicolas.
21, Beaune Hôtel-Dieu
N° de l’illustration : 19932103179V
Date : 1993
Auteur : Michel Rosso
Reproduction soumise à autorisation du titulaire des droits d'exploitation
- © Région Bourgogne-Franche-Comté, Inventaire du patrimoine
Grande aile sur cour : porte de communication entre le comble Sainte-Catherine et celui de la chambre du Roi.
21, Beaune Hôtel-Dieu
N° de l’illustration : 19932103177X
Date : 1993
Auteur : Michel Rosso
Reproduction soumise à autorisation du titulaire des droits d'exploitation
- © Région Bourgogne-Franche-Comté, Inventaire du patrimoine
Grande aile sur cour : comble (au-dessus de la chambre du Roi).
21, Beaune Hôtel-Dieu
N° de l’illustration : 19932103174X
Date : 1993
Auteur : Michel Rosso
Reproduction soumise à autorisation du titulaire des droits d'exploitation
- © Région Bourgogne-Franche-Comté, Inventaire du patrimoine
Grande aile sur cour : comble (au dessus de la chambre du Roi).
21, Beaune Hôtel-Dieu
N° de l’illustration : 19932103175V
Date : 1993
Auteur : Michel Rosso
Reproduction soumise à autorisation du titulaire des droits d'exploitation
- © Région Bourgogne-Franche-Comté, Inventaire du patrimoine
Grande aile sur cour : charpente (comble au dessus de la chambre du Roi).
21, Beaune Hôtel-Dieu
N° de l’illustration : 20042100972XA
Date : 2004
Auteur : Michel Rosso
Reproduction soumise à autorisation du titulaire des droits d'exploitation
- © Région Bourgogne-Franche-Comté, Inventaire du patrimoine
Grande aile sur cour, 1er étage : détail, poutre au-dessus du mur de refend de l'ancienne chambre du prédicateur.
21, Beaune Hôtel-Dieu
N° de l’illustration : 19952100018X
Date : 1995
Auteur : Michel Rosso
Reproduction soumise à autorisation du titulaire des droits d'exploitation
- © Région Bourgogne-Franche-Comté, Inventaire du patrimoine
Petite aile sur cour : charpente (comble au dessus de la chambre-Dieu).
21, Beaune Hôtel-Dieu
N° de l’illustration : 19932103178X
Date : 1993
Auteur : Michel Rosso
Reproduction soumise à autorisation du titulaire des droits d'exploitation
- © Région Bourgogne-Franche-Comté, Inventaire du patrimoine
Salle Saint-Louis : vue d'ensemble.
21, Beaune Hôtel-Dieu
N° de l’illustration : 19902100405V
Date : 1990
Auteur : Michel Rosso
Reproduction soumise à autorisation du titulaire des droits d'exploitation
- © Région Bourgogne-Franche-Comté, Inventaire du patrimoine
Passage couvert donnant accès à la deuxième cour : porte à deux vantaux en fer forgé, côté 2e cour (date portée 1786).
21, Beaune Hôtel-Dieu
N° de l’illustration : 20042100843XA
Date : 2004
Auteur : Michel Rosso
Reproduction soumise à autorisation du titulaire des droits d'exploitation
- © Région Bourgogne-Franche-Comté, Inventaire du patrimoine
Loges des aliénés : vue partielle.
21, Beaune Hôtel-Dieu
N° de l’illustration : 20042100846XA
Date : 2004
Auteur : Michel Rosso
Reproduction soumise à autorisation du titulaire des droits d'exploitation
- © Région Bourgogne-Franche-Comté, Inventaire du patrimoine
Loges des aliénés (1857) : vue d'ensemble.
21, Beaune Hôtel-Dieu
N° de l’illustration : 20042100848XA
Date : 2004
Auteur : Michel Rosso
Reproduction soumise à autorisation du titulaire des droits d'exploitation
- © Région Bourgogne-Franche-Comté, Inventaire du patrimoine
Loges des aliénés : détail, portes des loges.
21, Beaune Hôtel-Dieu
N° de l’illustration : 20042100849XA
Date : 2004
Auteur : Michel Rosso
Reproduction soumise à autorisation du titulaire des droits d'exploitation
- © Région Bourgogne-Franche-Comté, Inventaire du patrimoine
Bâtiment abritant la chapelle mortuaire, la buanderie, le lavoir et le séchoir (XIXe siècle), le long de la rue Triperie : élévation sur la 3e cour.
21, Beaune Hôtel-Dieu
N° de l’illustration : 20042100917XA
Date : 2004
Auteur : Michel Rosso
Reproduction soumise à autorisation du titulaire des droits d'exploitation
- © Région Bourgogne-Franche-Comté, Inventaire du patrimoine
Halle des pressoirs : élévation sur la 3e cour.
21, Beaune Hôtel-Dieu
N° de l’illustration : 20042100915XA
Date : 2004
Auteur : Michel Rosso
Reproduction soumise à autorisation du titulaire des droits d'exploitation
- © Région Bourgogne-Franche-Comté, Inventaire du patrimoine
Bâtiment Saint-Joseph : élévation antérieure (vue depuis les jardins).
21, Beaune Hôtel-Dieu
N° de l’illustration : 20042100914XA
Date : 2004
Auteur : Michel Rosso
Reproduction soumise à autorisation du titulaire des droits d'exploitation
- © Région Bourgogne-Franche-Comté, Inventaire du patrimoine
Bâtiment dit des greniers et bâtiment Saint-Joseph (2e cour).
21, Beaune Hôtel-Dieu
N° de l’illustration : 20042100913VA
Date : 2004
Auteur : Michel Rosso
Reproduction soumise à autorisation du titulaire des droits d'exploitation
- © Région Bourgogne-Franche-Comté, Inventaire du patrimoine
Bâtiment dit des greniers et bâtiment Saint-Joseph (deuxième cour).
21, Beaune Hôtel-Dieu
N° de l’illustration : 20042100910VA
Date : 2004
Auteur : Michel Rosso
Reproduction soumise à autorisation du titulaire des droits d'exploitation
- © Région Bourgogne-Franche-Comté, Inventaire du patrimoine
Bâtiment dit des greniers : élévation sur la 3e cour (vue d'ensemble).
21, Beaune Hôtel-Dieu
N° de l’illustration : 20042100883XA
Date : 2004
Auteur : Michel Rosso
Reproduction soumise à autorisation du titulaire des droits d'exploitation
- © Région Bourgogne-Franche-Comté, Inventaire du patrimoine
Bâtiment dit des greniers : élévation sur la 3e cour (détail).
21, Beaune Hôtel-Dieu
N° de l’illustration : 20042100882VA
Date : 2004
Auteur : Michel Rosso
Reproduction soumise à autorisation du titulaire des droits d'exploitation
- © Région Bourgogne-Franche-Comté, Inventaire du patrimoine
Bâtiment dit des greniers : salle Sainte-Marguerite.
21, Beaune Hôtel-Dieu
N° de l’illustration : 20042100885XA
Date : 2004
Auteur : Michel Rosso
Reproduction soumise à autorisation du titulaire des droits d'exploitation
- © Région Bourgogne-Franche-Comté, Inventaire du patrimoine
Bâtiment dit des greniers : salle Sainte-Marguerite.
21, Beaune Hôtel-Dieu
N° de l’illustration : 20042100884XA
Date : 2004
Auteur : Michel Rosso
Reproduction soumise à autorisation du titulaire des droits d'exploitation
- © Région Bourgogne-Franche-Comté, Inventaire du patrimoine
Bâtiment dit des greniers : escalier.
21, Beaune Hôtel-Dieu
N° de l’illustration : 20042100886XA
Date : 2004
Auteur : Michel Rosso
Reproduction soumise à autorisation du titulaire des droits d'exploitation
- © Région Bourgogne-Franche-Comté, Inventaire du patrimoine
Bâtiment dit des greniers : escalier.
21, Beaune Hôtel-Dieu
N° de l’illustration : 20042100887XA
Date : 2004
Auteur : Michel Rosso
Reproduction soumise à autorisation du titulaire des droits d'exploitation
- © Région Bourgogne-Franche-Comté, Inventaire du patrimoine
Bâtiment dit des greniers : escalier.
21, Beaune Hôtel-Dieu
N° de l’illustration : 20042100889XA
Date : 2004
Auteur : Michel Rosso
Reproduction soumise à autorisation du titulaire des droits d'exploitation
- © Région Bourgogne-Franche-Comté, Inventaire du patrimoine
Oratoire ou grotte Saint-Jean-Baptiste (1902) : élévation latérale gauche.
21, Beaune Hôtel-Dieu
N° de l’illustration : 20042100918XA
Date : 2004
Auteur : Michel Rosso
Reproduction soumise à autorisation du titulaire des droits d'exploitation
- © Région Bourgogne-Franche-Comté, Inventaire du patrimoine
Oratoire ou grotte de la Nativité (1902).
21, Beaune Hôtel-Dieu
N° de l’illustration : 20042100920XA
Date : 2004
Auteur : Michel Rosso
Reproduction soumise à autorisation du titulaire des droits d'exploitation
- © Région Bourgogne-Franche-Comté, Inventaire du patrimoine
Passage sous le rempart.
21, Beaune Hôtel-Dieu
N° de l’illustration : 20042100844XA
Date : 2004
Auteur : Michel Rosso
Reproduction soumise à autorisation du titulaire des droits d'exploitation
- © Région Bourgogne-Franche-Comté, Inventaire du patrimoine
Passage sous le rempart.
21, Beaune Hôtel-Dieu
N° de l’illustration : 20042100845XA
Date : 2004
Auteur : Michel Rosso
Reproduction soumise à autorisation du titulaire des droits d'exploitation
- © Région Bourgogne-Franche-Comté, Inventaire du patrimoine
Hôpital militaire construit en 1893-1896, puis maternité en 1929 (pavillon Sainte-Anne) : élévation principale sur la 3e cour.
21, Beaune Hôtel-Dieu
N° de l’illustration : 20042100916XA
Date : 2004
Auteur : Michel Rosso
Reproduction soumise à autorisation du titulaire des droits d'exploitation
- © Région Bourgogne-Franche-Comté, Inventaire du patrimoine