BLANCHISSERIE INDUSTRIELLE JEANNELLE DITE GRANDE BLANCHISSERIE BELFORTAINE, ACTUELLEMENT ATELIER ET MAGASIN DE COMMERCE
90 - Belfort
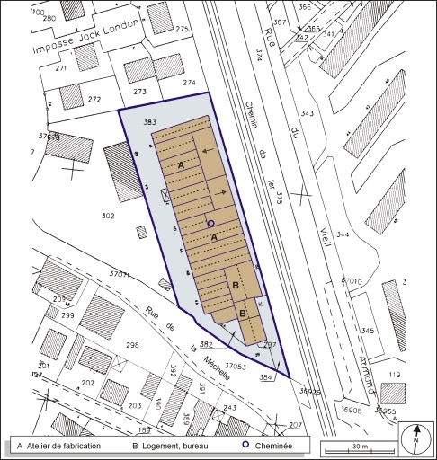
2 à 6 rue de la Méchelle
- Dossier IA90000125 réalisé en 2000 revu en 2001
- Auteur(s) : Raphaël Favereaux
Historique
En 1910, Alphonse Jeannelle reprend la succession des "lits militaires" (?) et fonde une blanchisserie destinée au nettoyage des effets vestimentaires de l'armée. Autorisée en août 1910, elle prend le nom de Grande Blanchisserie Belfortaine. Les bâtiments sont agrandis après 1918. Jean-Marie Jeannelle reprend l'établissement en 1943 sous forme d'une société en nom collectif (devenue SARL en 1961). Après la Seconde Guerre mondiale, la société se tourne vers une clientèle civile et industrielle. La blanchisserie est agrandie vers le nord dans les années 1960. Elle cesse de fonctionner vers 1970, avant d'être cédée en 1975 à un industriel. Mise en liquidation deux ans plus tard, elle voit néanmoins son activité se poursuivre jusqu'en 1983. Le site a été subdivisé en lots en 1987 et les bâtiments sont aujourd'hui occupés par diverses entreprises artisanales. 30 personnes vers 1950, 80 vers 1960.
- 1er quart 20e siècle
- 3e quart 20e siècle
Description
Les ateliers de fabrication, en rez-de-chaussée, sont construits en moellon de calcaire enduit et en brique enduite, couverts de toit à longs pans en tuile mécanique. L'extension des ateliers des années 1960 reprend le même plan que les ateliers originaux. Ils sont bâtis en parpaing de béton enduit et couverts en ciment amiante. Les logements sont à un étage carré. La cheminée, tronquée, est en brique.
- calcaire
- béton
- brique
- moellon
- parpaing de béton
- enduit
- tuile mécanique
- ciment amiante en couverture
- 1 étage carré
- énergie électrique
- achetée
Source(s) documentaire(s)
-
Pignons ouest des ateliers depuis l'entrée.
Pignons ouest des ateliers depuis l'entrée. Photographie, s.d. [vers 1960].Lieu de conservation : Collection particulière -
Extension nord de la blanchisserie.
Extension nord de la blanchisserie. Photographie, s.d. [vers 1960].Lieu de conservation : Collection particulière
À voir
Informations complémentaires
- patrimoine industriel du Territoire de Belfort
- atelier de fabrication
- logement
- bureau
- cheminée d'usine
- chaufferie
- © Région Bourgogne-Franche-Comté, Inventaire du patrimoine
