USINE DE MEUBLES CLAUDEL
70 - Corbenay
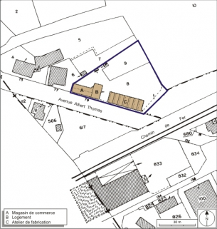
79 avenue Albert Thomas
- Dossier IA70000201 réalisé en 2006
- Auteur(s) : Raphaël Favereaux
Historique
Cette fabrique de meubles a été fondée vers 1920 par Georges Claudel. Le logement, attenant à un magasin d'exposition, a été construit dans les années 1930. Cette petite entreprise poursuit aujourd'hui la fabrication de meubles d'art (menuiserie, ébénisterie, tapisserie). La fabrique emploie deux personnes en 2006.
- 1ère moitié 20e siècle
Description
L'atelier de fabrication semble construit en parpaing de mâchefer enduit. Il est composé de sept travées en rez-de-chaussée couvertes en ciment amiante. Le logement compte deux étages carrés. Le magasin de vente, à un étage carré, est couvert d'un toit à longs pans en tuile mécanique.
- résidu industriel en gros oeuvre
- moellon
- enduit
- tuile mécanique
- ciment amiante en couverture
- verre en couverture
- 2 étages carrés
- énergie électrique
- achetée
À voir
Informations complémentaires
- patrimoine industriel de la Haute-Saône
- atelier de fabrication
- logement
- boutique
- © Région Bourgogne-Franche-Comté, Inventaire du patrimoine
