USINE DE BOISSELLERIE (USINE DE FORMES POUR CHAUSSURES) RENAUD
70 - Aillevillers-et-Lyaumont
rue du Martinet
- Dossier IA70000207 réalisé en 2006
- Auteur(s) : Raphaël Favereaux
Historique
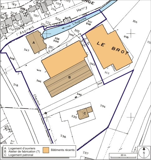
La fabrique de formes de souliers Paul Renaud aurait été fondée en 1861. Elle prend par la suite le nom de Renaud-Damidaux, puis Les fils de Renaud-Damidaux vers 1890. En 1893, cette société exploite, vraisemblablement sur le même site, une papeterie, dont la production a pu être utilisée pour la fabrication des talons. Des ateliers de fabrication en rez-de-chaussée couverts de sheds ont été reconstruits au début du 20e siècle. En 1929, la SARL P. Renaud Fils et Gendre produit 120 000 paires de formes et 600 000 talons. Un logement patronal est construit au sud de l'usine dans les années 1930. Celle-ci ferme ses portes vers 1962. Les bâtiments ont ensuite été occupés par la société Tramico de la fin des années 1960 à 1981, puis par Recticel, avant d'être rachetés par la commune. L'atelier de fabrication situé contre le talus de la voie ferrée a été détruit par un incendie. Les bâtiments subsistants sont, entre autres, occupés par une caserne de pompiers.
Mention de moteurs hydraulique et à vapeur en 1893, et d'une turbine hydraulique de 73 ch en 1938.
L'usine emploie 12 hommes et 5 enfants en 1875, 60 personnes et 3 enfants en 1893.
- 1ère moitié 20e siècle
Description
Les bâtiments industriels sont construits en rez-de-chaussée et couvert de sheds. Le logement patronal, à un étage carré et un étage de comble, est couvert d'un toit à croupes.
- grès
- moellon
- enduit
- tuile mécanique
- ardoise
- verre en couverture
- 1 étage carré
- étage de comble
- énergie thermique produite sur place
- énergie hydraulique produite sur place
- énergie électrique achetée
À voir
Informations complémentaires
- patrimoine industriel de la Haute-Saône
- atelier de fabrication
- logement patronal
- logement
- © Région Bourgogne-Franche-Comté, Inventaire du patrimoine
