FILATURE DE LAINE PEIGNÉE SCHWARTZ ET CIE, PUIS USINE DE TEINTURERIE ACHTNICH, ACTUELLEMENT MAGASIN DE COMMERCE
90 - Valdoie
13, 15 rue du 1er mai
- Dossier IA90000107 réalisé en 2000
- Auteur(s) : Raphaël Favereaux
Historique
La société Schwartz et Cie, de Mulhouse (68), fait construire en 1880 une filature de laine peignée. Elle est actionnée par une machine à vapeur et l'éclairage est fourni par une petite usine à gaz. Deux logements ouvriers voient également le jour. En 1923-1924, six maisons ouvrières (deux de type A et quatre de type B) sont construites sur la commune voisine de Belfort, rue de Bussang, par l'architecte belfortain Charles Schmutz et l'entrepreneur Tournesac. La filature ferme ses portes en 1928 ou 1929. En 1935, la société des Tricotages mécaniques Achtnich et Cie obtient l'autorisation d'établir une usine de teinturerie dans les locaux désaffectés. Elle traite du fil qu'elle reçoit sur canettes de la filature de Malmerspach (68). Deux à trois tonnes de fil (coton, laine, puis rayonne) sont traitées chaque mois (teinture et blanchiment), puis envoyées dans les deux usines de bonneterie de la société, à Belfort et Châtenois-les-Forges (90). Une maison à usage de conciergerie et de logement patronal est construite en 1939, une chaufferie édifiée entre 1945 et 1950, et un quai aménagé vers 1950. La teinturerie ferme ses portes en 1977, et les bâtiments aussitôt réoccupés par le magasin de bricolage et matériaux de construction Comafranc (actuellement Décofranc). Présence d'une machine à vapeur de 104 ch en 1888, d'une autre de 200 ch en 1889. Une chaudière à charbon de marque Lardet à Golbey (88), installée en 1952 pour la production de vapeur, est encore en place en 2000. 196 personnes en 1884, 292 en 1889, une soixantaine vers 1950, une vingtaine en 1977.
- 4e quart 19e siècle
- 1ère moitié 20e siècle
Charles Schmutz, architecte à Belfort (Territoire de Belfort). XIXe-XXe siècles
Tournesac, entrepreneur à Belfort. 19e-20e siècles.
Description
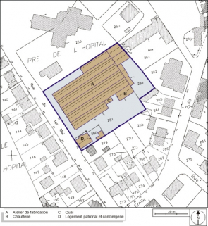
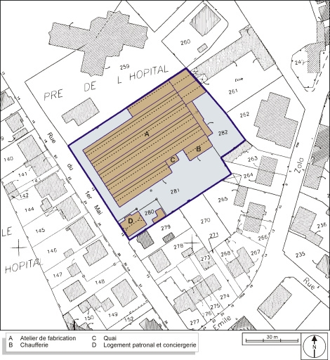
L'atelier de fabrication est en rez-de-chaussée couvert de sheds en tuile mécanique. Le logement patronal et la conciergerie sont en parpaing de béton et béton armé, à un étage carré, couverts d'un toit à longs pans. Les maisons ouvrières, rue de Bussang, possèdent chacune quatre logements ; elles sont en moellon de calcaire enduit, à un étage carré et un étage de comble, avec une élévation à trois travées pour le type A et à 5 travées pour le type B.
- calcaire
- moellon
- béton armé
- enduit
- tuile mécanique
- verre en couverture
- 1 étage carré
- shed
- toit à longs pans
- appentis
- détruit
Source(s) documentaire(s)
-
Vue d'ensemble depuis le sud-est vers 1945.
Vue d'ensemble depuis le sud-est vers 1945. Photographie, s.d. [vers 1945].Lieu de conservation : Collection particulière -
Vue d'ensemble depuis l'est vers 1945.
Vue d'ensemble depuis l'est vers 1945. Photographie, s.d. [vers 1945].Lieu de conservation : Collection particulière -
Vue des pignons sur rue vers 1945.
Vue des pignons sur rue vers 1945. Photographie, s.d. [vers 1945].Lieu de conservation : Collection particulière -
Plan d'ensemble de la filature de Mrs H. Schwartz et Cie au Valdoie.
Plan d'ensemble de la filature de Mrs H. Schwartz et Cie au Valdoie. Dessin, calque, plume, lavis, échelle 1:1000, s.d. [1880].Lieu de conservation : Archives départementales du Territoire de Belfort, Belfort - Cote du document : 5 M 296 -
Valdoie. - L'usine Schwartz.
Valdoie. - L'usine Schwartz. Carte postale, Mayer éd. (Belfort), s.d. [fin 19e ou début 20e siècle].Lieu de conservation : Archives départementales du Territoire de Belfort, Belfort - Cote du document : 7 Fi Valdoie 14 -
Machine à sécher de la teinturerie.
Machine à sécher de la teinturerie. Photographie, s.d. [milieu 20e siècle].Lieu de conservation : Collection particulière -
Chaudière Sulzer.
Chaudière Sulzer. Photographie, s.d. [milieu 20e siècle].Lieu de conservation : Collection particulière -
Intérieur de l'atelier de teinturerie.
Intérieur de l'atelier de teinturerie. Photographie, s.d. [milieu 20e siècle].Lieu de conservation : Collection particulière
À voir
Informations complémentaires
- patrimoine industriel du Territoire de Belfort
- oeuvre située en partie sur la commune Belfort
- atelier de fabrication
- bureau
- chaufferie
- conciergerie
- logement patronal
- logement d'ouvriers
- quai
- © Région Bourgogne-Franche-Comté, Inventaire du patrimoine
