FILATURE DE COTON DES HÉRITIERS DE GEORGES PERRIN
70 - Saint-Loup-sur-Semouse
rue de la Viotte
- Dossier IA70000189 réalisé en 2006
- Auteur(s) : Raphaël Favereaux
Historique
Cette filature-retorderie de coton a été construite au début des années 1950 par le groupe textile vosgien Les Héritiers de Georges Perrin (HGP), basé à Cornimont (88). Mise en service en 1955, elle produit 140 t de fils peignés et 45 t de fils retors par mois, avec des cotons égyptiens (à longues soies), syriens, grecs, mexicains et péruviens. Cette production est destinée à la bonneterie troyenne, mais l'usine fabrique aussi du fil synthétique pour l'industrie textile roannaise. Le groupe possède aussi des usines à Villersexel (étudiée IA70000083) et Saint-Germain (étudiée IA70000294). En 1964, ces établissements font travailler 670 salariés, avec 75 000 broches de filature, 4800 broches de retorderie et 800 métiers à tisser. A cette époque, la société travaille pour l'industrie de la bonneterie et du textile cotonnier de l'Est (Troyes) et du Midi.La filature a fermé ses portes en 1991. Les bâtiments sont aujourd'hui désaffectés. L'effectif compte 300 personnes en 1960 et en 1973, et 156 en 1990.
- 3e quart 20e siècle
Description
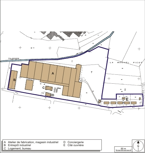
Les ateliers de fabrication, magasins et entrepôts industriels, en rez-de-chaussée, sont construits en béton armé et parpaing de béton, couverts de voûte en berceau segmentaire. La conciergerie est bâtie en moellon de calcaire, couverte d'un toit à croupes et de tuile mécanique. Le bâtiment des bureaux, pourvu d'un corps central et de deux ailes, possède un étage carré et un étage de comble, couvert de toits à demi-croupes. La cité ouvrière compte cinq logements collectifs.
- calcaire
- béton
- moellon
- béton armé
- parpaing de béton
- enduit
- tuile mécanique
- béton en couverture
- 1 étage carré
- étage de comble
- voûte en berceau segmentaire
- énergie électrique
- achetée
Source(s) documentaire(s)
-
Vue aérienne depuis le sud-est.
Vue aérienne depuis le sud-est. Photogr., Air Promotion éd., 1984.- Cote du document : Collection particulière : Parisot
À voir
Informations complémentaires
- patrimoine industriel de la Haute-Saône
- atelier de fabrication
- magasin industriel
- entrepôt industriel
- logement
- bureau
- cité ouvrière
- © Région Bourgogne-Franche-Comté, Inventaire du patrimoine
