FERME PUIS FROMAGERIE DORMOIS
25 - Rougemont
- Dossier IA25000835 réalisé en 2010
- Auteur(s) : Liliane Hamelin, Christophe Jacques
Historique
La ferme, qui date peut-être du 17e siècle, apparaît sur le plan cadastral napoléonien de 1835. Ses caves sont aménagées par le fromager Dormois, auparavant installé au 5 rue des Gratteris (AK 41, non étudié), et la grange est convertie en "entrepôt" (avec garage et poulailler). Par ailleurs, la première partie de la cave située à gauche, côté rue, devient une boulangerie (ce qui entraîne la modification de la baie). L'activité de la fromagerie cesse à la fin de la décennie 1970.
Période(s)
Principale :
- 17e siècle (?)
Description
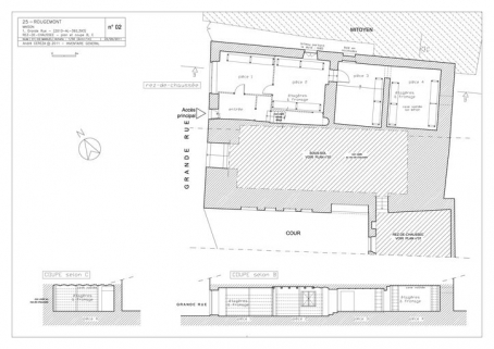
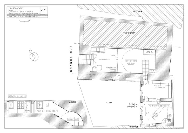
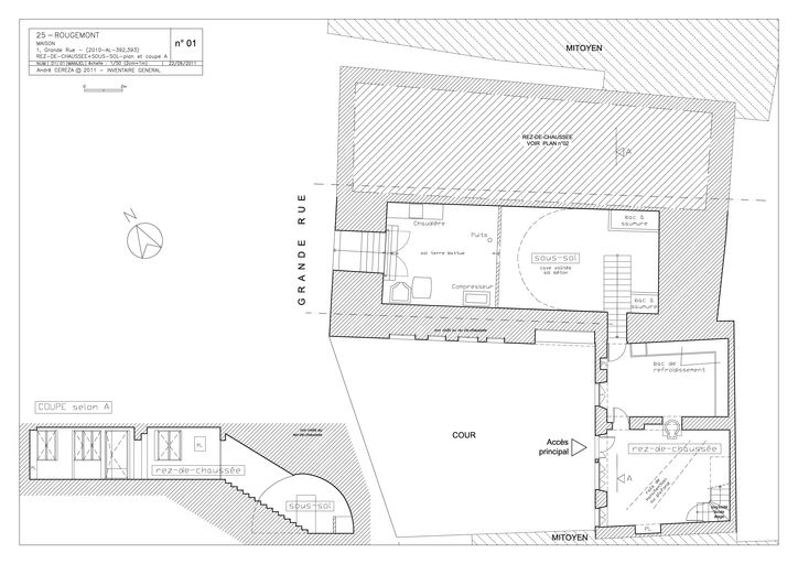
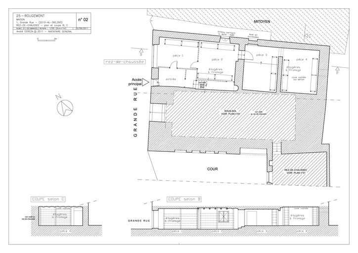
Les deux bâtiments sont construits en moellons calcaires enduits et est protégés par un toit à longs pans (la laiterie avec égouts retroussés), pignon couvert et tuiles mécaniques. Les dessertes s'effectuent à l'aide d'escaliers dans-oeuvre en bois. L'ancienne ferme abrite sous le même toit l'habitation, qui se prolonge sur le pignon côté Grande Rue, et la grange, divisée par un étage appelé les "éperchés". Elle compte deux étages carrés et un étage de comble, éclairé par deux petites baies carrées. Perpendiculaire à elle et en fond de cour, la laiterie (avec comptoir de vente à l'entrée) comporte un second logis à l'étage.
Murs :
- calcaire
- moellon
- enduit
Toit :
- tuile mécanique
Etages :
- sous-sol
- 2 étages carrés
- étage de comble
Couvrement :
- voûte en berceau
Elévation :
- élévation à travées
Couvertures :
- toit à longs pans, pignon couvert
- noue
Escalier :
- escalier dans-oeuvre,
Source(s) documentaire(s)
-
[Fromager en cave d'affinage]. S.d. [milieu 20e siècle].
[Fromager en cave d'affinage]. Photographie. S.d. [milieu 20e siècle]. Ensemble de deux tirages photographiques noir et blanc.Lieu de conservation : Collection particulière
À voir
Informations complémentaires
Thématiques :
- petites cités comtoises de caractère
Aire d’étude et canton :
Rougemont
Dénomination :
ferme, fromagerie
Parties constituantes non étudiées :
- cour
- verger
- enclos
- © Région Bourgogne-Franche-Comté, Inventaire du patrimoine
