CITÉ OUVRIÈRE DITE CITÉ D'EXPLOITATION EDF
39 - Cernon
La Cité
- Dossier IA39000494 réalisé en 1991 revu en 1992
- Auteur(s) : Laurent Poupard
Historique
Cité ouvrière faisant partie de l'ensemble générateur d'énergie dit ensemble du barrage de Vouglans. Elle a été bâtie entre 1963 et 1967 pour les agents d'exploitation d'EDF travaillant à la centrale hydroélectrique du barrage de Vouglans. Elle se compose de huit maisons. Formant une série de cinq, les maisons d'agents de maîtrise et les maisons d'ouvriers sont peu différenciées. Ce sont des maisons jumelées édifiées suivant des plans de l'architecte J.P. Fonterne. Maisons individuelles, celles des cadres sont au nombre de deux. Un troisième groupe, rénové en 1986, réunit un logement et trois studios. Existence d'un fonds d'archives privées.
Période(s)
Principale :
- 3e quart 20e siècle
Auteur(s) & personnalité(s)
Photographe. Il a photographié la cité ouvrière du barrage de Vouglans (Jura) dans les années 1960.
Description
Murs en béton, couverture en tuile mécanique. Maison d'agents de maîtrise ou d'ouvriers : sous-sol, rez-de-chaussée surélevé et étage en surcroît. Maison de cadre : étage de soubassement, étage en surcroît.
Murs :
- béton
- parpaing de béton
- enduit
Toit :
- tuile mécanique
Etages :
- sous-sol
- rez-de-chaussée surélevé
- étage en surcroît
Source(s) documentaire(s)
-
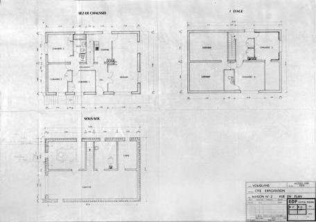
Vouglans. Cité d'exploitation. Maison n° 2 vue en plan.
Vouglans. Cité d'exploitation. Maison n° 2 vue en plan. Tirage à l'ammoniaque, 1980. Echelle 1:50, par B.V.Lieu de conservation : Archives EDF-GRPH Rhône, Cernon -
Electricité de France [...] Cité d'exploitation de Cernon. Maîtrise jumelée. Rez-de-chaussée.
Electricité de France [...] Cité d'exploitation de Cernon. Maîtrise jumelée. Rez-de-chaussée. Tirage à l'ammoniaque, 1963. Echelle 1:50, par Fonterne, J.-P.Lieu de conservation : Archives EDF-GRPH Rhône, Cernon -
Cité de l'Exploitation à Cernon.
Cité de l'Exploitation à Cernon. Photographie, 23 septembre 1965, par Studios Villeurbannais Monchanin et Périchon (photographe)Lieu de conservation : Archives EDF-GRPH Rhône, Cernon - Cote du document : Vo. 1136
À voir
Informations complémentaires
Thématiques :
- patrimoine industriel du Jura
Aire d’étude et canton :
Jura
Dénomination :
cité ouvrière
Parties constituantes non étudiées :
- logement de contremaître
- logement d'ouvriers
- garage
- jardin
- © Région Bourgogne-Franche-Comté, Inventaire du patrimoine
