LIGNE DE FABRICATION DES TÊTES DE PIPES EN MERISIER
25 - Baume-les-Dames
Gondé - Pipes - rue des Pipes
- Dossier IM25001103 réalisé en 2002
- Auteur(s) : Géraud Buffa
Historique
La fabrication des pipes en merisier, pour laquelle l'usine avait été conçue à la fin du 19e siècle, a peu à peu disparu pour céder la place aux pipes en racine de bruyère.
- 4e quart 19e siècle
- 20e siècle
Description
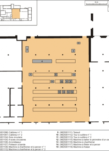
La tête de pipe en merisier est constituée de deux sections de branches de diamètres différents, une pour le fourneau et l'autre pour la tige, assemblées entre elles soit par un emboîtement, soit par un pas fileté. Le merisier devait garder son écorce pour conserver ses capacités à résister aux très fortes chaleurs du foyer. Seuls le cul de pipe et les bords du trou du foyer étaient polis. Les machines qui dégageaient une importante poussière étaient équipées d'un système d'aspiration commun à l'ensemble de l'atelier.
- matériau d'origine végétale solide, produit brut
À voir
Informations complémentaires
- patrimoine industriel du Doubs
- © Région Bourgogne-Franche-Comté, Inventaire du patrimoine
